During Q4'2025, average property prices for Tata Ariana moved from ₹ 7,450/sqft to ₹ 9,050/sqft, reflecting a 21.48% rise.

Tata Ariana, one of Bhubaneswars most prestigious properties,encompasses 12 acres of residential space and overlooks over 25 acres of vast nature reserves. A self-sufficient township built around communal life, Tata Serein is situated in Kalinga Vihar, Bhubaneswar. It is launched and developed by Tata Realty, a renowned real estate developer in India. The project provides a contemporary lifestyle amid several acres of green foliage.
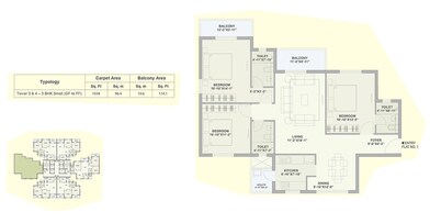
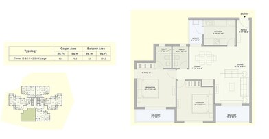
The core of Arianas design is a well-balanced mix of private homes and amenities geared towards the community. The 2 and 3-BHK apartments, designed by Woods Baggot, feature cutting-edge facilities and a distinctive clubhouse shaped like a leaf. The buildings are positioned to use breathtaking vistas and maximise visual connectedness to the nearby landscape.
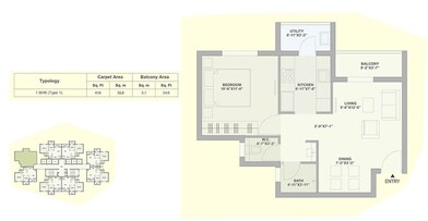
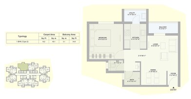
Tata Ariana in Kalinga Vihar, Bhubaneswar, offers spacious 2 and 3-BHK luxury apartments. The exquisitely designed apartments provide every element necessary for an epicurean setup with exquisite amenities, stunning outdoor views, and contemporary interiors for a pleasant yet affluent lifestyle. Tata Ariana residents experience a wholesome lifestyle close to all essential needs.
You can find more information in the Tata Ariana brochure on Square Yards.
During Q4'2025, average property prices for Tata Ariana moved from ₹ 7,450/sqft to ₹ 9,050/sqft, reflecting a 21.48% rise.
During Q2'2025, average property prices for Tata Ariana moved from ₹ 7,450/sqft to ₹ 8,600/sqft, reflecting a 15.44% rise.
| Master Bedroom-Walls | Oil Bound Distemper |
| Master Bedroom-Flooring | Vitrified Tiles |
| Other Bedrooms-Flooring | Vitrified Tiles |
| Walls | Oil Bound Distemper |
| Living Area-Flooring | Vitrified Tiles |
| Structure | RCC Frame Structure |
| Schools Near by Tata Ariana | |
|---|---|
| Doon International School | 4.74 KM |
| Loyola School | 7.69 KM |
| Mother Public School | 7.81 KM |
| Dm School | 8.55 KM |
| Capital High School | 8.97 KM |
| St Joseph High School | 9.20 KM |
| Kendriya Vidyalaya No. 1 | 9.26 KM |
| D.a.v. Public School | 9.69 KM |
| Sainik School | 10.04 KM |
| Venketeshwar English Medium School | 10.41 KM |
| Bus Stops Near by Tata Ariana | |
|---|---|
| Baramunda Bus Stand | 3.93 KM |
| Dts Bus Stand | 8.98 KM |
| Hospitals Near by Tata Ariana | |
|---|---|
| Vivekanand Hospital | 4.95 KM |
| Swastika Clinic & Hospital | 5.94 KM |
| Usthi Hospital & Research Centre | 6.69 KM |
| Health Village Hospital | 6.82 KM |
| Pallashpalli Hospital | 7.48 KM |
| Kar Clinic & Hospital | 8.22 KM |
| Kalinga Hospital Limited | 8.62 KM |
| Care Hospitals | 8.83 KM |
| Ayush Hospitals & Trauma Care Pvt. Ltd. | 8.94 KM |
| Sunflower Nursing Home | 9.02 KM |
| Hotels Near by Tata Ariana | |
|---|---|
| Mayfair Convention | 7.82 KM |
| Mayfair Lagoon | 7.88 KM |
| Pal Heights | 8.07 KM |
| Trident Hotel | 8.11 KM |
| Ginger Bhubaneshwar | 8.31 KM |
| Hotel Sandy Tower | 8.47 KM |
| Fortune Park Sishmo | 8.71 KM |
| Hotel Pushpak | 8.88 KM |
| Hotel Excellency | 8.96 KM |
| Swosti Grand | 8.97 KM |
| Shopping Malls Near by Tata Ariana | |
|---|---|
| Maa Barabhuja Mall | 3.33 KM |
| Miknik Mall | 6.32 KM |
| World Shopping Mall | 7.72 KM |
| Bmc Keshari Mall | 8.00 KM |
| Satyam Shivam Sundram Mall | 9.00 KM |
| Unitech Bhubaneswar One | 9.46 KM |
| Forum Mart | 9.48 KM |
| Panda Shopping Mall | 9.51 KM |
| Suruchi Plaza | 9.67 KM |
| Bmc Bhawani Mall | 9.86 KM |
| Office Parks Near by Tata Ariana | |
|---|---|
| Pal Heights Mall | 8.04 KM |
| Ekamra Haat | 8.92 KM |
| Old Town Market | 9.09 KM |
| Shahid Nagar Market | 9.82 KM |
| Vss Nagar Market | 10.83 KM |
| Temples Near by Tata Ariana | |
|---|---|
| Lingaraj Temple | 8.53 KM |
| Rajarani Temple | 9.37 KM |
| Parks Near by Tata Ariana | |
|---|---|
| Indira Gandhi Park | 8.05 KM |
| Regional Science Park | 8.74 KM |
| Supermarkets Near by Tata Ariana | |
|---|---|
| Big Bazaar | 9.47 KM |
| Clothings Near by Tata Ariana | |
|---|---|
| Vishal Mega Mart | 8.09 KM |
Check Travel Time
Properties in Tata Ariana & Top Sellers
TATA Housing is a designated real estate company founded in 1984 by the late JRD TATA. Currently, there are 33 luxurious projects that are established in over 51 million square feet. Brotin Banerjee revived the company in 2006 and had his expertise applied to uplift the organisation again. However, the current management is under Sanjay Dutt. The firm is active in nearly every big and small city in India and
Yes, Tata Ariana has received its Occupancy Certificate, confirming that the project is legally approved for residential use.
Yes, since Tata Ariana is a Ready to Move project in Kalinga Vihar, buyers can arrange site visits and inspect the actual apartment before finalizing the deal.
Tata Ariana is located in Kalinga Vihar, Bhubaneswar, with the complete address being Kalinga Vihar Bhubaneswar, 751019.
Residents of Tata Ariana can enjoy amenities such as Gymnasium, Swimming Pool, Power Backup, 24*7 Water Supply, 24 x 7 Security, CCTV / Video Surveillance, Clubhouse, Normal Park / Central Green, designed for comfort and a modern lifestyle.
Ready to Move projects like Tata Ariana may be priced slightly higher, but they eliminate construction delays, GST, and rental overlap costs.
This website is only for the purpose of providing information regarding real estate projects in different geographies. Any information which is being provided on this website is not an advertisement or a solicitation. The company has not verified the information and the compliances of the projects. Further, the company has not checked the RERA* registration status of the real estate projects listed herein. The company does not make any representation in regards to the compliances done against these projects. Please note that you should make yourself aware about the RERA* registration status of the listed real estate projects.
*Real Estate (regulation & development) act 2016.