Squareyards Logo
DataIntelligence
New Advertise with us Sell or Rent Property
Login
  • Facebook
  • Linkedin
  • Twitter
  • Whatsapp
bhartiya leela residences apartment 4 bhk 4176sqft 20215906125934
  • bhartiya leela residences project large image1 thumb
  • bhartiya leela residences amenities features4
  • bhartiya leela residences location image5
  • bhartiya leela residences master plan image6
  • bhartiya leela residences amenities features11
  • bhartiya leela residences amenities features12
  • bhartiya leela residences amenities features13
  • 11 Photos

4 BHK 4176 Sq. Ft. Apartment in Bhartiya Leela Residences

5.22 Cr
₹ 12500 Per Sq. Ft Onwards
Status: Ready to Move
  •   1048 Views
  •   6 Enquiries
  • 1 BHK-2 BHK-3 BHK-4 BHK Apartment from 840 Sq. Ft. to 4176 Sq. Ft. (Saleable)
  • 2 Living Area(s) 1 Kitchen(s)
*Disclaimer
The carpet area & built-up area shown above are based on approximate calculations performed on the floor plans obtained from publicly available sources. The accuracy and completeness of the information is not guaranteed. In providing this information, Square Yards does not assume any responsibility or liability.
  • Saleable Area - 4176 Sq. Ft.
  • SquareYards RERA Reg.PRM/KA/RERA/1251/310/AG/171114/000400
  • Project RERA Reg. PRM/KA/RERA/1251/309/PR/171015/000184
tn bhartiya leela residences project flagship1

North Bangalore, Bangalore

1.05 Cr to 5.22 Cr ₹ 12500.0 Per Sq. Ft Onwards
Ready to Move

About Bhartiya Leela Residences - 4 BHK 4176 Sq. Ft. Apartment

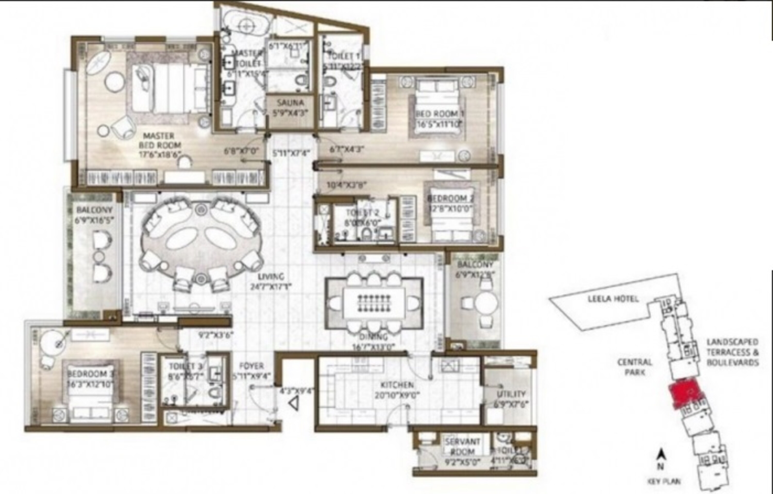
4 BHK 4176 Sq.Ft. Apartment in Bhartiya Leela Residences Thanisandra Main Road of Bangalore has an approximate price of Rs. 12500.0 per sq ft. The unit has 4 bedrooms, 2 living areas, . It also has 1 servant room. Largest bedroom has a size of 17.50 Sq Ft X 18.50 Sq Ft while the next largest is 16.25 Sq Ft X 12.83 Sq Ft .

Inside Area Analysis of 4 BHK 4176 Sq. Ft. Apartment in Bhartiya Leela Residences

Inside Area

Others

Length (Ft.) Breadth (Ft.) Area (Sq. Ft.)
Kitchen 20.83 9.00 187.5
Servant Room 9.17 5.00 45.83

Living/Common Areas

Length (Ft.) Breadth (Ft.) Area (Sq. Ft.)
Passage 5.92 7.33 43.39
Dining 16.58 13.00 215.58
Living 24.58 17.08 419.96
Passage 9.17 3.50 32.08
Entrance Foyer 5.92 9.33 55.22

Room/Private Areas

Length (Ft.) Breadth (Ft.) Area (Sq. Ft.)
Bedroom 16.25 12.83 208.54
Bedroom 12.67 10.00 126.67
Bedroom 16.42 11.83 194.26
Master Bedroom 17.50 18.50 323.75

Bhartiya Leela Residences - Floor Plans

1 BHK
2 BHK
3 BHK
4 BHK
i *Disclaimer

This website is only for the purpose of providing information regarding real estate projects in different geographies. Any information which is being provided on this website is not an advertisement or a solicitation. The company has not verified the information and the compliances of the projects. Further, the company has not checked the RERA* registration status of the real estate projects listed herein. The company does not make any representation in regards to the compliances done against these projects. Please note that you should make yourself aware about the RERA* registration status of the listed real estate projects.

*Real Estate (regulation & development) act 2016.
Contact our Real Estate Experts
Enable updates through WhatsApp
Enter Your Mobile Number
Verify your Number

We have sent you message with 4 digit
verification code (OTP) on

Change
Did not receive the code?
  • Zero Brokerage

    100% Service, 0% Brokerage. We charge our customers nothing. Not today, not ever.

  • Lowest Price Guaranteed

    Highly unlikely, but if you find a lower price (from the developer) for the same home you want to buy, tell us and we will match it.

  • Full Service Support

    Our sales personnel are customer advocates and are accountable for every step in the process – from search & discovery to site visits, transactions, home loans and post-sales service.

Country/City