Squareyards Logo
Blogs DataIntelligence
New Advertise with us Sell or Rent Property
Login
  • Facebook
  • Linkedin
  • Twitter
  • Whatsapp
godrej reflections penthouse 4bhk sq 3346sqft 1
  • godrej reflections location image1
  • godrej reflections amenities features2
  • godrej reflections amenities features3
  • godrej reflections amenities features4
  • godrej reflections amenities features5
  • godrej reflections apartment interiors1
  • godrej reflections apartment interiors2
  • 17 Photos

4 BHK 3346 Sq. Ft. Penthouse in Godrej Reflections

2.66 Cr
Status: Ready to Move
  •   8465 Views
  •   2 Enquiries
  • 1 BHK-3 BHK-4 BHK Apartment, Penthouse from 774 Sq. Ft. to 3346 Sq. Ft. (Saleable)
  • 3 Living Area(s) 2 Kitchen(s) 4 Bath Rooms(s)
  • 3 Balconies (213 Sq. Ft.)
*Disclaimer
The carpet area & built-up area shown above are based on approximate calculations performed on the floor plans obtained from publicly available sources. The accuracy and completeness of the information is not guaranteed. In providing this information, Square Yards does not assume any responsibility or liability.
  • Carpet Area - 2205 Sq. Ft. (66%)
  • Saleable Area - 3346 Sq. Ft.
  • SquareYards RERA Reg.PRM/KA/RERA/1251/310/AG/171114/000400
  • Project RERA Reg. PRM/KA/RERA/1251/446/PR/180329/002843
tn godrej reflections flagshipimg1

South Bangalore, Bangalore

61.53 Lac to 2.66 Cr
Ready to Move

About Godrej Reflections - 4 BHK 3346 Sq. Ft. Penthouse

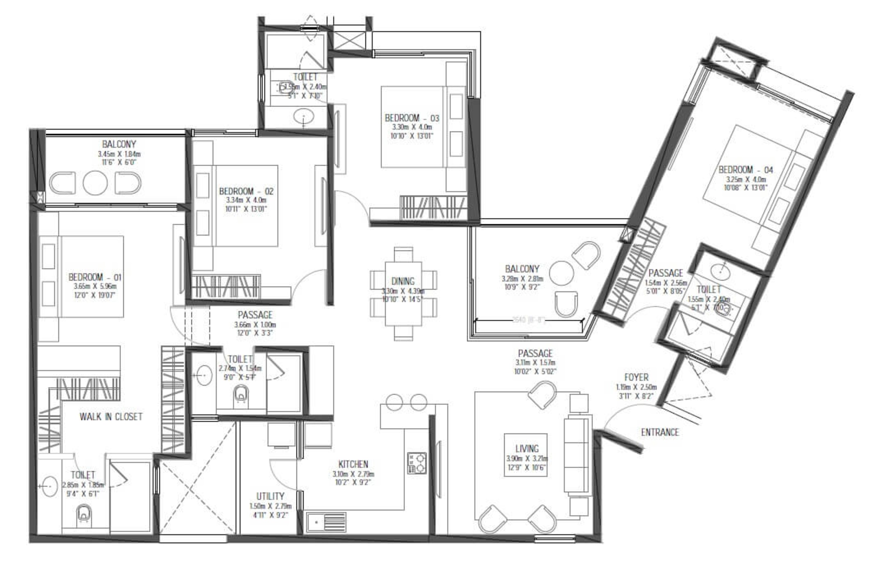
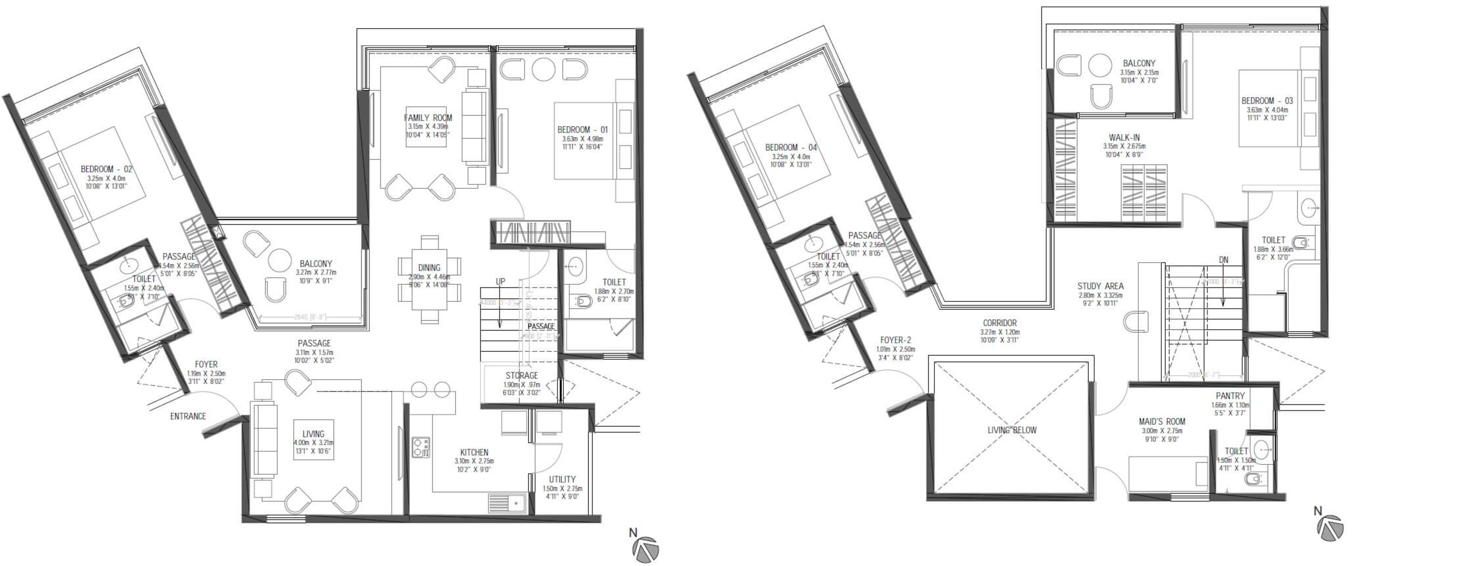
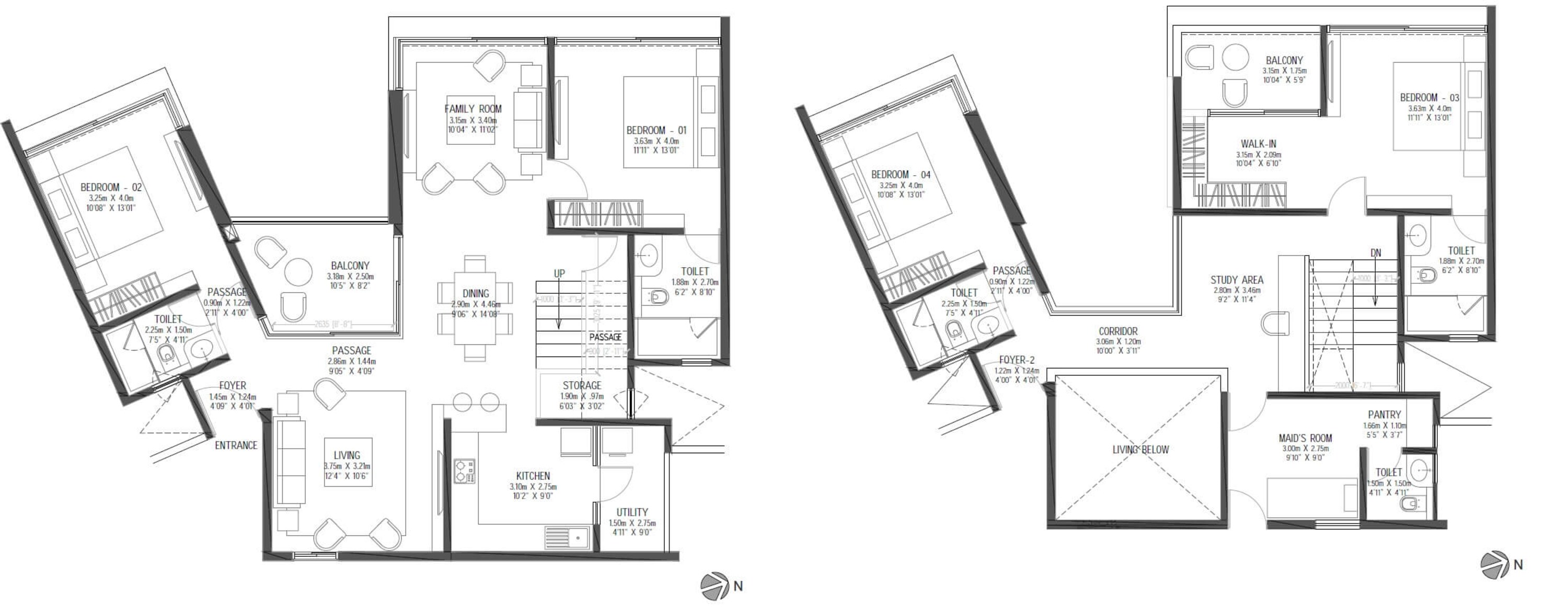
4 BHK 3346 Sq.Ft. Penthouse in Godrej Reflections Sarjapur Road of Bangalore. The unit has 4 bedrooms, 3 living areas, 4 bathrooms and 3 balconies. It also has 1 servant room. Largest bedroom has a size of 11.92 Sq Ft X 16.33 Sq Ft while the next largest is 10.67 Sq Ft X 13.08 Sq Ft .

Inside Area Analysis of 4 BHK 3346 Sq. Ft. Penthouse in Godrej Reflections

Inside Area

Living/Common Areas

Length (Ft.) Breadth (Ft.) Area (Sq. Ft.)
Entrance Foyer 3.92 8.17 31.99

Open Areas

Length (Ft.) Breadth (Ft.) Area (Sq. Ft.)
Attached Balcony 10.33 7.00 72.33

Room/Private Areas

Length (Ft.) Breadth (Ft.) Area (Sq. Ft.)
Bedroom 10.67 13.08 180

Others

Length (Ft.) Breadth (Ft.) Area (Sq. Ft.)
Servant Bath 4.92 4.92 24.17

Room/Private Areas

Length (Ft.) Breadth (Ft.) Area (Sq. Ft.)
Bedroom 11.92 13.25 157.9
Bedroom 10.67 13.08 140
Bedroom 11.92 16.33 194.64

Others

Length (Ft.) Breadth (Ft.) Area (Sq. Ft.)
Pantry 5.42 3.58 19.41
Kitchen 10.17 9.00 91.5
Servant Room 9.83 9.00 88.5

Living/Common Areas

Length (Ft.) Breadth (Ft.) Area (Sq. Ft.)
Others 9.17 10.92 100.07
Passage 10.75 3.92 42.1
Entrance Foyer 3.33 8.17 27.22
Family Lounge 10.33 14.42 148.97
Dining 9.50 14.67 139.33

Others

Length (Ft.) Breadth (Ft.) Area (Sq. Ft.)
Store 6.25 3.17 19.79

Living/Common Areas

Length (Ft.) Breadth (Ft.) Area (Sq. Ft.)
Passage 10.17 5.17 52.53

Open Areas

Length (Ft.) Breadth (Ft.) Area (Sq. Ft.)
Utility Balcony 4.92 9.00 44.25

Living/Common Areas

Length (Ft.) Breadth (Ft.) Area (Sq. Ft.)
Living 13.08 10.50 137.38

Open Areas

Length (Ft.) Breadth (Ft.) Area (Sq. Ft.)
Attached Balcony 10.75 9.08 97.65

Godrej Reflections - Floor Plans

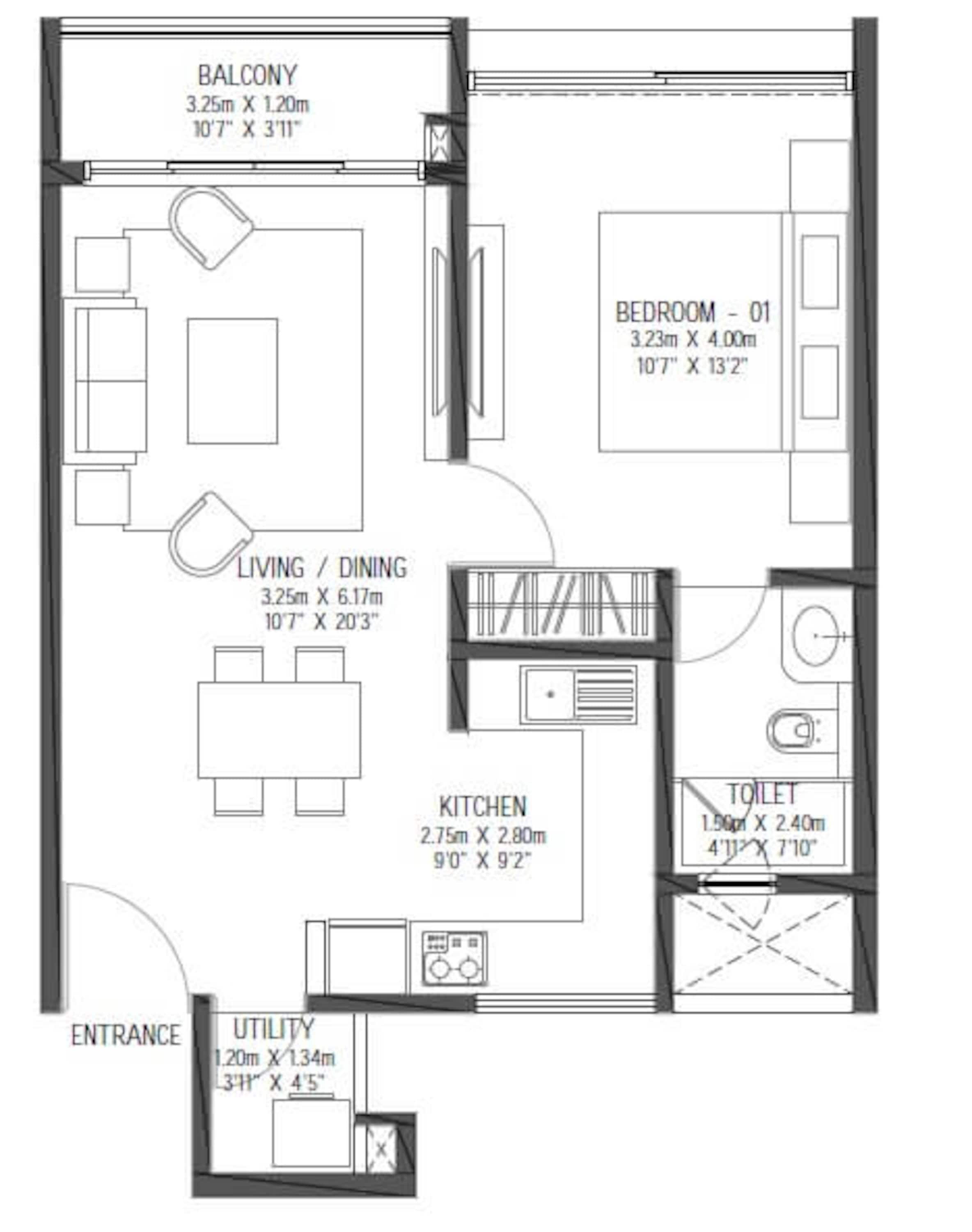
1 BHK
  • 1 BHK 774 Sq. Ft. Flat

    61.53 Lac
    godrej reflections apartment 1bhk 774sqft 1
    • 1 Bedroom + 1 Bathrooms + 1 Kitchen
    • Carpet Area : 506 Sq. Ft.
    • Saleable Area : 774 Sq. Ft.
3 BHK
  • 3 BHK 1483 Sq. Ft. Flat

    1.18 Cr
    godrej reflections apartment 3bhk 1483sqft 1
    • 3 Bedrooms + 2 Bathrooms + 1 Kitchen
    • Carpet Area : 993 Sq. Ft.
    • Saleable Area : 1483 Sq. Ft.
  • 3 BHK 1494 Sq. Ft. Flat

    1.19 Cr
    godrej reflections apartment 3bhk 1494sqft 1
    • 3 Bedrooms + 2 Bathrooms + 1 Kitchen
    • Carpet Area : 1002 Sq. Ft.
    • Saleable Area : 1494 Sq. Ft.
  • 3 BHK 1634 Sq. Ft. Flat

    1.30 Cr
    godrej reflections apartment 3bhk 1634sqft 1
    • 3 Bedrooms + 2 Bathrooms + 1 Kitchen
    • Carpet Area : 1038 Sq. Ft.
    • Saleable Area : 1634 Sq. Ft.
  • 3 BHK 1755 Sq. Ft. Flat

    1.40 Cr
    godrej reflections apartment 3bhk 1755sqft 1
    • 3 Bedrooms + 3 Bathrooms + 1 Kitchen
    • Carpet Area : 1127 Sq. Ft.
    • Saleable Area : 1755 Sq. Ft.
  • 3 BHK 1946 Sq. Ft. Flat

    1.55 Cr
    godrej reflections apartment 3bhk 1946sqft 1
    • 3 Bedrooms + 3 Bathrooms + 1 Kitchen
    • Carpet Area : 1221 Sq. Ft.
    • Saleable Area : 1946 Sq. Ft.
  • 3 BHK 2236 Sq. Ft. Flat

    1.78 Cr
    godrej reflections apartment 3bhk 2236sqft 1
    • 3 Bedrooms + 4 Bathrooms + 1 Kitchen
    • Carpet Area : 1374 Sq. Ft.
    • Saleable Area : 2236 Sq. Ft.
4 BHK
  • 4 BHK 2368 Sq. Ft. Flat

    1.88 Cr
    godrej reflections apartment 4bhk 2368sqft 1
    • 4 Bedrooms + 4 Bathrooms + 1 Kitchen
    • Carpet Area : 1512 Sq. Ft.
    • Saleable Area : 2368 Sq. Ft.
  • 4 BHK 2942 Sq. Ft. Penthouse

    2.34 Cr
    godrej reflections penthouse 4bhk sq 2942sqft 1
    • 4 Bedrooms + 5 Bathrooms + 5 Kitchens
    • Carpet Area : 1943 Sq. Ft.
    • Saleable Area : 2942 Sq. Ft.
  • 4 BHK 3250 Sq. Ft. Penthouse

    2.58 Cr
    godrej reflections penthouse 4bhk sq 3250sqft 1
    • 4 Bedrooms + 4 Bathrooms + 4 Kitchens
    • Carpet Area : 2138 Sq. Ft.
    • Saleable Area : 3250 Sq. Ft.
  • 4 BHK 3346 Sq. Ft. Penthouse

    2.66 Cr
    godrej reflections penthouse 4bhk sq 3346sqft 1
    • 4 Bedrooms + 4 Bathrooms + 4 Kitchens
    • Carpet Area : 2205 Sq. Ft.
    • Saleable Area : 3346 Sq. Ft.
i *Disclaimer

This website is only for the purpose of providing information regarding real estate projects in different geographies. Any information which is being provided on this website is not an advertisement or a solicitation. The company has not verified the information and the compliances of the projects. Further, the company has not checked the RERA* registration status of the real estate projects listed herein. The company does not make any representation in regards to the compliances done against these projects. Please note that you should make yourself aware about the RERA* registration status of the listed real estate projects.

*Real Estate (regulation & development) act 2016.
Contact our Real Estate Experts
Enable updates through WhatsApp
Enter Your Mobile Number
Verify your Number

We have sent you message with 4 digit
verification code (OTP) on

Change
Did not receive the code?
  • Zero Brokerage

    100% Service, 0% Brokerage. We charge our customers nothing. Not today, not ever.

  • Lowest Price Guaranteed

    Highly unlikely, but if you find a lower price (from the developer) for the same home you want to buy, tell us and we will match it.

  • Full Service Support

    Our sales personnel are customer advocates and are accountable for every step in the process – from search & discovery to site visits, transactions, home loans and post-sales service.

Country/City