Squareyards Logo
Blogs DataIntelligence
New Advertise with us Sell or Rent Property
Login
  • Facebook
  • Linkedin
  • Twitter
  • Whatsapp
shriram signiaa apartment 3bhk 1500sqft1
  • shriram signiaa project master plan image1
  • shriram signiaa project location image1
  • shriram signiaa project amenities features1
  • shriram signiaa project tower view1
  • shriram signiaa project amenities features6
  • shriram signiaa project amenities features8
  • shriram signiaa project amenities features9
  • 8 Photos

3 BHK 1500 Sq. Ft. Apartment in Shriram Signiaa

78.00 Lac
₹ 5200 Per Sq. Ft Onwards
Status: Ready to Move
  •   3696 Views
  •   20 Enquiries
  • 1 BHK-2 BHK-3 BHK-4 BHK Apartment from 640 Sq. Ft. to 3550 Sq. Ft. (Saleable)
  • 2 Living Area(s) 1 Kitchen(s) 2 Bath Rooms(s)
  • 2 Balconies (87 Sq. Ft.)
*Disclaimer
The carpet area & built-up area shown above are based on approximate calculations performed on the floor plans obtained from publicly available sources. The accuracy and completeness of the information is not guaranteed. In providing this information, Square Yards does not assume any responsibility or liability.
  • Saleable Area - 1500 Sq. Ft.
tn shriram signiaa project flagship1

South Bangalore, Bangalore

33.28 Lac to 1.85 Cr ₹ 5200.0 Per Sq. Ft Onwards
Ready to Move

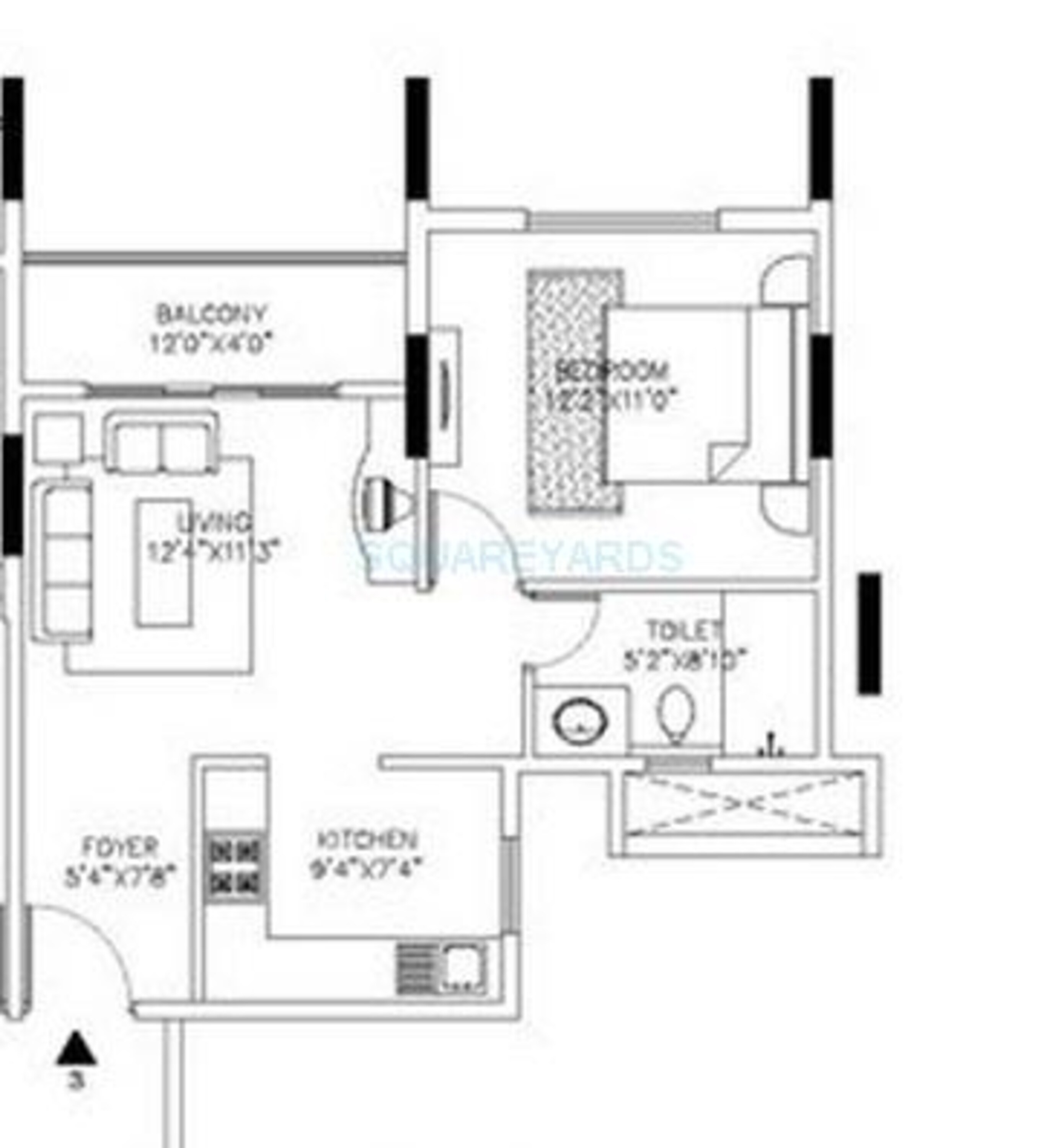
About Shriram Signiaa - 3 BHK 1500 Sq. Ft. Apartment

3 BHK 1500 Sq.Ft. Apartment in Shriram Signiaa Electronic City of Bangalore has an approximate price of Rs. 4990.0 per sq ft. The unit has 3 bedrooms, 2 living areas, 2 bathrooms and 2 balconies. Largest bedroom has a size of 12.00 Sq Ft X 14.33 Sq Ft while the next largest is 11.00 Sq Ft X 14.00 Sq Ft .

Inside Area Analysis of 3 BHK 1500 Sq. Ft. Apartment in Shriram Signiaa

Inside Area

Open Areas

Length (Ft.) Breadth (Ft.) Area (Sq. Ft.)
Utility Balcony 4.00 9.83 39.33
Attached Balcony 12.00 4.00 48

Others

Length (Ft.) Breadth (Ft.) Area (Sq. Ft.)
Kitchen 8.00 10.00 80

Living/Common Areas

Length (Ft.) Breadth (Ft.) Area (Sq. Ft.)
Passage 6.33 3.00 19
Dining 6.33 12.00 76
Living 12.67 19.33 244.89
Entrance Foyer 5.67 10.00 56.67

Room/Private Areas

Length (Ft.) Breadth (Ft.) Area (Sq. Ft.)
Bedroom 11.00 14.00 154
Bedroom 12.00 11.00 132
Bedroom 12.00 14.33 172

Shriram Signiaa - Floor Plans

1 BHK
2 BHK
3 BHK
4 BHK
i *Disclaimer

This website is only for the purpose of providing information regarding real estate projects in different geographies. Any information which is being provided on this website is not an advertisement or a solicitation. The company has not verified the information and the compliances of the projects. Further, the company has not checked the RERA* registration status of the real estate projects listed herein. The company does not make any representation in regards to the compliances done against these projects. Please note that you should make yourself aware about the RERA* registration status of the listed real estate projects.

*Real Estate (regulation & development) act 2016.
Contact our Real Estate Experts
Enable updates through WhatsApp
Enter Your Mobile Number
Verify your Number

We have sent you message with 4 digit
verification code (OTP) on

Change
Did not receive the code?
  • Zero Brokerage

    100% Service, 0% Brokerage. We charge our customers nothing. Not today, not ever.

  • Lowest Price Guaranteed

    Highly unlikely, but if you find a lower price (from the developer) for the same home you want to buy, tell us and we will match it.

  • Full Service Support

    Our sales personnel are customer advocates and are accountable for every step in the process – from search & discovery to site visits, transactions, home loans and post-sales service.

Country/City