Squareyards Logo
Blogs DataIntelligence
New Advertise with us Sell or Rent Property
Login
  • Facebook
  • Linkedin
  • Twitter
  • Whatsapp
sobha dahlia apartment 3bhk 1774sqft1
  • sobha dahlia master plan image1
  • sobha dahlia location image1
  • sobha dahlia project tower view1
  • 4 Photos

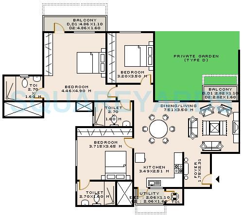
3 BHK 1774 Sq. Ft. Apartment in Sobha Dahlia

1.21 Cr to 1.24 Cr
₹ 6810 Per Sq. Ft Onwards
Status: Well Occupied
  •   3615 Views
  •   10 Enquiries
  • 3 BHK Apartment from 1762 Sq. Ft. to 1784 Sq. Ft. (Saleable)
  • 1 Living Area(s) 1 Kitchen(s) 3 Bath Rooms(s)
  • 3 Balconies (106 Sq. Ft.)
*Disclaimer
The carpet area & built-up area shown above are based on approximate calculations performed on the floor plans obtained from publicly available sources. The accuracy and completeness of the information is not guaranteed. In providing this information, Square Yards does not assume any responsibility or liability.
  • Saleable Area - 1774 Sq. Ft.
tn sobha dahlia project flagship1

South Bangalore, Bangalore

1.20 Cr to 1.25 Cr ₹ 6810.0 Per Sq. Ft Onwards
Well Occupied

About Sobha Dahlia - 3 BHK 1774 Sq. Ft. Apartment

3 BHK 1774 Sq.Ft. Apartment in Sobha Dahlia Sarjapur of Bangalore has an approximate price of Rs. 6810.0 per sq ft. The unit has 3 bedrooms, 1 living areas, 3 bathrooms and 3 balconies. It also has 1 servant room. Largest bedroom has a size of 12.89 Sq Ft X 13.12 Sq Ft while the next largest is 12.89 Sq Ft X 11.94 Sq Ft .

Inside Area Analysis of 3 BHK 1774 Sq. Ft. Apartment in Sobha Dahlia

Inside Area

Open Areas

Length (Ft.) Breadth (Ft.) Area (Sq. Ft.)
Private Garden/Lawn - - 350
Attached Balcony 6.99 3.61 25.21
Attached Balcony 14.20 3.61 51.24
Utility Balcony 8.45 3.61 30.47

Others

Length (Ft.) Breadth (Ft.) Area (Sq. Ft.)
Servant Bath - - 25
Kitchen 11.45 8.23 94.23
Servant Room - - 40

Living/Common Areas

Length (Ft.) Breadth (Ft.) Area (Sq. Ft.)
Passage - - 25
Living+Dining 24.63 11.48 282.75
Entrance Foyer 5.74 7.57 43.45

Room/Private Areas

Length (Ft.) Breadth (Ft.) Area (Sq. Ft.)
Bedroom 10.49 11.48 120.42
Bedroom 12.89 13.12 169.12
Bedroom 12.89 11.94 153.91

Sobha Dahlia - Floor Plans

3 BHK
i *Disclaimer

This website is only for the purpose of providing information regarding real estate projects in different geographies. Any information which is being provided on this website is not an advertisement or a solicitation. The company has not verified the information and the compliances of the projects. Further, the company has not checked the RERA* registration status of the real estate projects listed herein. The company does not make any representation in regards to the compliances done against these projects. Please note that you should make yourself aware about the RERA* registration status of the listed real estate projects.

*Real Estate (regulation & development) act 2016.
Contact our Real Estate Experts
Enable updates through WhatsApp
Enter Your Mobile Number
Verify your Number

We have sent you message with 4 digit
verification code (OTP) on

Change
Did not receive the code?
  • Zero Brokerage

    100% Service, 0% Brokerage. We charge our customers nothing. Not today, not ever.

  • Lowest Price Guaranteed

    Highly unlikely, but if you find a lower price (from the developer) for the same home you want to buy, tell us and we will match it.

  • Full Service Support

    Our sales personnel are customer advocates and are accountable for every step in the process – from search & discovery to site visits, transactions, home loans and post-sales service.

Country/City