Squareyards Logo
Blogs DataIntelligence
New Advertise with us Sell or Rent Property
Login
  • Facebook
  • Linkedin
  • Twitter
  • Whatsapp
sobha palm springs phase 11 wing 47 apartment 1 bhk 645sqft 20235209115255
  • sobha dream acres palm springs phase 11 wing 47 entrance view2
  • sobha dream acres palm springs phase 11 wing 47 master plan image4
  • sobha dream acres palm springs phase 11 wing 47 amenities features5
  • sobha dream acres palm springs phase 11 wing 47 location image8
  • sobha palm springs phase 11 wing 47 project tower view1 3139
  • 6 Photos

1 BHK 645 Sq. Ft. Apartment in Sobha Palm Springs Phase 11 Wing 47

55.08 Lac
Status: Ready to Move
  •   69 Views
  •   3 Enquiries
  • 1 BHK-2 BHK Apartment from 645 Sq. Ft. to 1210 Sq. Ft. (Saleable)
*Disclaimer
The carpet area & built-up area shown above are based on approximate calculations performed on the floor plans obtained from publicly available sources. The accuracy and completeness of the information is not guaranteed. In providing this information, Square Yards does not assume any responsibility or liability.
  • Saleable Area - 645 Sq. Ft.
  • SquareYards RERA Reg.PRM/KA/RERA/1251/310/AG/171114/000400
  • Project RERA Reg. PRM/KA/RERA/1251/446/PR/170915/000207
tn sobha palm springs phase 11 wing 47 project flagship1

East Bangalore, Bangalore

55.08 Lac to 1.03 Cr
Ready to Move

About Sobha Palm Springs Phase 11 Wing 47 - 1 BHK 645 Sq. Ft. Apartment

1 BHK 645 Sq.Ft. Apartment in Sobha Palm Springs Phase 11 Wing 47 Varthur of Bangalore. The unit has 1 bedrooms, .

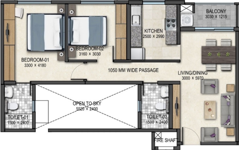
Sobha Palm Springs Phase 11 Wing 47 - Floor Plans

1 BHK
2 BHK
i *Disclaimer

This website is only for the purpose of providing information regarding real estate projects in different geographies. Any information which is being provided on this website is not an advertisement or a solicitation. The company has not verified the information and the compliances of the projects. Further, the company has not checked the RERA* registration status of the real estate projects listed herein. The company does not make any representation in regards to the compliances done against these projects. Please note that you should make yourself aware about the RERA* registration status of the listed real estate projects.

*Real Estate (regulation & development) act 2016.
Contact our Real Estate Experts
Enable updates through WhatsApp
Enter Your Mobile Number
Verify your Number

We have sent you message with 4 digit
verification code (OTP) on

Change
Did not receive the code?
  • Zero Brokerage

    100% Service, 0% Brokerage. We charge our customers nothing. Not today, not ever.

  • Lowest Price Guaranteed

    Highly unlikely, but if you find a lower price (from the developer) for the same home you want to buy, tell us and we will match it.

  • Full Service Support

    Our sales personnel are customer advocates and are accountable for every step in the process – from search & discovery to site visits, transactions, home loans and post-sales service.

Country/City