Squareyards Logo
Blogs DataIntelligence
New Advertise with us Sell or Rent Property
Login
  • Facebook
  • Linkedin
  • Twitter
  • Whatsapp
marutham group royal woods apartment 2bhk 923sqft1
  • 1 Photos

2 BHK 923 Sq. Ft. Apartment in Marutham Group Royal Woods

43.51 Lac to 52.00 Lac
Status: Ready to Move
  •   429 Views
  •   7 Enquiries
  • 1 BHK-2 BHK-3 BHK Apartment from 658 Sq. Ft. to 1428 Sq. Ft.
  • 1 Living Area(s) 1 Kitchen(s) 2 Bath Rooms(s)
  • 2 Balconies (74 Sq. Ft.)
tn marutham group royal woods flagshipimg1

Chennai South, Chennai

43.51 Lac to 52.00 Lac
Ready to Move

About Marutham Group Royal Woods - 2 BHK 923 Sq. Ft. Apartment

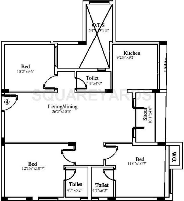
2 BHK 923 Sq.Ft. Apartment in Marutham Group Royal Woods Urapakkam of Chennai. The unit has 2 bedrooms, 1 living areas, 2 bathrooms and 2 balconies. Largest bedroom has a size of 10.50 Sq Ft X 10.00 Sq Ft while the next largest is 9.58 Sq Ft X 8.92 Sq Ft .

Inside Area Analysis of 2 BHK 923 Sq. Ft. Apartment in Marutham Group Royal Woods

Inside Area

Open Areas

Length (Ft.) Breadth (Ft.) Area (Sq. Ft.)
Utility Balcony 9.29 3.42 31.75
Attached Balcony 10.58 4.08 43.22

Others

Length (Ft.) Breadth (Ft.) Area (Sq. Ft.)
Kitchen 7.33 9.50 69.67

Living/Common Areas

Length (Ft.) Breadth (Ft.) Area (Sq. Ft.)
Living+Dining 22.33 10.00 223.33

Room/Private Areas

Length (Ft.) Breadth (Ft.) Area (Sq. Ft.)
Bedroom 9.58 8.92 85.45
Bedroom 10.50 10.00 105

Marutham Group Royal Woods - Floor Plans

1 BHK
2 BHK
3 BHK
i *Disclaimer

This website is only for the purpose of providing information regarding real estate projects in different geographies. Any information which is being provided on this website is not an advertisement or a solicitation. The company has not verified the information and the compliances of the projects. Further, the company has not checked the RERA* registration status of the real estate projects listed herein. The company does not make any representation in regards to the compliances done against these projects. Please note that you should make yourself aware about the RERA* registration status of the listed real estate projects.

*Real Estate (regulation & development) act 2016.
Contact our Real Estate Experts
Enable updates through WhatsApp
Enter Your Mobile Number
Verify your Number

We have sent you message with 4 digit
verification code (OTP) on

Change
Did not receive the code?
  • Zero Brokerage

    100% Service, 0% Brokerage. We charge our customers nothing. Not today, not ever.

  • Lowest Price Guaranteed

    Highly unlikely, but if you find a lower price (from the developer) for the same home you want to buy, tell us and we will match it.

  • Full Service Support

    Our sales personnel are customer advocates and are accountable for every step in the process – from search & discovery to site visits, transactions, home loans and post-sales service.

Country/City