During Q3'2025, average property prices for Shree Laxmi Peace City moved from ₹ 5,200/sqft to ₹ 6,950/sqft, reflecting a 33.65% rise.

| Unit Type (Saleable) | Price* | |
|
2 BHK
Apartment
577
Sq. Ft
|
₹ 33.10 Lac | Check Availability |
|
2 BHK
Apartment
637
Sq. Ft
|
₹ 36.54 Lac | Check Availability |
|
3 BHK
Apartment
763
Sq. Ft
|
₹ 42.80 Lac | Check Availability |
|
3 BHK
Apartment
837
Sq. Ft
|
₹ 46.95 Lac | Check Availability |
Own this home with EMIs starting at ₹ 22.97 K/month - Check Cibil Linked Loan Estimate
During Q3'2025, average property prices for Shree Laxmi Peace City moved from ₹ 5,200/sqft to ₹ 6,950/sqft, reflecting a 33.65% rise.
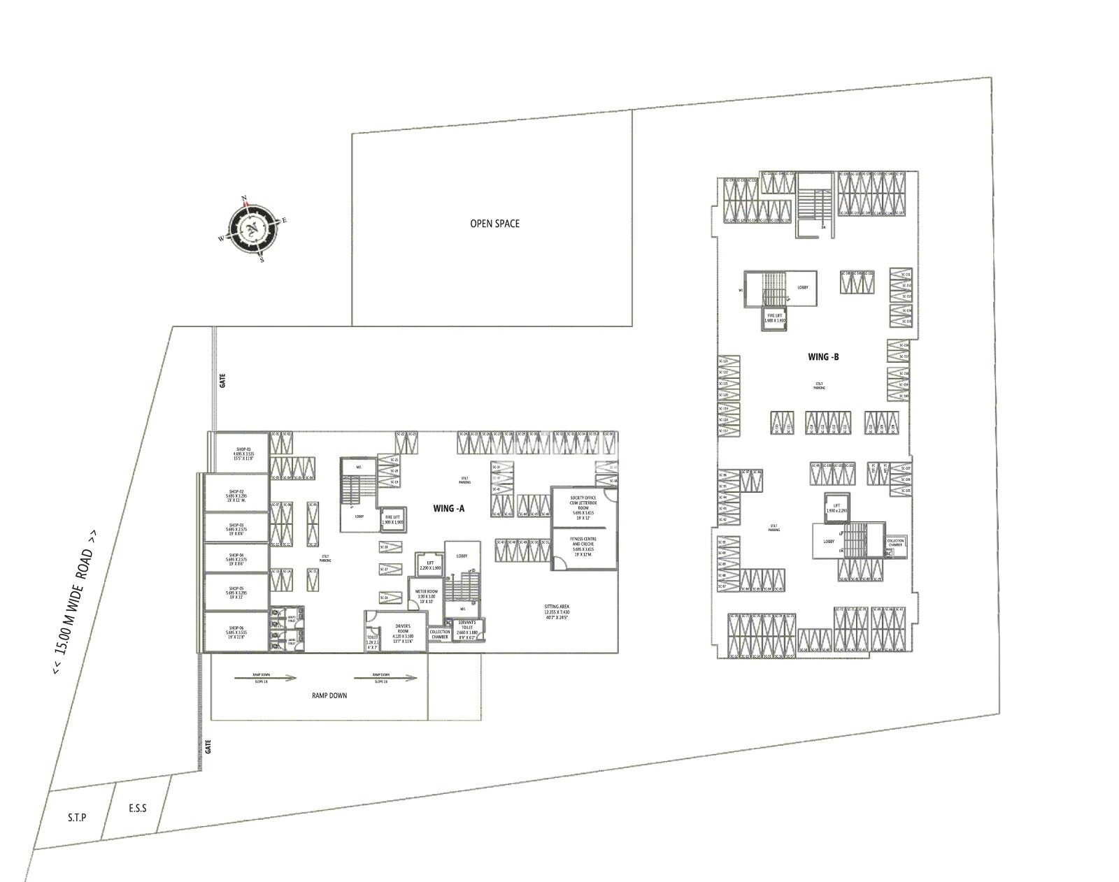
Shree Laxmi Peace City, located in Gotal pajri, is a development featuring two distinct towers, Wing-A and Wing-B. The master plan illustrates the layout of commercial, residential, and utility spaces within the property.
The property includes dedicated zones for residential/commercial towers (Wing-A and Wing-B), a significant 'OPEN SPACE,' and a row of commercial 'SHOP-02' to 'SHOP-06' units facing the main road. Essential services are provided with a clearly marked Electrical Sub-Station (E.S.S) and a Sewage Treatment Plant (S.T.P). Amenity areas include a Society Office cum Letterbox room, a Fitness Centre and Creche, and a large communal sitting area. Parking is primarily located as 'STILT PARKING' beneath the two wings.
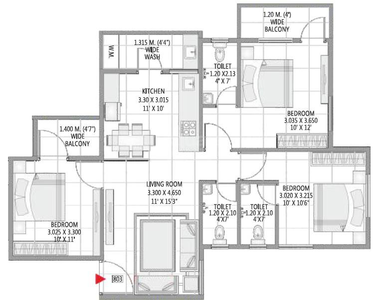
| Master Bedroom-Walls | Acrylic Emulsion |
| Master Bedroom-Flooring | Vitrified Tiles |
| Other Bedrooms-Flooring | Vitrified Tiles |
| Walls | Acrylic Emulsion |
| Living Area-Flooring | Vitrified Tiles |
| Bathroom | Premium Bath Fittings |
| Structure | RCC Frame Structure |
Check Travel Time
Connecting Roads - Shree Laxmi Peace City
Average Asking Price of Properties in Gotal pajri is around ₹ 4,000 /Sq.ft
Residents rate Gotal pajri 5 out of 5 for overall quality of life.
Gotal pajri holds the position in the city for overall livability.
| Transaction Value | Sale Count |
|---|---|
| 7K - 7.5K | 1 |
| Configurations | In Shree Laxmi Peace City | In Gotal pajri |
|---|---|---|
| 2 BHK | - | ₹ 15 K |
Properties in Shree Laxmi Peace City & Top Sellers
Live the life youve always wanted in this lovely 2-bedroom, 2-bathroom apartment situated in Gotal Pajri, Nagpur.<br><ul><li>Priced at 40 Lac, this 577 square feet furnished home is located in the well-regarded Shree Laxmi Peace City, on the second floor of a 10-story building.</li><li> You will appreciate the convenience of having two dedicated parking spots, ensuring ample space for your vehicles.</li><li> The property boasts a range of amenities designed for a comfortable and active lifestyle, including a gymnasium, a badminton court, dedicated kids play areas, and a jogging or cycle track.</li><li> Plus, with power backup and 24/7 security, you can enjoy peace of mind knowing your needs are met around the clock.</li><li> This apartment, aged between 5-7 years, is not just a place to live, but a smart investment in a peaceful vicinity with easy access to the city center, offering a great combination of modern living and convenience for its residents.</li></ul>Make this charming apartment the next chapter in your homeownership journey.
This website is only for the purpose of providing information regarding real estate projects in different geographies. Any information which is being provided on this website is not an advertisement or a solicitation. The company has not verified the information and the compliances of the projects. Further, the company has not checked the RERA* registration status of the real estate projects listed herein. The company does not make any representation in regards to the compliances done against these projects. Please note that you should make yourself aware about the RERA* registration status of the listed real estate projects.
*Real Estate (regulation & development) act 2016.|
|
|
|
|
|
|
|
|
|
|
|
|
|
|
|
|
|
|
|
|
|