Squareyards Logo
Blogs DataIntelligence
New Advertise with us Sell or Rent Property
Login
  • Facebook
  • Linkedin
  • Twitter
  • Whatsapp
paranjape schemes vasant vihar apartment 3bhk 1230sqft 20201720201724
  • paranjape schemes vasant vihar project master plan image1
  • 2 Photos

4 BHK 1230 Sq. Ft. Apartment in Paranjape Schemes Vasant Vihar

85.30 Lac
Status: Well Occupied
  •   15744 Views
  •   4 Enquiries
  • 2 BHK-3 BHK Apartment from 967 Sq. Ft. to 1374 Sq. Ft. (Saleable)
  • 2 Living Area(s) 1 Kitchen(s) 4 Bath Rooms(s)
  • 1 Balconies (68 Sq. Ft.)
*Disclaimer
The carpet area & built-up area shown above are based on approximate calculations performed on the floor plans obtained from publicly available sources. The accuracy and completeness of the information is not guaranteed. In providing this information, Square Yards does not assume any responsibility or liability.
  • Saleable Area - 1230 Sq. Ft.
tn paranjape schemes vasant vihar project flagship1

Pune West, Pune

67.00 Lac to 95.40 Lac
Well Occupied

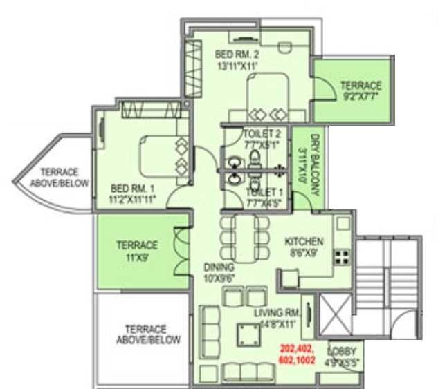
About Paranjape Schemes Vasant Vihar - 4 BHK 1230 Sq. Ft. Apartment

4 BHK 1230 Sq.Ft. Apartment in Paranjape Schemes Vasant Vihar Baner of Pune. The unit has 4 bedrooms, 2 living areas, 4 bathrooms and 1 balconies. Largest bedroom has a size of 16.75 Sq Ft X 11.92 Sq Ft while the next largest is 16.75 Sq Ft X 11.83 Sq Ft .

Inside Area Analysis of 4 BHK 1230 Sq. Ft. Apartment in Paranjape Schemes Vasant Vihar

Inside Area

Others

Length (Ft.) Breadth (Ft.) Area (Sq. Ft.)
Kitchen 11.50 10.00 115

Living/Common Areas

Length (Ft.) Breadth (Ft.) Area (Sq. Ft.)
Passage 5.75 5.25 30.19
Family Lounge 13.83 13.58 187.9
Living+Dining 27.58 16.50 455.12
Entrance Foyer 6.50 7.33 47.67

Room/Private Areas

Length (Ft.) Breadth (Ft.) Area (Sq. Ft.)
Bedroom 16.75 11.92 199.6
Bedroom 13.33 12.42 165.56

Others

Length (Ft.) Breadth (Ft.) Area (Sq. Ft.)
Utility room 5.75 5.25 30.19

Room/Private Areas

Length (Ft.) Breadth (Ft.) Area (Sq. Ft.)
Bedroom 13.58 11.92 161.87
Bedroom 16.75 11.83 198.21

Open Areas

Length (Ft.) Breadth (Ft.) Area (Sq. Ft.)
Terrace 11.50 10.00 115
Attached Balcony 5.75 11.92 68.52

Others

Length (Ft.) Breadth (Ft.) Area (Sq. Ft.)
Servant Bath 8.00 3.92 31.33

Paranjape Schemes Vasant Vihar - Floor Plans

2 BHK
3 BHK
4 BHK
5 BHK
i *Disclaimer

This website is only for the purpose of providing information regarding real estate projects in different geographies. Any information which is being provided on this website is not an advertisement or a solicitation. The company has not verified the information and the compliances of the projects. Further, the company has not checked the RERA* registration status of the real estate projects listed herein. The company does not make any representation in regards to the compliances done against these projects. Please note that you should make yourself aware about the RERA* registration status of the listed real estate projects.

*Real Estate (regulation & development) act 2016.
Contact our Real Estate Experts
Enable updates through WhatsApp
Enter Your Mobile Number
Verify your Number

We have sent you message with 4 digit
verification code (OTP) on

Change
Did not receive the code?
  • Zero Brokerage

    100% Service, 0% Brokerage. We charge our customers nothing. Not today, not ever.

  • Lowest Price Guaranteed

    Highly unlikely, but if you find a lower price (from the developer) for the same home you want to buy, tell us and we will match it.

  • Full Service Support

    Our sales personnel are customer advocates and are accountable for every step in the process – from search & discovery to site visits, transactions, home loans and post-sales service.

Country/City