Squareyards Logo
Blogs DataIntelligence
New Advertise with us Sell or Rent Property
Login
  • Facebook
  • Linkedin
  • Twitter
  • Whatsapp
pride the spires apartment 4bhk 3800sqft 9897
  • pride purple the spires project large image3 thumb
  • pride purple the spires location image5
  • pride purple the spires amenities features6
  • pride purple the spires amenities features7
  • 5 Photos

4 BHK 3800 Sq. Ft. Apartment in Pride Purple The Spires

4.18 Cr
Status: Ready to Move
  •   831 Views
  •   14 Enquiries
  • 3 BHK-4 BHK-5 BHK Apartment (Carpet)
  • 2 Living Area(s) 1 Kitchen(s) 5 Bath Rooms(s)
  • 1 Balconies (43 Sq. Ft.)
*Disclaimer
The carpet area & built-up area shown above are based on approximate calculations performed on the floor plans obtained from publicly available sources. The accuracy and completeness of the information is not guaranteed. In providing this information, Square Yards does not assume any responsibility or liability.
  • Saleable Area - 3800 Sq. Ft.
  • SquareYards RERA Reg.A51800000454
  • Project RERA Reg. P52100000485
tn pride the spires flagshipimg1

Pune West, Pune

3.75 Cr to 9.23 Cr
Ready to Move

About Pride Purple The Spires - 4 BHK 3800 Sq. Ft. Apartment

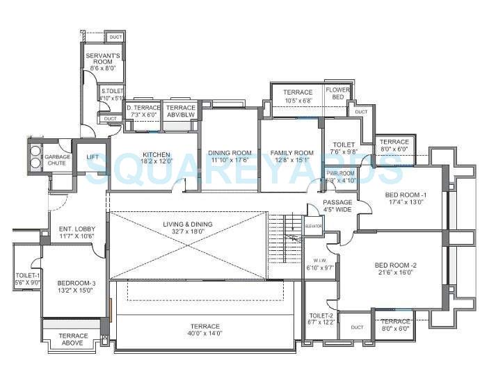
4 BHK 3800 Sq.Ft.Apartment in Pride Purple The Spires Aundh of Pune. The unit has 4 bedrooms, 2 living areas, 5 bathrooms and 1 balconies. It also has 1 servant room. Largest bedroom has a size of 13.17 Sq Ft X 15.00 Sq Ft while the next largest is 12.67 Sq Ft X 14.83 Sq Ft .

Inside Area Analysis of 4 BHK 3800 Sq. Ft. Apartment in Pride Purple The Spires

Inside Area

Open Areas

Length (Ft.) Breadth (Ft.) Area (Sq. Ft.)
Dry Balcony 7.25 6.00 43.5

Room/Private Areas

Length (Ft.) Breadth (Ft.) Area (Sq. Ft.)
Bedroom 12.67 14.83 187.89

Open Areas

Length (Ft.) Breadth (Ft.) Area (Sq. Ft.)
Terrace 21.00 15.17 318.5

Room/Private Areas

Length (Ft.) Breadth (Ft.) Area (Sq. Ft.)
Bedroom 13.17 15.00 197.5

Open Areas

Length (Ft.) Breadth (Ft.) Area (Sq. Ft.)
Terrace 12.00 6.17 74

Others

Length (Ft.) Breadth (Ft.) Area (Sq. Ft.)
Servant Bath 4.83 5.83 28.19
Kitchen 18.33 12.00 220
Servant Room 8.58 8.00 68.67

Living/Common Areas

Length (Ft.) Breadth (Ft.) Area (Sq. Ft.)
Passage - - 40
Living+Dining 28.33 17.00 481.67

Others

Length (Ft.) Breadth (Ft.) Area (Sq. Ft.)
Wash Area 6.17 10.50 64.75

Living/Common Areas

Length (Ft.) Breadth (Ft.) Area (Sq. Ft.)
Lobby 11.58 10.50 121.62

Open Areas

Length (Ft.) Breadth (Ft.) Area (Sq. Ft.)
Terrace 6.00 8.17 49

Room/Private Areas

Length (Ft.) Breadth (Ft.) Area (Sq. Ft.)
Bedroom 13.83 16.00 221.33

Open Areas

Length (Ft.) Breadth (Ft.) Area (Sq. Ft.)
Terrace 6.00 8.17 49

Room/Private Areas

Length (Ft.) Breadth (Ft.) Area (Sq. Ft.)
Bedroom 13.83 13.00 179.83

Pride Purple The Spires - Floor Plans

3 BHK
4 BHK
5 BHK
i *Disclaimer

This website is only for the purpose of providing information regarding real estate projects in different geographies. Any information which is being provided on this website is not an advertisement or a solicitation. The company has not verified the information and the compliances of the projects. Further, the company has not checked the RERA* registration status of the real estate projects listed herein. The company does not make any representation in regards to the compliances done against these projects. Please note that you should make yourself aware about the RERA* registration status of the listed real estate projects.

*Real Estate (regulation & development) act 2016.
Contact our Real Estate Experts
Enable updates through WhatsApp
Enter Your Mobile Number
Verify your Number

We have sent you message with 4 digit
verification code (OTP) on

Change
Did not receive the code?
  • Zero Brokerage

    100% Service, 0% Brokerage. We charge our customers nothing. Not today, not ever.

  • Lowest Price Guaranteed

    Highly unlikely, but if you find a lower price (from the developer) for the same home you want to buy, tell us and we will match it.

  • Full Service Support

    Our sales personnel are customer advocates and are accountable for every step in the process – from search & discovery to site visits, transactions, home loans and post-sales service.

Country/City