Squareyards Logo
DataIntelligence
New Advertise with us Sell or Rent Property
Login
  • Facebook
  • Linkedin
  • Twitter
  • Whatsapp
rohan silver palm grove apartment 3 bhk 1400sqft 20214208134251
  • rohan silver palm grove master plan image5
  • rohan silver palm grove location image6
  • rohan silver palm grove amenities features7
  • 4 Photos

3 BHK 1400 Sq. Ft. Apartment in Rohan Silver Palm Grove

₹ 1.57 Cr
Status: Ready to Move
  •   10016 Views
  •   14 Enquiries
  • 2 BHK-3 BHK Apartment from 1052 Sq. Ft. to 1400 Sq. Ft. (Saleable)
  • 2 Living Area(s) 1 Kitchen(s)
*Disclaimer
The carpet area & built-up area shown above are based on approximate calculations performed on the floor plans obtained from publicly available sources. The accuracy and completeness of the information is not guaranteed. In providing this information, Square Yards does not assume any responsibility or liability.
  • Saleable Area - 1400 Sq. Ft.
  • SquareYards RERA Reg.A51800000454
  • Project RERA Reg. P52100008351##https://maharerait.mahaonline.gov.in/ProjectSummaryView/ProjectSummaryQRCodeView?id=Q2VydGlmaWNhdGVObz1QNTIxMDAwMDgzNTEmU2VjdXJpdHlUeXBlPUNvcnJlY3Rpb25DZXJ0aWZpY2F0aW9uUVJTY2Fu##Silver Palm Grove Phase 2##17310##2017-08-18 00:00:00##2019-12-30 00:00:00
tn rohan silver palm grove flagshipimg1

Pimpri Chinchwad PCMC, Pune

₹ 11,273 Per Sq. Ft Onwards
Ready to Move

About Rohan Silver Palm Grove - 3 BHK 1400 Sq. Ft. Apartment

3 BHK 1400 Sq.Ft. Apartment in Rohan Silver Palm Grove Ravet of Pune. The unit has 3 bedrooms, 2 living areas, .

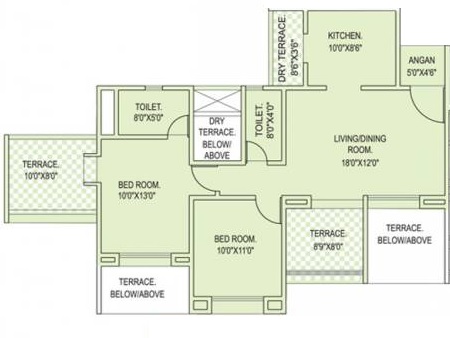
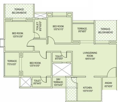
Rohan Silver Palm Grove - Floor Plans

2 BHK
3 BHK
i *Disclaimer

This website is only for the purpose of providing information regarding real estate projects in different geographies. Any information which is being provided on this website is not an advertisement or a solicitation. The company has not verified the information and the compliances of the projects. Further, the company has not checked the RERA* registration status of the real estate projects listed herein. The company does not make any representation in regards to the compliances done against these projects. Please note that you should make yourself aware about the RERA* registration status of the listed real estate projects.

*Real Estate (regulation & development) act 2016.
Contact our Real Estate Experts
Enable updates through WhatsApp
Enter Your Mobile Number
Verify your Number

We have sent you message with 4 digit
verification code (OTP) on

Change
Did not receive the code?
  • Zero Brokerage

    100% Service, 0% Brokerage. We charge our customers nothing. Not today, not ever.

  • Lowest Price Guaranteed

    Highly unlikely, but if you find a lower price (from the developer) for the same home you want to buy, tell us and we will match it.

  • Full Service Support

    Our sales personnel are customer advocates and are accountable for every step in the process – from search & discovery to site visits, transactions, home loans and post-sales service.

Country/City