Squareyards Logo
Blogs DataIntelligence
Sell or Rent Property
Login
  • Facebook
  • Linkedin
  • Twitter
  • Whatsapp
runwal seagull apartment 2bhk 706sqft1
  • runwal seagull master plan image5
  • runwal seagull location image6
  • 3 Photos

2 BHK 706 Sq. Ft. Apartment in Runwal Seagull

₹ 47.46 L
Status: Ready to Move
  •   8924 Views
  •   5 Enquiries
  • 2 BHK-3 BHK Apartment from 706 Sq. Ft. to 1161 Sq. Ft. (Saleable)
  • 2 Living Area(s) 1 Kitchen(s) 2 Bath Rooms(s)
*Disclaimer
The carpet area & built-up area shown above are based on approximate calculations performed on the floor plans obtained from publicly available sources. The accuracy and completeness of the information is not guaranteed. In providing this information, Square Yards does not assume any responsibility or liability.
  • Saleable Area - 706 Sq. Ft.
tn runwal seagull project flagship1

Pune South, Pune

₹ 6,723 Per Sq. Ft Onwards
Ready to Move

About Runwal Seagull - 2 BHK 706 Sq. Ft. Apartment

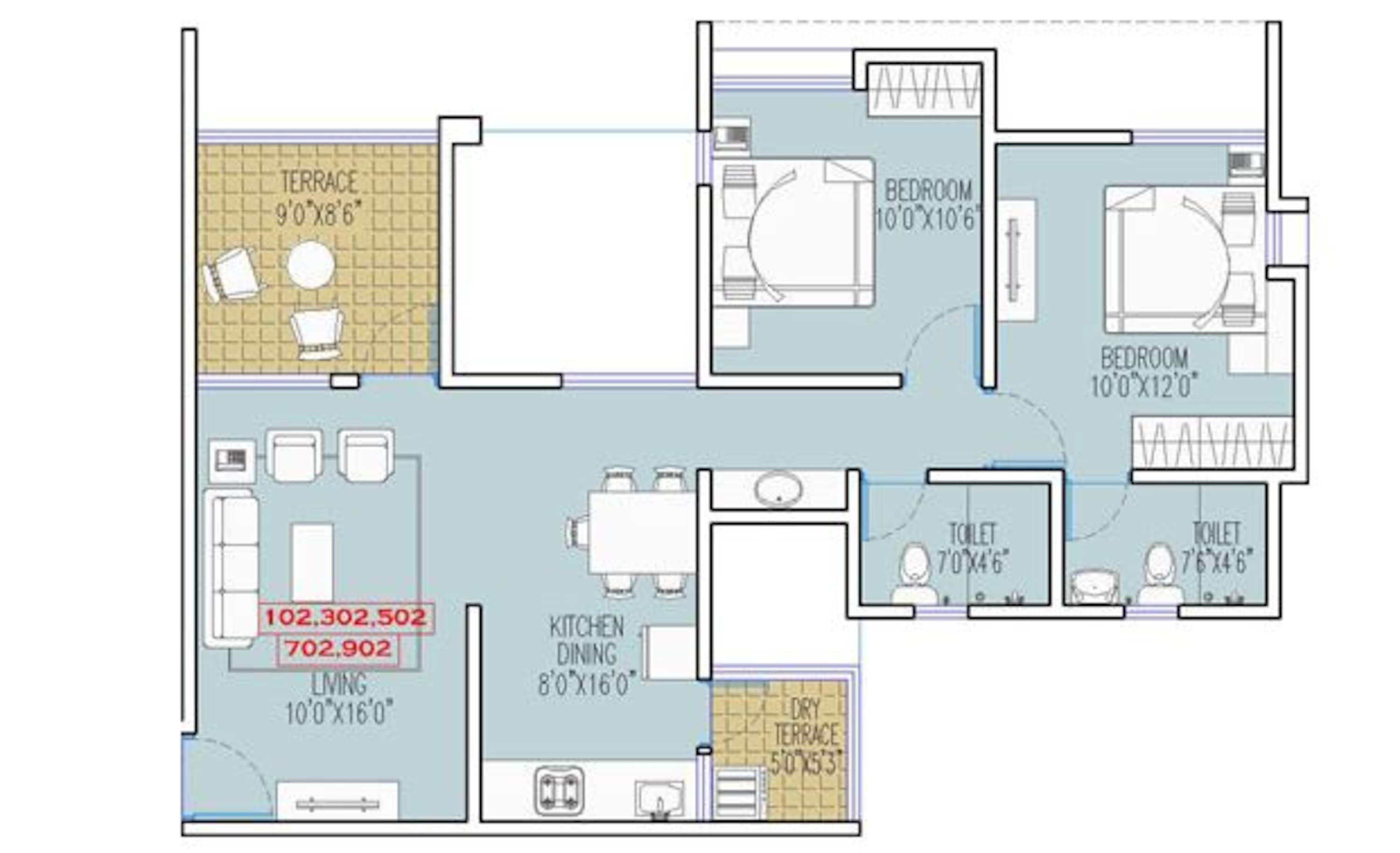
2 BHK 706 Sq.Ft. Apartment in Runwal Seagull Hadapsar of Pune. The unit has 2 bedrooms, 2 living areas, 2 bathrooms. Largest bedroom has a size of 12.00 Sq Ft X 10.00 Sq Ft while the next largest is 9.00 Sq Ft X 10.00 Sq Ft .

Inside Area Analysis of 2 BHK 706 Sq. Ft. Apartment in Runwal Seagull

Inside Area

Room/Private Areas

Length (Ft.) Breadth (Ft.) Area (Sq. Ft.)
Bedroom 12.00 10.00 120

Open Areas

Length (Ft.) Breadth (Ft.) Area (Sq. Ft.)
Terrace 10.00 6.00 60

Others

Length (Ft.) Breadth (Ft.) Area (Sq. Ft.)
Kitchen 8.00 8.00 64

Living/Common Areas

Length (Ft.) Breadth (Ft.) Area (Sq. Ft.)
Dining 14.00 8.83 123.67
Living 10.00 14.00 140

Room/Private Areas

Length (Ft.) Breadth (Ft.) Area (Sq. Ft.)
Bedroom 9.00 10.00 90

Runwal Seagull - Floor Plans

2 BHK
3 BHK
i *Disclaimer

This website is only for the purpose of providing information regarding real estate projects in different geographies. Any information which is being provided on this website is not an advertisement or a solicitation. The company has not verified the information and the compliances of the projects. Further, the company has not checked the RERA* registration status of the real estate projects listed herein. The company does not make any representation in regards to the compliances done against these projects. Please note that you should make yourself aware about the RERA* registration status of the listed real estate projects.

*Real Estate (regulation & development) act 2016.
Contact our Real Estate Experts
Enable updates through WhatsApp
Enter Your Mobile Number
Verify your Number

We have sent you message with 4 digit
verification code (OTP) on

Change
Did not receive the code?
  • Zero Brokerage

    100% Service, 0% Brokerage. We charge our customers nothing. Not today, not ever.

  • Lowest Price Guaranteed

    Highly unlikely, but if you find a lower price (from the developer) for the same home you want to buy, tell us and we will match it.

  • Full Service Support

    Our sales personnel are customer advocates and are accountable for every step in the process – from search & discovery to site visits, transactions, home loans and post-sales service.

Country/City