Squareyards Logo
DataIntelligence
Sell or Rent Property
Login
Compare
Share
  • Facebook
  • Linkedin
  • Twitter
  • Whatsapp
  257 Views
Listing Cover Image
Kitchen, aurus-la-casa 1 Bedroom 650 Sq.Ft. Apartment In Ulwe Sector 17 Navi Mumbai 8945746
Bedroom, aurus-la-casa 1 Bedroom 650 Sq.Ft. Apartment In Ulwe Sector 17 Navi Mumbai 8945746
undefined, aurus-la-casa 1 Bedroom 650 Sq.Ft. Apartment In Ulwe Sector 17 Navi Mumbai 8945746
Aurus La Casa Cover Image
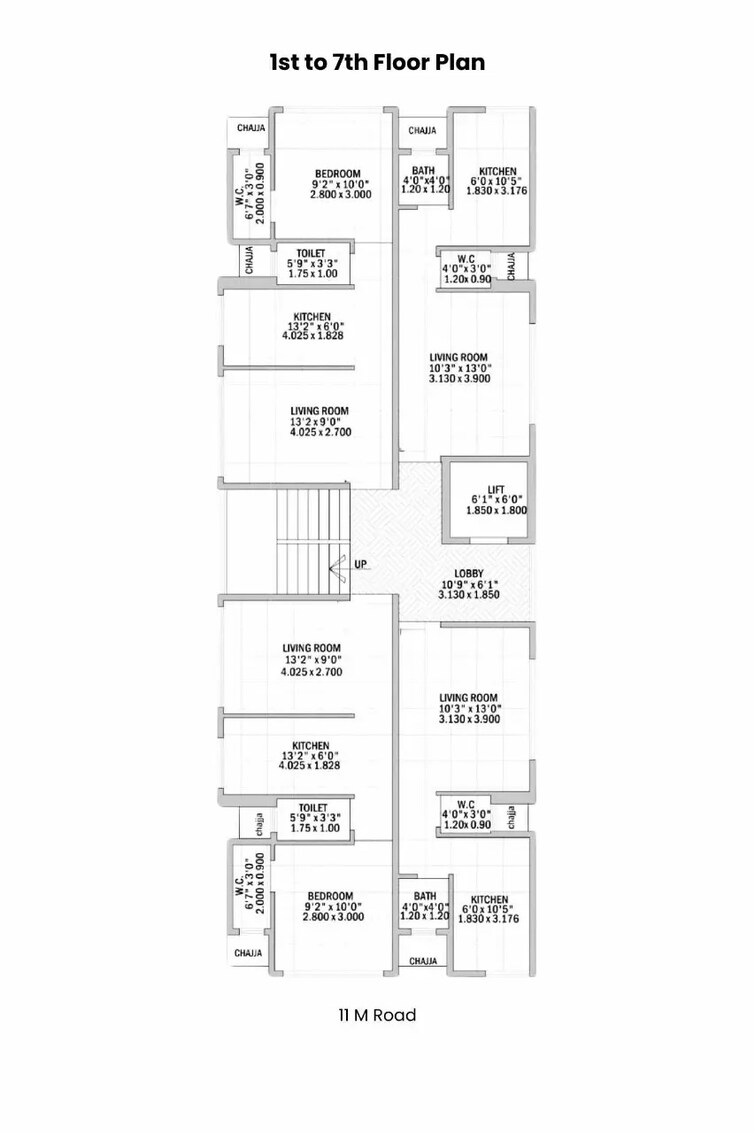
Aurus La Casa Floor Plans
Aurus La Casa Apartment Interiors 1
Aurus La Casa Apartment Interiors 2
Aurus La Casa Apartment Interiors 3
G
Gautam Gaikwad
  • 4 Photos
  • Map
  • Aurus La Casa
    1 Bedroom 650 Sq.Ft. Apartment in Ulwe Sector 17 Navi Mumbai
    Listing ID #8945746

    ₹ 13,500 Deposit Amount: 50,000
    • 1 Bedroom+ Extra Room
    • Semi-Furnished
    • 1 Bathroom
    • 650
      Sq. Ft
      • Sq.ft.
      • Sq.metre
      • Sq.yards
      (Built-up Area)
    • Road View
    • 5th Floor out of 7 Floors
    Never pay any token/meeting fee unless you’ve seen the property in person. Square Yards won’t be liable for any such payment made directly to owner/agent.
    Home Loan Icon
    Get a CIBIL Linked Home Loan Estimate
    • 50+ Banks, Max Loan Amount
    • Lowest ROI
    Home Interior Icon
    Interiors Package
    • Made to Order
    • Lowest Prices, 10-Year Warranty
    Valuation Icon
    Professional Valuation Report in ₹999
    • Market Value
    • Govt. Value, Rental Value
    Sell or Rent Property Icon
    Are you Looking to Advertise a Property
    • 10Mn Property Seekers
    • Transaction Every 15 Minutes
    • Overview
    • Furnishing
    • Amenities
    • Agent Overview
    • About Project
    • Price Insights
    • Reviews
    • Map and Landmarks
    • Hot Selling
    • Similar Properties
    • Nearby Localities

    Key Highlights

    Vastu compliant
    Safe & Secure Locality
    Affordable
    Newly Built
    Family

    This 1-bedroom, 1-bathroom apartment in Ulwe Sector 17, Navi Mumbai, offers a comfortable living experience for 13,500 per month.

    • Spanning 650 square feet on the 5th floor of the 7-story Aurus La Casa building, this semi-furnished unit boasts a road view from its balcony.
    • Residents will appreciate the convenience of 1 dedicated parking space and a property age of 2-4 years.
    • The building comes with a host of amenities designed for easy living, including kids play areas, a restaurant, a private gym, ATMs, and 24x7 security for peace of mind.
    • Theres also a pet area, a servant quarter, and a pre-school and day care center, making it a family-friendly choice.
    • With power backup, you wont have to worry about interruptions, and the restaurant on-site adds another layer of convenience.
    • This apartment provides a practical and amenity-rich lifestyle in a developing area of Navi Mumbai.
    Come see if this well-equipped apartment fits your needs for a pleasant rental home.

    Property Information

    Listing Type Rent
    Building Type Residential
    Property Type Apartment
    City Navi Mumbai
    Micro market Panvel
    Locality Ulwe Sector 17
    Project Aurus La Casa
    Area
    650
    Sq. Ft.
    • Sq.ft.
    • Sq.metre
    • Sq.yards
    Available From Immediately
    Number of Rooms 1
    Number of Bathroom 1
    Facing East
    View Road View
    Additional Rooms Extra Room
    Balcony Room-attached
    Power Back-up Available
    Flooring Select View
    Floor Number 5
    Total Floor Count 7
    Tower/Block Tower
    Power Back-up Available

    Furnishing Details

    Water Purifier
    1 Water Purifier
    Fan
    2 Fan
    Exhaust Fan
    1 Exhaust Fan
    Geyser
    1 Geyser
    Light
    1 Light
    Modular Kitchen
    1 Modular Kitchen

    Amenities

    Kids' Play Areas
    Kids' Play Areas
    Power Backup
    Power Backup
    Restaurant
    Restaurant
    24 x 7 Security
    24 x 7 Security
    Balcony
    Balcony
    Pre-School
    Pre-School
    Day Care Center
    Day Care Center
    Pet Area
    Pet Area
    ATM's
    ATM's
    Servant Quarter
    Servant Quarter
    Private Gym
    Private Gym
    Agent Overview
    G
    Gautam Gaikwad
    15+ Years of Experience
    80 Total Listings

    About Aurus La Casa, Navi Mumbai

    • Under Construction
    • Aurus Homes Developers
    • 28 Units
    • 0.08 Acres
    1 BHK , Apartment Studio
    1 Properties for Rent in Aurus La Casa
    • 1 BHK
    1 BHK + Extra Room 650 Sq.Ft. Apartment in Aurus La Casa
    1 BHK + Extra Room Apartment For Rent in Aurus La Casa
    Ulwe Sector 17, Navi Mumbai
    ₹ 13,500
    • 650 Sq. Ft.
    Gautam Gaikwad

    Price Insights for Aurus La Casa

    bell
    Stay updated — set an alert to track price trends and market movements for this property.
    Govt. Registrations in Aurus La Casa
    9 Sales Transactions Registered in Aurus La Casa From Nov 24 to Oct 25 at Avg. Price ₹ 14.9 K/Sq.Ft.
    Sales Transactions
    9
    Gross Sales Value
    ₹ 3 Cr
    Registered Rate
    ₹ 14,900 / Sq. Ft.
    Transaction Period Nov 24 to Oct 25
    Rental Supply in Aurus La Casa
    Configurations In Aurus La Casa In Ulwe Sector 17
    1 BHK - ₹ 13.6 K
    2 BHK - ₹ 29.9 K
    3 BHK - ₹ 55 K
    Comparable Project Pricing for Aurus La Casa
    Aurus La Casa avg. price is ₹ 11.4 K/Sq.Ft. compared to Panvel at ₹ 11.7 K/Sq.Ft.
    ₹ 15,400
    Lakhanis Grandeur
    ₹ 14,650
    Tricity Bliss
    ₹ 11,750
    Surya Vista Heights
    ₹ 11,650
    Panvel
    ₹ 11,400
    Aurus La Casa

    Recent Registered Transactions in Aurus La Casa

    Date Floor/Unit Tower/Wing Area Value Rate/Sq.Ft.
    2025-08-06 Floor 3, Unit 301 N/A 268 Sq.Ft. ₹ 40.03 L ₹14,937
    2025-07-07 Floor 2, Unit 201 N/A 268 Sq.Ft. ₹ 36.6 L ₹13,657
    2025-06-09 Floor 5, Unit 502 N/A 207 Sq.Ft. ₹ 31.75 L ₹15,338
    2025-05-09 Floor 6, Unit 602 N/A 207 Sq.Ft. ₹ 30 L ₹14,493
    2025-04-29 Floor 2, Unit 204 N/A 268 Sq.Ft. ₹ 40 L ₹14,925
    2025-04-11 Floor 3, Unit 304 N/A 268 Sq.Ft. ₹ 45.75 L ₹17,071
    2025-03-30 Floor 7, Unit 704 N/A 268 Sq.Ft. ₹ 35 L ₹13,060
    2025-03-28 Floor 7, Unit 701 N/A 268 Sq.Ft. ₹ 44 L ₹16,418
    2025-02-03 Floor 4, Unit 404 N/A 268 Sq.Ft. ₹ 40 L ₹14,925

    Ulwe Sector 17 Location Map and Landmarks

    map
    • Schools
    • Bus Stops
    • Hospitals
    • Clinics
    • Gym Fitness
    • College and Universities
    • Restaurants
    • Temples
    • Home Decors
    • Food Others
    Schools Near by Ulwe Sector 17
    Shri Chhatrapati Shivaji Vidyalaya Gavhan Kopar 0.88 KM
    Sau. Shakuntala Ramsheth Thakur School 1.17 KM
    Indian Model Junior College 1.19 KM
    Indian Model School Ulwe 1.20 KM
    Ramsheth Thakur Public School Ulwe 1.29 KM
    Smb International School 1.36 KM
    Mit Vishwashanti Gurukul School 1.50 KM
    Aadya Model School 1.52 KM
    Radcliffe School Ulwe 1.69 KM
    Radcliffe Group Of Schools - Ulwe | Cbse School & Jr. College In Ulwe 1.69 KM
    Bus Stops Near by Ulwe Sector 17
    Late J.a Bhagat Chowk Shalgar 0.42 KM
    Om Sai 0.63 KM
    Kasturi Heritage 0.91 KM
    Kharkopar Railway Station 1.02 KM
    Prabhat 1.23 KM
    Bamandongri Railway Station 1.24 KM
    Kamdhenu Oaklands 1.36 KM
    Gavhan Phata 1.42 KM
    Delta Tower No 1 1.43 KM
    Ulwe Node 1.45 KM
    Hospitals Near by Ulwe Sector 17
    Suman Children's Hospital 0.57 KM
    Q Hospitals 0.57 KM
    Unity Hospital 1.02 KM
    Shree Siddhivinayak Hospital 1.04 KM
    Pediatrician Om Sai Hospital 1.05 KM
    Innovision Eye Hospital & Laser Centre 1.25 KM
    Ulwe Superspeciality Hospital 1.33 KM
    Apex Hospital 1.34 KM
    Kmc Eye & Skin Hospital 1.34 KM
    Feenixx Hospital 1.43 KM
    Clinics Near by Ulwe Sector 17
    Dr Karande's Bone & Joint Care Multispeciality Hospital 0.22 KM
    Hari Om Clinic 0.23 KM
    Diagnohealth Path Lab | Diagnostic Centre In Ulwe | Blood Testing Centre In Ulwe 0.28 KM
    Anayna Health Care Center 0.33 KM
    Dr Vijay Karande 0.34 KM
    Siddha Physiotherapy & Rehabilitation Center 0.37 KM
    Metropolis Healthcare Ltd - Diagnostic Centre In Ulwe 0.41 KM
    Suburban Diagnostics - Pathology Lab In Ulwe (space Palace) 0.42 KM
    Pixie Kids And Family Dental Clinic 0.44 KM
    Elite Smiles Dental Care 0.46 KM
    Gym Fitness Near by Ulwe Sector 17
    Malang Dance Studio ( Dance 0.39 KM
    Akos Art And Fitness Studio 0.47 KM
    Mahesh Fitness Gym 0.60 KM
    Kamal Gym 1.00 KM
    Yoga Class (shakti Yog Sadhana) 1.32 KM
    Urban Gymnation 1.38 KM
    B3 Dance + Fitness Hub 1.40 KM
    Naach 1.45 KM
    Aei Fitness 1.46 KM
    Fitness And Lifestyle Coach - Anees Qureshi 1.51 KM
    College and Universities Near by Ulwe Sector 17
    Moru Narayan Mhatre Vidyalaya & Tukaram Narayan Gharat Jr. College 0.81 KM
    Disha Computer Institute Ulwe 1.52 KM
    Jio Institute 1.90 KM
    D Y Patil Deemed To Be University - Navi Mumbai 5.14 KM
    Ibsar 5.25 KM
    Asha International Institute Of Marine Technology 5.34 KM
    Hsna Maritime Education & Research 5.53 KM
    Art Palette - The Premier Art Institute 5.91 KM
    Sp Maritime Institute 6.04 KM
    B.p. Marine Hotel Management College 6.10 KM
    Restaurants Near by Ulwe Sector 17
    Bong Adda 4.98 KM
    Brew House Cafe 5.30 KM
    Birista - Biryanis & Kebabs 5.38 KM
    Sammy Sosa 5.40 KM
    The Vintage Cafe 5.40 KM
    Olde Bailey's 5.42 KM
    China Bistro 5.43 KM
    Shaollin Temple 5.44 KM
    Hitchki 5.45 KM
    Ashwith Family Dining Bar 5.53 KM
    Temples Near by Ulwe Sector 17
    Hanuman Mandir 0.93 KM
    Langeshwar Mandir 2.16 KM
    Sai Baba Mandir 5.39 KM
    Shaneshwar Shani Mandir Seawoods 5.48 KM
    Shivling Temple 5.68 KM
    Shri Vitthal Mandir 5.72 KM
    Shri Amruteshwar Mandir 5.73 KM
    Gaon Devi Mandir (phanaspada) 5.77 KM
    Gavdevi Mata Mandir (shahbaz) 5.88 KM
    Gaondevi Temple 6.08 KM
    Home Decors Near by Ulwe Sector 17
    Mr.diy 0.65 KM
    Sleepwell Gallery - Ulwe 1.20 KM
    Kurlon Mattress Store 1.37 KM
    Duroflex - Mattress 1.45 KM
    Arun Enterprises - Fenesta Building Systems 4.91 KM
    Arrivae Home Interior Design Centre - Cbd Belapur 5.12 KM
    Livspace - Interior Design Studio 5.39 KM
    Bed & Bedding Co. - (the Mattress Store) Nerul | Mattress Shop In Navi Mumbai 5.51 KM
    Pepperfry Furniture Shop-store In Belapur 5.52 KM
    Milan Furnishing 6.08 KM
    Food Others Near by Ulwe Sector 17
    Havmor Ice Cream 0.56 KM
    Ribbons And Balloons - The Cake Shop In Ulwe 0.68 KM
    Baskin Robbins - Ice Cream Desserts 1.43 KM
    Apsara Ice Creams 1.48 KM
    Suchali's Artisan Bakehouse - Belapur 4.95 KM
    Natural Ice Cream 5.01 KM
    Ribbons And Balloons - The Cake Shop In Seawoods 5.57 KM
    Frozen Bottle Seawoods 5.68 KM
    Merwans Cake Stop 5.75 KM
    Havmor Ice Cream Nerul Sector 21 6.93 KM
    Please Select the destination to calculate the travel time.

    Hot Selling Projects in Ulwe Sector 17, Navi mumbai

    Suman Apartment Ulwe
    Suman Apartment Ulwe Ulwe Sector 17, Navi Mumbai
    Price On Request
    2 Beds Flats
    875 Sq. Ft. to 875 Sq. Ft.
    Krishna Villa CHS
    Krishna Villa CHS Ulwe Sector 17, Navi Mumbai
    Price On Request
    1 Bed Flats
    610 Sq. Ft. to 610 Sq. Ft.
    Brij Bhoomi Heights
    Brij Bhoomi Heights Ulwe Sector 17, Navi Mumbai
    Price On Request
    2 Beds Flats
    1065 Sq. Ft. to 1065 Sq. Ft.
    National Marvel
    National Marvel Ulwe Sector 17, Navi Mumbai
    ₹ 68.25 Lac to 91.65 Lac
    2, 3 BHK Flats
    1050 Sq. Ft. to 1410 Sq. Ft.
    Bhaveshwar Infinity
    Bhaveshwar Infinity Ulwe Sector 17, Navi Mumbai
    ₹ 45.48 Lac to 68.81 Lac
    2, 3 BHK Retail Shop, Flats
    530 Sq. Ft. to 829 Sq. Ft.
    Ashiana Elite Residency
    Ashiana Elite Residency Ulwe Sector 17, Navi Mumbai
    Price On Request
    1 Bed Flats
    603 Sq. Ft. to 603 Sq. Ft.
    GK Mangalmurti
    GK Mangalmurti Ulwe Sector 17, Navi Mumbai
    ₹ 53.52 Lac to 86.26 Lac
    1, 2 BHK Flats
    394 Sq. Ft. to 635 Sq. Ft.
    Aurus La Casa
    Aurus La Casa Ulwe Sector 17, Navi Mumbai
    ₹ 37.50 Lac to 49.80 Lac
    1 BHK Studio, Flats
    270 Sq. Ft. to 371 Sq. Ft.
    Soham Shakti Apartment
    Soham Shakti Apartment Ulwe Sector 17, Navi Mumbai
    Price On Request
    1 Bed Flats
    325 Sq. Ft. to 325 Sq. Ft.
    Shree Darshan CHS
    Shree Darshan CHS Ulwe Sector 17, Navi Mumbai
    Price On Request
    1 Bed Flats
    313 Sq. Ft. to 313 Sq. Ft.

    Similar Properties in Ulwe Sector 17, Navi Mumbai

    Nearby Comparable
    • 12
    • Video
    1 BHK + Extra Room Apartment For Rent in Gajora The Palm Oak
    Gajora The Palm Oak
    1 BHK Flat For Rent in Ulwe Sector 16, Navi Mumbai
    ₹ 15,000
    • Semi-Furnished
    • 650 Sq.Ft. (Built-up)
    Extra Space,Same Budget Closeby
    • 13
    • Video
    1 BHK Apartment For Rent in Shree ND Garden
    Nearby Comparable
    • 4
    • Video
    1 BHK Apartment For Rent in Dream Sky
    Dream Sky
    1 BHK Flat For Rent in Ulwe Sector 19, Navi Mumbai
    ₹ 14,000
    • Semi-Furnished
    • 715 Sq.Ft. (Saleable)
    One-Stop Solution for all Real Estate Services Professional, white-glove property services at affordable rates
    Insights & Tools
    Property Rates & Price Trends

    Market rates, data analytics & registered transactions of top project & localities

    Property Rates & Price Trends
    Explore Now
    Property Rates Heatmap

    An Interactive Map to help you understand a City’s Real Estate

    Property Rates Heatmap
    Explore Now
    Valuation Report

    Get an instant & comprehensive Valuation Report of any property - downloadable in PDF

    Valuation Report
    Explore Now
    Projects Reviews & Ratings

    Don't just take our word for it; See what other residents, tenants & agents say about a project or locality

    Reviews and Ratings
    Explore Now
    Around This Property
    Country/City