Squareyards Logo
Blogs DataIntelligence
Sell or Rent Property
Login
  • Facebook
  • Linkedin
  • Twitter
  • Whatsapp
siddha suburbia apartment 2 bhk 880sqft 20221214161257
  • siddha suburbia project amenities features1
  • siddha suburbia project amenities features5
  • siddha suburbia project apartment interiors1
  • siddha suburbia project tower view1
  • siddha suburbia project location image1
  • siddha suburbia project master plan image1
  • siddha suburbia project master plan image10
  • 18 Photos

2 BHK 880 Sq. Ft. Apartment in Siddha Suburbia

49.37 Lac
Status: Ready to Move
  •   6278 Views
  •   10 Enquiries
  • 2 BHK-3 BHK-4 BHK-5 BHK Apartment, Villa from 880 Sq. Ft. to 2071 Sq. Ft. (Saleable)
  • 1 Living Area(s) 1 Kitchen(s) 2 Bath Rooms(s)
  • 1 Balconies (32 Sq. Ft.)
*Disclaimer
The carpet area & built-up area shown above are based on approximate calculations performed on the floor plans obtained from publicly available sources. The accuracy and completeness of the information is not guaranteed. In providing this information, Square Yards does not assume any responsibility or liability.
  • Saleable Area - 880 Sq. Ft.
  • SquareYards RERA Reg.HIRA/A/NOR/2018/000035
  • Project RERA Reg. HIRA/P/SOU/2019/000743,HIRA/P/SOU/2018/000119,WBRERA/P/SOU/2023/000266,WBRERA/P/SOU/2023/000264
tn siddha suburbia project flagship1

South Kolkata, Kolkata

49.37 Lac to 1.15 Cr
Ready to Move

About Siddha Suburbia - 2 BHK 880 Sq. Ft. Apartment

2 BHK 880 Sq.Ft.Apartment in Siddha Suburbia Narendrapur of Kolkata has an approximate price of Rs. 2800.0 per sq ft. It has approximately 64% carpet area as a % of saleable area exculding walls, balconies and open spaces. Builtup area including balconies and internal walls is approximately 68% of total area. The unit has 2 bedrooms, 1 living areas, 2 bathrooms and 1 balconies. Largest bedroom has a size of 10.00 Sq Ft X 11.00 Sq Ft while the next largest is 10.00 Sq Ft X 12.00 Sq Ft .

Inside Area Analysis of 2 BHK 880 Sq. Ft. Apartment in Siddha Suburbia

Inside Area

Room/Private Areas

Length (Ft.) Breadth (Ft.) Area (Sq. Ft.)
Bedroom 10.00 11.00 110

Open Areas

Length (Ft.) Breadth (Ft.) Area (Sq. Ft.)
Attached Balcony 4.33 - 32

Others

Length (Ft.) Breadth (Ft.) Area (Sq. Ft.)
Kitchen 8.00 6.00 48

Living/Common Areas

Length (Ft.) Breadth (Ft.) Area (Sq. Ft.)
Passage - - 33
Living+Dining 11.00 15.75 173.25

Room/Private Areas

Length (Ft.) Breadth (Ft.) Area (Sq. Ft.)
Bedroom 10.00 12.00 120

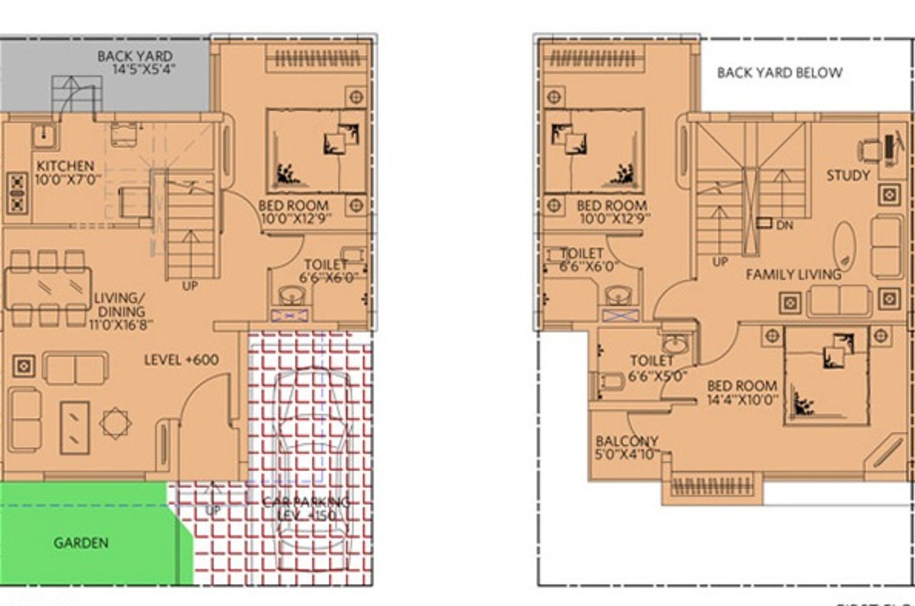
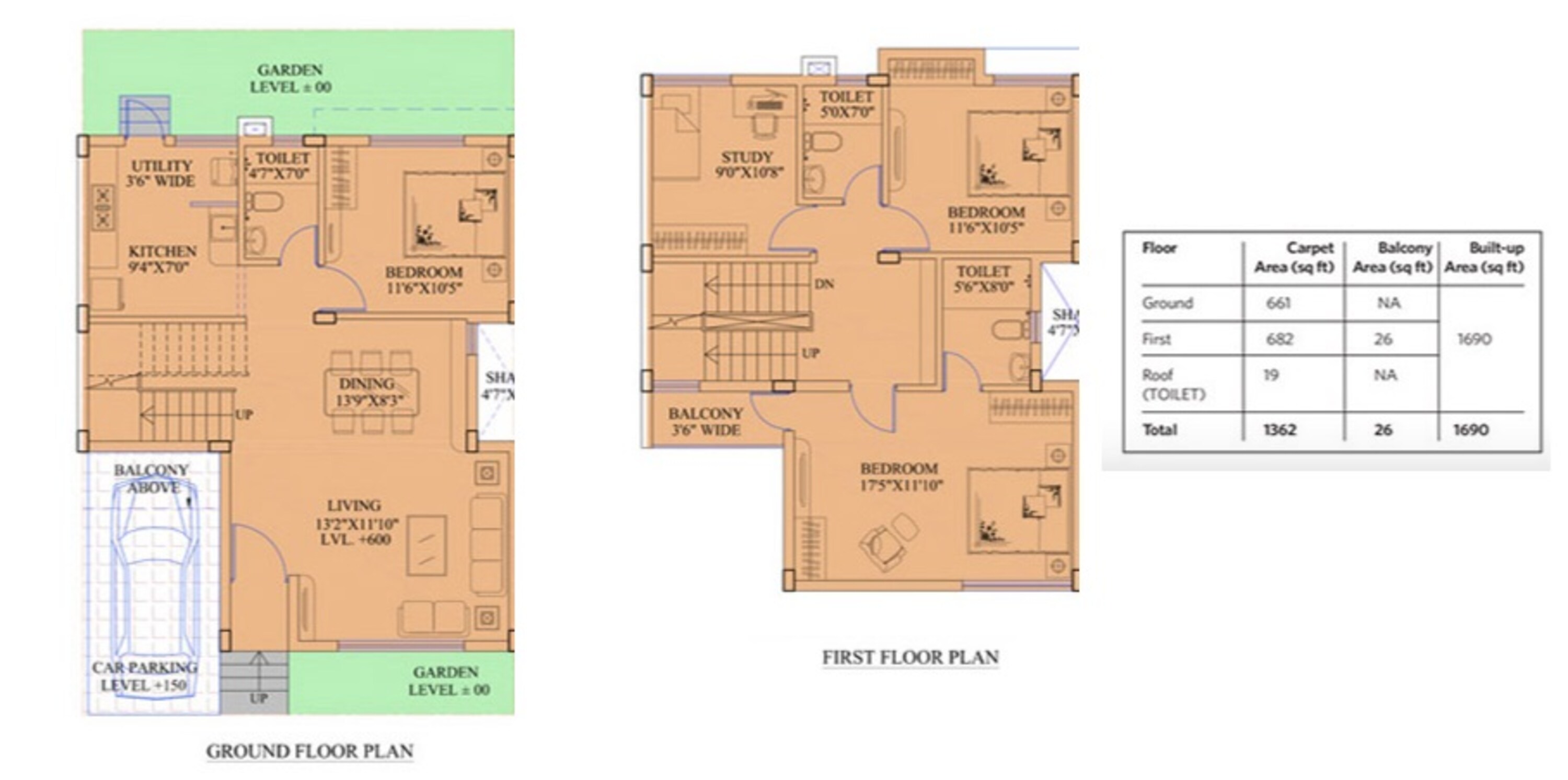
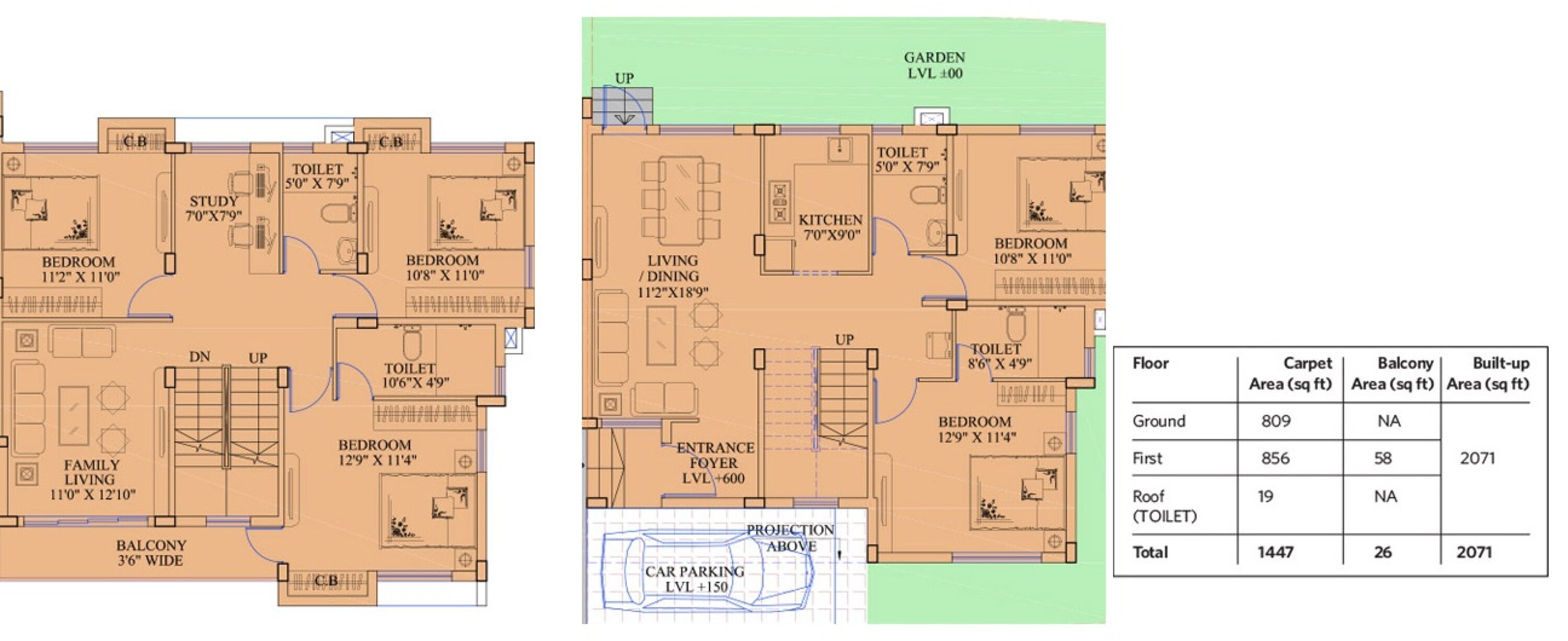
Siddha Suburbia - Floor Plans

2 BHK
3 BHK
4 BHK
5 BHK
i *Disclaimer

This website is only for the purpose of providing information regarding real estate projects in different geographies. Any information which is being provided on this website is not an advertisement or a solicitation. The company has not verified the information and the compliances of the projects. Further, the company has not checked the RERA* registration status of the real estate projects listed herein. The company does not make any representation in regards to the compliances done against these projects. Please note that you should make yourself aware about the RERA* registration status of the listed real estate projects.

*Real Estate (regulation & development) act 2016.
Contact our Real Estate Experts
Enable updates through WhatsApp
Enter Your Mobile Number
Verify your Number

We have sent you message with 4 digit
verification code (OTP) on

Change
Did not receive the code?
  • Zero Brokerage

    100% Service, 0% Brokerage. We charge our customers nothing. Not today, not ever.

  • Lowest Price Guaranteed

    Highly unlikely, but if you find a lower price (from the developer) for the same home you want to buy, tell us and we will match it.

  • Full Service Support

    Our sales personnel are customer advocates and are accountable for every step in the process – from search & discovery to site visits, transactions, home loans and post-sales service.

Country/City