Squareyards Logo
Blogs DataIntelligence
New Advertise with us Sell or Rent Property
Login
  • Facebook
  • Linkedin
  • Twitter
  • Whatsapp
puranik aldea espanola apartment 3bhk 972sqft 1
  • puranik aldea espanola location image1
  • puranik aldea espanola master plan image1
  • puranik aldea espanola project amenities features1
  • puranik aldea espanola project apartment interiors1
  • 5 Photos

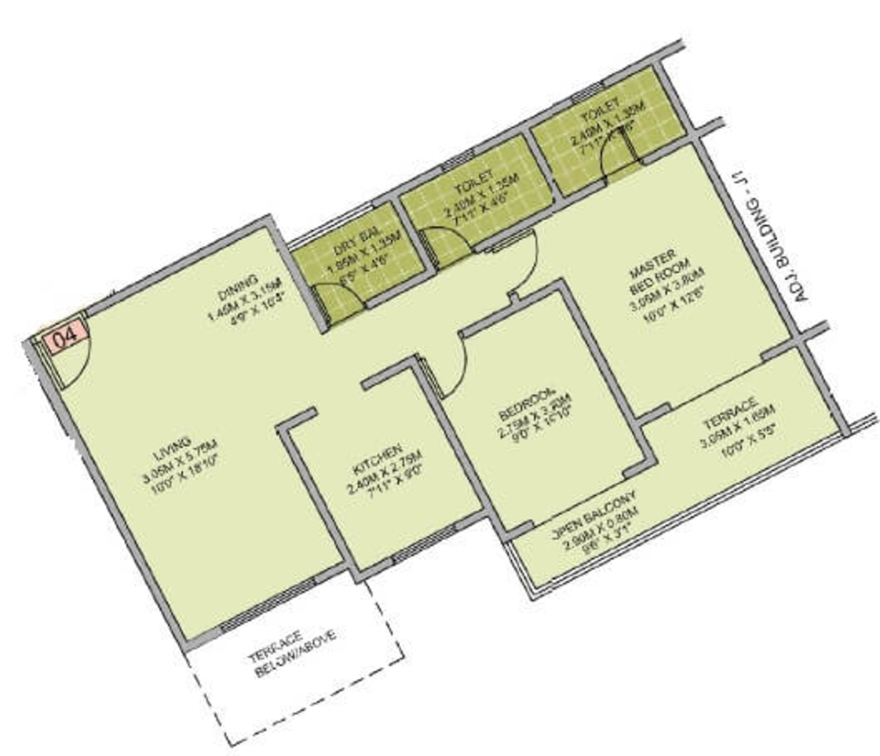
3 BHK 972 Sq. Ft. Apartment in Puranik Aldea Espanola

80.97 Lac
₹ 8330 Per Sq. Ft Onwards
Status: Ready to Move
  •   5775 Views
  •   5 Enquiries
  • 1 BHK-2 BHK-3 BHK Apartment from 610 Sq. Ft. to 1425 Sq. Ft. (Saleable)
  • 3 Living Area(s) 1 Kitchen(s) 3 Bath Rooms(s)
  • 1 Balconies (44 Sq. Ft.)
*Disclaimer
The carpet area & built-up area shown above are based on approximate calculations performed on the floor plans obtained from publicly available sources. The accuracy and completeness of the information is not guaranteed. In providing this information, Square Yards does not assume any responsibility or liability.
  • Saleable Area - 972 Sq. Ft.
  • SquareYards RERA Reg.A51800000454
  • Project RERA Reg. P52100004340
tn puranik aldea espanola flagshipimg1

Pune West, Pune

50.81 Lac to 1.19 Cr ₹ 8330.0 Per Sq. Ft Onwards
Ready to Move

About Puranik Aldea Espanola - 3 BHK 972 Sq. Ft. Apartment

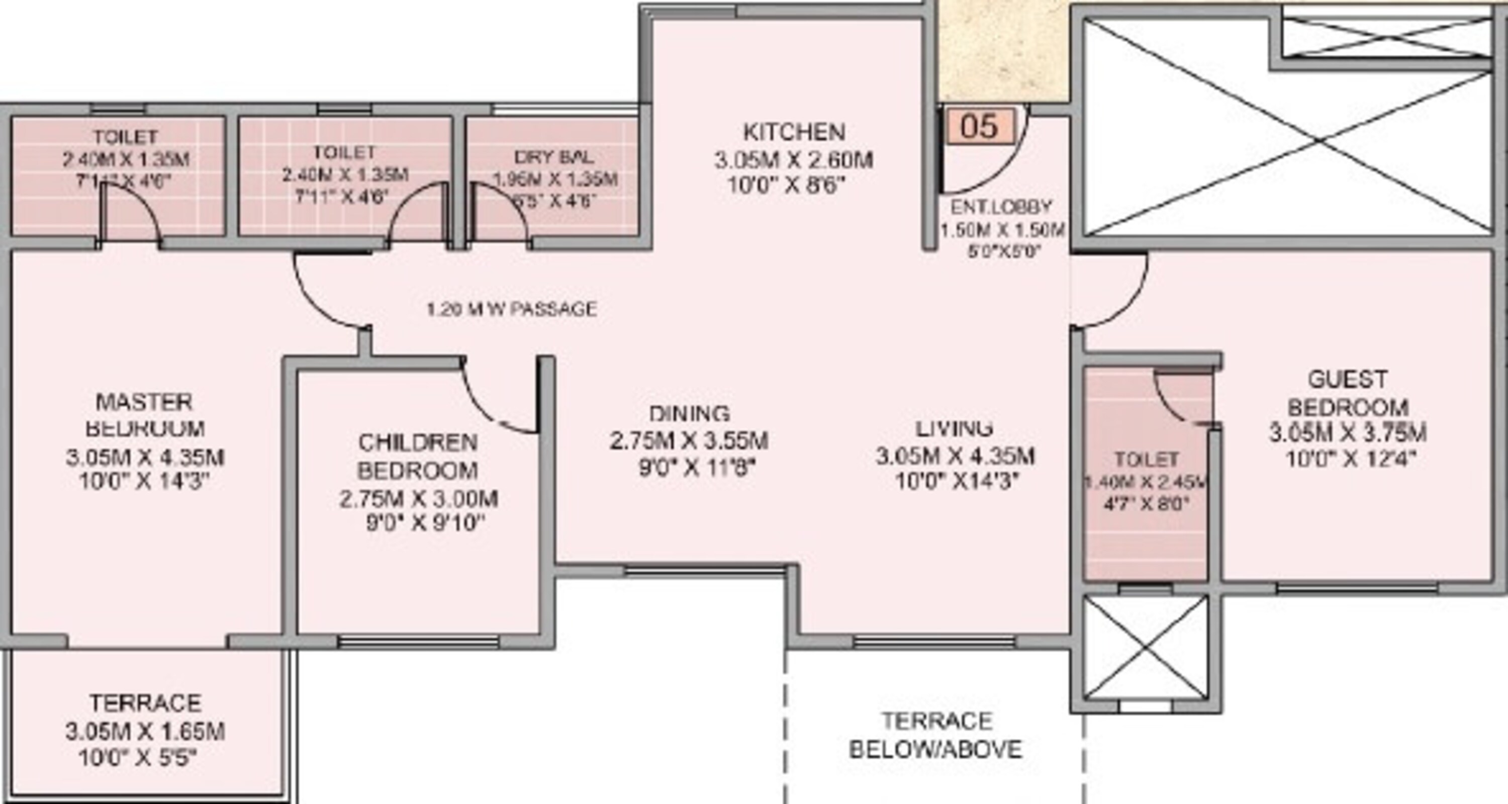
3 BHK 972 Sq.Ft. Apartment in Puranik Aldea Espanola Mahalunge of Pune has an approximate price of Rs. 8330.0 per sq ft. The unit has 3 bedrooms, 3 living areas, 3 bathrooms and 1 balconies. Largest bedroom has a size of 10.00 Sq Ft X 14.25 Sq Ft while the next largest is 10.00 Sq Ft X 12.33 Sq Ft .

Inside Area Analysis of 3 BHK 972 Sq. Ft. Apartment in Puranik Aldea Espanola

Inside Area

Others

Length (Ft.) Breadth (Ft.) Area (Sq. Ft.)
Kitchen 10.00 8.50 85

Living/Common Areas

Length (Ft.) Breadth (Ft.) Area (Sq. Ft.)
Passage - - 20
Dining 9.00 11.50 103.5
Living 10.00 14.25 142.5
Lobby 5.00 5.00 25

Room/Private Areas

Length (Ft.) Breadth (Ft.) Area (Sq. Ft.)
Bedroom 9.00 9.83 88.5
Bedroom 10.00 12.33 123.33
Master Bedroom 10.00 14.25 142.5

Open Areas

Length (Ft.) Breadth (Ft.) Area (Sq. Ft.)
Dry Balcony 8.42 5.33 44.89
Terrace 10.00 5.42 54.17

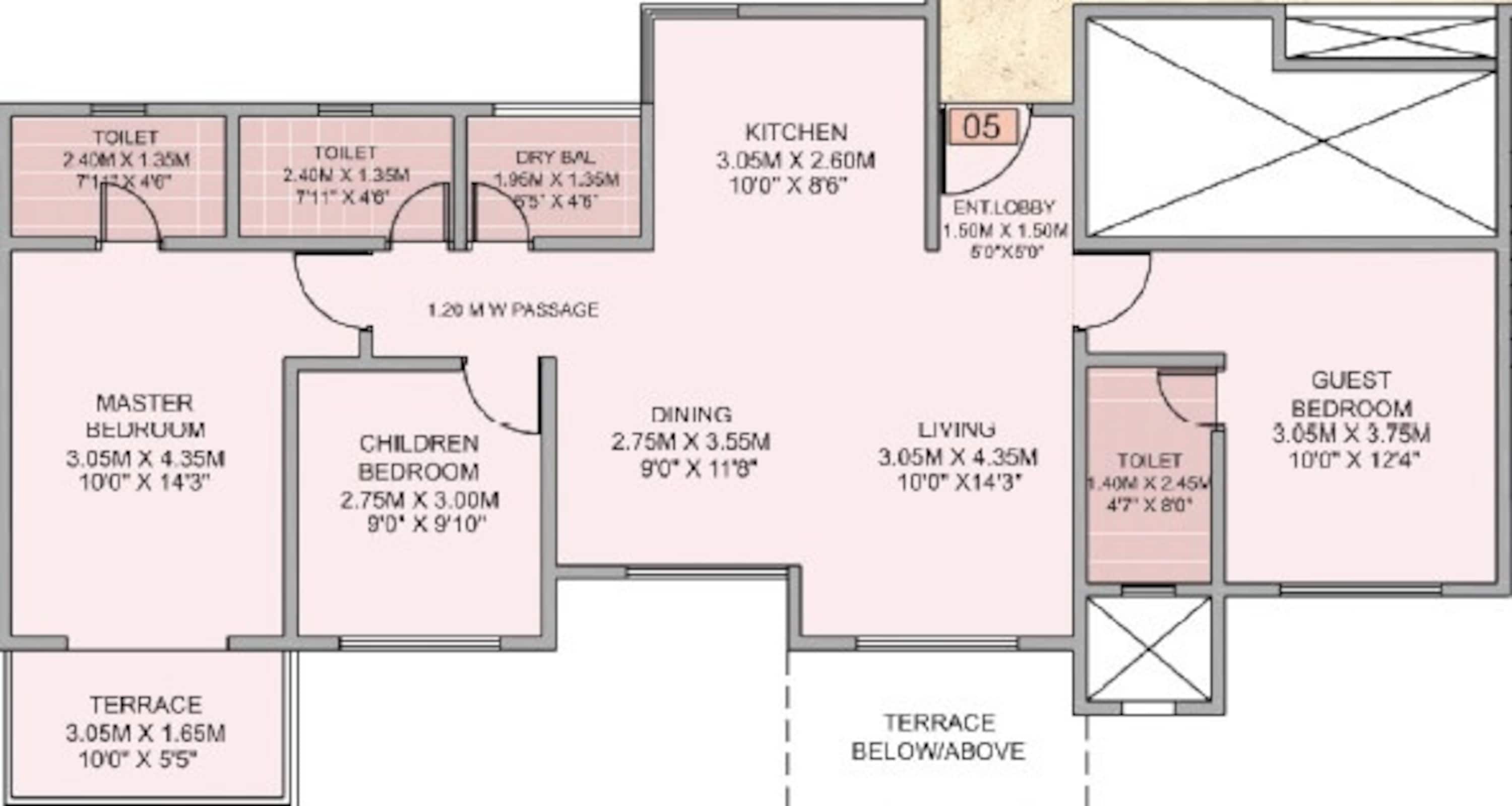
Puranik Aldea Espanola - Floor Plans

1 BHK
2 BHK
3 BHK
i *Disclaimer

This website is only for the purpose of providing information regarding real estate projects in different geographies. Any information which is being provided on this website is not an advertisement or a solicitation. The company has not verified the information and the compliances of the projects. Further, the company has not checked the RERA* registration status of the real estate projects listed herein. The company does not make any representation in regards to the compliances done against these projects. Please note that you should make yourself aware about the RERA* registration status of the listed real estate projects.

*Real Estate (regulation & development) act 2016.
Contact our Real Estate Experts
Enable updates through WhatsApp
Enter Your Mobile Number
Verify your Number

We have sent you message with 4 digit
verification code (OTP) on

Change
Did not receive the code?
  • Zero Brokerage

    100% Service, 0% Brokerage. We charge our customers nothing. Not today, not ever.

  • Lowest Price Guaranteed

    Highly unlikely, but if you find a lower price (from the developer) for the same home you want to buy, tell us and we will match it.

  • Full Service Support

    Our sales personnel are customer advocates and are accountable for every step in the process – from search & discovery to site visits, transactions, home loans and post-sales service.

Country/City