Squareyards Logo
Blogs DataIntelligence
New Advertise with us Sell or Rent Property
Login
  • Facebook
  • Linkedin
  • Twitter
  • Whatsapp
runwal snehanjali apartment 2bhk 961sqft1
  • 1 Photos

2 BHK 961 Sq. Ft. Apartment in Runwal Snehanjali

62.47 Lac
Status: Well Occupied
  •   5934 Views
  •   10 Enquiries
  • 2 BHK-3 BHK Apartment from 961 Sq. Ft. to 1196 Sq. Ft. (Saleable)
  • 2 Living Area(s) 1 Kitchen(s) 2 Bath Rooms(s)
  • 1 Balconies (37 Sq. Ft.)
*Disclaimer
The carpet area & built-up area shown above are based on approximate calculations performed on the floor plans obtained from publicly available sources. The accuracy and completeness of the information is not guaranteed. In providing this information, Square Yards does not assume any responsibility or liability.
  • Saleable Area - 961 Sq. Ft.
tn runwal snehanjali flagshipimg1

Pune West, Pune

62.47 Lac to 77.74 Lac
Well Occupied

About Runwal Snehanjali - 2 BHK 961 Sq. Ft. Apartment

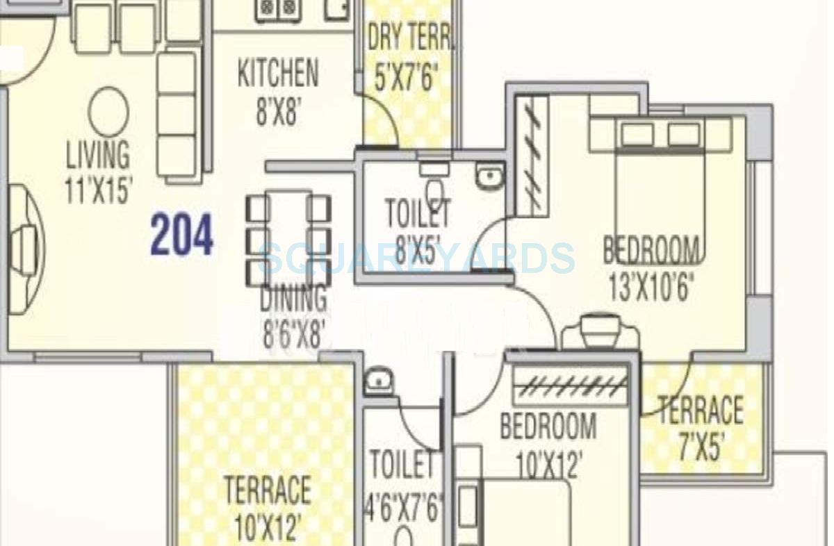
2 BHK 961 Sq.Ft. Apartment in Runwal Snehanjali Baner of Pune. The unit has 2 bedrooms, 2 living areas, 2 bathrooms and 1 balconies. Largest bedroom has a size of 13.00 Sq Ft X 10.50 Sq Ft while the next largest is 10.00 Sq Ft X 12.00 Sq Ft .

Inside Area Analysis of 2 BHK 961 Sq. Ft. Apartment in Runwal Snehanjali

Inside Area

Room/Private Areas

Length (Ft.) Breadth (Ft.) Area (Sq. Ft.)
Bedroom 10.00 12.00 120
Bedroom 13.00 10.50 136.5

Open Areas

Length (Ft.) Breadth (Ft.) Area (Sq. Ft.)
Dry Balcony 5.00 7.50 37.5
Terrace 7.00 5.00 35
Terrace 10.00 12.00 120

Others

Length (Ft.) Breadth (Ft.) Area (Sq. Ft.)
Kitchen 8.00 8.00 64

Living/Common Areas

Length (Ft.) Breadth (Ft.) Area (Sq. Ft.)
Passage - - 30
Dining 8.50 8.00 68
Living 11.00 15.00 165

Runwal Snehanjali - Floor Plans

2 BHK
3 BHK
i *Disclaimer

This website is only for the purpose of providing information regarding real estate projects in different geographies. Any information which is being provided on this website is not an advertisement or a solicitation. The company has not verified the information and the compliances of the projects. Further, the company has not checked the RERA* registration status of the real estate projects listed herein. The company does not make any representation in regards to the compliances done against these projects. Please note that you should make yourself aware about the RERA* registration status of the listed real estate projects.

*Real Estate (regulation & development) act 2016.
Contact our Real Estate Experts
Enable updates through WhatsApp
Enter Your Mobile Number
Verify your Number

We have sent you message with 4 digit
verification code (OTP) on

Change
Did not receive the code?
  • Zero Brokerage

    100% Service, 0% Brokerage. We charge our customers nothing. Not today, not ever.

  • Lowest Price Guaranteed

    Highly unlikely, but if you find a lower price (from the developer) for the same home you want to buy, tell us and we will match it.

  • Full Service Support

    Our sales personnel are customer advocates and are accountable for every step in the process – from search & discovery to site visits, transactions, home loans and post-sales service.

Country/City