Squareyards Logo
DataIntelligence
Sell or Rent Property
Login
Compare
Share
  • Facebook
  • Linkedin
  • Twitter
  • Whatsapp
  139 Views
Listing Cover Image
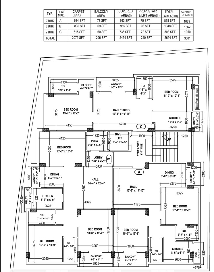
Floor Plan, nager bazar 3 Bedroom 1362 Sq.Ft. Apartment In Nager Bazar Kolkata 8650408
Exterior View, nager bazar 3 Bedroom 1362 Sq.Ft. Apartment In Nager Bazar Kolkata 8650408
Exterior View, nager bazar 3 Bedroom 1362 Sq.Ft. Apartment In Nager Bazar Kolkata 8650408
E
EXACT MATCH
  • 4 Photos
  • Map
  • Gokul Apartment
    3 Bedroom 1362 Sq.Ft. Apartment in Nager Bazar Kolkata
    Listing ID #8650408

    ₹ 75 L
    • 3 Bedrooms + Servant Room
    • Unfurnished
    • 2 Bathroom
    • 1362
      Sq. Ft
      • Sq.ft.
      • Sq.metre
      • Sq.yards
      (Built-up Area)
    • Road View
    • 3rd Floor out of 7 Floors
    Home Loan Icon
    Get a CIBIL Linked Home Loan Estimate
    • 50+ Banks, Max Loan Amount
    • Lowest ROI
    Home Interior Icon
    Interiors Package
    • Made to Order
    • Lowest Prices, 10-Year Warranty
    Valuation Icon
    Professional Valuation Report in ₹999
    • Market Value
    • Govt. Value, Rental Value
    Sell or Rent Property Icon
    Are you Looking to Advertise a Property
    • 10Mn Property Seekers
    • Transaction Every 15 Minutes
    • Overview
    • Amenities
    • Agent Overview
    • Reviews
    • Map and Landmarks
    • Hot Selling
    • Similar Properties
    • Nearby Localities

    Key Highlights

    Safe & Secure Locality
    Affordable
    Well ventilated
    Prime Location

    Id Ap13-1175 Residential Flat For Sale In Gokul Apartment At Nager Bazar Maharaja Restaurant Nagerbazar Main Road Facing Under Construction Position Date 2025 End 1362 Sqft 2bedroom 2washroom 1balcony Parking 15 Lacs G+7 Building Multiple Floor Available Price 75lac

    Property Information

    Listing Type Sale
    Building Type Residential
    Property Type Apartment
    City Kolkata
    Micro market North Kolkata
    Locality Nager Bazar
    Price 75 L
    Area
    1362
    Sq. Ft.
    • Sq.ft.
    • Sq.metre
    • Sq.yards
    Number of Rooms 3
    Number of Bathroom 2
    View Road View
    Additional Rooms Servant Room
    Balcony Individual
    Flooring Marble
    Floor Number 3
    Total Floor Count 7
    Tower/Block 4
    Unit No 4

    Amenities

    Attached Market
    Attached Market
    24 x 7 Security
    24 x 7 Security
    Balcony
    Balcony
    ATM's
    ATM's
    24 Hours Concierge
    24 Hours Concierge
    Balcony or Terrace
    Balcony or Terrace
    Agent Overview
    E
    Exact Match
    12 Years of Experience
    261 Total Listings

    Nager Bazar Location Map and Landmarks

    map
    Please Select the destination to calculate the travel time.

    Hot Selling Projects in Nager Bazar, Kolkata

    Govinda Apartment
    Govinda Apartment Nager Bazar, Kolkata
    Price On Request
    I Space
    I Space Nager Bazar, Kolkata
    Price On Request
    Sanjana Residency
    Sanjana Residency Nager Bazar, Kolkata
    Price On Request
    Sanjana Mansion
    Sanjana Mansion Nager Bazar, Kolkata
    Price On Request
    Shovona Mansion
    Shovona Mansion Nager Bazar, Kolkata
    Price On Request
    Adimax Skypark
    Adimax Skypark Nager Bazar, Kolkata
    Price On Request
    Aatreyee Indrakshinee
    Aatreyee Indrakshinee Nager Bazar, Kolkata
    Price On Request
    DC Subarna Bhoomi
    DC Subarna Bhoomi Nager Bazar, Kolkata
    Price On Request
    Gobinda Apartment
    Gobinda Apartment Nager Bazar, Kolkata
    Price On Request

    Similar Properties in Nager Bazar, Kolkata

    Nearby Comparable
    • 6
    • Video
    3 BHK Builder Floor For Sale in Baguihati
    3 BHK Builder Floor For Sale in Baguihati, Kolkata
    ₹ 70 L
    • Under Construction
    • 1250 Sq.Ft. (Built-up)
    Extra Space,Same Budget Closeby
    • 6
    • Video
    4 BHK + Extra Room Apartment For Sale in Teghoria
    4 BHK Flat For Sale in Teghoria, Kolkata
    ₹ 82 L
    • Ready To Move
    • 1600 Sq.Ft. (Built-up)
    Similar Size, Better Price in vicinity
    • 9
    • Video
    3 BHK + Pooja Room Apartment For Sale in Geetanjali Apartments
    Geetanjali Apartments
    3 BHK Flat For Sale in Rajarhat, Kolkata
    ₹ 60 L
    • Ready To Move
    • 1250 Sq.Ft. (Saleable)
    More Area, Nearby Upgrade
    • 6
    • Video
    3 BHK + Servant Room Apartment For Sale in Residential Project
    3 BHK Flat For Sale in Bangur Avenue, Kolkata
    ₹ 90 L
    • Ready To Move
    • 1650 Sq.Ft. (Built-up)
    Better Brand and Lifestyle Nearby
    • 5
    • Video
    3 BHK + Servant Room Apartment For Sale in Lake Town
    3 BHK Flat For Sale in Lake Town, Kolkata
    ₹ 90 L
    • Under Construction
    • 1400 Sq.Ft. (Built-up)
    Lesser Priced and Spacious Pick
    • 9
    • Video
    3 BHK + Study Room Apartment For Sale in Kristi Villa
    Kristi Villa
    3 BHK Flat For Sale in Chinar Park, Kolkata
    ₹ 54 L
    • Ready To Move
    • 1350 Sq.Ft. (Built-up)
    Nearby Comparable
    • 14
    • Video
    3 BHK + Study Room Apartment For Sale in Kristi Villa
    Kristi Villa
    3 BHK Flat For Sale in Chinar Park, Kolkata
    ₹ 75 L
    • Ready To Move
    • 1230 Sq.Ft. (Built-up)
    Extra Space,Same Budget Closeby
    • 9
    • Video
    3 BHK Apartment For Sale in Dum Dum
    3 BHK Flat For Sale in Dum Dum, Kolkata
    ₹ 69.70 L
    • Ready To Move
    • 1549 Sq.Ft. (Built-up)
    Similar Size, Better Price in vicinity
    • 17
    • Video
    3 BHK Apartment For Sale in Utthan Apartments
    Utthan Apartments
    3 BHK Flat For Sale in Chinar Park, Kolkata
    ₹ 65 L
    • Ready To Move
    • 1335 Sq.Ft. (Saleable)
    More Area, Nearby Upgrade
    • 2
    • Video
    4 BHK Apartment For Sale in Green Woods Premium
    Green Woods Premium
    4 BHK Flat For Sale in Kaikhali, Kolkata
    ₹ 90 L
    • Ready To Move
    • 1701 Sq.Ft. (Built-up)
    Better Brand and Lifestyle Nearby
    • 6
    • Video
    3 BHK Apartment For Sale in Stand Alone Apartment
    3 BHK Flat For Sale in Dum Dum Road, Kolkata
    ₹ 90 L
    • Ready To Move
    • 1419 Sq.Ft. (Built-up)
    Nearby Comparable
    • 1
    • Video
    3 BHK Builder Floor For Sale in Kaikhali
    3 BHK Builder Floor For Sale in Kaikhali, Kolkata
    ₹ 75 L
    • Under Construction
    • 1250 Sq.Ft. (Built-up)
    Similar Size, Better Price in vicinity
    • 12
    • Video
    3 BHK + Extra Room Apartment For Sale in Kristi Villa
    Kristi Villa
    3 BHK Flat For Sale in Chinar Park, Kolkata
    ₹ 65 L
    • Ready To Move
    • 1390 Sq.Ft. (Built-up)
    Better Brand and Lifestyle Nearby
    • 2
    • Video
    3 BHK Builder Floor For Sale in Teghoria
    3 BHK Builder Floor For Sale in Teghoria, Kolkata
    ₹ 92 L
    • Under Construction
    • 1500 Sq.Ft. (Built-up)
    Nearby Comparable
    • 6
    • Video
    3 BHK + Servant Room Apartment For Sale in Lake Town
    3 BHK Flat For Sale in Lake Town, Kolkata
    ₹ 78 L
    • Ready To Move
    • 1250 Sq.Ft. (Built-up)
    Similar Size, Better Price in vicinity
    • 14
    • Video
    3 BHK + Servant Room Apartment For Sale in Kundan Plaza
    Kundan Plaza
    3 BHK Flat For Sale in Chinar Park, Kolkata
    ₹ 65 L
    • Ready To Move
    • 1440 Sq.Ft. (Built-up)
    Similar Size, Better Price in vicinity
    • 12
    • Video
    3 BHK + Pooja Room Apartment For Sale in Greenwood Complex
    Greenwood Complex
    3 BHK Flat For Sale in Kaikhali, Kolkata
    ₹ 54 L
    • Ready To Move
    • 1350 Sq.Ft. (Built-up)
    One-Stop Solution for all Real Estate Services Professional, white-glove property services at affordable rates
    Insights & Tools
    Property Rates & Price Trends

    Market rates, data analytics & registered transactions of top project & localities

    Property Rates & Price Trends
    Explore Now
    Property Rates Heatmap

    An Interactive Map to help you understand a City’s Real Estate

    Property Rates Heatmap
    Explore Now
    Valuation Report

    Get an instant & comprehensive Valuation Report of any property - downloadable in PDF

    Valuation Report
    Explore Now
    Projects Reviews & Ratings

    Don't just take our word for it; See what other residents, tenants & agents say about a project or locality

    Reviews and Ratings
    Explore Now
    Country/City