A total of 91 residential transactions has been registered so far for Panvelkar Estate Oxford, amounting to ₹ 16 Cr till March 2026.

A total of 91 residential transactions has been registered so far for Panvelkar Estate Oxford, amounting to ₹ 16 Cr till March 2026.
During Q4'2025, average property prices for Panvelkar Estate Oxford moved from ₹ 4,550/sqft to ₹ 5,150/sqft, reflecting a 13.19% rise.
During Q2'2025, average property prices for Panvelkar Estate Oxford moved from ₹ 6,050/sqft to ₹ 6,250/sqft, reflecting a 3.31% rise.
A total of 293 out of 901 launched units have been booked as of October 2024, including 30% of 1 BHK(88 out of 298 units), 52% of 2 BHK(61 out of 118 units), 33% of 1 RK(144 out of 442 units).
A total of 275 out of 901 launched units have been booked as of July 2024, including 27% of 1 BHK(79 out of 298 units), 53% of 2 BHK(63 out of 118 units), 30% of 1 RK(133 out of 442 units).
Internal finishing stands at 75%, MEP Services including lift and staircases, are now 75% done.
A total of 257 out of 901 launched units have been booked as of May 2024, including 27% of 1 BHK(80 out of 298 units), 49% of 2 BHK(58 out of 118 units), 27% of 1 RK(119 out of 442 units).
External Works has reached 75%, Internal finishing stands at 30%, MEP Services including lift and staircases, are now 49% done.
A total of 233 out of 901 launched units have been booked as of February 2024, including 26% of 1 BHK(77 out of 298 units), 42% of 2 BHK(50 out of 118 units), 24% of 1 RK(106 out of 442 units).
External Works has reached 53%, Internal finishing stands at 23%.
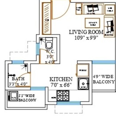
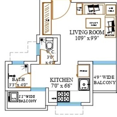
| Master Bedroom-Flooring | Vitrified Tiles |
| Other Bedrooms-Flooring | Vitrified Tiles |
| Living Area-Flooring | Vitrified Tiles |
| Bathroom | Premium Bath Fittings |
| Schools Near by Panvelkar Estate Oxford | |
|---|---|
| Shri Samarth Vidyalaya | 0.90 KM |
| Heaven Bell School | 1.06 KM |
| Dwarkabai Ganesh Naik School | 1.18 KM |
| Chaitanya School | 1.54 KM |
| Mj International School | 1.58 KM |
| Holy School | 1.80 KM |
| Blossom Convent School | 2.51 KM |
| Katrap Vidhyalay | 2.54 KM |
| Stantony Convent School | 2.58 KM |
| Bhagyashree School | 2.68 KM |
| Hospitals Near by Panvelkar Estate Oxford | |
|---|---|
| Shree Hospital | 1.14 KM |
| Shri Chatrapati Maharaj Hospital | 1.24 KM |
| Seven Palms Hospital And Icu Badlapur | 1.56 KM |
| Kimaya Hospital | 1.76 KM |
| Kimaya Hospital Maternity And Surgical | 1.76 KM |
| Maxcare Multispeciality Hospital | 1.79 KM |
| Vatsalya Hospital | 1.96 KM |
| Vatsalya Maternity And Surgical Hospital | 1.96 KM |
| Deshmukh Childrens Hospital | 2.00 KM |
| Central Hospital | 2.01 KM |
| Hotels Near by Panvelkar Estate Oxford | |
|---|---|
| Hotel Mb Residency | 1.96 KM |
| Hotel Venkeys | 3.41 KM |
| Hotel D Adda | 3.60 KM |
| Hotel S3 Park | 4.86 KM |
| Maharaja The Royal Resort | 5.41 KM |
| Krishna Palace Hotel | 6.54 KM |
| Daulat Bag Resort Vangani | 9.55 KM |
| Hotel Jawahar | 11.32 KM |
| Hotel Mayur | 11.89 KM |
| Hotel Star Inn | 12.73 KM |
| Temples Near by Panvelkar Estate Oxford | |
|---|---|
| Shree Ganesh Mandir | 0.52 KM |
| Hanuman Mandir | 0.75 KM |
| Sai Ganesh Mandir | 1.04 KM |
| Sant Tukaram Maharaj Mandir | 1.25 KM |
| Jai Maa Sherawali Mandir | 1.36 KM |
| Shree Hanuman Mandir | 1.37 KM |
| Shri Ram Mandir | 1.60 KM |
| Shri Shiv Ganesh Mandir | 1.67 KM |
| Kaleshwari Mandir | 1.71 KM |
| Sai Baba Mandir | 2.11 KM |
| Shopping Malls Near by Panvelkar Estate Oxford | |
|---|---|
| Shreeji Centre Mall | 2.07 KM |
| Reliance Digital | 2.07 KM |
| Sawant Plaza | 2.41 KM |
| Sai Ganesh Jewellers | 2.61 KM |
| Patil Arcade Manjerly Badlapur | 2.81 KM |
| Smart Superstore | 7.00 KM |
| Mohan Galleria Shopping Mall | 7.98 KM |
| Prasanna Kulkarni Market | 8.00 KM |
| Swanand Shopping Center | 8.48 KM |
| Ranka Gold | 8.55 KM |
| Banks Near by Panvelkar Estate Oxford | |
|---|---|
| Corporation Bank | 1.25 KM |
| Axis Bank | 1.77 KM |
| Icici Bank | 1.98 KM |
| Kotak Mahindra Bank | 2.06 KM |
| Tjsb Bank | 2.07 KM |
| Gp Parshik Sahakari Bank | 2.09 KM |
| Axis Bank Branch | 2.22 KM |
| State Bank Of India | 2.40 KM |
| State Bank Of India | 8.87 KM |
| Bank Of Baroda | 8.88 KM |
| Colleges and Universities Near by Panvelkar Estate Oxford | |
|---|---|
| Bharat College | 2.69 KM |
| Ba Talreja College | 4.05 KM |
| Industrial Training Institute Ambarnath | 9.27 KM |
| Bhausaheb Paranjape Vidhyalay Ambernath | 9.28 KM |
| Nhs Swami Hansamuni Maharaj College | 10.15 KM |
| Swami Hansumani College | 10.15 KM |
| Smt Manju Pamnani College | 10.23 KM |
| Smt Chandibai Himathmal Mansukhani College | 11.14 KM |
| Chm College | 11.15 KM |
| Seva Sadan College | 11.86 KM |
| Post Offices Near by Panvelkar Estate Oxford | |
|---|---|
| Badlapur Public Park And Garden | 2.15 KM |
| Badlapur Gaon Post Office | 3.09 KM |
| Ambernath Auto Services | 6.02 KM |
| Anand Nagar Post Office | 6.50 KM |
| Jsp Petroleum Hp | 6.92 KM |
| Mangalmurty Automobiles | 7.01 KM |
| Ambernath West Post Office | 8.69 KM |
| Ambernath Municipal Council | 8.75 KM |
| Shiv Petroleum | 8.81 KM |
| Vangani Post Office | 8.91 KM |
| Parks Near by Panvelkar Estate Oxford | |
|---|---|
| Avinash Gaikwad Garden | 1.36 KM |
| More Mangal Karyalay | 1.54 KM |
| Drbaba Saheb Ambedkar Udyan | 2.05 KM |
| Joggers Park | 2.29 KM |
| Nandanvan Park | 2.32 KM |
| Rodu Ghorpade Ground | 2.50 KM |
| Nisarg Udhyan | 2.51 KM |
| Anand Lawns And Hall | 2.61 KM |
| Meera Park Royale | 6.59 KM |
| Royal Park | 6.69 KM |
| Office Parks Near by Panvelkar Estate Oxford | |
|---|---|
| Empire Centrum | 4.68 KM |
| Globe Business Park | 8.19 KM |
| Va Business Centre | 8.25 KM |
| Gnp Galaxy | 10.48 KM |
| Jh Zojwalla Regency Plaza | 13.49 KM |
| Globe Business Square | 14.88 KM |
| Gnp Galleria | 14.89 KM |
| West Pioneer Metro Plaza | 14.93 KM |
| Platinum Springs | 14.95 KM |
Check Travel Time
Connecting Roads - Panvelkar Estate Oxford
Properties in Panvelkar Estate Oxford & Top Sellers
Ready to Move projects like Panvelkar Estate Oxford may be priced slightly higher, but they eliminate construction delays, GST, and rental overlap costs.
Since the project has a possession status of Ready to Move, buyers can take possession soon after completing the purchase and registration formalities.
Yes, purchasing apartment at Panvelkar Estate Oxford is legally safe, as the project has a possession status of Ready to Move and is registered under RERA with registration number P51700018929. Being a completed development, it significantly reduces construction, delivery, and compliance risks compared to under-construction projects
Residents of Panvelkar Estate Oxford can enjoy amenities such as Gymnasium, Badminton Court(s), Power Backup, Lift, 24 x 7 Security, CCTV / Video Surveillance, Party Hall, Indoor Games, Normal Park / Central Green, Solar Lighting, designed for comfort and a modern lifestyle.
Buyers need identity proof, address proof, agreement to sell, sale deed, and registration documents for purchasing in Panvelkar Estate Oxford.
This website is only for the purpose of providing information regarding real estate projects in different geographies. Any information which is being provided on this website is not an advertisement or a solicitation. The company has not verified the information and the compliances of the projects. Further, the company has not checked the RERA* registration status of the real estate projects listed herein. The company does not make any representation in regards to the compliances done against these projects. Please note that you should make yourself aware about the RERA* registration status of the listed real estate projects.
*Real Estate (regulation & development) act 2016.