Squareyards Logo
Blogs DataIntelligence
New Advertise with us Sell or Rent Property
Login
  • Facebook
  • Linkedin
  • Twitter
  • Whatsapp
siddha silver pines apartment 3bhk 1740sqft
  • siddha silver pines project large image1 thumb
  • 2 Photos

3 BHK 1740 Sq. Ft. Apartment in Siddha Silver Pines

78.27 Lac
₹ 4498 Per Sq. Ft Onwards
Status: Ready to Move
  •   1644 Views
  •   7 Enquiries
  • 3 BHK-4 BHK Apartment from 1365 Sq. Ft. to 2315 Sq. Ft. (Saleable)
  • 1 Living Area(s) 1 Kitchen(s) 3 Bath Rooms(s)
*Disclaimer
The carpet area & built-up area shown above are based on approximate calculations performed on the floor plans obtained from publicly available sources. The accuracy and completeness of the information is not guaranteed. In providing this information, Square Yards does not assume any responsibility or liability.
  • Saleable Area - 1740 Sq. Ft.
tn siddha silver pines flagshipimg1

East Kolkata, Kolkata

61.40 Lac to 1.04 Cr ₹ 4498.0 Per Sq. Ft Onwards
Ready to Move

About Siddha Silver Pines - 3 BHK 1740 Sq. Ft. Apartment

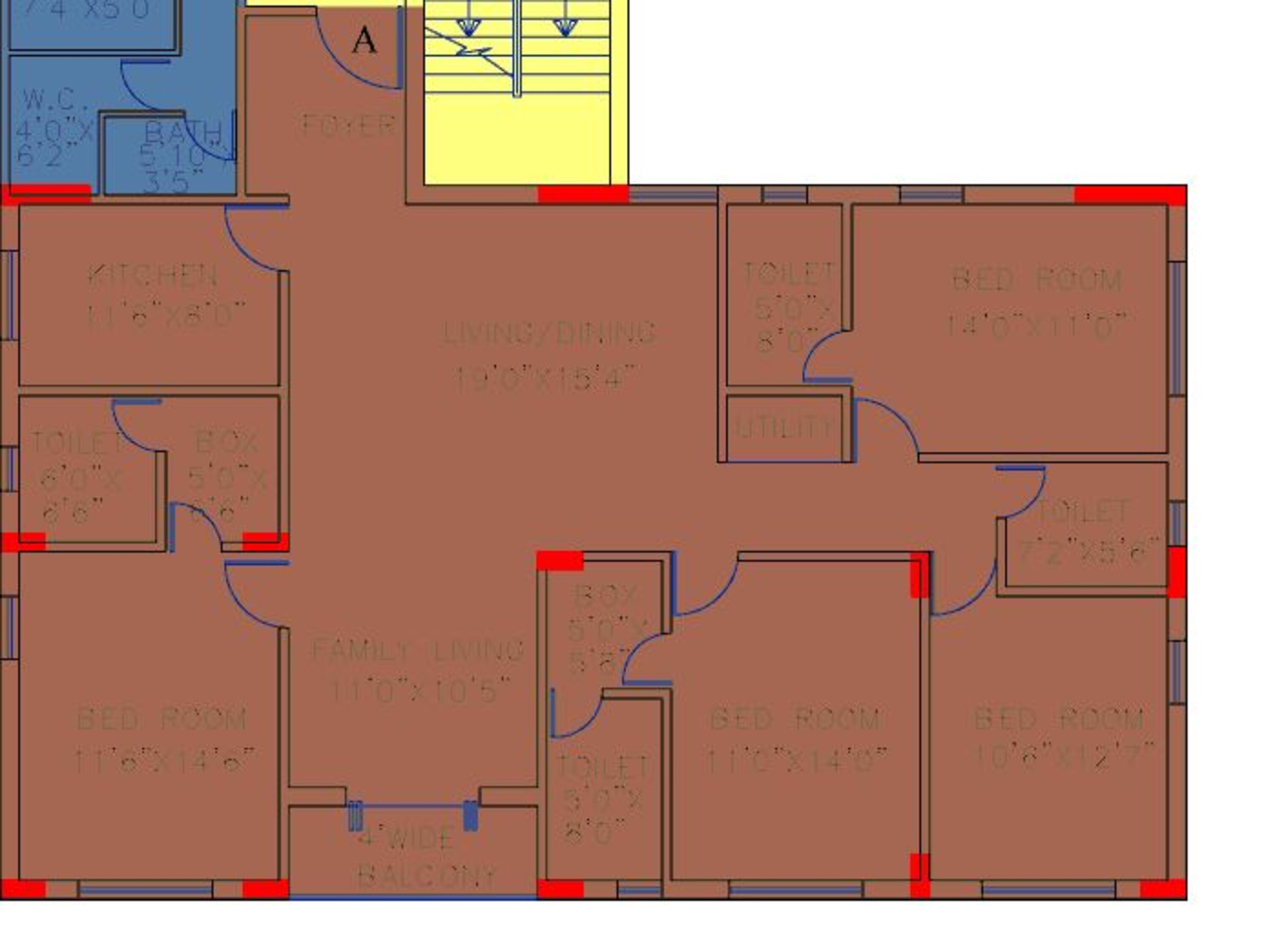
3 BHK 1740 Sq.Ft.Apartment in Siddha Silver Pines Rajarhat New Town of Kolkata has an approximate price of Rs. 4300.0 per sq ft. It has approximately 46% carpet area as a % of saleable area exculding walls, balconies and open spaces. Builtup area including balconies and internal walls is approximately 46% of total area. The unit has 3 bedrooms, 1 living areas, 3 bathrooms. It also has 1 study room. Largest bedroom has a size of 10.75 Sq Ft X 13.67 Sq Ft while the next largest is 10.67 Sq Ft X 11.00 Sq Ft .

Inside Area Analysis of 3 BHK 1740 Sq. Ft. Apartment in Siddha Silver Pines

Inside Area

Room/Private Areas

Length (Ft.) Breadth (Ft.) Area (Sq. Ft.)
Bedroom 10.75 13.67 146.92

Others

Length (Ft.) Breadth (Ft.) Area (Sq. Ft.)
Kitchen 10.00 6.42 64.17

Room/Private Areas

Length (Ft.) Breadth (Ft.) Area (Sq. Ft.)
Study Room 10.00 8.00 80

Living/Common Areas

Length (Ft.) Breadth (Ft.) Area (Sq. Ft.)
Passage - - 52
Dining 10.00 11.00 110

Room/Private Areas

Length (Ft.) Breadth (Ft.) Area (Sq. Ft.)
Bedroom 10.00 10.33 103.33
Bedroom 10.67 11.00 117.33

Siddha Silver Pines - Floor Plans

3 BHK
4 BHK
i *Disclaimer

This website is only for the purpose of providing information regarding real estate projects in different geographies. Any information which is being provided on this website is not an advertisement or a solicitation. The company has not verified the information and the compliances of the projects. Further, the company has not checked the RERA* registration status of the real estate projects listed herein. The company does not make any representation in regards to the compliances done against these projects. Please note that you should make yourself aware about the RERA* registration status of the listed real estate projects.

*Real Estate (regulation & development) act 2016.
Contact our Real Estate Experts
Enable updates through WhatsApp
Enter Your Mobile Number
Verify your Number

We have sent you message with 4 digit
verification code (OTP) on

Change
Did not receive the code?
  • Zero Brokerage

    100% Service, 0% Brokerage. We charge our customers nothing. Not today, not ever.

  • Lowest Price Guaranteed

    Highly unlikely, but if you find a lower price (from the developer) for the same home you want to buy, tell us and we will match it.

  • Full Service Support

    Our sales personnel are customer advocates and are accountable for every step in the process – from search & discovery to site visits, transactions, home loans and post-sales service.

Country/City