
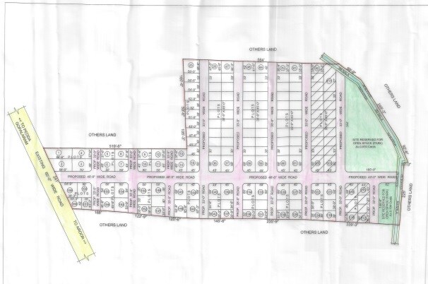
Anantha Green Heights is a plotted development situated in Pedda Gopalaram. This plan shows 240 individual plots. We don't have information on launch or completion dates from this plan.
The property is primarily designated for residential plots. Two distinct areas are reserved for open space, intended for use as parks. One of these park areas is specified at 0.833 Cents.
Download master plan & walkthrough video of Anantha Green Heights to explore layout and virtual tour in Pedda Gopalaram, Hyderabad.
Check Travel Time
Connecting Roads - Anantha Green Heights
This website is only for the purpose of providing information regarding real estate projects in different geographies. Any information which is being provided on this website is not an advertisement or a solicitation. The company has not verified the information and the compliances of the projects. Further, the company has not checked the RERA* registration status of the real estate projects listed herein. The company does not make any representation in regards to the compliances done against these projects. Please note that you should make yourself aware about the RERA* registration status of the listed real estate projects.
*Real Estate (regulation & development) act 2016.