A total of 2 residential transactions has been registered so far for Kohinoor Aashiyana, amounting to ₹ 48 L till February 2026.

A total of 2 residential transactions has been registered so far for Kohinoor Aashiyana, amounting to ₹ 48 L till February 2026.
During Q4'2025, average property prices for Kohinoor Aashiyana moved from ₹ 9,350/sqft to ₹ 9,700/sqft, reflecting a 3.74% rise.
Structural Works reach 69% completion, External Works has reached 95%, Internal finishing stands at 95%, MEP Services including lift and staircases, are now 95% done.
A total of 188 out of 188 launched units have been booked as of March 2024, including , 100% of 1 BHK(125 units), 2 BHK(30 units), 1 RK(33 units).
Structural Works reach 88% completion.
Structural Works reach 69% completion, External Works has reached 95%, Internal finishing stands at 95%, MEP Services including lift and staircases, are now 95% done.
Structural Works reach 67% completion, External Works has reached 80%, Internal finishing stands at 80%, MEP Services including lift and staircases, are now 75% done.
A total of 188 out of 188 launched units have been booked as of August 2022, including , 100% of 1 BHK(125 units), 2 BHK(30 units), 1 RK(33 units).
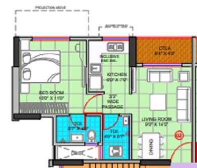
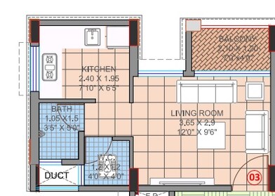
KOHINOOR AASHIYANA, developed by KGI REALTY PRIVATE LIMITED, officially launched on 31-Mar-2020 and expected to complete by 30-Oct-2024. Registered under RERA No. P51700025270. The project comprises 2 towers and offers 188 residential units, including 1 BHK, 1 RK, 2 BHK, with unit sizes ranging from 215 to 420 Square feet across a total area of 0.92 Acre.
| Master Bedroom-Walls | Oil Bound Distemper |
| Master Bedroom-Flooring | Vitrified Tiles |
| Other Bedrooms-Flooring | Vitrified Tiles |
| Walls | Oil Bound Distemper |
| Living Area-Flooring | Vitrified Tiles |
| Bathroom | Premium Bath Fittings |
| Structure | RCC Frame Structure |
| Schools Near by Kohinoor Aashiyana | |
|---|---|
| Balak Mandir School | 0.13 KM |
| Shardha Mandir School | 0.15 KM |
| Oak High School | 0.17 KM |
| Dinkar Sangit Vidyalaya | 0.26 KM |
| Mahanagar Palika School | 0.28 KM |
| Gei Subhedar Wada School | 0.28 KM |
| Anandibai Joshi School | 0.33 KM |
| Mahavir Jain English School | 0.48 KM |
| Kc Gandhi School | 0.75 KM |
| Navjeevan Vidhyamandir | 1.01 KM |
| Hospitals Near by Kohinoor Aashiyana | |
|---|---|
| Indira Hospital | 0.09 KM |
| Padhke Hospital | 0.10 KM |
| Phadke Hospital | 0.13 KM |
| Spectrum Hospital | 0.42 KM |
| Vighnaharta Multispeciality Hospital | 0.47 KM |
| National Hospital | 0.64 KM |
| Shri Samarth Hospital | 0.74 KM |
| Fortis Hospital Kalyan | 0.82 KM |
| Fortis Hospital | 0.82 KM |
| Am Pm 24 Hrs Hospital | 0.87 KM |
| Hotels Near by Kohinoor Aashiyana | |
|---|---|
| Hotel Leela Residency | 0.78 KM |
| Hotel Leela Residency | 0.78 KM |
| Hotel Nakshatra Regency | 0.80 KM |
| Royal Hotel | 1.01 KM |
| Sai Nandan Inn | 1.08 KM |
| Hotel Sagar International | 1.08 KM |
| Hotel Green County | 1.12 KM |
| Hotel Monarch Residency | 1.50 KM |
| Hotel Vegas Residency | 2.16 KM |
| Hotel Heritage Residency | 2.57 KM |
| Temples Near by Kohinoor Aashiyana | |
|---|---|
| Siddheshwar Temple | 0.13 KM |
| Ganpati Mandir | 0.19 KM |
| Dakshin Mukhi Maruti Mandir | 0.32 KM |
| Ajitnath Jain Mandir | 0.32 KM |
| Naggeshwar Mandir | 0.50 KM |
| Swami Narayan Mandir | 0.66 KM |
| Shree Gajanan Maharaj Mandir | 0.78 KM |
| Gajanan Maharaj Mandir | 0.78 KM |
| Sheetladevi Mandir | 0.84 KM |
| Jai Shri Ram Mandir | 0.98 KM |
| Shopping Malls Near by Kohinoor Aashiyana | |
|---|---|
| Mahavir Shopping Centre | 0.66 KM |
| Sidhhi Mart | 0.68 KM |
| Manovi City Center | 0.77 KM |
| Panjwani Plaza | 0.80 KM |
| Rb Shopping Centre | 0.88 KM |
| Desai Shopping Centre | 0.90 KM |
| Mulchandani Shopping | 0.95 KM |
| Madhav Commercial Complex | 1.11 KM |
| Sarvodaya Mall | 1.14 KM |
| Sarvoday Mall | 1.14 KM |
| ATMs Near by Kohinoor Aashiyana | |
|---|---|
| Canara Bank Atm | 6.60 KM |
| Axis Bank | 9.91 KM |
| State Of India | 10.19 KM |
| Indusind Bank | 10.50 KM |
| Dcb Bank | 10.51 KM |
| Axis Bank | 10.53 KM |
| Canara Bank | 10.55 KM |
| Icici Bank | 10.56 KM |
| Icici Bank | 10.90 KM |
| Punjab National Bank | 10.92 KM |
| Banks Near by Kohinoor Aashiyana | |
|---|---|
| Apollo Munich | 0.56 KM |
| Bank Of India Kalyan | 0.70 KM |
| Hsfc Life | 0.78 KM |
| Bank Of India | 0.78 KM |
| Hdfc Bank | 1.12 KM |
| Kotak Mahindra Bank | 1.19 KM |
| Kotak Bank | 1.21 KM |
| Bank Of Maharashtra | 1.48 KM |
| State Bank Of India | 1.76 KM |
| Bank Of Baroda | 1.79 KM |
| Parks Near by Kohinoor Aashiyana | |
|---|---|
| Lenaydri Park | 1.67 KM |
| Lenyadri Park | 1.69 KM |
| Heena Garden | 1.92 KM |
| Regency Park | 2.14 KM |
| Brahma Kumaris Park | 3.89 KM |
| Rotary Garden | 4.09 KM |
| Woman And Childrens Sapna Garden | 4.21 KM |
| Swatantryaveer Savarkar Udyan | 4.29 KM |
| Corporation Park | 4.34 KM |
| Dombivli East Park Garden | 4.36 KM |
| Post Offices Near by Kohinoor Aashiyana | |
|---|---|
| Kalyan City Post Office | 0.22 KM |
| Katemanivali Sub Post Office | 2.56 KM |
| Saravali Post Office | 3.14 KM |
| India Post Ulhasnagar 1 | 3.78 KM |
| Vishnunagar Post Office | 4.73 KM |
| Mahasthavir Chandramani Buddha Vihar | 5.16 KM |
| Shiv Petroleum | 7.47 KM |
| Ambernath West Post Office | 7.52 KM |
| Ambernath Municipal Council | 7.67 KM |
| Post Office Dandekarwadi So | 8.52 KM |
| Colleges and Universities Near by Kohinoor Aashiyana | |
|---|---|
| Ananda College Of Distance Eduction And Management | 0.75 KM |
| Win Informatics Networks | 1.04 KM |
| Tech Wind Computer Services Pvt Ltd | 1.19 KM |
| Gajananrao Pandurang Patil College | 1.87 KM |
| Km Agrawal College | 2.31 KM |
| Mutha College | 2.52 KM |
| Manjunath College Of Commerce | 3.12 KM |
| Vendant College | 3.18 KM |
| Prashant College | 3.41 KM |
| Shaheed Dunichand Kalani College | 3.55 KM |
Check Travel Time
Connecting Roads - Kohinoor Aashiyana
Kalyan East is a residential suburb in the Thane district of Maharashtra, India. It is a key exit point from Mumbai to North and South India. This area is known for its affordable housing, attracting budget-conscious homebuyers. Many low-cost housing projects make it ideal for those looking for economical living options.Though primarily residential, Kalyan East also has a growing number of industries that offer employment opportunities to the locals. The
Kohinoor Group Thane, a renowned real estate developer in Mumbai and Thane, has established its legacy since 1992. With a portfolio of 14 projects, the Group is committed to delivering excellence in construction and redefining lifestyles. Kohinoor Group journey began with projects around Ulhasnagar and has grown steadily over the past two decades.The secret to their success lies in their unyielding focus on quality. From meticulously designing spaces to incorporating
Yes, Kohinoor Aashiyana is a Ready to Move residential project, allowing buyers to take possession immediately without any construction wait.
Residents of Kohinoor Aashiyana can enjoy amenities such as Gymnasium, Swimming Pool, Power Backup, Attached Market, 24 x 7 Security, CCTV / Video Surveillance, Party Hall, Indoor Games, Rain Water Harvesting, Normal Park / Central Green, designed for comfort and a modern lifestyle.
Yes, most major banks and NBFCs offer home loans for ready-to-move projects like Kohinoor Aashiyana, subject to eligibility.
After taking possession at Kohinoor Aashiyana, buyers should inspect electrical fittings, plumbing and water supply (municipal/borewell), elevator operations across 1, parking allocation, common areas, and verify that the flat matches the approved Oil Bound Distemper, Vitrified Tiles, Premium Bath Fittings, RCC Frame Structure and inventory list before moving in.
Ready to Move projects like Kohinoor Aashiyana may be priced slightly higher, but they eliminate construction delays, GST, and rental overlap costs.
This website is only for the purpose of providing information regarding real estate projects in different geographies. Any information which is being provided on this website is not an advertisement or a solicitation. The company has not verified the information and the compliances of the projects. Further, the company has not checked the RERA* registration status of the real estate projects listed herein. The company does not make any representation in regards to the compliances done against these projects. Please note that you should make yourself aware about the RERA* registration status of the listed real estate projects.
*Real Estate (regulation & development) act 2016.