Squareyards Logo
DataIntelligence
Sell or Rent Property
Login
  • Facebook
  • Linkedin
  • Twitter
  • Whatsapp
rustomjee urbania acura apartment 2bhk 1011sqft1
  • rustomjee urbania acura project large image1 thumb
  • rustomjee urbania acura project location image1
  • rustomjee urbania acura project master plan image1
  • rustomjee urbania acura project apartment interiors1
  • rustomjee urbania acura project apartment interiors8
  • rustomjee urbania acura project apartment interiors9
  • rustomjee urbania acura project amenities features1
  • 15 Photos

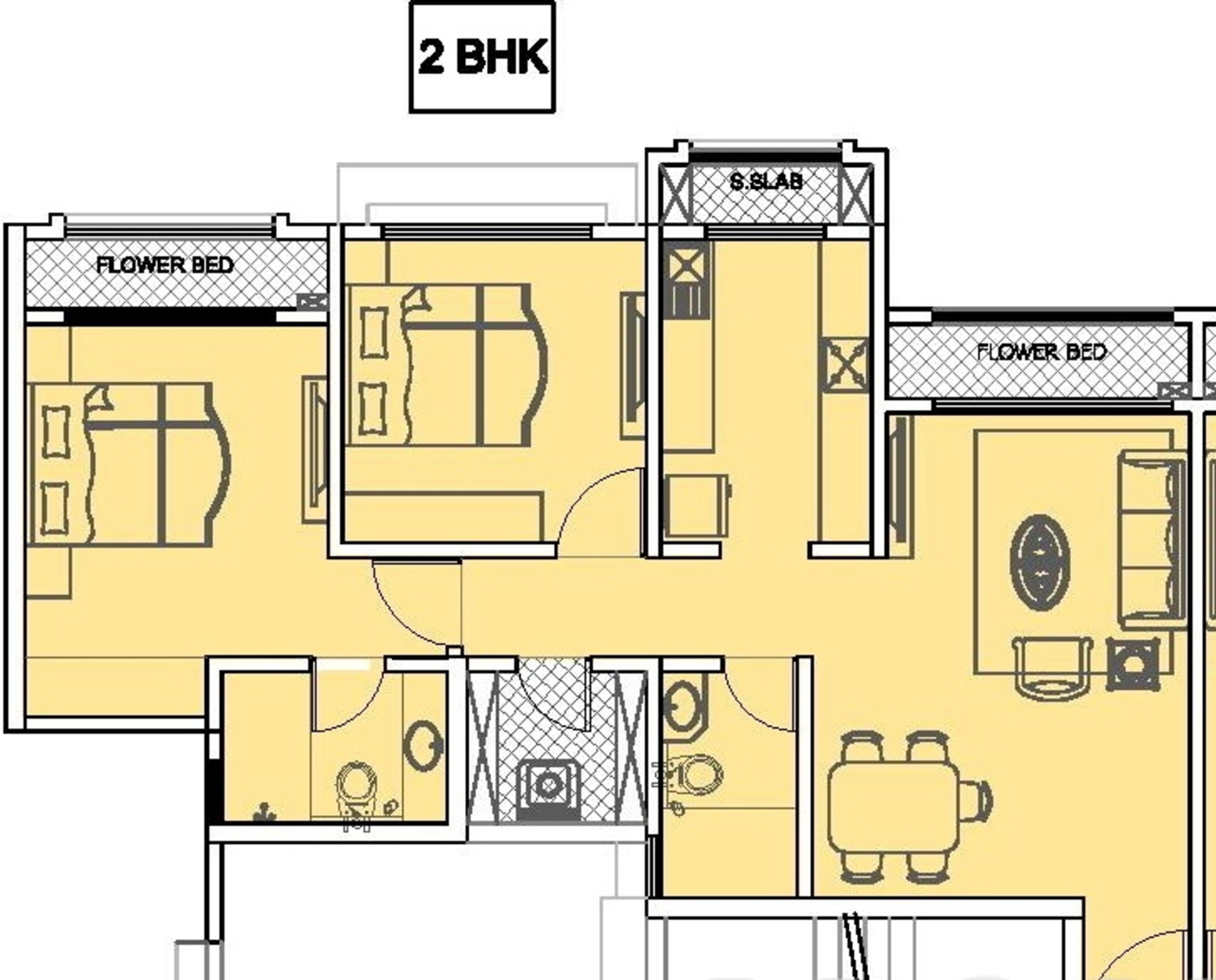
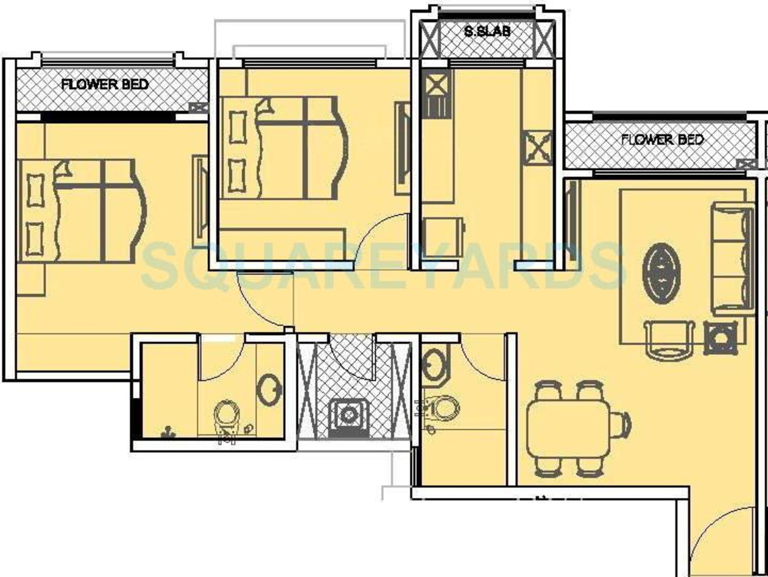
2 BHK 1011 Sq. Ft. Apartment in Rustomjee Urbania Acura

₹ 1.63 Cr
Status: Ready to Move
  •   2571 Views
  •   10 Enquiries
  • 2 BHK Apartment from 932 Sq. Ft. to 1011 Sq. Ft. (Saleable)
  • 1 Living Area(s) 1 Kitchen(s) 2 Bath Rooms(s)
*Disclaimer
The carpet area & built-up area shown above are based on approximate calculations performed on the floor plans obtained from publicly available sources. The accuracy and completeness of the information is not guaranteed. In providing this information, Square Yards does not assume any responsibility or liability.
  • Saleable Area - 1011 Sq. Ft.
tn rustomjee urbania acura project flagship1

Thane City, Thane

₹ 16,184 Per Sq. Ft Onwards
Ready to Move

About Rustomjee Urbania Acura - 2 BHK 1011 Sq. Ft. Apartment

2 BHK 1011 Sq.Ft.Apartment in Rustomjee Urbania Acura Thane West of Mumbai has an approximate price of Rs. 11700.0 per sq ft. The unit has 2 bedrooms, 1 living areas, 2 bathrooms.

Rustomjee Urbania Acura - Floor Plans

2 BHK
i *Disclaimer

This website is only for the purpose of providing information regarding real estate projects in different geographies. Any information which is being provided on this website is not an advertisement or a solicitation. The company has not verified the information and the compliances of the projects. Further, the company has not checked the RERA* registration status of the real estate projects listed herein. The company does not make any representation in regards to the compliances done against these projects. Please note that you should make yourself aware about the RERA* registration status of the listed real estate projects.

*Real Estate (regulation & development) act 2016.
Contact our Real Estate Experts
Enable updates through WhatsApp
Enter Your Mobile Number
Verify your Number

We have sent you message with 4 digit
verification code (OTP) on

Change
Did not receive the code?
  • Zero Brokerage

    100% Service, 0% Brokerage. We charge our customers nothing. Not today, not ever.

  • Lowest Price Guaranteed

    Highly unlikely, but if you find a lower price (from the developer) for the same home you want to buy, tell us and we will match it.

  • Full Service Support

    Our sales personnel are customer advocates and are accountable for every step in the process – from search & discovery to site visits, transactions, home loans and post-sales service.

Country/City