A total of 103 residential transactions has been registered so far for Puravankara Windermere, amounting to ₹ 23 Cr till November 2025.

Puravankara Windermere is a project developed by the well-known constructing company Puravankara Developers in Chennai. This project is strategically developed to help people get away from the heat of the city amidst the lakeside. Moreover, this project offers the utmost comfort and convenience with all facilities available inside and is perfect for families and bachelors.
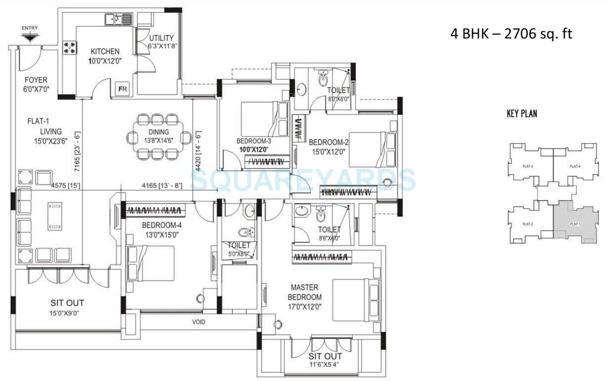
The Puravankara Windermere project is constructed in the Pallikaranai area of Chennai. The construction is situated on the lakeside, which gives it a tropical feeling and lets people live in a cool oasis. Also, the prime location of the Puravankara Windermere tower makes it easy for residents to commute to any part of the city. The project offers flats and villas as well. The configuration of Puravankara Windermere projects offered is 1 BHK, 2 BHK, and 3 BHK. The whole planning of the project is done keeping in mind the needs of both bachelors and families. Also, the availability of numerous amenities and proximity to other facilities makes living here convenient and easy.
When talking about what the locality offers around the Puravankara Windermere tower, the developers have made sure to place it in the middle of all. Puravankara Windermere’s launch dates back to April 2010. The society is fully constructed and is now home to many families. The Puravankara Windermere possession dates back to September 2015.
Own this home with EMIs starting at ₹ 36.10 K/month - Check Cibil Linked Loan Estimate
A total of 103 residential transactions has been registered so far for Puravankara Windermere, amounting to ₹ 23 Cr till November 2025.
During Q2'2025, average property prices for Puravankara Windermere moved from ₹ 8,000/sqft to ₹ 8,450/sqft, reflecting a 5.63% rise.
| Master Bedroom-Walls | Acrylic Emulsion |
| Master Bedroom-Flooring | Italian/Imported Marble |
| Other Bedrooms-Flooring | Vitrified Tiles |
| Walls | Acrylic Emulsion |
| Living Area-Flooring | Vitrified Tiles |
| Ceilings | PoP Design / Punning |
| Fittings & Fixtures | Air Conditioner Fittings |
| Kitchen-Equipments | Double Bowl Sink |
| Bathroom | Premium Bath Fittings |
| Structure | RCC Frame Structure |
| Schools Near by Puravankara Windermere | |
|---|---|
| Future Pathways Global Schools - Medavakkam | 0.22 KM |
| Government Higher Secondary School - Pallikaranai | 0.61 KM |
| Sujay Public School | 0.81 KM |
| Velammal New Gen School - Medavakkam | 0.82 KM |
| Akg Public School | 0.82 KM |
| Orchids International School Pallikaranai | 0.91 KM |
| Vista Billabong High International School | 0.93 KM |
| Velammal Global School | 0.99 KM |
| Infant Jesus Higher Secondary School | 1.04 KM |
| St Antony's Matriculation Higher Secondary School | 1.18 KM |
| Bus Stops Near by Puravankara Windermere | |
|---|---|
| Pallikaranai Government School | 0.55 KM |
| Pallikarani | 0.57 KM |
| Oil Mill Bus Stop | 0.82 KM |
| Oil Mill | 0.85 KM |
| Asan College | 0.87 KM |
| Pallikaranai | 0.99 KM |
| Medavakkam Colony | 1.31 KM |
| Nagathamman Kovil | 1.46 KM |
| Vellaikal | 1.48 KM |
| Narayanapuram | 1.51 KM |
| Hospitals Near by Puravankara Windermere | |
|---|---|
| V Cure Hospital | 0.58 KM |
| Vel's Pet Hospital | 0.68 KM |
| Deepam Medfirst Hospital | 0.89 KM |
| Inbam Hospitals | 1.08 KM |
| Kalpana Hospital | 1.46 KM |
| Am Hospital | 1.47 KM |
| Eye Dot Hospital | 1.47 KM |
| Shri Balaji Diabetes Hospital | 1.48 KM |
| Annai Theresa Hospitals Pvt Ltd | 1.53 KM |
| V.s.hospital / Pharmworld Medicals | 1.54 KM |
| Clinics Near by Puravankara Windermere | |
|---|---|
| Lenskart.com At Pallikaranai | 0.85 KM |
| Oglo Optics| Optical Shop In Pallikaranai | 0.86 KM |
| Elephant Dental Clinic | 1.00 KM |
| Cutikidz Skin And Child Clinic | 1.12 KM |
| Chennai Hair Studio Clinic | 1.25 KM |
| Radiant Dental Care | Dental Clinic In Medavakkam | 1.51 KM |
| Smile Squad Dental Clinic | 1.56 KM |
| Lenskart.com At Medavakkam | 1.56 KM |
| Dr. Kamakshi Multispeciality Clinic | 1.57 KM |
| Venkateswara Diagnostic Center | Open Mri | 1.62 KM |
| Gym Fitness Near by Puravankara Windermere | |
|---|---|
| Nbm Fitness Studio | Gym | Unisex Fitness Centre In Pallikaranai | 0.50 KM |
| Fight 2 Fit Fitness Centre Pallikaranai / Gym | 0.87 KM |
| Athics Fitness Unisex Gym Ac | 0.88 KM |
| Draphy Fitness Zone | 0.95 KM |
| Pink Fitness - Ladies Gym Medavakkam | 1.31 KM |
| Fit Perfect Health And Fitness Studio | 1.50 KM |
| Crossfit Fitness Studio | 1.52 KM |
| Slam Lifestyle And Fitness Studio - Medavakkam | 1.59 KM |
| Fortitude Fitness Studio | 1.60 KM |
| Fit Rock Arena Pallikaranai | 1.65 KM |
| Supermarkets Near by Puravankara Windermere | |
|---|---|
| Fantastic Jeyachandran | 1.09 KM |
| Mothers World Super Market | 1.45 KM |
| Latha Super Bazaar Medavakkam | 1.50 KM |
| Nilgiris Supermarket Medavakkam | 1.62 KM |
| Latha Super Market Pallikaranai | 1.93 KM |
| Nilgiris Supermarket | 2.00 KM |
| S. Natesan Super Market (asn) Since 1965 | 2.08 KM |
| Nila Super Market | 2.21 KM |
| Yd Mart Supermarket [ Pallikaranai ] | 2.35 KM |
| Rejoice Supermarket | 2.50 KM |
| College and Universities Near by Puravankara Windermere | |
|---|---|
| Asan Institute Of Management | 0.82 KM |
| The Quaide Milleth College For Men | 1.81 KM |
| Jerusalem College Of Engineering | 2.14 KM |
| Aval Institute Of Fashion Designing | 2.25 KM |
| Sivet College | 3.01 KM |
| Thangavelu Engineering College | 3.16 KM |
| Tj Institute Of Technology | 3.16 KM |
| Chennai College Of Arts And Science | 3.24 KM |
| New Prince Shri Bhavani College Of Engineering & Technology | 3.37 KM |
| Mohamed Sathak College Of Arts & Science | 4.60 KM |
| Restaurants Near by Puravankara Windermere | |
|---|---|
| Salem Rr Biriyani Unavagam | 1.05 KM |
| Zonkk | 1.51 KM |
| Diff 42 - Resto Lounge | 1.62 KM |
| Dine N Fun | 2.43 KM |
| Orange Coconut | 3.84 KM |
| Sri Supriya Andhra Restaurant | 3.91 KM |
| Crazy Ivan Resto Lounge | 3.97 KM |
| Urban Lounge | 4.24 KM |
| Famous Theory | 4.28 KM |
| The Square - Novotel Chennai Omr | 4.65 KM |
| Temples Near by Puravankara Windermere | |
|---|---|
| Pallikaranai Arulmighu Sri Lakshmi Narayana Perumal Temple | 0.81 KM |
| Mela Tirupathi Srinivasa Perumal Temple | 1.01 KM |
| Shri Aadhipureeswarar Temple | 1.01 KM |
| Sri Panchami Varahi Samedha Manoonmaneeswarar Arachabai | 1.17 KM |
| Lakshmi Balaji Temple | 2.43 KM |
| Shri Sakthi Vel Murugan Aalayam | 3.00 KM |
| Siva Vishnu Temple | 3.01 KM |
| Arulmigu Panchamuga Anjaneyar Temple | 3.25 KM |
| Navasakthi Kamakshi Amman Temple | 3.37 KM |
| Shirdi Shri Bhairava Sai Baba Temple | 3.74 KM |
| Clothings Near by Puravankara Windermere | |
|---|---|
| Ramraj Cotton - Pallikaranai | 0.52 KM |
| Babyhug Store Chennai Pallikaranai | 0.91 KM |
| Mom & Teddy Perumbakkam | 2.50 KM |
| Jockey Juniors Exclusive Store | 3.17 KM |
| Pantaloons (medipakkam | 3.43 KM |
| Ramraj | 3.59 KM |
| Babyhug Store - Chennai Thoraipakkam | 3.87 KM |
| Basics Life. Chennai Seliayur | 3.91 KM |
| Unlimited Fashion Store - Oggiyamduraipakkam | 3.96 KM |
| Firstcry.com Store Chennai Madipakkam | 4.09 KM |
Check Travel Time
Connecting Roads - Puravankara Windermere
Pallikaranai is situated in the southern part of Chennai. This locality is near IIT Colony, Narayanapuram and Kamakoti Nagar. It offers excellent connectivity to nearby areas and is considered a safe locality where residents can live peacefully. Pallikarana is a developing residential neighbourhood surrounded by the well-known areas of Velachery, Madipakkam, Thoraipakkam, and Perungudi. It primarily consists of low to mid-rise apartment complexes, multi-story apartments, and villas. The locality offers versatile
Properties in Puravankara Windermere & Top Sellers
Purvankara Limited is one of India's top Real Estate giants, with headquarters in Bangalore. The company was founded in 1975, and since then, they have endeavoured to meet the demand for quality residential spaces. It has spread its reach across various cities nationwide, including Bengaluru, Chennai, Hyderabad, Kochi, Mumbai, Coimbatore, Pune, Mangaluru, and Goa. Besides India, Purvankara company has stretched its real estate reach to International countries like Sri Lanka,
This website is only for the purpose of providing information regarding real estate projects in different geographies. Any information which is being provided on this website is not an advertisement or a solicitation. The company has not verified the information and the compliances of the projects. Further, the company has not checked the RERA* registration status of the real estate projects listed herein. The company does not make any representation in regards to the compliances done against these projects. Please note that you should make yourself aware about the RERA* registration status of the listed real estate projects.
*Real Estate (regulation & development) act 2016.