Squareyards Logo
DataIntelligence
New Advertise with us Sell or Rent Property
Login
  • Facebook
  • Linkedin
  • Twitter
  • Whatsapp
emaar palm heights apartment 3bhk sq 2000sqft 41
  • emaar palm heights amenities features1
  • emaar palm heights amenities features2
  • emaar palm heights amenities features3
  • emaar palm heights clubhouse external image1
  • emaar palm heights location image1
  • emaar palm heights master plan image1
  • emaar palm heights tower view10
  • 12 Photos

3 BHK 2000 Sq. Ft. Apartment in Emaar Palm Heights

2.47 Cr
Status: Ready to Move
  •   22842 Views
  •   5 Enquiries
  • 3 BHK Apartment from 2000 Sq. Ft. to 2025 Sq. Ft. (Saleable)
  • 2 Living Area(s) 1 Kitchen(s) 3 Bath Rooms(s)
  • 4 Balconies (228 Sq. Ft.)
*Disclaimer
The carpet area & built-up area shown above are based on approximate calculations performed on the floor plans obtained from publicly available sources. The accuracy and completeness of the information is not guaranteed. In providing this information, Square Yards does not assume any responsibility or liability.
  • Carpet Area - 1218 Sq. Ft. (61%)
  • Saleable Area - 2000 Sq. Ft.
  • SquareYards RERA Reg.HRERA 660/2017/307
  • Project RERA Reg. GGM/297/2018/29
tn emaar palm heights flagshipimg1

New Gurgaon, Gurgaon

2.47 Cr to 2.50 Cr
Ready to Move

About Emaar Palm Heights - 3 BHK 2000 Sq. Ft. Apartment

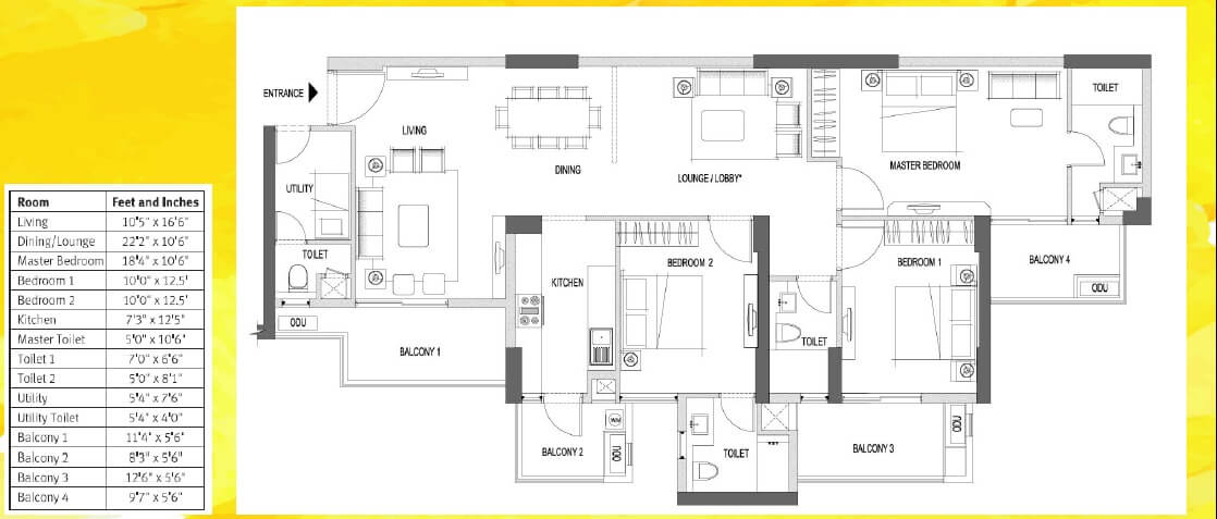
3 BHK 2000 Sq.Ft.Apartment in Emaar Palm Heights Sector 77 of Gurgaon. The unit has 3 bedrooms, 2 living areas, 3 bathrooms and 4 balconies. It also has 1 servant room. Largest bedroom has a size of 18.33 Sq Ft X 10.50 Sq Ft while the next largest is 10.00 Sq Ft X 12.42 Sq Ft .

Inside Area Analysis of 3 BHK 2000 Sq. Ft. Apartment in Emaar Palm Heights

Inside Area

Others

Length (Ft.) Breadth (Ft.) Area (Sq. Ft.)
Kitchen 7.25 12.42 90.02
Servant Room 5.33 7.50 40

Living/Common Areas

Length (Ft.) Breadth (Ft.) Area (Sq. Ft.)
Dining 22.17 10.50 232.75
Living 10.42 16.50 171.88

Room/Private Areas

Length (Ft.) Breadth (Ft.) Area (Sq. Ft.)
Bedroom 10.00 12.42 124.17
Bedroom 10.00 12.42 124.17
Master Bedroom 18.33 10.50 192.5

Open Areas

Length (Ft.) Breadth (Ft.) Area (Sq. Ft.)
Attached Balcony 9.58 5.50 52.71
Attached Balcony 12.50 5.50 68.75
Utility Balcony 8.25 5.50 45.38
Attached Balcony 11.33 5.50 62.33

Emaar Palm Heights - Floor Plans

3 BHK
  • 3 BHK 2000 Sq. Ft. Flat

    2.47 Cr
    emaar palm heights apartment 3bhk sq 2000sqft 41
    • 3 Bedrooms + 3 Bathrooms + 1 Kitchen
    • Carpet Area : 1218 Sq. Ft.
    • Saleable Area : 2000 Sq. Ft.
  • 3 BHK 2025 Sq. Ft. Flat

    2.50 Cr
    emaar palm heights apartment 3bhk sq 2025sqft 41
    • 3 Bedrooms + 3 Bathrooms + 1 Kitchen
    • Carpet Area : 1242 Sq. Ft.
    • Saleable Area : 2025 Sq. Ft.
i *Disclaimer

This website is only for the purpose of providing information regarding real estate projects in different geographies. Any information which is being provided on this website is not an advertisement or a solicitation. The company has not verified the information and the compliances of the projects. Further, the company has not checked the RERA* registration status of the real estate projects listed herein. The company does not make any representation in regards to the compliances done against these projects. Please note that you should make yourself aware about the RERA* registration status of the listed real estate projects.

*Real Estate (regulation & development) act 2016.
Contact our Real Estate Experts
Enable updates through WhatsApp
Enter Your Mobile Number
Verify your Number

We have sent you message with 4 digit
verification code (OTP) on

Change
Did not receive the code?
  • Zero Brokerage

    100% Service, 0% Brokerage. We charge our customers nothing. Not today, not ever.

  • Lowest Price Guaranteed

    Highly unlikely, but if you find a lower price (from the developer) for the same home you want to buy, tell us and we will match it.

  • Full Service Support

    Our sales personnel are customer advocates and are accountable for every step in the process – from search & discovery to site visits, transactions, home loans and post-sales service.

Country/City