Squareyards Logo
Blogs DataIntelligence
New Advertise with us Sell or Rent Property
Login
  • Facebook
  • Linkedin
  • Twitter
  • Whatsapp
raheja vedas apartment 2bhk 1953sqft 1
  • raheja vedas location image1
  • raheja vedas master plan image1
  • raheja vedas amenities features7
  • raheja vedas clubhouse external image8
  • raheja vedas apartment interiors9
  • raheja vedas project sports facilities image1 1705
  • 7 Photos

2 BHK 1953 Sq. Ft. Apartment in Raheja Vedas

1.40 Cr
Status: Ready to Move
  •   484 Views
  •   6 Enquiries
  • 2 BHK-3 BHK-5 BHK Penthouse, Apartment from 1365 Sq. Ft. to 6027 Sq. Ft. (Saleable)
  • 2 Living Area(s) 1 Kitchen(s) 2 Bath Rooms(s)
*Disclaimer
The carpet area & built-up area shown above are based on approximate calculations performed on the floor plans obtained from publicly available sources. The accuracy and completeness of the information is not guaranteed. In providing this information, Square Yards does not assume any responsibility or liability.
  • Saleable Area - 1953 Sq. Ft.
tn raheja vedas project flagship1

Dwarka Expressway, Gurgaon

97.99 Lac to 4.33 Cr
Ready to Move

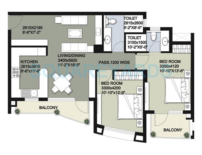
About Raheja Vedas - 2 BHK 1953 Sq. Ft. Apartment

2 BHK 1953 Sq.Ft.Apartment in Raheja Vedas Sector 108 of Gurgaon. The unit has 2 bedrooms, 2 living areas, 2 bathrooms. Largest bedroom has a size of 10.83 Sq Ft X 13.50 Sq Ft while the next largest is 10.83 Sq Ft X 13.75 Sq Ft .

Inside Area Analysis of 2 BHK 1953 Sq. Ft. Apartment in Raheja Vedas

Inside Area

Open Areas

Length (Ft.) Breadth (Ft.) Area (Sq. Ft.)
Private Garden/Lawn - - 480

Others

Length (Ft.) Breadth (Ft.) Area (Sq. Ft.)
Kitchen 9.75 11.50 112.12

Living/Common Areas

Length (Ft.) Breadth (Ft.) Area (Sq. Ft.)
Passage - 3.93 35.37
Dining 9.42 10.50 98.88
Living 19.67 16.17 317.94

Room/Private Areas

Length (Ft.) Breadth (Ft.) Area (Sq. Ft.)
Bedroom 10.83 13.75 148.96
Bedroom 10.83 13.50 146.25

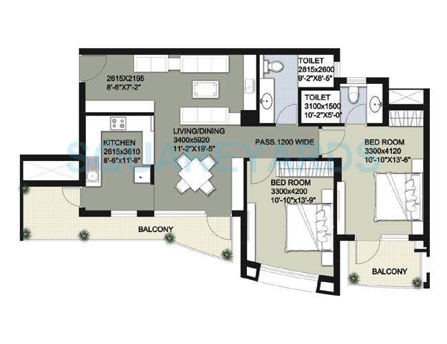
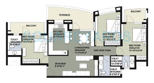
Raheja Vedas - Floor Plans

2 BHK
3 BHK
5 BHK
i *Disclaimer

This website is only for the purpose of providing information regarding real estate projects in different geographies. Any information which is being provided on this website is not an advertisement or a solicitation. The company has not verified the information and the compliances of the projects. Further, the company has not checked the RERA* registration status of the real estate projects listed herein. The company does not make any representation in regards to the compliances done against these projects. Please note that you should make yourself aware about the RERA* registration status of the listed real estate projects.

*Real Estate (regulation & development) act 2016.
Contact our Real Estate Experts
Enable updates through WhatsApp
Enter Your Mobile Number
Verify your Number

We have sent you message with 4 digit
verification code (OTP) on

Change
Did not receive the code?
  • Zero Brokerage

    100% Service, 0% Brokerage. We charge our customers nothing. Not today, not ever.

  • Lowest Price Guaranteed

    Highly unlikely, but if you find a lower price (from the developer) for the same home you want to buy, tell us and we will match it.

  • Full Service Support

    Our sales personnel are customer advocates and are accountable for every step in the process – from search & discovery to site visits, transactions, home loans and post-sales service.

Country/City