Squareyards Logo
DataIntelligence
New Advertise with us Sell or Rent Property
Login
  • Facebook
  • Linkedin
  • Twitter
  • Whatsapp
sunteck whatacity apartment 2bhk st 1411sqft 1
  • sunteck whatacity master plan image1
  • sunteck whatacity project large image1 thumb
  • sunteck whatacity project location image1
  • sunteck whatacity project wikimapia overlay image1
  • 5 Photos

2 BHK 1411 Sq. Ft. Apartment in Sunteck Whatacity

₹ 3.49 Cr
Status: Ready to Move
  •   643 Views
  •   3 Enquiries
  • 2 BHK-3 BHK Apartment from 908 Sq. Ft. to 1670 Sq. Ft. (Saleable)
  • 2 Living Area(s) 1 Kitchen(s)
*Disclaimer
The carpet area & built-up area shown above are based on approximate calculations performed on the floor plans obtained from publicly available sources. The accuracy and completeness of the information is not guaranteed. In providing this information, Square Yards does not assume any responsibility or liability.
  • Saleable Area - 1411 Sq. Ft.
  • SquareYards RERA Reg.A51800000454
  • Project RERA Reg. P51800002637
tn sunteck whatacity project flagship1

Mumbai Western Suburbs, Mumbai

₹ 24,784 Per Sq. Ft Onwards
Ready to Move

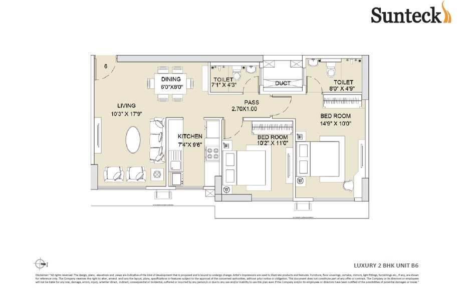
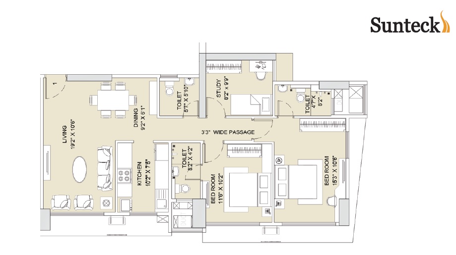
About Sunteck Whatacity - 2 BHK 1411 Sq. Ft. Apartment

2 BHK 1411 Sq.Ft.Apartment in Sunteck WHATACITY Goregaon West of Mumbai has an approximate price of Rs. 12500.0 per sq ft. The unit has 2 bedrooms, 2 living areas, . It also has 1 study room. Largest bedroom has a size of 15.25 Sq Ft X 10.50 Sq Ft while the next largest is 11.50 Sq Ft X 10.17 Sq Ft .

Inside Area Analysis of 2 BHK 1411 Sq. Ft. Apartment in Sunteck Whatacity

Inside Area

Living/Common Areas

Length (Ft.) Breadth (Ft.) Area (Sq. Ft.)
Dining 9.17 6.08 55.76
Living 19.42 10.50 203.88

Room/Private Areas

Length (Ft.) Breadth (Ft.) Area (Sq. Ft.)
Bedroom 11.50 10.17 116.92
Bedroom 15.25 10.50 170

Others

Length (Ft.) Breadth (Ft.) Area (Sq. Ft.)
Kitchen 10.17 7.42 75.4

Room/Private Areas

Length (Ft.) Breadth (Ft.) Area (Sq. Ft.)
Study Room 10.17 8.00 81.33

Living/Common Areas

Length (Ft.) Breadth (Ft.) Area (Sq. Ft.)
Passage - 3.25 35

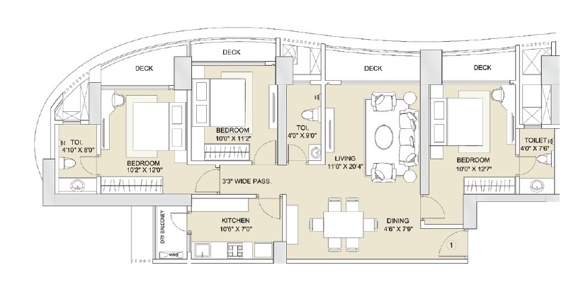
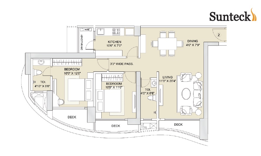
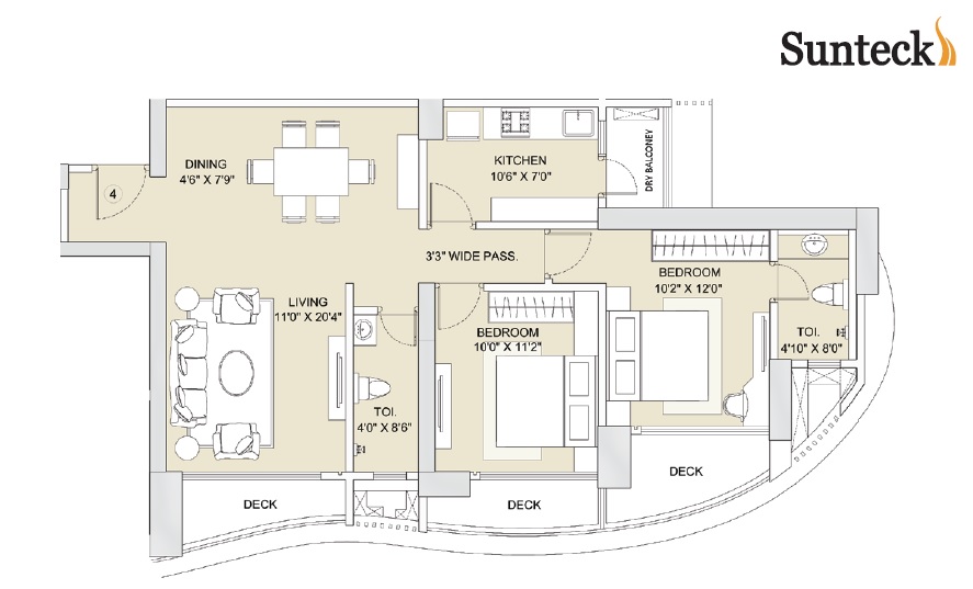
Sunteck Whatacity - Floor Plans

2 BHK
3 BHK
i *Disclaimer

This website is only for the purpose of providing information regarding real estate projects in different geographies. Any information which is being provided on this website is not an advertisement or a solicitation. The company has not verified the information and the compliances of the projects. Further, the company has not checked the RERA* registration status of the real estate projects listed herein. The company does not make any representation in regards to the compliances done against these projects. Please note that you should make yourself aware about the RERA* registration status of the listed real estate projects.

*Real Estate (regulation & development) act 2016.
Contact our Real Estate Experts
Enable updates through WhatsApp
Enter Your Mobile Number
Verify your Number

We have sent you message with 4 digit
verification code (OTP) on

Change
Did not receive the code?
  • Zero Brokerage

    100% Service, 0% Brokerage. We charge our customers nothing. Not today, not ever.

  • Lowest Price Guaranteed

    Highly unlikely, but if you find a lower price (from the developer) for the same home you want to buy, tell us and we will match it.

  • Full Service Support

    Our sales personnel are customer advocates and are accountable for every step in the process – from search & discovery to site visits, transactions, home loans and post-sales service.

Country/City