A total of 2 residential transactions has been registered so far for Tej Navya, amounting to ₹ 5 Cr till November 2025.

100% Service, 0% Brokerage
Highly unlikely, but if you find a lower price anywhere, tell us and we will match it.
Our sales personnel are accountable for every step
Own this home with EMIs starting at ₹ 1.63 L/month - Check Cibil Linked Loan Estimate
A total of 2 residential transactions has been registered so far for Tej Navya, amounting to ₹ 5 Cr till November 2025.
During Q3'2025, average property prices for Tej Navya moved from ₹ 21,300/sqft to ₹ 22,500/sqft, reflecting a 5.63% rise.
Structural Works reach 58% completion, Internal finishing stands at 5%.
A total of 18 out of 30 launched units have been booked as of January 2025, including 50% of 1 BHK(1 out of 2 units), 81% of 3 BHK(13 out of 16 units), 57% of 2 BHK(4 out of 7 units).
Internal finishing stands at 1%.
A total of 16 out of 30 launched units have been booked as of November 2024, including 50% of 1 BHK(1 out of 2 units), 75% of 3 BHK(12 out of 16 units), 43% of 2 BHK(3 out of 7 units).
Structural Works reach 62% completion.
A total of 3 out of 21 launched units have been booked as of April 2024, including 23% of 3 BHK(3 out of 13 units).
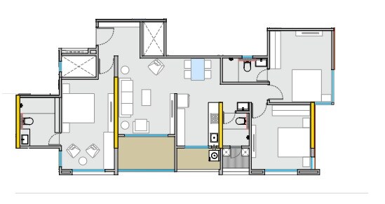
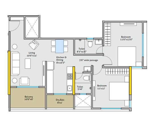
TEJ NAVYA, developed by TEJRAJ PROFILE BUILDERS LLP, officially launched on 15-Sep-2023 and expected to complete by 24-Dec-2025. Registered under RERA No. P52100052664. The project comprises 1 towers and offers 30 residential units, including 1 BHK, 2 BHK, 3 BHK, 4 BHK, with unit sizes ranging from 441 to 1238 Square feet across a total area of 0.24 Acre.
| Master Bedroom-Walls | Oil Bound Distemper |
| Master Bedroom-Flooring | Vitrified Tiles |
| Other Bedrooms-Flooring | Vitrified Tiles |
| Walls | Oil Bound Distemper |
| Living Area-Flooring | Vitrified Tiles |
| Structure | RCC Frame Structure |
| Schools Near by Tej Navya | |
|---|---|
| Pandit Dindayal Upadhyay English Medium School - Pmc | 0.17 KM |
| Dr. Kalmadi Shamarao High School | 0.23 KM |
| Karnataka High School | 0.31 KM |
| Abhinava Vidyalaya English Medium High School | 0.52 KM |
| Excel Tutorials - Icse Cbse Maths Science In Kothrud | 0.57 KM |
| Abhinav School | 0.67 KM |
| Shishuvihar Primary School Erandwane | 0.68 KM |
| Sevasadan English Medium School | 0.72 KM |
| Maharashtra Vidya Mandal | 0.75 KM |
| P.jog English & Marathi Medium School | 0.84 KM |
| Bus Stops Near by Tej Navya | |
|---|---|
| Paud Phata 2 | 0.24 KM |
| Dr. Kalmadi Shamarao High School And Jr. College | 0.25 KM |
| Karnatak Highschool | 0.29 KM |
| Karve Road Sndt College | 0.33 KM |
| Date Engineering | 0.34 KM |
| Karve Road | 0.42 KM |
| Mehandale Garage | 0.43 KM |
| Paud Phata | 0.43 KM |
| Sndt College | 0.46 KM |
| Prasanna Bungalow | 0.46 KM |
| Hospitals Near by Tej Navya | |
|---|---|
| Shreyas Hospital | 0.36 KM |
| Ace Hospital & Research Center | 0.45 KM |
| Vasan Eye Care Hospital | 0.55 KM |
| Nachiket Hospital | 0.64 KM |
| Deenanath Mangeshkar Hospital | 0.67 KM |
| Deenanath Mangeshkar Hospital And Research Center | 0.69 KM |
| Deenanath Mangeshkar Hospital Canteen | 0.69 KM |
| Prabhudesai Eye Clinic | Unit Of Dr Agarwals Eye Hospital Kothrud | 0.70 KM |
| Sushrut Hospital (smhipl) | Paud Road Pune | 0.77 KM |
| Tharkude Hospital | 0.81 KM |
| Clinics Near by Tej Navya | |
|---|---|
| A.n. Diagnostic Centre | 0.36 KM |
| Diagnopein Diagnostic And Dental Care | 0.68 KM |
| Bild Exercise Clinic | 0.69 KM |
| Vijaya Ph Diagnostic Centre | 0.81 KM |
| Taj Skin Hair Laser Clinic | 1.04 KM |
| Dr Rajesh Dhopeshwarkar (heart Rhythm & Heart Failure Clinic) | 1.09 KM |
| Lenskart.com Flagship Store At Kothrud | 1.31 KM |
| Dr. Pramod Tripathi | 1.38 KM |
| Freedom From Diabetes | 1.39 KM |
| Clear Skin - Skin & Hair Care Clinic | 1.40 KM |
| Restaurants Near by Tej Navya | |
|---|---|
| Fresh Off The Boat | 0.26 KM |
| Pimlico | 0.31 KM |
| Retox | 0.34 KM |
| Oblique Kitchen | 0.40 KM |
| Abhishek Veg Restaurant | 0.47 KM |
| Abhishek Non Veg Restaurant | 0.47 KM |
| Malgudi Tiffin | 0.47 KM |
| Level 5 Bistro And Bar | 0.64 KM |
| Babylon Craft Brewery | 0.65 KM |
| La Sicilia Bistro & Patisserie | 0.70 KM |
| Gym Fitness Near by Tej Navya | |
|---|---|
| Fitranger Gym | 0.35 KM |
| Atenx Performance Studio | Best Fitness Gym In Kothrud Pune | 0.42 KM |
| Nitrro Wellness And Fitness Hub Kothrud | 0.72 KM |
| Body Fuel Fitness Club | 1.34 KM |
| Metrocity Sports Club Rambaug Colony | 1.35 KM |
| Discover Wellness Pvt Ltd | 1.38 KM |
| Valeosis Fitness Club | 1.43 KM |
| Ethcure Fitness Club | 1.53 KM |
| Niwara Gym By V3 Fitness | 1.74 KM |
| Trimurti Gym | 1.83 KM |
| College and Universities Near by Tej Navya | |
|---|---|
| Kaveri College Of Arts Science And Commerce | 0.25 KM |
| Mhhf's Smt. Sudhatai Mandke College - Commerce | 0.57 KM |
| Sndt B.ed College [s.n.d.t. College Of Education (iase)] | 0.67 KM |
| Adarsha Comprehensive College Of Education And Research | 0.67 KM |
| Sndt Women University | 0.73 KM |
| P. Jog College Of Science & Commerce | 0.86 KM |
| M.e.society's Institute Of Management And Career Courses (imcc) | 0.90 KM |
| Mes-imcc College | 0.94 KM |
| Mes Senior College | 0.95 KM |
| Smt. Kashibai Nawale College Of Commerce | 1.06 KM |
| Temples Near by Tej Navya | |
|---|---|
| Shri Dashbhuja Ganpati Mandir | 0.17 KM |
| Shri Mrutyunjayeshwar Mandir | 0.85 KM |
| Shree Swami Samarth Maharaj Temple Pune | 1.12 KM |
| Tiwari Gajanan Maharaj Temple | 1.29 KM |
| Shree Navshya Maruti Temple | 1.53 KM |
| Mhatoba | 1.58 KM |
| Hatti Ganpati Mandir | 2.22 KM |
| Shree Vitthal Rukmini Temple Vitthalwadi | 2.41 KM |
| Shree Devdeveshwar Temple (parvati Temple) | 2.56 KM |
| Shri Siddhivinayak Ganesh Mandir Sarasbaug | 2.86 KM |
| Supermarkets Near by Tej Navya | |
|---|---|
| Prem Sagar Supermarket | 0.57 KM |
| Bhagwati Mini Market | 0.96 KM |
| Dhanalaxmi Super Market | 1.25 KM |
| Kirti Supermarket | 1.66 KM |
| Madhur Super Shopee | 1.86 KM |
| Star Localmart Paud Road | 2.37 KM |
| Gsmarket (geetanjalee Super Market Pvt. Ltd.) | 2.45 KM |
| Grahak Peth | 2.63 KM |
| Grahak Peth Grocery Section | 2.69 KM |
| Hanuman Super Market | 2.83 KM |
| Clothings Near by Tej Navya | |
|---|---|
| Firstcry.com Store Pune Kothrud Success Square | 0.99 KM |
| Go Colors Store - Karve Nagar | 1.52 KM |
| Westside - Fc Road | 2.22 KM |
| Peter England Factory Outlet Paud Road | 2.45 KM |
| Shivshahi Paithani Pune Branch | 2.55 KM |
| Pantaloons (jva Mall | 2.59 KM |
| Zudio - Pune | 2.71 KM |
| C'lai World Tilak Road | 2.88 KM |
| Jaihind | 2.96 KM |
| Clai World Bajirao Road | 2.97 KM |
Check Travel Time
Connecting Roads - Tej Navya
Erandwane is a prominent locality in Pune, made famous by many reputed colleges and schools, such as the Film and Television Institute of India. Located near the centre of Pune on the southern side, Erandwane is one of the city's prime areas. Due to its popularity, there are several hostel and PG accommodations for men and women in Erandwane. Marathi and English are the most commonly spoken languages in the area. Erandwane is
Properties in Tej Navya & Top Sellers
Tejraj Promoters and Builders, a renowned real estate developer in Pune, brings you a collection of extraordinary projects that display their expertise and commitment to quality. With a remarkable track record spanning over 25 years, Tejraj Group has earned its reputation for crafting exquisite lifestyle residences and commercial spaces.Since its inception in 1994, the company has delivered exceptional projects that cater to the diverse needs and aspirations of discerning individuals.
This website is only for the purpose of providing information regarding real estate projects in different geographies. Any information which is being provided on this website is not an advertisement or a solicitation. The company has not verified the information and the compliances of the projects. Further, the company has not checked the RERA* registration status of the real estate projects listed herein. The company does not make any representation in regards to the compliances done against these projects. Please note that you should make yourself aware about the RERA* registration status of the listed real estate projects.
*Real Estate (regulation & development) act 2016.