During Q4'2025, average property prices for Windsor Majesty moved from ₹ 7,350/sqft to ₹ 7,450/sqft, reflecting a 1.36% rise.

100% Service, 0% Brokerage
Highly unlikely, but if you find a lower price anywhere, tell us and we will match it.
Our sales personnel are accountable for every step
During Q4'2025, average property prices for Windsor Majesty moved from ₹ 7,350/sqft to ₹ 7,450/sqft, reflecting a 1.36% rise.
During Q3'2025, average property prices for Windsor Majesty moved from ₹ 7,150/sqft to ₹ 7,350/sqft, reflecting a 2.80% rise.
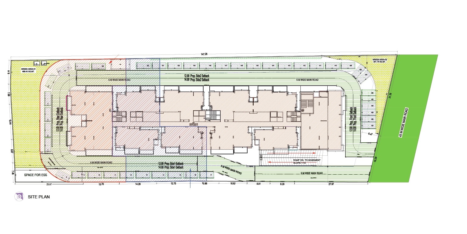
Windsor Majesty, located in Raj Nagar Extension, features a single building structure situated within a meticulously planned site. The project incorporates two distinct green areas, 'GREEN AREA-01' spanning 409.45 SQ.MT. and 'GREEN AREA-02' covering 201.76 SQ.MT., enhancing the overall environment. This master plan does not detail the number of units or towers, nor does it specify project launch or completion dates.
The land use primarily focuses on the central building block, which is surrounded by green spaces and essential services. We have 'GREEN AREA-01' and 'GREEN AREA-02' designated for landscape purposes. A specific 'SPACE FOR ESS' (Electrical Sub-Station) is also allocated on the property. The plan does not explicitly detail the residential versus commercial allocation for the main building block or indicate density per acre.
| Master Bedroom-Walls | Acrylic Emulsion |
| Master Bedroom-Flooring | Vitrified Tiles |
| Other Bedrooms-Flooring | Vitrified Tiles |
| Walls | Acrylic Emulsion |
| Living Area-Flooring | Vitrified Tiles |
| Structure | RCC Frame Structure |
| Schools Near by Windsor Majesty | |
|---|---|
| Parevartan School | 0.23 KM |
| Gd. Goenka Public School | 0.32 KM |
| A.k Childrens Academy | 0.45 KM |
| Jd Global School | 0.97 KM |
| Ndm Public School Uttranchal Nagar Nandgram | 1.34 KM |
| Srm Public School Ghaziabad | 1.34 KM |
| Great Om Son Public School | 1.46 KM |
| The School Of Mathematics Ghaziabad | 1.46 KM |
| Gyan International Public School | 1.48 KM |
| S B N Public School | 1.52 KM |
| Bus Stops Near by Windsor Majesty | |
|---|---|
| Rajnagar Extensions Ghaziabad | 1.88 KM |
| Sihani Chungi | 2.80 KM |
| Raj Nagar Extension Chaurah | 3.14 KM |
| Nandgram Mode | 3.22 KM |
| Hindon River | 3.43 KM |
| Arthala | 3.53 KM |
| Meerut More | 3.54 KM |
| Ghaziabad | 3.78 KM |
| Sanskar World School | 4.10 KM |
| Mohan Nagar | 4.16 KM |
| Hospitals Near by Windsor Majesty | |
|---|---|
| Avamed Hospital | 0.35 KM |
| Ramanuuj Hospital | 1.42 KM |
| St Joseph's Hospital | 2.37 KM |
| Atour Hospital | 2.53 KM |
| Navin Hospital | 3.02 KM |
| Kansal Multispeciality Hospital | 3.08 KM |
| Om Healthcare Hospital | 3.16 KM |
| Smart Hospital | 3.17 KM |
| Vardan Multi Specialty Hospital | 3.31 KM |
| Sarita Goel Hospital | 3.31 KM |
| Clinics Near by Windsor Majesty | |
|---|---|
| Dr Ritu Choudhary | 0.56 KM |
| Mb The Wings Learning Centre (farha Saif- Speech Therapy | 0.65 KM |
| Mom's Belief The Wings Learning Center | 0.65 KM |
| Bagdi Dental Clinic | 0.70 KM |
| Minakshi Child Development Center | 0.70 KM |
| Re-hab Dental Clinic | 0.75 KM |
| Dr P Kumar - Pediatrician In Raj Nagar Extension I Child Specialist In Raj Nagar Extension I Child D | 0.85 KM |
| Dr Omkar Singh Mbbs Md (medicine) Diabetologist And Consultant Physician | 0.85 KM |
| Qualident Dental And Implant Centre | 0.92 KM |
| Dr Anshul Varshney Best Physician | 0.98 KM |
| Gym Fitness Near by Windsor Majesty | |
|---|---|
| Praveer Fitness Mantra | 0.60 KM |
| Fitness Sage | 0.70 KM |
| D' Soul Fitness | 0.78 KM |
| Fwf Aerobics & Zumba | 0.79 KM |
| Unisex B Positive Fitness Gym | 0.80 KM |
| Pahalwan Gym | 0.82 KM |
| Infinity Gym | 1.17 KM |
| Fitmania Gym | 1.20 KM |
| In Shape Gym - Available On Cult.fit | 1.29 KM |
| Heal 2 Fit - Fitness/dietician/physiotherapist/yoga/pregnancy Yoga Classes In Ghaziabad | 1.31 KM |
| College and Universities Near by Windsor Majesty | |
|---|---|
| Manyavar Kanshiram Government Degree College | 1.83 KM |
| Pt. Tejram College Of Education | 1.87 KM |
| Christ (deemed To Be University) Delhi Ncr | 2.27 KM |
| Raj Kumar Goel Institute Of Technology | 3.07 KM |
| Rkgitm | 3.17 KM |
| Ram Chameli Chadha Vishvas Girls College | 3.23 KM |
| I.t.s College Mohan Nagar Ghaziabad | 3.65 KM |
| D.s. Institute Of Technology & Management | 3.72 KM |
| Kamkus College Of Law | 3.86 KM |
| Krishna Engineering College | 4.05 KM |
| Restaurants Near by Windsor Majesty | |
|---|---|
| Crops & Curries | 1.86 KM |
| Handi Highway Dining | 4.19 KM |
| Cinch | 4.29 KM |
| The Food Workshop | 4.29 KM |
| Asap - As Spicy As Possible Diner | 4.29 KM |
| Anjuna Garden | 4.35 KM |
| #tym Cafe & Restaurant | 4.45 KM |
| Your's Pizza | 4.53 KM |
| Clip Kitchen | 4.84 KM |
| The Red Pepper | 4.93 KM |
| Supermarkets Near by Windsor Majesty | |
|---|---|
| The Great Northern Bazaar-gnb Mall | 0.34 KM |
| More Supermarket - Rajnagar Extension North | 1.65 KM |
| Reliance Smart Point And Pharmacy | 2.78 KM |
| Spar Hypermarket | 3.94 KM |
| More Supermarket - Sector 10 Rdc | 4.20 KM |
| 24seven | 4.53 KM |
| Vdh Store(veer Di Hatti) | 5.14 KM |
| Goel Stores | 5.18 KM |
| More Supermarket | 5.18 KM |
| Hitkari The Departmental Store | 5.42 KM |
| Clothings Near by Windsor Majesty | |
|---|---|
| Firstcry.com Store Ghaziabad Raj Nagar Extension | 1.80 KM |
| Bodycare | 1.83 KM |
| Damensch Vvip Mall - Exclusive Store | 1.85 KM |
| Kiaasa | Best Ethnic Wear | Kw Delhi 6 Mall | 2.11 KM |
| Biba (ghaziabad) | 2.11 KM |
| Meena Bazaar | 2.45 KM |
| Jockey Exclusive Store | 2.47 KM |
| Me N Moms | 2.47 KM |
| Raymond Apparel | 3.87 KM |
| Pantaloons (world Square Mall | 3.92 KM |
| Temples Near by Windsor Majesty | |
|---|---|
| Old Shiv Mandir | 1.96 KM |
| Sai Upvan Temple | 3.56 KM |
| Mohan Nagar Durga Mandir | 3.64 KM |
| Kalibari Temple | 3.82 KM |
| Kesari Mata Mandir | 3.86 KM |
| Radha Krishna Temple Mohan Nagar | 4.12 KM |
| Hanuman Mandir | 4.26 KM |
| Thakurdwara Mandir | 4.28 KM |
| Shri Shiv Shakti Mandir | 4.41 KM |
| Shani Dev Mandir | 4.42 KM |
Check Travel Time
Connecting Roads - Windsor Majesty
Raj Nagar Extension is a developing residential locality in Ghaziabad and is located adjacent to NH-9 and NH-34. This famous locality is surrounded by key locations such as Sanjay Nagar and Raj Nagar. It provides easy access to the national capital and has many affordable properties. This locality is close to many business hubs and is a hub for job-seekers. Since it is just a few kilometres away from Noida,
Properties in Windsor Majesty & Top Sellers
This website is only for the purpose of providing information regarding real estate projects in different geographies. Any information which is being provided on this website is not an advertisement or a solicitation. The company has not verified the information and the compliances of the projects. Further, the company has not checked the RERA* registration status of the real estate projects listed herein. The company does not make any representation in regards to the compliances done against these projects. Please note that you should make yourself aware about the RERA* registration status of the listed real estate projects.
*Real Estate (regulation & development) act 2016.