Squareyards Logo
DataIntelligence
New Advertise with us Sell or Rent Property
Login
  • Facebook
  • Linkedin
  • Twitter
  • Whatsapp
raheja vedaanta apartment 3bhk 2490sqft 1
  • raheja vedaanta tower view1
  • raheja vedaanta location image1
  • raheja vedaanta master plan image1
  • raheja vedaanta clubhouse external image9
  • raheja vedaanta amenities features10
  • raheja vedaanta apartment interiors11
  • raheja vedaanta project tower view4
  • 9 Photos

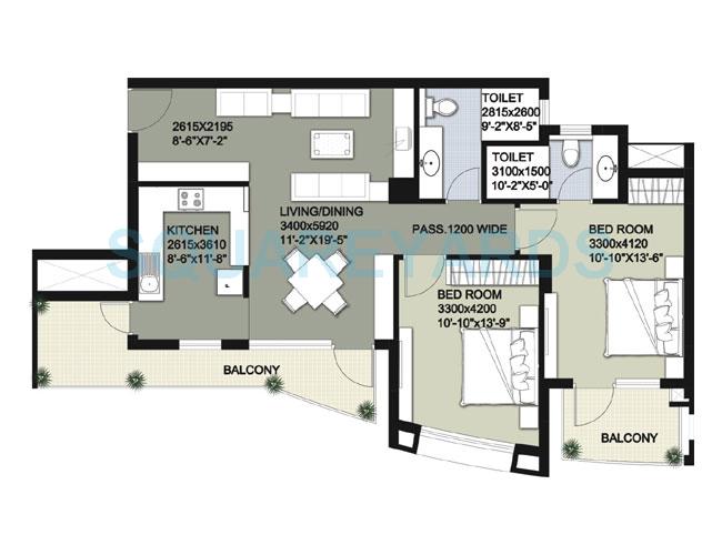
3 BHK 2490 Sq. Ft. Apartment in Raheja Vedaanta

1.79 Cr
Status: Ready to Move
  •   1221 Views
  •   5 Enquiries
  • 2 BHK-3 BHK-5 BHK Apartment, Penthouse from 1365 Sq. Ft. to 6027 Sq. Ft. (Saleable)
  • 2 Living Area(s) 1 Kitchen(s) 3 Bath Rooms(s)
  • 4 Balconies (145 Sq. Ft.)
*Disclaimer
The carpet area & built-up area shown above are based on approximate calculations performed on the floor plans obtained from publicly available sources. The accuracy and completeness of the information is not guaranteed. In providing this information, Square Yards does not assume any responsibility or liability.
  • Saleable Area - 2490 Sq. Ft.
tn raheja vedaanta project flagship1

Dwarka Expressway, Gurgaon

97.99 Lac to 4.33 Cr
Ready to Move

About Raheja Vedaanta - 3 BHK 2490 Sq. Ft. Apartment

3 BHK 2490 Sq.Ft.Apartment in Raheja Vedaanta Sector 108 of Gurgaon. The unit has 3 bedrooms, 2 living areas, 3 bathrooms and 4 balconies. It also has 1 servant room. Largest bedroom has a size of 17.75 Sq Ft X 10.83 Sq Ft while the next largest is 13.75 Sq Ft X 10.83 Sq Ft .

Inside Area Analysis of 3 BHK 2490 Sq. Ft. Apartment in Raheja Vedaanta

Inside Area

Living/Common Areas

Length (Ft.) Breadth (Ft.) Area (Sq. Ft.)
Entrance Foyer 6.08 7.83 47.65
Passage - - 44
Dining 20.08 10.67 214.22
Living 20.50 17.92 367.29

Room/Private Areas

Length (Ft.) Breadth (Ft.) Area (Sq. Ft.)
Bedroom 13.50 10.83 146.25
Bedroom 13.75 10.83 156.96
Master Bedroom 17.75 10.83 192.29

Open Areas

Length (Ft.) Breadth (Ft.) Area (Sq. Ft.)
Shared Balcony - - 28
Attached Balcony - - 70
Attached Balcony - - 32
Attached Balcony - - 15

Others

Length (Ft.) Breadth (Ft.) Area (Sq. Ft.)
Servant Bath 6.08 3.67 22.31
Kitchen 9.08 12.50 113.54
Servant Room 9.33 6.50 60.67

Raheja Vedaanta - Floor Plans

2 BHK
3 BHK
5 BHK
i *Disclaimer

This website is only for the purpose of providing information regarding real estate projects in different geographies. Any information which is being provided on this website is not an advertisement or a solicitation. The company has not verified the information and the compliances of the projects. Further, the company has not checked the RERA* registration status of the real estate projects listed herein. The company does not make any representation in regards to the compliances done against these projects. Please note that you should make yourself aware about the RERA* registration status of the listed real estate projects.

*Real Estate (regulation & development) act 2016.
Contact our Real Estate Experts
Enable updates through WhatsApp
Enter Your Mobile Number
Verify your Number

We have sent you message with 4 digit
verification code (OTP) on

Change
Did not receive the code?
  • Zero Brokerage

    100% Service, 0% Brokerage. We charge our customers nothing. Not today, not ever.

  • Lowest Price Guaranteed

    Highly unlikely, but if you find a lower price (from the developer) for the same home you want to buy, tell us and we will match it.

  • Full Service Support

    Our sales personnel are customer advocates and are accountable for every step in the process – from search & discovery to site visits, transactions, home loans and post-sales service.

Country/City