Squareyards Logo
DataIntelligence
New Advertise with us Sell or Rent Property
Login
  • Facebook
  • Linkedin
  • Twitter
  • Whatsapp
vatika signature two villa 4bhk 4538sqft 1
  • vatika signature two project large image3 thumb
  • vatika signature two tower view5
  • vatika signature two tower view6
  • vatika signature two master plan image7
  • vatika signature two location image8
  • 6 Photos

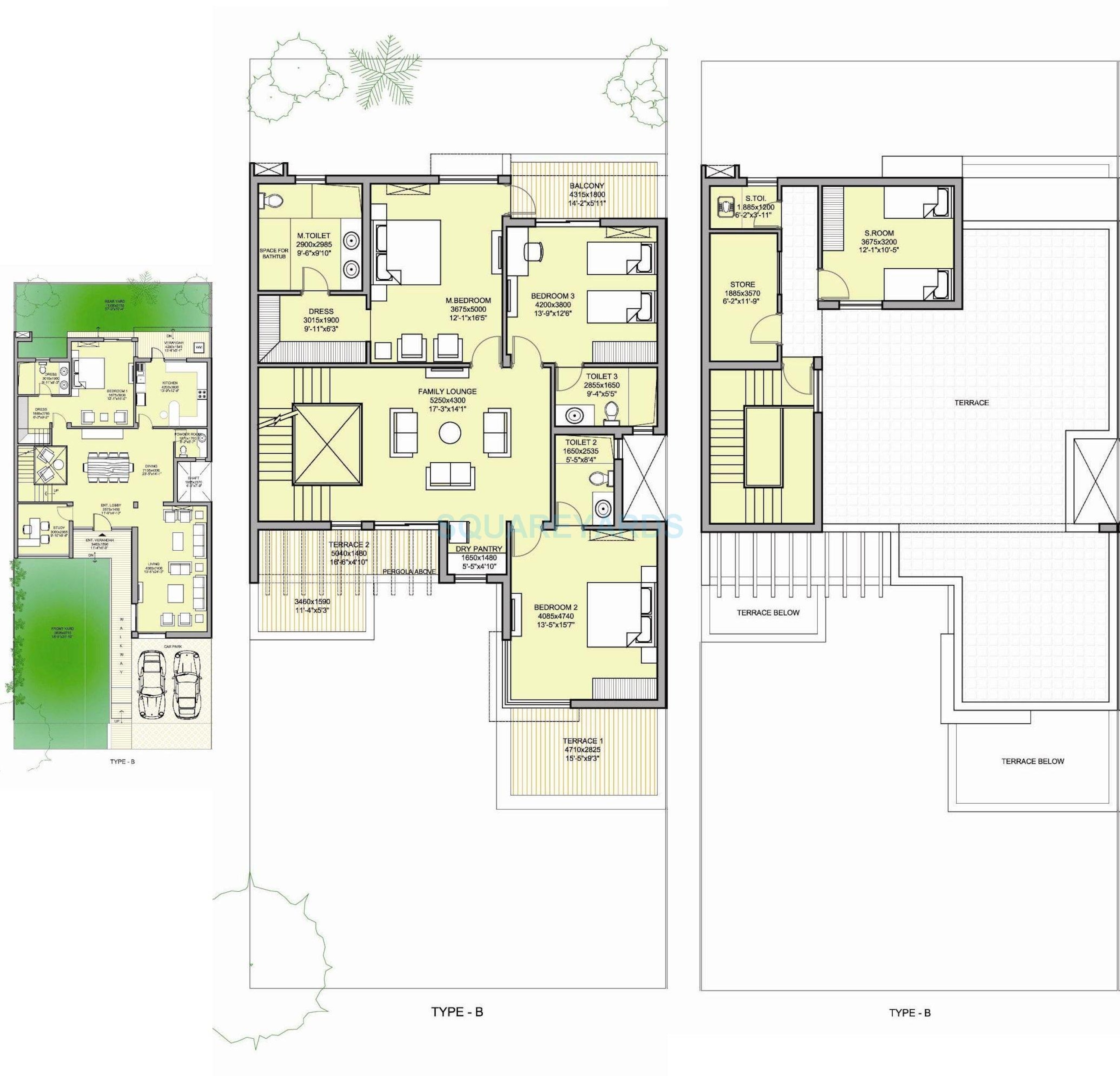
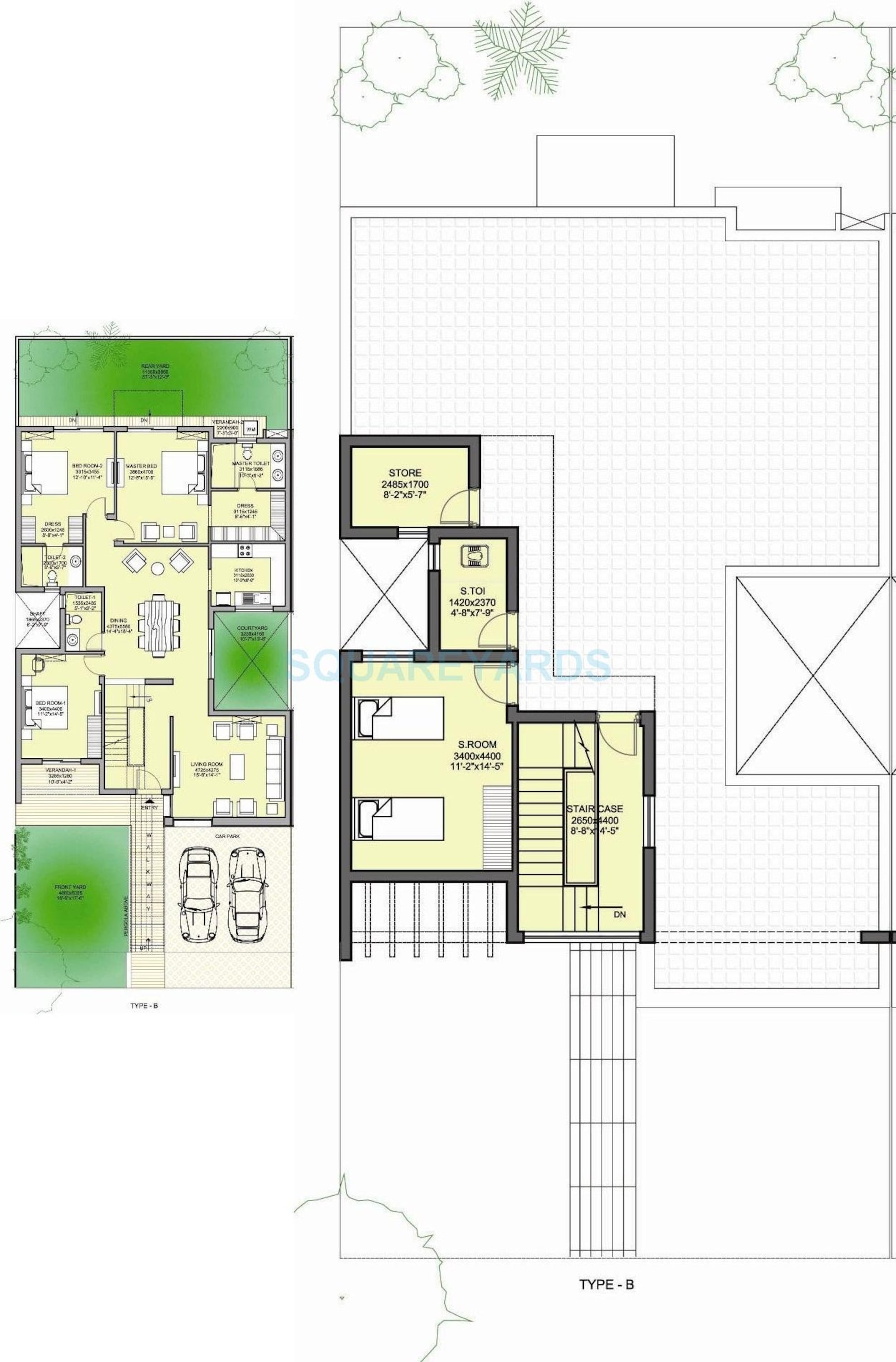
4 BHK 4538 Sq. Ft. Villa in Vatika Signature Two

Price on Request
Status: Well Occupied
  •   6198 Views
  •   5 Enquiries
  • 3 BHK-4 BHK-5 BHK Villa from 2160 Sq. Ft. to 4538 Sq. Ft. (Saleable)
  • 3 Living Area(s) 2 Kitchen(s) 5 Bath Rooms(s)
  • 1 Balconies (83 Sq. Ft.)
*Disclaimer
The carpet area & built-up area shown above are based on approximate calculations performed on the floor plans obtained from publicly available sources. The accuracy and completeness of the information is not guaranteed. In providing this information, Square Yards does not assume any responsibility or liability.
  • Saleable Area - 4538 Sq. Ft.
tn vatika signature two project flagship1

New Gurgaon, Gurgaon

Price on Request
Well Occupied

About Vatika Signature Two - 4 BHK 4538 Sq. Ft. Villa

4 BHK 4538 Sq.Ft.Villa in Vatika Signature Two Sector 82 of Gurgaon. The unit has 4 bedrooms, 3 living areas, 5 bathrooms and 1 balconies. It also has 1 servant room and 1 study room. Largest bedroom has a size of 12.08 Sq Ft X 16.50 Sq Ft while the next largest is 12.08 Sq Ft X 16.42 Sq Ft .

Inside Area Analysis of 4 BHK 4538 Sq. Ft. Villa in Vatika Signature Two

Inside Area

Others

Length (Ft.) Breadth (Ft.) Area (Sq. Ft.)
Kitchen 13.75 12.67 174.17
Servant Room 12.08 10.42 125.87

Open Areas

Length (Ft.) Breadth (Ft.) Area (Sq. Ft.)
Terrace - - 350

Room/Private Areas

Length (Ft.) Breadth (Ft.) Area (Sq. Ft.)
Study Room 9.83 9.67 95.06

Open Areas

Length (Ft.) Breadth (Ft.) Area (Sq. Ft.)
Terrace 15.42 9.25 142.6

Living/Common Areas

Length (Ft.) Breadth (Ft.) Area (Sq. Ft.)
Family Lounge 17.25 14.08 242.94

Open Areas

Length (Ft.) Breadth (Ft.) Area (Sq. Ft.)
Terrace 16.50 4.83 135

Living/Common Areas

Length (Ft.) Breadth (Ft.) Area (Sq. Ft.)
Living 13.50 24.25 327.38

Open Areas

Length (Ft.) Breadth (Ft.) Area (Sq. Ft.)
Attached Balcony 14.17 5.92 83.82

Living/Common Areas

Length (Ft.) Breadth (Ft.) Area (Sq. Ft.)
Dining 23.42 14.08 329.79

Open Areas

Length (Ft.) Breadth (Ft.) Area (Sq. Ft.)
Private Garden/Lawn 18.00 11.83 213

Living/Common Areas

Length (Ft.) Breadth (Ft.) Area (Sq. Ft.)
Entrance Foyer 11.75 4.83 56.79

Open Areas

Length (Ft.) Breadth (Ft.) Area (Sq. Ft.)
Verandah 11.33 5.25 59.5

Room/Private Areas

Length (Ft.) Breadth (Ft.) Area (Sq. Ft.)
Bedroom 13.42 15.58 209.08

Open Areas

Length (Ft.) Breadth (Ft.) Area (Sq. Ft.)
Verandah 13.75 5.08 69.9

Room/Private Areas

Length (Ft.) Breadth (Ft.) Area (Sq. Ft.)
Bedroom 13.75 12.50 171.88

Open Areas

Length (Ft.) Breadth (Ft.) Area (Sq. Ft.)
Private Garden/Lawn 37.50 10.33 387.5

Room/Private Areas

Length (Ft.) Breadth (Ft.) Area (Sq. Ft.)
Master Bedroom 12.08 16.42 198.37
Bedroom 12.08 16.50 199.38

Others

Length (Ft.) Breadth (Ft.) Area (Sq. Ft.)
Servant Bath 6.17 3.92 24.15
Store 6.17 3.92 24.15
Pantry 5.42 4.83 26.18

Vatika Signature Two - Floor Plans

3 BHK
4 BHK
i *Disclaimer

This website is only for the purpose of providing information regarding real estate projects in different geographies. Any information which is being provided on this website is not an advertisement or a solicitation. The company has not verified the information and the compliances of the projects. Further, the company has not checked the RERA* registration status of the real estate projects listed herein. The company does not make any representation in regards to the compliances done against these projects. Please note that you should make yourself aware about the RERA* registration status of the listed real estate projects.

*Real Estate (regulation & development) act 2016.
Contact our Real Estate Experts
Enable updates through WhatsApp
Enter Your Mobile Number
Verify your Number

We have sent you message with 4 digit
verification code (OTP) on

Change
Did not receive the code?
  • Zero Brokerage

    100% Service, 0% Brokerage. We charge our customers nothing. Not today, not ever.

  • Lowest Price Guaranteed

    Highly unlikely, but if you find a lower price (from the developer) for the same home you want to buy, tell us and we will match it.

  • Full Service Support

    Our sales personnel are customer advocates and are accountable for every step in the process – from search & discovery to site visits, transactions, home loans and post-sales service.

Country/City