A total of 6 residential transactions has been registered so far for KVSS Vrushabadri Residency, amounting to ₹ 2 Cr till November 2025.

A total of 6 residential transactions has been registered so far for KVSS Vrushabadri Residency, amounting to ₹ 2 Cr till November 2025.
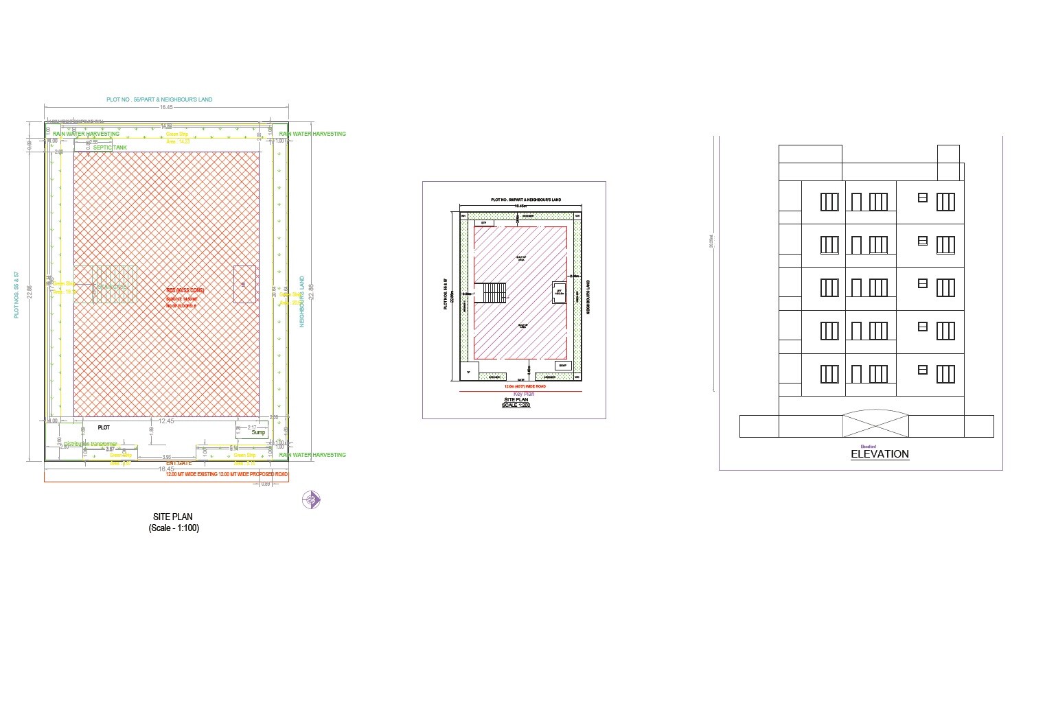
Structural Works reach 24% completion
VRUSHABADRI RESIDENCY, developed by KVSS CONSTRUCTIONS, officially launched on 26-Sep-2024 and expected to complete by 26-Sep-2027. Registered under RERA No. P02200008976. The project comprises 1 towers and offers 10 residential units, with unit sizes ranging from 1442 to 1442 Square feet with total area of 0.09 Acre.
KVSS Vrushabadri Residency is a residential project located in Medchal. It features a single building with an approximate constructed area of 1450 square meters, spanning 4 floors. Launch and completion dates aren't specified on the plan. This property is well-connected, with Nizamabad Road NH 44 just 0.3 km away, and Nehru Outer Ring Road Hyderabad at 4.0 km.
The property is situated on Plot No. 56/Part, bordering Plot Nos. 55 & 57 and adjacent neighbor's land. The plan designates areas for residential construction, green spaces, and essential utilities like rain water harvesting provisions.
| Master Bedroom-Walls | Oil Bound Distemper |
| Master Bedroom-Flooring | Vitrified Tiles |
| Other Bedrooms-Flooring | Vitrified Tiles |
| Walls | Oil Bound Distemper |
| Living Area-Flooring | Vitrified Tiles |
| Structure | RCC Frame Structure |
| Schools Near by KVSS Vrushabadri Residency | |
|---|---|
| St.anns High School-medchal. | 0.16 KM |
| Cyber Age Pupils School | 0.19 KM |
| Spoorthy Junior College | 0.40 KM |
| Geetha Junior College Medchal | 0.52 KM |
| K V G High School | 0.55 KM |
| Vignan Junior College | 0.77 KM |
| Hi-tech Modern Residential High School | 0.77 KM |
| P.v. High School | 0.78 KM |
| St. Patrick's High School. Medchal | 0.91 KM |
| N S R Junior College | 0.92 KM |
| Bus Stops Near by KVSS Vrushabadri Residency | |
|---|---|
| Medchal Bus Terminal | 0.31 KM |
| Ragavendra Nagar Colony | 0.54 KM |
| Medchal Ambedkar Chowrasta | 0.74 KM |
| Athvelly | 1.52 KM |
| Checkpost | 2.07 KM |
| Kistapure | 2.09 KM |
| Medchal | 2.26 KM |
| Ida Medchal | 2.68 KM |
| Gubba | 2.68 KM |
| Ravalkole Village | 2.78 KM |
| Hospitals Near by KVSS Vrushabadri Residency | |
|---|---|
| Ushodaya Laser Eye Hospital | 0.22 KM |
| Samprada Multi Speciality Hospital | 0.31 KM |
| Pragnya Hospital - Best Super Speciality Hospital In Medchal | 0.34 KM |
| Advitha Children And Multispeciality Hospital | 0.36 KM |
| V V R Hospital | 0.38 KM |
| Medinova Super Speciality Hospital-best Hospital In Medchal | 0.40 KM |
| Surya Childrens Hospital | 0.45 KM |
| Aditya Hospitals - Medchal | 0.50 KM |
| Oxyvision Laser Eye Hospital | 0.52 KM |
| Leela Hospital - Emergency & Multi Speciality Hospital | 0.52 KM |
| Clinics Near by KVSS Vrushabadri Residency | |
|---|---|
| Navya Nursing Home | 0.21 KM |
| Dhanvantari Physiotherapy Centre | 0.27 KM |
| Dr . Rajus Hospital | 0.38 KM |
| Slv Ent Clinic | 0.40 KM |
| Aadi Children's Clinic | 0.47 KM |
| K K Dental | Advanced Root Canal & Smile Design Centre | 0.51 KM |
| Sri Balaiah Physiotherapy Clinic | 0.52 KM |
| Tesla Diagnostics - Health Checkup Packages & Diagnostic Center In Medchal | 0.52 KM |
| Ksr Physiotherapy And Chiropractic Centre | 0.57 KM |
| Accelerate(rathnaiah Physiotherapy) | 0.60 KM |
| Temples Near by KVSS Vrushabadri Residency | |
|---|---|
| Sri Prassannanjaneya And Sri Rama Temple | 0.31 KM |
| Yedugulla Durgamma Devalayam | 0.32 KM |
| Sri Annapurneshwari Sametha Sri Kashi Vishveswaralayam | 0.33 KM |
| Mallanna Temple | 0.74 KM |
| Sri Gadimysamma Temple | 1.11 KM |
| Hanuman | 1.42 KM |
| Yellamma Temple And Shitala Mata Mandir | 1.50 KM |
| Sri Jain Temple 72 Jinalay Medchal | 1.61 KM |
| Sri Kasi Vishwanath Swamy Temple | 1.72 KM |
| Sri Ramalingeshwara Swamy Temple | 1.84 KM |
| Gym Fitness Near by KVSS Vrushabadri Residency | |
|---|---|
| The Life Gym | 0.21 KM |
| Stark Fitness Studio - Available On Cult.fit | Gyms In Medchal | 0.25 KM |
| Outdoor Gym Medchal | 0.38 KM |
| Arnold Gym - The Fitness Center | 0.55 KM |
| Xtreme Fitness Gym Medchal | 2.02 KM |
| Olympia Fitness Gym | 4.84 KM |
| Kk Warehouse | 5.14 KM |
| Sky Fitness Studio | 7.51 KM |
| Fierce Fitness Gym | 7.74 KM |
| Shape Your Body | 8.03 KM |
| College and Universities Near by KVSS Vrushabadri Residency | |
|---|---|
| Gayathri Degree College | 0.20 KM |
| Akshara Degree College | 0.26 KM |
| Government College Medchal | 0.76 KM |
| Malla Reddy Engineering College & Management Sciences | 1.93 KM |
| Cmr Institute Of Technology | 3.43 KM |
| Cmr College Of Engineering & Technology | 3.49 KM |
| Cmr Group Of Institutions | 3.60 KM |
| Dhruva College Of Management | 3.69 KM |
| Cmr Engineering College | 3.80 KM |
| Govt Polytechnic Medchal | 3.98 KM |
| Mosques Near by KVSS Vrushabadri Residency | |
|---|---|
| Masjid And Dargah Medchal | 0.31 KM |
| Jama Masjid Madina | 1.13 KM |
| Masjid E Anware Noor | 1.43 KM |
| Athvelly Masjid | 1.70 KM |
| Old Muslim Masjid | 4.12 KM |
| Masjid Zainab | 4.47 KM |
| Masjid-e-qutub Shahi & Eid Gah | 5.12 KM |
| Masjid-e-shameem | 8.31 KM |
| Musjid Mosque | 8.42 KM |
| Jama Masjid Mohammadiya | 8.54 KM |
| Supermarkets Near by KVSS Vrushabadri Residency | |
|---|---|
| Swachh Mart | 0.90 KM |
| National Mart-india Ka Hypermart | 1.54 KM |
| New Dc | 3.46 KM |
| Green Olives Supermarket | 5.85 KM |
| Bigbasket Dc Kandlakoya Medchal | 6.36 KM |
| More Retail | 7.48 KM |
| Mahagro Supermarket | 7.51 KM |
| Dmart Grocery Wearhouse | 7.69 KM |
| Nmr Mart Supermarket | 7.72 KM |
| Veer Balaji Confectioners And Kirana General Stores Whole Sale | 9.43 KM |
| Home Decors Near by KVSS Vrushabadri Residency | |
|---|---|
| Sleepwell Exclusive Dealer - Kistapur Road | 0.36 KM |
| Ap Beautiful Homes Choudhary Brothers | 0.45 KM |
| Monarch Ergo Pvt Ltd. (unit - 3) | 3.01 KM |
| Customfurnish Furniture Factory | 5.73 KM |
| Rivigo.making.humn.logistic | 6.09 KM |
| Wakefit - Furniture Store In Kompally | 7.63 KM |
| Customfurnish Central Warehouse | 8.19 KM |
| Sleepfine Mattress And Furniture Industry | 8.31 KM |
| Astral Pipes | 8.51 KM |
| Sleepwell World(art Furniture) At Kompally | 9.98 KM |
Check Travel Time
Connecting Roads - KVSS Vrushabadri Residency
The city of Medchal is located in the Medchal–Malkajgiri district of the Indian state of Telangana. It is an outer suburb of Hyderabad. It serves as the administrative centre for the Medchal Mandal, located within the district's Keesara revenue division. This is an industrially developed area. Originally called Medichelama (Medi means fig, and Chelama means spring), the name Medchal was not given to the city until much later. The new
This website is only for the purpose of providing information regarding real estate projects in different geographies. Any information which is being provided on this website is not an advertisement or a solicitation. The company has not verified the information and the compliances of the projects. Further, the company has not checked the RERA* registration status of the real estate projects listed herein. The company does not make any representation in regards to the compliances done against these projects. Please note that you should make yourself aware about the RERA* registration status of the listed real estate projects.
*Real Estate (regulation & development) act 2016.