During Q4'2025, average property prices for Darshan Orchid moved from ₹ 7,350/sqft to ₹ 7,900/sqft, reflecting a 7.48% rise.

100% Service, 0% Brokerage
Highly unlikely, but if you find a lower price anywhere, tell us and we will match it.
Our sales personnel are accountable for every step
During Q4'2025, average property prices for Darshan Orchid moved from ₹ 7,350/sqft to ₹ 7,900/sqft, reflecting a 7.48% rise.
During Q2'2025, average property prices for Darshan Orchid moved from ₹ 6,950/sqft to ₹ 7,350/sqft, reflecting a 5.76% rise.
Structural Works reach 79% completion, External Works has reached 25%, Internal finishing stands at 50%, MEP Services including lift and staircases, are now 20% done.
A total of 21 out of 123 launched units have been booked as of March 2025, including 26% of 1 BHK(14 out of 54 units), 10% of 2 BHK(7 out of 69 units).
Structural Works reach 75% completion, External Works has reached 10%, Internal finishing stands at 23%, MEP Services including lift and staircases, are now 11% done.
A total of 13 out of 123 launched units have been booked as of December 2024, including 15% of 1 BHK(8 out of 54 units), 7% of 2 BHK(5 out of 69 units).
Structural Works reach 67% completion, Internal finishing stands at 5%, MEP Services including lift and staircases, are now 8% done.
A total of 9 out of 123 launched units have been booked as of June 2024, including 11% of 1 BHK(6 out of 54 units), 4% of 2 BHK(3 out of 69 units).
A total of 2 out of 123 launched units have been booked as of November 2023, including 3% of 2 BHK(2 out of 69 units).
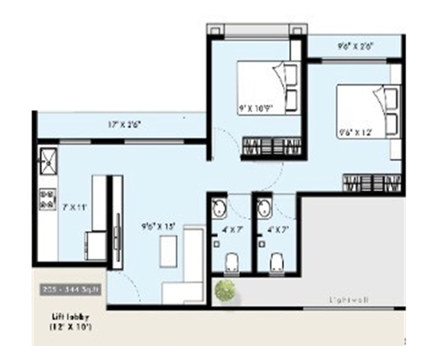
Orchid, developed by D Bafna Properties, officially launched on 08-Sep-2023 and expected to complete by 31-May-2026. Registered under RERA No. P52000052547. The project comprises 1 towers and offers 123 residential units, including 1 BHK, 2 BHK, with unit sizes ranging from 366 to 721 Square feet across a total area of 0.61 Acre.
| Master Bedroom-Walls | Oil Bound Distemper |
| Master Bedroom-Flooring | Vitrified Tiles |
| Other Bedrooms-Flooring | Vitrified Tiles |
| Walls | Oil Bound Distemper |
| Living Area-Flooring | Vitrified Tiles |
| Structure | RCC Frame Structure |
| Schools Near by Darshan Orchid | |
|---|---|
| Carmel High School | 0.22 KM |
| Psms English Medium School | 1.73 KM |
| Hospitals Near by Darshan Orchid | |
|---|---|
| Soham Hospital | 0.62 KM |
| Sanjivani Hospital | 0.92 KM |
| Mhatre Hospital | 1.80 KM |
| Hotels Near by Darshan Orchid | |
|---|---|
| Hotel Shivrai | 1.70 KM |
| Saubhagya Inn International | 2.94 KM |
| Shopping Malls Near by Darshan Orchid | |
|---|---|
| Alishan Super Market | 0.90 KM |
| Public Bazar | 1.26 KM |
| Post Offices Near by Darshan Orchid | |
|---|---|
| Post Office Pen | 1.08 KM |
| Banks Near by Darshan Orchid | |
|---|---|
| State Bank Of India Pen | 1.28 KM |
| Bus Depots Near by Darshan Orchid | |
|---|---|
| Pen Bus Depot | 1.14 KM |
| Railway Stations Near by Darshan Orchid | |
|---|---|
| Pen Railway Station | 0.98 KM |
Check Travel Time
Connecting Roads - Darshan Orchid
A charming town hidden in the tranquil splendour of the Western Ghats is called Pen, which is located in Navi Mumbai. Pen is a sanctuary for outdoor enthusiasts and nature lovers thanks to its verdant vegetation, undulating hills, and picturesque scenery. Numerous waterfalls, hiking routes, and wildlife sanctuaries dot the area, providing a wealth of options for outdoor adventure. Pen is the perfect refuge for people looking for a break
This website is only for the purpose of providing information regarding real estate projects in different geographies. Any information which is being provided on this website is not an advertisement or a solicitation. The company has not verified the information and the compliances of the projects. Further, the company has not checked the RERA* registration status of the real estate projects listed herein. The company does not make any representation in regards to the compliances done against these projects. Please note that you should make yourself aware about the RERA* registration status of the listed real estate projects.
*Real Estate (regulation & development) act 2016.