A total of 4 residential transactions has been registered so far for Priyal Govind Chintamani, amounting to ₹ 2 Cr till November 2025.

100% Service, 0% Brokerage
Highly unlikely, but if you find a lower price anywhere, tell us and we will match it.
Our sales personnel are accountable for every step
Own this home with EMIs starting at ₹ 23.56 K/month - Check Cibil Linked Loan Estimate
A total of 4 residential transactions has been registered so far for Priyal Govind Chintamani, amounting to ₹ 2 Cr till November 2025.
During Q3'2025, average property prices for Priyal Govind Chintamani moved from ₹ 7,950/sqft to ₹ 8,050/sqft, reflecting a 1.26% rise.
External Works has reached 90%, Internal finishing stands at 70%.
Structural Works reach 80% completion, Internal finishing stands at 38%, MEP Services including lift and staircases, are now 50% done.
A total of 7 out of 20 launched units have been booked as of June 2024, including 33% of SHOP(1 out of 3 units), 50% of OFFICE SPACE(1 out of 2 units), 67% of 1 BHK(2 out of 3 units), 33% of 2 BHK(3 out of 9 units).
Structural Works reach 73% completion.
A total of 2 out of 20 launched units have been booked as of February 2024, including 50% of OFFICE SPACE(1 out of 2 units), 33% of 1 BHK(1 out of 3 units).
Structural Works reach 20% completion.
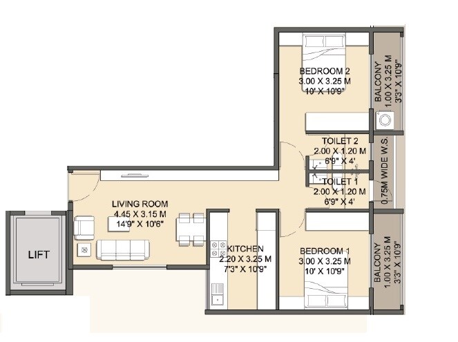
Govind Chintamani, developed by Priyal Spaces, officially launched on 23-Oct-2023 and expected to complete by 31-Dec-2026. Registered under RERA No. P52000053263. The project comprises 1 towers and offers 20 residential units, including OFFICE SPACE, SHOP, 1 BHK, 1 RK, 2 BHK, 4 BHK DUPLEX LEVEL 1, 4 BHK DUPLEX LEVEL 2, with unit sizes ranging from 215 to 732 Square feet across a total area of 0.11 Acre.
| Master Bedroom-Walls | Oil Bound Distemper |
| Master Bedroom-Flooring | Vitrified Tiles |
| Other Bedrooms-Flooring | Vitrified Tiles |
| Walls | Oil Bound Distemper |
| Living Area-Flooring | Vitrified Tiles |
| Structure | RCC Frame Structure |
| Schools Near by Priyal Govind Chintamani | |
|---|---|
| P.e.s. English High School & Jr. College | 0.06 KM |
| Yakub Baig Arts And Commerce Junior College | 0.08 KM |
| Yakub Baig High School & Jr. College (urdu)panvel | 0.08 KM |
| Huda English School | 0.29 KM |
| Gurukul School & Activity Center | 0.68 KM |
| Vithoba Khandappa High School & Junior College | 0.70 KM |
| Rising Star English Pre - Primary School | 0.73 KM |
| K.e.s. English Medium High School | 0.76 KM |
| Rising Star's Public School | 0.89 KM |
| Dew Drops Kindergarten & Primary School | 0.96 KM |
| Bus Stops Near by Priyal Govind Chintamani | |
|---|---|
| Municipality Office | 0.12 KM |
| Panvel Mahanagar Pailka (sainagar - Panvel) | 0.12 KM |
| Dargah Naka | 0.18 KM |
| Kalan Samaj Mandir | 0.33 KM |
| Valmiki Nagar-civil Hospital | 0.36 KM |
| Shivaji Chowk | 0.53 KM |
| Panvel Police Station | 0.60 KM |
| Kanak Sarovar | 0.65 KM |
| Karanjade | 0.77 KM |
| Ratan Saiditya Society Riddhi Siddhi Society | 0.84 KM |
| Hospitals Near by Priyal Govind Chintamani | |
|---|---|
| Panvel Rural Hospital | 0.23 KM |
| Shushrusha Superspeciality Hospital | 0.36 KM |
| Unnati Hospital And Icu | 0.58 KM |
| Panvel Hospital | 0.63 KM |
| Sahastrabudhe Hospital And I.c.u | 0.67 KM |
| Aai Hospital | 0.68 KM |
| Hande Hospital | 0.72 KM |
| Paramount Hospital | 0.72 KM |
| Niramay Hospital | 0.73 KM |
| Nanaware Maternity & General Hospital | 0.74 KM |
| Clinics Near by Priyal Govind Chintamani | |
|---|---|
| Metropolis Pathology Lab | 0.36 KM |
| Vedicure Health Care & Wellness | Panvel | 0.41 KM |
| Titan Eye+ At Panvel | 0.68 KM |
| Progenesis Fertility Center - Best Ivf Center In Panvel | 0.72 KM |
| Gangar Eyenation - Panvel | 0.74 KM |
| Om Digital X-ray | 0.81 KM |
| Laxmi Eye Institute | 0.84 KM |
| Dr. Ketki Patil Mhaske- Ivf - Infertility Specialist Obstetrician And Gynaecologist | 0.86 KM |
| Sonoscan Sonography Centre | 0.88 KM |
| Dr Ajinkya Patil | 0.89 KM |
| Gym Fitness Near by Priyal Govind Chintamani | |
|---|---|
| Rashmi's Sangam Yoga Panvel | 0.36 KM |
| Cross Combat Fitness Centre | 0.37 KM |
| Best Gym In Panvel Aesthetic Arena Fitness Center | No. 1 Trending Fitness Centre In Panvel | 0.40 KM |
| Total Sports & Fitness Panvel | 0.52 KM |
| Image Fitness | 0.58 KM |
| My Gym Pro | 0.72 KM |
| The Muscle Break Gym 24-7 | 0.75 KM |
| Ruhi Sarvang Yoga | 0.85 KM |
| Lighthouse Fitness | 0.98 KM |
| Outraw Gym | 1.17 KM |
| College and Universities Near by Priyal Govind Chintamani | |
|---|---|
| Kohinoor Technical Institute - Panvel | 0.88 KM |
| Government College Of Education Panvel | 1.00 KM |
| Ksa Barns College Panvel | 1.18 KM |
| Ckt College Of Art | 1.57 KM |
| C. K. T. Institute Of Management Studies And Research | 1.58 KM |
| Bhagubai Changu Thakur College Of Law | 1.60 KM |
| C.k.thakur College Sport's Ground | 1.62 KM |
| Shantiniketan Polytechnic | 1.94 KM |
| Bhide's Institute Of Testing Technology Pvt. Ltd. | 1.95 KM |
| S P More College Of Hotel | 1.98 KM |
| Restaurants Near by Priyal Govind Chintamani | |
|---|---|
| Neel Kamal | 1.76 KM |
| Siciliano | 1.82 KM |
| Firangi Halwai | 1.95 KM |
| Kronks - Lounge Bar | 5.81 KM |
| Ikka - Pallavi Avida | 6.12 KM |
| The Amritsar Haveli | 6.12 KM |
| Da Capo Cafe & Bistro | 6.40 KM |
| Cafe Monza | 6.42 KM |
| Highway Break | 6.45 KM |
| Royal Rasoi | 6.48 KM |
| Temples Near by Priyal Govind Chintamani | |
|---|---|
| Virupaksha Mandir | 0.36 KM |
| Shri Balaji Mandir | 0.39 KM |
| Shree Ballaleshwar Mandir | 0.51 KM |
| Balleshwar Temple | 0.52 KM |
| Shani Mandir | 0.54 KM |
| Shitala Devi Mandir | 0.57 KM |
| Durga Mata Mandir | 0.62 KM |
| Gamdevi Temple | 0.98 KM |
| Sai Temple | 1.14 KM |
| Shree Sai Baba Temple Panvel | 1.20 KM |
| Home Decors Near by Priyal Govind Chintamani | |
|---|---|
| Building And Construction Materials Supplier - Infra Market | 0.14 KM |
| Bombay Dyeing | 0.77 KM |
| J. M. Furniture | 1.81 KM |
| Jainsons Furnishing | 2.08 KM |
| Wood Art Furniture | 2.10 KM |
| A1 Furniture Works | 2.23 KM |
| Exclusive Dealer - Exclusive Premium Luxury Mattress Showroom And Shop In Raigad | 2.37 KM |
| Exclusive Dealer(mahadev Furniture) At Kamothe | 3.23 KM |
| Sleepwell Exclusive Dealer - Kamothe | 3.73 KM |
| Infra.market Tiles | 5.02 KM |
| Clothings Near by Priyal Govind Chintamani | |
|---|---|
| Peter England - Men's Clothing Store | 0.63 KM |
| Babyhug Store Mumbai Panvel | 0.76 KM |
| Babyhug Store Mumbai New Panvel | 1.78 KM |
| Peter England Showroom | 1.85 KM |
| Raymond | 2.14 KM |
| Zudio - Panvel | 2.47 KM |
| Cotton Culture - Kamothe | 3.12 KM |
| Cottonking | 3.78 KM |
| Zudio - Kamothe | 4.42 KM |
| Zudio - Kalamboli | 5.29 KM |
Check Travel Time
Connecting Roads - Priyal Govind Chintamani
This website is only for the purpose of providing information regarding real estate projects in different geographies. Any information which is being provided on this website is not an advertisement or a solicitation. The company has not verified the information and the compliances of the projects. Further, the company has not checked the RERA* registration status of the real estate projects listed herein. The company does not make any representation in regards to the compliances done against these projects. Please note that you should make yourself aware about the RERA* registration status of the listed real estate projects.
*Real Estate (regulation & development) act 2016.