A total of 1 residential transactions has been registered so far for Prime Exotica, amounting to ₹ 34 L till October 2025.

100% Service, 0% Brokerage
Highly unlikely, but if you find a lower price anywhere, tell us and we will match it.
Our sales personnel are accountable for every step
Own this home with EMIs starting at ₹ 15.27 K/month - Check Cibil Linked Loan Estimate
A total of 1 residential transactions has been registered so far for Prime Exotica, amounting to ₹ 34 L till October 2025.
During Q3'2025, average property prices for Prime Exotica moved from ₹ 9,500/sqft to ₹ 11,300/sqft, reflecting a 18.95% rise.
A total of 9 out of 39 launched units have been booked as of March 2024, including 20% of 1 BHK(6 out of 30 units), 50% of 1 RK(3 out of 6 units).
A total of 9 out of 39 launched units have been booked as of November 2022, including 20% of 1 BHK(6 out of 30 units), 50% of 1 RK(3 out of 6 units).
Structural Works reach 100% completion, External Works has reached 100%, Internal finishing stands at 100%, MEP Services including lift and staircases, are now 100% done.
Structural Works reach 40% completion, MEP Services including lift and staircases, are now 9% done.
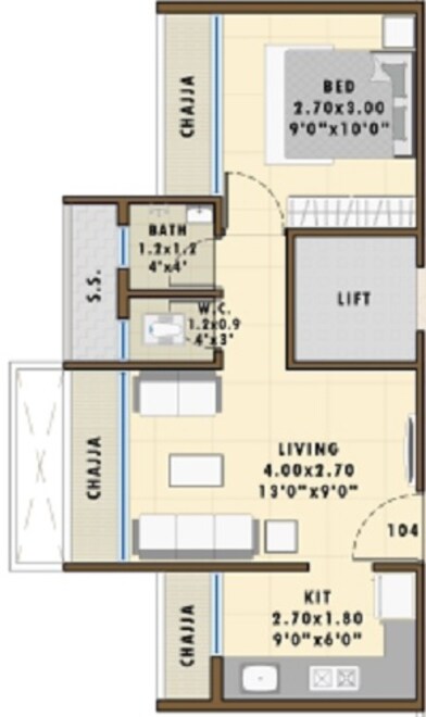
PRIME EXOTICA, developed by PRIME HOMES, officially launched on 30-Oct-2019 and expected to complete by 28-Aug-2023. Registered under RERA No. P52000022840. The project comprises 1 towers and offers 39 residential units, including SHOP, 1 BHK, 1 RK, with unit sizes ranging from 151 to 269 Square feet across a total area of 0.17 Acre.
| Master Bedroom-Walls | Oil Bound Distemper |
| Master Bedroom-Flooring | Vitrified Tiles |
| Other Bedrooms-Flooring | Vitrified Tiles |
| Walls | Oil Bound Distemper |
| Living Area-Flooring | Vitrified Tiles |
| Structure | RCC Frame Structure |
| Schools Near by Prime Exotica | |
|---|---|
| Sau. Shakuntala Ramsheth Thakur School | 1.08 KM |
| Smb International School | 1.43 KM |
| Indian Model Junior College | 1.72 KM |
| Indian Model School Ulwe | 1.74 KM |
| Shri Chhatrapati Shivaji Vidyalaya Gavhan Kopar | 1.78 KM |
| Mit Vishwashanti Gurukul School | 1.82 KM |
| Ramsheth Thakur Public School Ulwe | 2.14 KM |
| Learning Tree Pre Primary And Primary School | 2.16 KM |
| Radcliffe School Ulwe | 2.21 KM |
| Radcliffe Group Of Schools - Ulwe | Cbse School & Jr. College In Ulwe | 2.21 KM |
| Bus Stops Near by Prime Exotica | |
|---|---|
| Gavhan Phata | 0.60 KM |
| Late J.a Bhagat Chowk Shalgar | 1.20 KM |
| Shirke Company | 1.30 KM |
| Om Sai | 1.53 KM |
| Sainagar Vahal | 1.53 KM |
| Ulave Node | 1.59 KM |
| Kharkopar Railway Station | 1.68 KM |
| Shankar Temple | 1.81 KM |
| Bamandongri Railway Station | 1.81 KM |
| Kasturi Heritage | 1.82 KM |
| Hospitals Near by Prime Exotica | |
|---|---|
| Suman Children's Hospital | 1.46 KM |
| Q Hospitals | 1.47 KM |
| Pediatrician Om Sai Hospital | 1.59 KM |
| Shree Siddhivinayak Hospital | 1.63 KM |
| Ulwe Superspeciality Hospital | 1.69 KM |
| Feenixx Hospital | 1.78 KM |
| Apex Hospital | 1.83 KM |
| Kmc Eye & Skin Hospital | 1.83 KM |
| Unity Hospital | 1.91 KM |
| Innovision Eye Hospital & Laser Centre | 2.16 KM |
| Clinics Near by Prime Exotica | |
|---|---|
| Shiv Krupa Clinic | 0.57 KM |
| Patil Clinic Sector 25 | 0.59 KM |
| Dr Priyanka's Aarogyam Clinic | 0.91 KM |
| Dr. Meenal Gajbhiye | 0.99 KM |
| Dr Karande's Bone & Joint Care Multispeciality Hospital | 1.08 KM |
| Pixie Kids And Family Dental Clinic | 1.09 KM |
| Hari Om Clinic | 1.11 KM |
| Diagnohealth Path Lab | Diagnostic Centre In Ulwe | Blood Testing Centre In Ulwe | 1.12 KM |
| Suburban Diagnostics - Pathology Lab In Ulwe (space Palace) | 1.12 KM |
| Metropolis Healthcare Ltd - Diagnostic Centre In Ulwe | 1.15 KM |
| Gym Fitness Near by Prime Exotica | |
|---|---|
| Malang Dance Studio ( Dance | 1.14 KM |
| Mahesh Fitness Gym | 1.30 KM |
| Akos Art And Fitness Studio | 1.37 KM |
| Fitness And Lifestyle Coach - Anees Qureshi | 1.57 KM |
| Kamal Gym | 1.87 KM |
| Aei Fitness | 1.89 KM |
| Yoga Class (shakti Yog Sadhana) | 2.20 KM |
| Urban Gymnation | 2.21 KM |
| B3 Dance + Fitness Hub | 2.25 KM |
| Dance And Fitness Trainer | 2.27 KM |
| College and Universities Near by Prime Exotica | |
|---|---|
| Moru Narayan Mhatre Vidyalaya & Tukaram Narayan Gharat Jr. College | 1.70 KM |
| Disha Computer Institute Ulwe | 2.04 KM |
| Jio Institute | 2.58 KM |
| D Y Patil Deemed To Be University - Navi Mumbai | 5.56 KM |
| Ibsar | 5.68 KM |
| Asha International Institute Of Marine Technology | 5.76 KM |
| Hsna Maritime Education & Research | 5.91 KM |
| Sp Maritime Institute | 6.40 KM |
| B.p. Marine Hotel Management College | 6.46 KM |
| Rashtriya Institute Of Fire Engineering & Safety Management | 6.53 KM |
| Restaurants Near by Prime Exotica | |
|---|---|
| Bong Adda | 5.39 KM |
| Brew House Cafe | 5.73 KM |
| Sammy Sosa | 5.77 KM |
| The Vintage Cafe | 5.77 KM |
| China Bistro | 5.79 KM |
| Shaollin Temple | 5.81 KM |
| Hitchki | 5.81 KM |
| Birista - Biryanis & Kebabs | 5.81 KM |
| Ashwith Family Dining Bar | 5.93 KM |
| Olde Bailey's | 6.12 KM |
| Temples Near by Prime Exotica | |
|---|---|
| Hanuman Mandir | 1.82 KM |
| Langeshwar Mandir | 2.92 KM |
| Shivling Temple | 5.98 KM |
| Sai Baba Mandir | 6.04 KM |
| Shaneshwar Shani Mandir Seawoods | 6.14 KM |
| Gaon Devi Mandir (phanaspada) | 6.16 KM |
| Shri Amruteshwar Mandir | 6.19 KM |
| Gavdevi Mata Mandir (shahbaz) | 6.27 KM |
| Shri Vitthal Mandir | 6.36 KM |
| Gaondevi Temple | 6.79 KM |
| Home Decors Near by Prime Exotica | |
|---|---|
| Mr.diy | 1.36 KM |
| Sleepwell Gallery - Ulwe | 2.11 KM |
| Kurlon Mattress Store | 2.28 KM |
| Duroflex - Mattress | 2.36 KM |
| Arun Enterprises - Fenesta Building Systems | 5.34 KM |
| Arrivae Home Interior Design Centre - Cbd Belapur | 5.59 KM |
| Livspace - Interior Design Studio | 5.75 KM |
| Pepperfry Furniture Shop-store In Belapur | 5.93 KM |
| Bed & Bedding Co. - (the Mattress Store) Nerul | Mattress Shop In Navi Mumbai | 6.21 KM |
| Milan Furnishing | 6.70 KM |
| Food Others Near by Prime Exotica | |
|---|---|
| Havmor Ice Cream | 1.47 KM |
| Ribbons And Balloons - The Cake Shop In Ulwe | 1.57 KM |
| Baskin Robbins - Ice Cream Desserts | 2.34 KM |
| Apsara Ice Creams | 2.37 KM |
| Suchali's Artisan Bakehouse - Belapur | 5.36 KM |
| Natural Ice Cream | 5.42 KM |
| Ribbons And Balloons - The Cake Shop In Seawoods | 6.27 KM |
| Frozen Bottle Seawoods | 6.36 KM |
| Merwans Cake Stop | 6.42 KM |
| Thancos Naturals Karanjade Panvel | 7.09 KM |
Check Travel Time
Connecting Roads - Prime Exotica
This website is only for the purpose of providing information regarding real estate projects in different geographies. Any information which is being provided on this website is not an advertisement or a solicitation. The company has not verified the information and the compliances of the projects. Further, the company has not checked the RERA* registration status of the real estate projects listed herein. The company does not make any representation in regards to the compliances done against these projects. Please note that you should make yourself aware about the RERA* registration status of the listed real estate projects.
*Real Estate (regulation & development) act 2016.