Structural Works reach 29% completion, MEP Services including lift and staircases, are now 3% done.

Structural Works reach 29% completion, MEP Services including lift and staircases, are now 3% done.
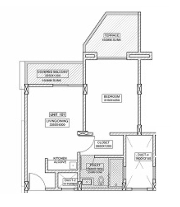
LUXE-28, developed by Pushpam Infra LLP, officially launched on 10-Mar-2025 and expected to complete by 31-Dec-2026. Registered under RERA No. P52000079519. The project comprises 1 towers and offers 28 residential units, including 1 BHK, with unit sizes ranging from 441 to 560 Square feet across a total area of 0.34 Acre.
| Master Bedroom-Walls | Oil Bound Distemper |
| Master Bedroom-Flooring | Vitrified Tiles |
| Other Bedrooms-Flooring | Vitrified Tiles |
| Walls | Oil Bound Distemper |
| Living Area-Flooring | Vitrified Tiles |
| Structure | RCC Frame Structure |
Download master plan & walkthrough video of Pushpam Luxe 28 to explore layout and virtual tour in Kashele, Navi Mumbai.
| Schools Near by Pushpam Luxe 28 | |
|---|---|
| Neral Vidya Mandir | 11.52 KM |
| Sundar English Medium School | 12.16 KM |
| Sharda Mandir Secondary School | 14.68 KM |
| Abhinav Jnyan Mandir School | 14.73 KM |
| Kes English Medium School | 14.94 KM |
| Hospitals Near by Pushpam Luxe 28 | |
|---|---|
| Primary Health Centre Neral | 11.03 KM |
| Sugwekar Clinic | 11.37 KM |
| Kshitij Hospital | 11.44 KM |
| Matoshree Multispeciality Hospital | 14.17 KM |
| Sukham Hospital | 14.17 KM |
| Phadke Hospital | 14.79 KM |
| Hotels Near by Pushpam Luxe 28 | |
|---|---|
| Pinewood Resort Karjat | 11.93 KM |
| Hotel Joy And Banquet Hall | 12.00 KM |
| Modis Resort Karjat | 13.32 KM |
| Supermarkets Near by Pushpam Luxe 28 | |
|---|---|
| Reliance Smart Point | 11.17 KM |
| D Mart Karjat | 13.65 KM |
| Shopping Malls Near by Pushpam Luxe 28 | |
|---|---|
| Snap Comercial Plaza | 11.03 KM |
| Office Parks Near by Pushpam Luxe 28 | |
|---|---|
| Shreeg Square | 11.10 KM |
| Post Offices Near by Pushpam Luxe 28 | |
|---|---|
| Neral Post Office | 11.27 KM |
| Banks Near by Pushpam Luxe 28 | |
|---|---|
| Central Bank Of India | 11.16 KM |
| Colleges and Universities Near by Pushpam Luxe 28 | |
|---|---|
| Matoshree Sumati Chintamani Tipnis College | 11.56 KM |
Check Travel Time
Connecting Roads - Pushpam Luxe 28
This website is only for the purpose of providing information regarding real estate projects in different geographies. Any information which is being provided on this website is not an advertisement or a solicitation. The company has not verified the information and the compliances of the projects. Further, the company has not checked the RERA* registration status of the real estate projects listed herein. The company does not make any representation in regards to the compliances done against these projects. Please note that you should make yourself aware about the RERA* registration status of the listed real estate projects.
*Real Estate (regulation & development) act 2016.