A total of 2 residential transactions has been registered so far for Sudham Shree Krishna Heights, amounting to ₹ 80 L till November 2025.

Own this home with EMIs starting at ₹ 47.52 K/month - Check Cibil Linked Loan Estimate
A total of 2 residential transactions has been registered so far for Sudham Shree Krishna Heights, amounting to ₹ 80 L till November 2025.
During Q3'2025, average property prices for Sudham Shree Krishna Heights moved from ₹ 6,350/sqft to ₹ 6,450/sqft, reflecting a 1.57% rise.
Structural Works reach 10% completion.
A new Phase, Tower/Building Name: SHREE KRISHNA HEIGHTS II, launched under RERA No. P99000079760. with targeted completion by 30-Jun-2027.
SHREE KRISHNA HEIGHTS I, developed by Sudham Lifespaces LLP, officially launched on 28-Feb-2025 and expected to complete by 30-Jun-2028. Registered under RERA No. P99000079298. with total area of 0.51 Acre.
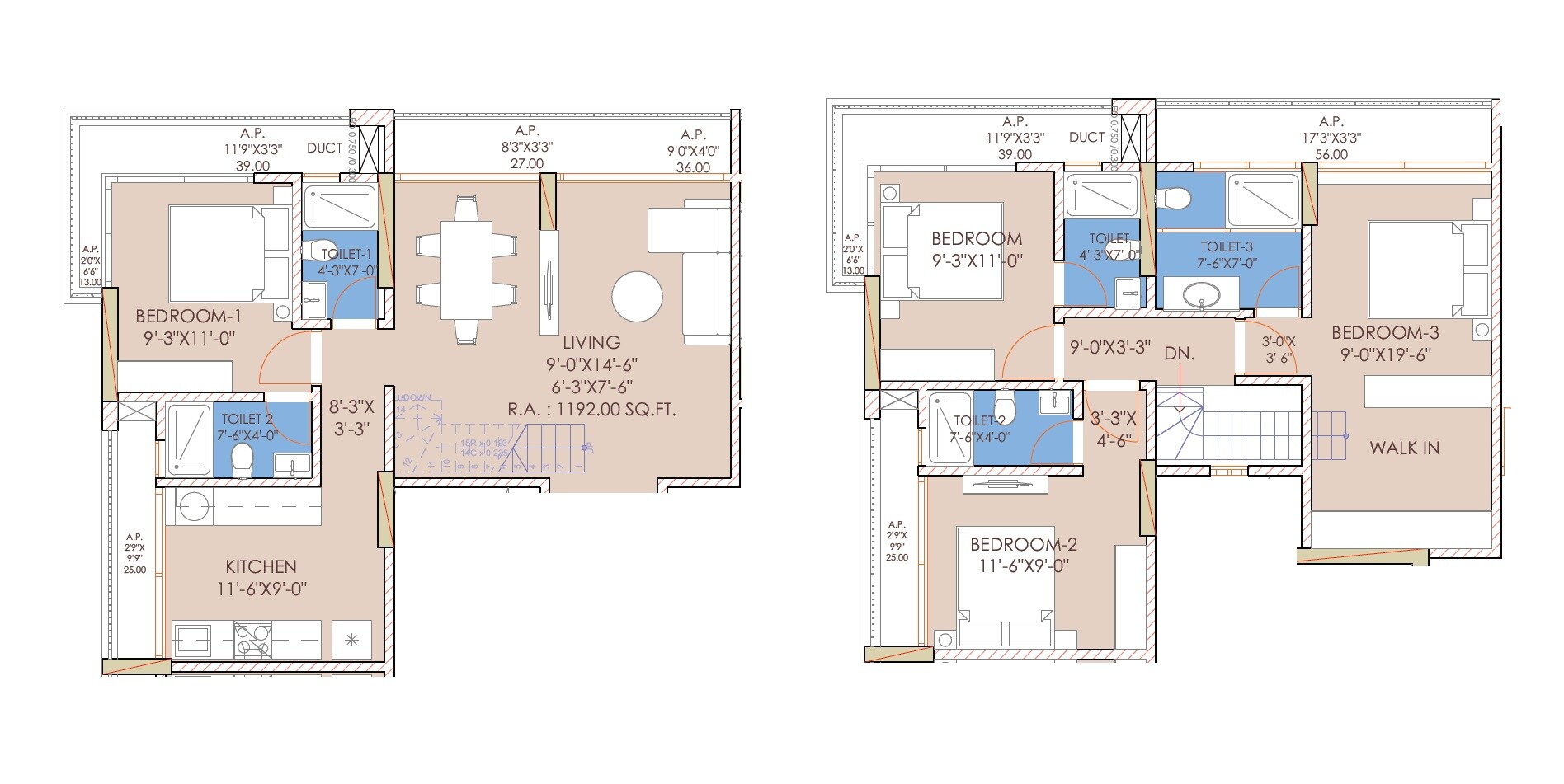
| Master Bedroom-Walls | Oil Bound Distemper |
| Master Bedroom-Flooring | Vitrified Tiles |
| Other Bedrooms-Flooring | Vitrified Tiles |
| Walls | Oil Bound Distemper |
| Living Area-Flooring | Vitrified Tiles |
| Structure | RCC Frame Structure |
| Schools Near by Sudham Shree Krishna Heights | |
|---|---|
| Hira Vidyalaya | 0.21 KM |
| John Xxiii School | 0.36 KM |
| St Mary High School Virar | 0.48 KM |
| Narsinh Govindrao Vartak English Medium School | 0.51 KM |
| Ngv English Medium High School | 0.52 KM |
| John Xxiii Cbse School | 0.54 KM |
| Anjuman Urdu High School | 0.57 KM |
| Adarsh Public High School | 0.66 KM |
| Father Agnel's English School | 0.70 KM |
| S.r.t. Vidyamandir High School & Junior College | 0.71 KM |
| Bus Stops Near by Sudham Shree Krishna Heights | |
|---|---|
| Shankar Mandir | 0.34 KM |
| D Mart | 0.46 KM |
| Jivdani Cross Road | 0.49 KM |
| Old Viva College | 0.51 KM |
| Virar East | 0.51 KM |
| Virar (e) | 0.55 KM |
| Panchjanya | 0.57 KM |
| Thane District Central Co-op Bank | 0.60 KM |
| Parmarth Niketan | 0.62 KM |
| Vartak Chowk | 0.64 KM |
| Hospitals Near by Sudham Shree Krishna Heights | |
|---|---|
| Ekdant Multispeciality Hospital | 0.13 KM |
| Sushila Pediatric Hospital | 0.31 KM |
| Mahavir Hospital | 0.39 KM |
| Joshi Children's Hospital | 0.48 KM |
| Sanjivani Hospital | 0.49 KM |
| Vibhas Psychiatry Hospital And Rehabilitation Centre | 0.53 KM |
| Sankalp Hospital | 0.55 KM |
| Tondare Hospital | 0.59 KM |
| Abhinav Children Hospital | 0.62 KM |
| Shree Balaji Hospital | 0.63 KM |
| Clinics Near by Sudham Shree Krishna Heights | |
|---|---|
| Dr.khushboo Chaudhari's Sai Dental Care | 0.19 KM |
| Meenakshi Dental Clinic | 0.55 KM |
| Orthosquare | 0.57 KM |
| Dr Vijay S Jadhav Ent Hospital | 0.73 KM |
| Neelam Optics | 0.76 KM |
| Sabka Dentist - Virar (west) | 0.76 KM |
| Dr Batra's Homeopathy Clinic | 0.79 KM |
| Raut's Dental Clinic | 0.83 KM |
| Dhanvantari Clinic (dr Vikram R Kale) | 0.87 KM |
| Gangar Eyenation - Virar | 0.88 KM |
| Gym Fitness Near by Sudham Shree Krishna Heights | |
|---|---|
| Muscle Engineers | 0.55 KM |
| Sapkal The Fitness World | 0.63 KM |
| Aptitude Total Fitness Atf At Virar More Then 8000 Happy And Healthy Members | 0.69 KM |
| Fitness Freak Gym - ( Gym In Virar West ) | 0.81 KM |
| Rks Fitness | 0.84 KM |
| 19 Hours Fitness - Biggest Gym In Virar West | 0.86 KM |
| Ssv Gym | 0.91 KM |
| Xtreme Fitness- Best Gym In Virar | 1.03 KM |
| Age 54 Fitness | 1.06 KM |
| Global Fitness - Best Gym In Virar | 1.09 KM |
| Food Others Near by Sudham Shree Krishna Heights | |
|---|---|
| Havmor Havfunn Ice Cream | 0.41 KM |
| Havmor Havfunn Ice Cream Parlour | 0.42 KM |
| Ribbons And Balloons - The Cake Shop In Virar West | 0.58 KM |
| Sweet Truth - Cake And Desserts | 0.75 KM |
| Frozen Bottle - Milkshakes | 1.06 KM |
| The Belgian Waffle Co. | 1.09 KM |
| Amul Distributor | 1.09 KM |
| Theobroma Bakery And Cake Shop - Virar | 1.09 KM |
| Omkar Amul Ice Cream Parlour | 1.43 KM |
| Baskin Robbins - Ice Cream Desserts | 1.52 KM |
| Clothings Near by Sudham Shree Krishna Heights | |
|---|---|
| Jockey Exclusive Store | 0.58 KM |
| Store | 0.66 KM |
| Cantabil | 0.86 KM |
| Klub Fox | Virar West | Factory Outlet | 0.87 KM |
| Zudio - Virar | 0.90 KM |
| Westside - Grand Galleria Global City | 0.95 KM |
| Firstcry.com Store Mumbai Virar | 0.96 KM |
| Zudio - Star Bazaar | 0.98 KM |
| Planet Fashion Virar | 1.60 KM |
| Peter England | 1.68 KM |
| College and Universities Near by Sudham Shree Krishna Heights | |
|---|---|
| Viva College Of Hotel & Tourism Management | 0.46 KM |
| Kohinoor Technical Institute | 0.65 KM |
| Viva College Of Law | 0.81 KM |
| Viva College Of Diploma Enginnering & Technology | 0.91 KM |
| Virar Homeopathic Medical College(v.h.m.c) | 1.42 KM |
| Sbs Institute Of Hotel & Tourism Management | 2.22 KM |
| Jaydeep Vidya Mandir Highschool & College | 2.54 KM |
| Riddhi Vinayak College Of Nursing | 3.00 KM |
| Smt. K.l. Tiwari Degree College Of Commerce & Science | 3.50 KM |
| Md Tech Computer Education | 4.51 KM |
| Restaurants Near by Sudham Shree Krishna Heights | |
|---|---|
| Star Planet Family Restaurant & Bar | 0.59 KM |
| The Post Office | 0.61 KM |
| Kolsa | 0.68 KM |
| Barbeque Nation | 0.69 KM |
| Mcdonald's | 0.76 KM |
| Pizza Hut | 0.81 KM |
| Global Binge By Ashraya Nx | 1.15 KM |
| Cheezza Point | 1.30 KM |
| The Dock | 1.76 KM |
| Farmhouse Funfiesta | 3.93 KM |
| Home Decors Near by Sudham Shree Krishna Heights | |
|---|---|
| Golden Star Packers And Movers | 0.35 KM |
| Mahavir Home Store Virar | 0.66 KM |
| Godrej Interio - Furniture Store In Virar | 0.86 KM |
| Exclusive Dealer (saffron Furnishing & Matresses) At Navkar City | 1.13 KM |
| Mr.diy | 1.38 KM |
| Golden Star Virar Packers And Movers | 1.60 KM |
| Parda Online | 2.20 KM |
| Sleepwell | 3.34 KM |
| Rajkamal Furnishing | 4.39 KM |
| Golden Star Packers And Movers Vasai | 5.99 KM |
Check Travel Time
This website is only for the purpose of providing information regarding real estate projects in different geographies. Any information which is being provided on this website is not an advertisement or a solicitation. The company has not verified the information and the compliances of the projects. Further, the company has not checked the RERA* registration status of the real estate projects listed herein. The company does not make any representation in regards to the compliances done against these projects. Please note that you should make yourself aware about the RERA* registration status of the listed real estate projects.
*Real Estate (regulation & development) act 2016.