
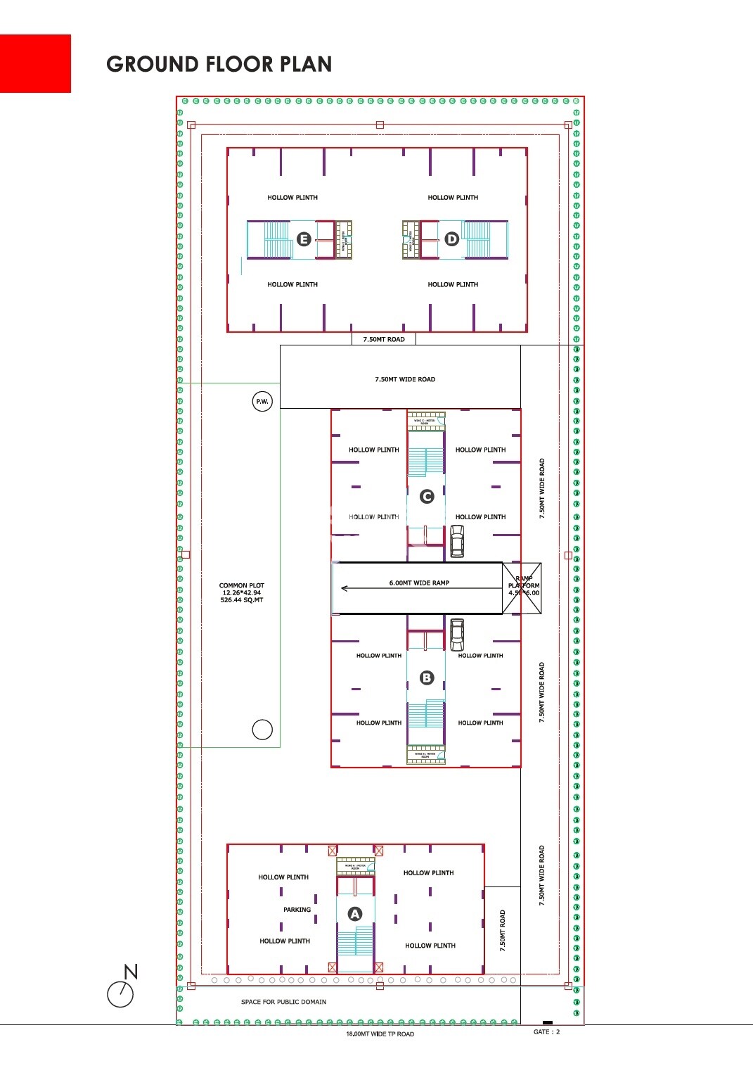
Kaavyaratna Pravesh is a development featuring five distinct building plinths designated A, B, C, D, and E. The project is located in Randesan.
The master plan outlines dedicated areas for building plinths (A, B, C, D, E), common open spaces, and parking. Plinth A specifically indicates a parking area within its hollow plinth. A significant 'COMMON PLOT' area measures 526.44 SQ.MT, positioned centrally, and there is also a designated 'SPACE FOR PUBLIC DOMAIN' along the southern boundary. The entire perimeter shows a landscaped boundary.
| Master Bedroom-Walls | Acrylic Emulsion |
| Master Bedroom-Flooring | Vitrified Tiles |
| Other Bedrooms-Flooring | Vitrified Tiles |
| Walls | Acrylic Emulsion |
| Living Area-Flooring | Vitrified Tiles |
| Bathroom | Premium Bath Fittings |
| Structure | RCC Frame Structure |
Download brochure, master plan & walkthrough video of Kaavyaratna Pravesh to explore floor plans, layout, and complete project details in Randesan, Ahmedabad.
| Schools Near by Kaavyaratna Pravesh | |
|---|---|
| Podar Jumbo Kids | 9.48 KM |
| Sakar English School Shree Swaminarayan Education Trust | 9.95 KM |
| St Xaviers School | 11.20 KM |
| Global Indian International School | 11.81 KM |
| Sheth Shree Haribhai Hathibhai Patel High School | 12.26 KM |
| Gurukulam Hemchandracharya Sanskrit Pathshala | 12.43 KM |
| Shaleen Vidyalaya And Best English School | 13.14 KM |
| Amrut School | 13.33 KM |
| Firdaus Amrut Centre School | 13.33 KM |
| St Marys Higher Secondary School | 13.45 KM |
| Hospitals Near by Kaavyaratna Pravesh | |
|---|---|
| Om Prasuti Gruha | 6.25 KM |
| Apollo Comprehensive Blood And Cancer Centre | 8.45 KM |
| Apollo Hospitals | 8.50 KM |
| Gayatri General Hospital | 9.46 KM |
| Kanoria Hospital And Research Centre | 9.59 KM |
| Vijaya Maternity Home And Metro Ivfdr Nidhi Jain | 9.73 KM |
| Planet Healthchandkheda | 9.80 KM |
| Devanshi Hospital | 9.81 KM |
| Poonam Multi Speciality Hospital | 10.53 KM |
| Desai Hospital | 10.55 KM |
| Shopping Malls Near by Kaavyaratna Pravesh | |
|---|---|
| Shree Balaji Agora Mall Best Shopping Mall In Ahmedabad | 7.57 KM |
| Shree Balaji Agora Mall | 7.57 KM |
| 4d Square Mall | 10.24 KM |
| Shree Balaji Construction | 10.45 KM |
| Arved Transcube Plaza | 14.62 KM |
| Cinema Halls Near by Kaavyaratna Pravesh | |
|---|---|
| Wow Cine Pulse | 8.95 KM |
| Miraj Cinemas | 12.10 KM |
| P Square Movieplex | 13.70 KM |
| Pvr Cinemas | 14.59 KM |
| Parks Near by Kaavyaratna Pravesh | |
|---|---|
| South Park Elementary | 11.60 KM |
| D P Karya Lake | 12.06 KM |
| Gangotri Park Amts Stop | 13.32 KM |
| Banks Near by Kaavyaratna Pravesh | |
|---|---|
| Icici Bank Ltd | 10.04 KM |
| Axis Bank Ltd Balaji Mall | 10.44 KM |
| Colleges and Universities Near by Kaavyaratna Pravesh | |
|---|---|
| Atharv Education | 10.39 KM |
| Lakulish Yoga University | 12.42 KM |
| Supermarkets Near by Kaavyaratna Pravesh | |
|---|---|
| Dmart | 14.58 KM |
| Office Parks Near by Kaavyaratna Pravesh | |
|---|---|
| Naroda Road | 11.96 KM |
| Stadiums Near by Kaavyaratna Pravesh | |
|---|---|
| Motera Stadium | 11.28 KM |
Check Travel Time
Connecting Roads - Kaavyaratna Pravesh
This website is only for the purpose of providing information regarding real estate projects in different geographies. Any information which is being provided on this website is not an advertisement or a solicitation. The company has not verified the information and the compliances of the projects. Further, the company has not checked the RERA* registration status of the real estate projects listed herein. The company does not make any representation in regards to the compliances done against these projects. Please note that you should make yourself aware about the RERA* registration status of the listed real estate projects.
*Real Estate (regulation & development) act 2016.