Squareyards Logo
DataIntelligence
New Advertise with us Sell or Rent Property
Login
  • Facebook
  • Linkedin
  • Twitter
  • Whatsapp
paranjape schemes yuthika apartment 3bhk 2365sqft 10846
  • paranjape schemes yuthika master plan image5
  • paranjape schemes yuthika location image6
  • paranjape schemes yuthika amenities features11
  • paranjape schemes yuthika clubhouse external image10
  • 5 Photos

3 BHK 2365 Sq. Ft. Apartment in Paranjape Schemes Yuthika

₹ 1.92 Cr
Status: Ready to Move
  •   1899 Views
  •   35 Enquiries
  • 2 BHK-3 BHK Apartment from 1186 Sq. Ft. to 2365 Sq. Ft. (Saleable)
  • 3 Living Area(s) 1 Kitchen(s) 3 Bath Rooms(s)
  • 1 Balconies (46 Sq. Ft.)
*Disclaimer
The carpet area & built-up area shown above are based on approximate calculations performed on the floor plans obtained from publicly available sources. The accuracy and completeness of the information is not guaranteed. In providing this information, Square Yards does not assume any responsibility or liability.
  • Saleable Area - 2365 Sq. Ft.
tn paranjape schemes yuthika project flagship1 6980

Pune West, Pune

₹ 8,158 Per Sq. Ft Onwards
Ready to Move

About Paranjape Schemes Yuthika - 3 BHK 2365 Sq. Ft. Apartment

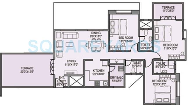
3 BHK 2365 Sq.Ft. Apartment in Paranjape Schemes Yuthika Baner of Pune. The unit has 3 bedrooms, 3 living areas, 3 bathrooms and 1 balconies. Largest bedroom has a size of 11.00 Sq Ft X 15.00 Sq Ft while the next largest is 11.00 Sq Ft X 14.00 Sq Ft .

Inside Area Analysis of 3 BHK 2365 Sq. Ft. Apartment in Paranjape Schemes Yuthika

Inside Area

Room/Private Areas

Length (Ft.) Breadth (Ft.) Area (Sq. Ft.)
Bedroom 11.00 14.00 154
Bedroom 12.00 11.00 132
Bedroom 11.00 15.00 165

Open Areas

Length (Ft.) Breadth (Ft.) Area (Sq. Ft.)
Dry Balcony 5.50 8.50 46.75
Terrace 11.00 6.00 66
Terrace 20.00 12.50 250

Others

Length (Ft.) Breadth (Ft.) Area (Sq. Ft.)
Kitchen 9.00 10.00 90

Living/Common Areas

Length (Ft.) Breadth (Ft.) Area (Sq. Ft.)
Passage - - 30
Lobby 5.00 4.00 20
Dining 9.50 11.00 104.5
Living 11.00 17.00 187

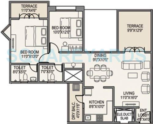
Paranjape Schemes Yuthika - Floor Plans

2 BHK
3 BHK
i *Disclaimer

This website is only for the purpose of providing information regarding real estate projects in different geographies. Any information which is being provided on this website is not an advertisement or a solicitation. The company has not verified the information and the compliances of the projects. Further, the company has not checked the RERA* registration status of the real estate projects listed herein. The company does not make any representation in regards to the compliances done against these projects. Please note that you should make yourself aware about the RERA* registration status of the listed real estate projects.

*Real Estate (regulation & development) act 2016.
Contact our Real Estate Experts
Enable updates through WhatsApp
Enter Your Mobile Number
Verify your Number

We have sent you message with 4 digit
verification code (OTP) on

Change
Did not receive the code?
  • Zero Brokerage

    100% Service, 0% Brokerage. We charge our customers nothing. Not today, not ever.

  • Lowest Price Guaranteed

    Highly unlikely, but if you find a lower price (from the developer) for the same home you want to buy, tell us and we will match it.

  • Full Service Support

    Our sales personnel are customer advocates and are accountable for every step in the process – from search & discovery to site visits, transactions, home loans and post-sales service.

Country/City