A total of 27 residential transactions has been registered so far for Mehta Cornerstone, amounting to ₹ 13 Cr till December 2025.

100% Service, 0% Brokerage
Highly unlikely, but if you find a lower price anywhere, tell us and we will match it.
Our sales personnel are accountable for every step
A total of 27 residential transactions has been registered so far for Mehta Cornerstone, amounting to ₹ 13 Cr till December 2025.
During Q2'2025, average property prices for Mehta Cornerstone moved from ₹ 10,200/sqft to ₹ 10,450/sqft, reflecting a 2.45% rise.
During Q1'2025, average property prices for Mehta Cornerstone moved from ₹ 10,000/sqft to ₹ 10,200/sqft, reflecting a 2.00% rise.
A total of 180 out of 300 launched units have been booked as of November 2024, including 32% of OFFICE SPACE(9 out of 28 units), 83% of SHOP(20 out of 24 units), 47% of 1 BHK(67 out of 144 units), 81% of 2 BHK(84 out of 104 units).
Structural Works reach 90% completion, Internal finishing stands at 4%, MEP Services including lift and staircases, are now 50% done.
A total of 159 out of 300 launched units have been booked as of May 2024, including 18% of OFFICE SPACE(5 out of 28 units), 83% of SHOP(20 out of 24 units), 38% of 1 BHK(54 out of 144 units), 77% of 2 BHK(80 out of 104 units).
Structural Works reach 89% completion, Internal finishing stands at 3%.
Structural Works reach 67% completion, Internal finishing stands at 2%.
A total of 153 out of 302 launched units have been booked as of February 2024, including 7% of OFFICE SPACE(2 out of 30 units), 79% of SHOP(19 out of 24 units), 37% of 1 BHK(53 out of 144 units), 76% of 2 BHK(79 out of 104 units).
A total of 139 out of 297 launched units have been booked as of September 2023, including 61% of SHOP(14 out of 23 units), 11% of OFFICE SPACE(3 out of 28 units), 36% of 1 BHK(52 out of 145 units), 69% of 2 BHK(70 out of 101 units).
The master plan for Mehta Cornerstone, located in Kalyan West, focuses on commercial and recreational aspects. Details regarding total land area, number of residential units, number of towers, and project launch or completion dates are not visible on this plan.
The plan allocates significant space for commercial activities with numerous shop units. It also features designated recreational open spaces, including a '30% open to sky' area for residents and visitors.
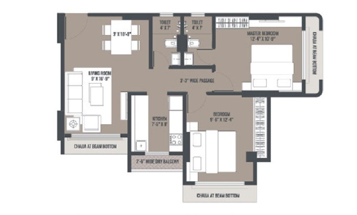
| Master Bedroom-Walls | Oil Bound Distemper |
| Master Bedroom-Flooring | Vitrified Tiles |
| Other Bedrooms-Flooring | Vitrified Tiles |
| Walls | Oil Bound Distemper |
| Living Area-Flooring | Vitrified Tiles |
| Structure | RCC Frame Structure |
| Schools Near by Mehta Cornerstone | |
|---|---|
| Shri M. D. Dedhia English High School | 0.50 KM |
| Brighton World School. | 0.54 KM |
| Bhaurao Pote School | 0.76 KM |
| B.k Birla Public School | 0.77 KM |
| Lord's Convent High School & Junior College | 1.10 KM |
| Swami Vivekanand High School | 1.12 KM |
| Ses.mn. English Sindhi High School | 1.22 KM |
| Sri Vani Vidya Shala High School | 1.31 KM |
| Vani Vidyalaya Primary School | 1.31 KM |
| Holy Cross Convent School | 1.32 KM |
| Bus Stops Near by Mehta Cornerstone | |
|---|---|
| Anupam Nagar | 0.12 KM |
| Yogidham | 0.27 KM |
| Milind Nagar | 0.42 KM |
| Bhawani Chowk | 0.44 KM |
| Shahad Railway Station | 0.45 KM |
| Shahad Bridge | 0.46 KM |
| Prem Auto Samor | 0.47 KM |
| Indira Nagar | 0.48 KM |
| Shahad Phatak | 0.49 KM |
| Bajaj | 0.52 KM |
| Hospitals Near by Mehta Cornerstone | |
|---|---|
| Yashonandan Hospital | 0.63 KM |
| Aastha Hospital Gen And Paed.surgical Hospital | 0.79 KM |
| Shripada Maternity & Paediatric Nursing Home-hospital | 0.92 KM |
| Navjeevan Maternity Hospital | 0.94 KM |
| Gastrocare Hospital | 0.97 KM |
| Uma Hospital | 1.00 KM |
| Kalyan Lifeline Multispeciality Hospital. Cancer.trauma.icu | 1.01 KM |
| Umadevi Sitaram Bairagi Hospital | 1.03 KM |
| City Criticare Hospital | 1.04 KM |
| Sai Sanjivani Criticare Hospital | 1.06 KM |
| Clinics Near by Mehta Cornerstone | |
|---|---|
| Dr Manasi's Dental Clinic And Orthodontic Center | 0.12 KM |
| Dr. Lal Path Lab | 0.24 KM |
| Dr. Rashmi's Aesthetics & Dental Care | 0.53 KM |
| Dr. Farad S Momin | 0.55 KM |
| Dento'facial Multi-speciality Dental | 0.98 KM |
| Kalyan Gastro Center - Best Gastroenterologist Doctor In Kalyan | 1.00 KM |
| Dr.pal's Dental Delight-best Dentist In Kalyan | 1.18 KM |
| Shree Anjani Courier Service (p) Ltd | 1.22 KM |
| Lenskart.com At Ulhasnagar | 1.30 KM |
| Smile Up | 1.42 KM |
| Gym Fitness Near by Mehta Cornerstone | |
|---|---|
| Shape & Size Gym | 0.51 KM |
| Fitness First Unisex Gym | 0.68 KM |
| Core Fitness - Gym In Kalyan | 0.69 KM |
| Ss Fitness - Unisex Gym In Kalyan | 0.71 KM |
| Kavi's Fitness And Dance Studio | 0.76 KM |
| Titan's Gym | 1.19 KM |
| Fitness Formulae | 1.25 KM |
| Pj Fitness And Health Clubs Best Gym In Shahad | 1.36 KM |
| Fit Camp Gym | 1.37 KM |
| Dynamic Martial Arts Classes | 1.38 KM |
| College and Universities Near by Mehta Cornerstone | |
|---|---|
| B. K. Birla College | 0.59 KM |
| Shetkari Shikshan Prasarak Mandals Gurukrupa College Of Education And Research | 0.62 KM |
| B.k.birla College Ground | 0.63 KM |
| Matoshree Velbai Devaji Hambarde College Shahad | 0.74 KM |
| Shaheed Dunichand Kalani College | 1.01 KM |
| J. Watumull Sadhubella Girls College | 1.64 KM |
| Vedanta College | 1.80 KM |
| University Of Mumbai - Kalyan Sub Center | 2.10 KM |
| Mumbai University Sub Division | 2.11 KM |
| Ramchand Kimatram Talreja College Of Arts | 2.15 KM |
| Food Others Near by Mehta Cornerstone | |
|---|---|
| Kwality Walls Frozen Dessert And Ice Cream Shop | 0.55 KM |
| Sweet Truth K D Banquets Kalyan | 1.55 KM |
| Theobroma Bakery And Cake Shop - Kalyan | 1.82 KM |
| Mumbai Kulfi | 1.85 KM |
| Theobroma Bakery And Cake Shop - Ulhasnagar | 2.09 KM |
| Havmor Ice Cream | 2.45 KM |
| Ladachi Kulfi | 2.51 KM |
| Merwans Cake Stop - Kalyan | 2.66 KM |
| Ribbons And Balloons - The Cake Shop In Kalyan West M.k School Road | 2.67 KM |
| 90 Degrees Cake & Ice Cream Studio | 2.73 KM |
| Temples Near by Mehta Cornerstone | |
|---|---|
| Birla Mandir | 1.52 KM |
| Pawai Shiv Dham Temple | 2.20 KM |
| Durga Mata Mandir | 2.23 KM |
| Kali Mata Mandir | 2.36 KM |
| Shree Ram Mandir | 2.36 KM |
| Vitthal Mandir | 2.57 KM |
| Sai Mandir Atali-ambivali | 3.47 KM |
| Trimurti Math Mandir | 3.49 KM |
| Durga Aai Temple | 3.56 KM |
| Sree Ayyappa Temple | 3.98 KM |
| Home Decors Near by Mehta Cornerstone | |
|---|---|
| Furniture Plaza | 1.23 KM |
| Springfit Mattress Retailer - Swastik Foam | 1.68 KM |
| Royale Touche Laminates | 1.78 KM |
| Building And Construction Materials Supplier - Infra Market | 2.18 KM |
| Kalika Enterprises (prestige Service Center) | 3.08 KM |
| Godrej Interio Store | 3.20 KM |
| Godrej Interio - Furniture Store In Kalyan | 3.40 KM |
| Godrej Inspire Hub - Lassi Traders | 3.79 KM |
| Cityfurnish - Furniture And Appliances Rental | 3.87 KM |
| Hitesh Tiles | 3.92 KM |
| Clothings Near by Mehta Cornerstone | |
|---|---|
| Go Colors Store - Kalyan | 1.54 KM |
| Firstcry.com Store Kalyan Khadakpada | 1.93 KM |
| Zudio | 2.31 KM |
| Shivshahi Paithani Saree Kalyan Branch | 2.54 KM |
| Vagad's-exclusive Wedding Concepts | 2.98 KM |
| Arvind Store | 3.33 KM |
| Zivame (waldhuni | 3.41 KM |
| Westside | 3.64 KM |
| United 18 | 4.09 KM |
| Peppermint Communications Private Limited | 5.34 KM |
Check Travel Time
Connecting Roads - Mehta Cornerstone
Kalyan West, located in the Thane district of Maharashtra, is an integral part of the Mumbai Metropolitan Region, known for its diverse residential offerings. This area caters to a wide spectrum of housing demands, presenting options that range from budget-friendly to upscale properties. Its strategic position enhances its appeal, providing excellent connectivity to major areas like Mumbai, Navi Mumbai, and Thane. This is further bolstered by the development of the
Properties in Mehta Cornerstone & Top Sellers
Mehta Group is based in Mumbai and was founded in 1979. It is managed by Founder Ramesh Mehta along with his sons Ketan & Deepak Mehta. The portfolio of Mehta projects covers more than 40 varied residential properties across Mumbai, Kalyan, Thane, etc. The Group also has other business interests including imports, education, hospitality and petrochemicals. There are numerous group companies such as Shreeram Builders, Jayshree Builders, Deep Construction Co,
This website is only for the purpose of providing information regarding real estate projects in different geographies. Any information which is being provided on this website is not an advertisement or a solicitation. The company has not verified the information and the compliances of the projects. Further, the company has not checked the RERA* registration status of the real estate projects listed herein. The company does not make any representation in regards to the compliances done against these projects. Please note that you should make yourself aware about the RERA* registration status of the listed real estate projects.
*Real Estate (regulation & development) act 2016.