Squareyards Logo
DataIntelligence
New Advertise with us Sell or Rent Property
Login
  • Near by Metro Station
  • Travel Time
  • Near Me Properties

Page 45 | Affordable Housing in Wadki Pune

Showing 3,310 Projects
  • All
  • Ready to Move
  • Under Construction
  • New Launch
  • Affordable Housing
  • Luxury Housing
  • Top Selling
  • Most Well Connected
  • Most Luxurious
  • Least Price
  • Highest Price
Kamalraj Haridwar

Kamalraj Properties Developer Logo
Kamalraj Haridwar
Dighi, Pune See on Map

  • Starting From₹ 33.06 Lac
  • ₹ 5,150/ Sq. Ft
  • Project Status Ready to Move
  • No. of Units 72
  • Total area 0.59 acres
1 BHK 642 Sq. Ft. Apartment
642 Sq. Ft

₹ 33.06 Lac

1 BHK 685 Sq. Ft. Apartment
685 Sq. Ft

₹ 35.28 Lac

Kamalraj Haridwar is a well designed apartment complex that offers homebuyers an easy access to nearby localities, fix accessibility to all social infrastructure in the vicinity and seamless connectivity to Pune-Nashik Road.
  • 9
Tatvam V Uptown
Tatvam V Uptown
Tatvam V Uptown
Tatvam V Uptown
Tatvam V Uptown
Tatvam V Uptown
Tatvam V Uptown
Tatvam V Uptown
Tatvam V Uptown

Tatvam Construction Developer Logo
Tatvam V Uptown
Ravet, Pune See on Map

  • Starting From₹ 38.50 Lac
  • ₹ 9,704/ Sq. Ft
  • Project Status Ready to Move
  • No. of Units 466
  • Total area 4.57 acres
1 BHK 386 Sq. Ft. Apartment
1 BHK 386 Sq. Ft. Apartment
386 Sq. Ft

₹ 38.50 Lac

1 BHK 458 Sq. Ft. Apartment
1 BHK 458 Sq. Ft. Apartment
458 Sq. Ft

₹ 45.68 Lac

2 BHK 472 Sq. Ft. Apartment
2 BHK 472 Sq. Ft. Apartment
472 Sq. Ft

₹ 49.50 Lac

Tatvam V Uptown is a excellent Project developed by one of the Pune well known Developers Tatvam Construction. It is spread across 4.57 acre. The various configurations in which the flat units are available on sale in this project are 1 BHK Flats at a minimum price of Rs 38.
  • 2
33 Milestone
33 Milestone

Labh Promoters  Developers Developer Logo
33 Milestone
Wakad, Pune See on Map

  • Starting From₹ 38.43 Lac
  • Project Status Ready to Move
  • No. of Units 120
  • Total area 2 acres
2 BHK 518 Sq. Ft. Apartment
2 BHK 518 Sq. Ft. Apartment
518 Sq. Ft

₹ 38.43 Lac

33 Milestone is an upcoming residential complex in Pimpri Chinchwad PCMC,Pune. It offers 120 units spread over 2 acres of lush green land. The project is specially designed to have excellent lighting and ventilation.
Lunkad Dreamland

Lunkad Developer Logo
Lunkad Dreamland
Viman Nagar, Pune See on Map

  • Starting From₹ 40.00 Lac
  • Project Status Ready to Move
1 BHK 500 Sq. Ft. Apartment
500 Sq. Ft

₹ 40.00 Lac

1 BHK 505 Sq. Ft. Apartment
505 Sq. Ft

₹ 40.40 Lac

Lunkad Dreamland, located in Viman Nagar, offers a unique blend of luxury and convenience. Situated amidst connectivity hubs, this project is within proximity to key roads like Mundhwa Road, Sant Jnaneshwar Marg, and Nagar Road, making it an ideal choice for those who value ease of commuting.
Devi Crest

Devi Constructions Developer Logo
Devi Crest
Vadgaon Maval, Pune See on Map

  • Starting From₹ 34.00 Lac
  • Project Status Ready to Move
  • No. of Units 71
1 BHK 509 Sq. Ft. Apartment
1 BHK 509 Sq. Ft. Apartment
509 Sq. Ft

₹ 34.00 Lac

2 BHK 681 Sq. Ft. Apartment
2 BHK 681 Sq. Ft. Apartment
681 Sq. Ft

₹ 45.00 Lac

Devi Crest is a excellent Project developed by one of the Pune well known Developers Devi Constructions. The various configurations in which the flat units are available on sale in this project are 1 BHK flats at a price of Rs 34.
Classic Gajanan Heights

Classic Construction Pune Developer Logo
Classic Gajanan Heights
Nandoshi, Pune See on Map

  • Starting From₹ 16.75 Lac
  • Project Status Ready to Move
  • No. of Units 150
  • Total area 2 acres
1 BHK 355 Sq. Ft. Apartment
355 Sq. Ft

₹ 16.75 Lac

2 BHK 452 Sq. Ft. Apartment
452 Sq. Ft

₹ 21.35 Lac

2 BHK 581 Sq. Ft. Apartment
581 Sq. Ft

₹ 27.44 Lac

Classic Gajanan Heights is a value for money Project developed by one of the Pune well known Developers Classic Construction Pune. It is spread across 2 acre. The various configurations in which the flat units are available on sale in this project are 1 BHK flats at a price of Rs 16.
  • 7
  • Video
Excellaa Kalash Homes
Excellaa Kalash Homes
Excellaa Kalash Homes
Excellaa Kalash Homes
Excellaa Kalash Homes
Excellaa Kalash Homes
Excellaa Kalash Homes

Excellaa K F Group Developer Logo
Excellaa Kalash Homes
Kasar Amboli, Pune See on Map

  • Starting From₹ 23.50 Lac
  • Project Status Ready to Move
  • No. of Units 136
  • Total area 2.17 acres
1 BHK 325 Sq. Ft. Apartment
1 BHK 325 Sq. Ft. Apartment
325 Sq. Ft

₹ 23.50 Lac

1 BHK 371 Sq. Ft. Apartment
1 BHK 371 Sq. Ft. Apartment
371 Sq. Ft

₹ 26.83 Lac

2 BHK 533 Sq. Ft. Apartment
2 BHK 533 Sq. Ft. Apartment
533 Sq. Ft

₹ 31.33 Lac

2 BHK 536 Sq. Ft. Apartment
2 BHK 536 Sq. Ft. Apartment
536 Sq. Ft

₹ 31.51 Lac

Excellaa Kalash Homes is an a beautiful Project by Excellaa K F Group who are one of the renowned developers in Pune. It is located in Kasar Amboli, Pune West and well connected by major road(s) like Paud Road.
SPB Palaash Rhythm

SPB Developers Developer Logo
SPB Palaash Rhythm
Chinchwad, Pune See on Map

  • Starting From₹ 31.68 Lac
  • Project Status Ready to Move
  • No. of Units 64
  • Total area 1 acres
1 BHK 398 Sq. Ft. Apartment
398 Sq. Ft

₹ 31.68 Lac

2 BHK 424 Sq. Ft. Apartment
424 Sq. Ft

₹ 33.75 Lac

2 BHK 452 Sq. Ft. Apartment
452 Sq. Ft

₹ 35.98 Lac

SPB Palaash Rhythm is a residential complex that offers state-of-the-art amenities and a peaceful environment. It is situated in Pimpri Chinchwad PCMC and offers 64 units spread over an acre.
  • 4
Nandini Orchid
Nandini Orchid
Nandini Orchid
Nandini Orchid

Nandini Group Developer Logo
Nandini Orchid
Wadki, Pune See on Map

  • Starting From₹ 22.64 Lac
  • Project Status Ready to Move
  • No. of Units 88
  • Total area 1 acres
1 BHK 610 Sq. Ft. Apartment
1 BHK 610 Sq. Ft. Apartment
610 Sq. Ft

₹ 22.64 Lac

2 BHK 915 Sq. Ft. Apartment
2 BHK 915 Sq. Ft. Apartment
915 Sq. Ft

₹ 33.56 Lac

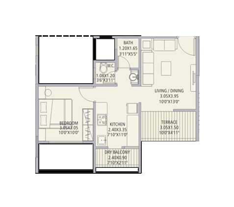
Nandini Orchid is a well designed and well-maintained apartment complex that is ideally situated in Pune East. The project offers one acre of land with 88 units spread over 610 sqft to 915 sqft.
Soham Madhurya

Soham Group Developer Logo
Soham Madhurya
Wakad, Pune See on Map

  • Starting From₹ 31.68 Lac
  • Project Status Ready to Move
  • No. of Units 10
  • Total area 0.125 acres
1 BHK 576 Sq. Ft. Apartment
576 Sq. Ft

₹ 31.68 Lac

1 BHK 600 Sq. Ft. Apartment
600 Sq. Ft

₹ 33.00 Lac

Soham Madhurya is a excellent Project developed by one of the Pune well known Developers Soham Group. It is spread across 0.125 acre. The various configurations in which the flat units are available on sale in this project are 1 BHK Flats at a minimum price of Rs 31.
Kamalraj Parijat A Building

Kamalraj Properties Developer Logo
Kamalraj Parijat A Building
Dighi, Pune See on Map

  • Starting From₹ 30.70 Lac
  • Project Status Ready to Move
  • No. of Units 85
2 BHK 506 Sq. Ft. Apartment
2 BHK 506 Sq. Ft. Apartment
506 Sq. Ft

₹ 30.70 Lac

3 BHK 646 Sq. Ft. Apartment
3 BHK 646 Sq. Ft. Apartment
646 Sq. Ft

₹ 39.20 Lac

3 BHK 689 Sq. Ft. Apartment
689 Sq. Ft

₹ 41.81 Lac

Kamalraj Parijat A Building is a excellent Project developed by one of the Pune well known Developers Kamalraj Properties. The various configurations in which the flat units are available on sale in this project are 2 BHK flats at a price of Rs 30.
Vistaar Shubharambh

Marathwada Constructions Pvt Ltd Developer Logo
Vistaar Shubharambh
Baner, Pune See on Map

  • Starting From₹ 20.98 Lac
  • ₹ 7,415/ Sq. Ft
  • Project Status Ready to Move
  • No. of Units 12
  • Total area 0.12 acres
2 BHK 539 Sq. Ft. Apartment
2 BHK 539 Sq. Ft. Apartment
539 Sq. Ft

₹ 39.97 Lac

283 Sq. Ft. Studio
283 Sq. Ft. Studio
283 Sq. Ft

₹ 20.98 Lac

Vistaar Shubharambh is a excellent Project developed by one of the Pune well known Developers Marathwada Constructions Pvt Ltd. It is spread across 0.12 acre. The various configurations in which the flat units are available on sale in this project are 2 BHK flats at a price of Rs 39.
  • 2
Amrut Kalash Apartments
Amrut Kalash Apartments

Amrutkalash Properties Developer Logo
Amrut Kalash Apartments
Shikrapur, Pune See on Map

  • Starting From₹ 18.09 Lac
  • Project Status Ready to Move
  • No. of Units 164
  • Total area 2 acres
1 BHK 383 Sq. Ft. Apartment
383 Sq. Ft

₹ 18.09 Lac

1 BHK 413 Sq. Ft. Apartment
413 Sq. Ft

₹ 19.50 Lac

2 BHK 515 Sq. Ft. Apartment
515 Sq. Ft

₹ 24.32 Lac

2 BHK 556 Sq. Ft. Apartment
556 Sq. Ft

₹ 26.25 Lac

Amrut Kalash Apartments is a budget friendly Project located in Shikrapur, Pune East and well connected by major road(s) like Pune Ahmednagar Highway. The total area in which Amrut Kalash Apartments has been built is 2 acre.
  • 8
Sigma One La Cabana
Sigma One La Cabana
Sigma One La Cabana
Sigma One La Cabana
Sigma One La Cabana
Sigma One La Cabana
Sigma One La Cabana
Sigma One La Cabana

Sigma One Landmarks Developer Logo
Sigma One La Cabana
Sus, Pune See on Map

  • Starting From₹ 42.95 Lac
  • Project Status Ready to Move
  • No. of Units 104
  • Total area 3 acres
1 BHK 394 Sq. Ft. Apartment
1 BHK 394 Sq. Ft. Apartment
394 Sq. Ft

₹ 42.95 Lac

Sigma One La Cabana is a luxurious Project developed by one of the Pune well known Developers Sigma One Landmarks. It is spread across 3 acre. The various configurations in which the flat units are available on sale in this project are 1 BHK Flats at a minimum price of Rs 42.
Gurukripa Pavani Park

Gurukripa Associates Developer Logo
Gurukripa Pavani Park
Chakan, Pune See on Map

  • Starting From₹ 12.01 Lac
  • Project Status Ready to Move
  • No. of Units 188
  • Total area 1.9 acres
1 BHK 323 Sq. Ft. Apartment
1 BHK 323 Sq. Ft. Apartment
323 Sq. Ft

₹ 12.01 Lac

1 BHK 386 Sq. Ft. Apartment
386 Sq. Ft

₹ 14.35 Lac

2 BHK 519 Sq. Ft. Apartment
2 BHK 519 Sq. Ft. Apartment
519 Sq. Ft

₹ 23.99 Lac

2 BHK 545 Sq. Ft. Apartment
545 Sq. Ft

₹ 25.19 Lac

Gurukripa Pavani Park is a budget friendly Project located in Chakan, Pimpri Chinchwad PCMC and well connected by major road(s) like Talegaon Chakan Road, Pune Nashik Road.
  • 3
Unity Tulip
Unity Tulip
Unity Tulip

Unity Builders And Developers Developer Logo
Unity Tulip
Dhanori, Pune See on Map

  • Starting From₹ 35.00 Lac
  • Project Status Ready to Move
  • No. of Units 16
  • Total area 0.11 acres
1 BHK 432 Sq. Ft. Apartment
1 BHK 432 Sq. Ft. Apartment
432 Sq. Ft

₹ 35.00 Lac

2 BHK 555 Sq. Ft. Apartment
2 BHK 555 Sq. Ft. Apartment
555 Sq. Ft

₹ 48.00 Lac

Unity Tulip is a project that offers a unique lifestyle experience to its residents. It is a project that offers 16 units spread over an area of 0.11 acres. The project offers 1, 2BHK apartment units that come with a size range of 432 sqft to 555 sqft.
  • 3
Alcon Springvalley
Alcon Springvalley
Alcon Springvalley

Alcon Builders and Promoters Developer Logo
Alcon Springvalley
Kondhwa, Pune See on Map

  • Starting From₹ 23.55 Lac
  • Project Status Ready to Move
  • No. of Units 134
  • Total area 1.68 acres
1 BHK 673 Sq. Ft. Apartment
1 BHK 673 Sq. Ft. Apartment
673 Sq. Ft

₹ 23.55 Lac

1 BHK 709 Sq. Ft. Apartment
709 Sq. Ft

₹ 24.81 Lac

2 BHK 1048 Sq. Ft. Apartment
2 BHK 1048 Sq. Ft. Apartment
1048 Sq. Ft

₹ 36.68 Lac

2 BHK 943 Sq. Ft. Apartment
943 Sq. Ft

₹ 33.00 Lac

Alcon Springvalley is an affordable Project by Alcon Builders and Promoters who are one of the renowned developers in Pune. It is located in Kondhwa, Pune South and well connected by major road(s) like Kondhwa Road.
  • 3
Shailesh Pride Regency
Shailesh Pride Regency
Shailesh Pride Regency

Shailesh Construction Co Developer Logo
Shailesh Pride Regency
Daund, Pune See on Map

  • Starting From₹ 14.85 Lac
  • Project Status Ready to Move
  • No. of Units 70
  • Total area 1.11 acres
1 BHK 550 Sq. Ft. Apartment
1 BHK 550 Sq. Ft. Apartment
550 Sq. Ft

₹ 14.85 Lac

1 BHK 745 Sq. Ft. Apartment
1 BHK 745 Sq. Ft. Apartment
745 Sq. Ft

₹ 20.11 Lac

Shailesh Pride Regency is a luxury project located in Pune East,Pune. The project offers 70 units spread over an area of 1.11 acres. The residences are available in sizes ranging from 550 sqft to 745 sqft and come with a range of specifications such as premium finishes, world-class amenities, and security features.
Amrut Runwal Prestige

Amrut Runwal Developer Logo
Amrut Runwal Prestige
Yerawada, Pune See on Map

  • Starting From₹ 46.50 Lac
  • ₹ 5,332/ Sq. Ft
  • Project Status Ready to Move
2 BHK 872 Sq. Ft. Apartment
872 Sq. Ft

₹ 46.50 Lac

Introducing Amrut Runwal Prestige, a premium residential project located in the heart of Yerawada, one of Pune ' s most sought-after neighbourhoods. The project ' s strategic location makes it easily accessible via Deccan College Road, just 1.
Sairung Victoria

Sairung Developers Developer Logo
Sairung Victoria
Ideal Colony, Pune See on Map

  • Starting From₹ 15.04 Lac
  • Project Status Ready to Move
  • No. of Units 40
  • Total area 5 acres
2152 Sq. Ft. Plot
2152 Sq. Ft

₹ 15.04 Lac

4304 Sq. Ft. Plot
4304 Sq. Ft

₹ 30.08 Lac

Sairung Victoria is an affordable Project by Sairung Developers who are one of the renowned developers in Pune. It is located in Ideal Colony, Pune West .Sairung Victoria is spread across 5 acre.
B K Jhala Manjri Greenwoods

Jhala Group Developer Logo
B K Jhala Manjri Greenwoods
Manjari, Pune See on Map

  • Starting From₹ 37.00 Lac
  • ₹ 11,423/ Sq. Ft
  • Project Status Ready to Move
  • No. of Units 576
  • Total area 3 acres
1 BHK 452 Sq. Ft. Apartment
1 BHK 452 Sq. Ft. Apartment
452 Sq. Ft

₹ 37.00 Lac

B K Jhala Manjri Greenwoods is a excellent Project developed by one of the Pune well known Developers Jhala Group. It is spread across 3 acre. The various configurations in which the flat units are available on sale in this project are 1 BHK flats at a price of Rs 37.
  • 6
Swaraa Maza Gharkul
Swaraa Maza Gharkul
Swaraa Maza Gharkul
Swaraa Maza Gharkul
Swaraa Maza Gharkul
Swaraa Maza Gharkul

Swaraa Developer Logo
Swaraa Maza Gharkul
Sanaswadi, Pune See on Map

  • Starting From₹ 9.31 Lac
  • Project Status Ready to Move
  • No. of Units 120
  • Total area 0.79 acres
1 BHK 286 Sq. Ft. Apartment
1 BHK 286 Sq. Ft. Apartment
286 Sq. Ft

₹ 16.85 Lac

1 BHK 299 Sq. Ft. Apartment
1 BHK 299 Sq. Ft. Apartment
299 Sq. Ft

₹ 17.61 Lac

Swaraa Maza Gharkul is a excellent Project developed by one of the Pune well known Developers Swaraa. It is spread across 0.79 acre. The various configurations in which the flat units are available on sale in this project are 1 BHK Flats at a minimum price of Rs 16.
Wonder Spaces Fortune

Wonder Spaces Developer Logo
Wonder Spaces Fortune
Talegaon Dabhade, Pune See on Map

  • Starting From₹ 22.19 Lac
  • Project Status Ready to Move
  • No. of Units 16
1 BHK 537 Sq. Ft. Apartment
537 Sq. Ft

₹ 22.19 Lac

2 BHK 670 Sq. Ft. Apartment
670 Sq. Ft

₹ 32.60 Lac

Wonder Spaces Fortune is a project that offers luxury living at its best. The project is located in Pimpri Chinchwad PCMC,Pune and offers 16 Units spread over 1 BHK-2 BHK residences that come with 537 sqft to 670 sqft sizes.
  • 4
Vardhaman Elegance
Vardhaman Elegance
Vardhaman Elegance
Vardhaman Elegance

Vardhaman Developers Developer Logo
Vardhaman Elegance
Wagholi, Pune See on Map

  • Starting From₹ 28.13 Lac
  • Project Status Ready to Move
  • No. of Units 36
  • Total area 0.35 acres
1 BHK 501 Sq. Ft. Apartment
1 BHK 501 Sq. Ft. Apartment
501 Sq. Ft

₹ 28.13 Lac

2 BHK 639 Sq. Ft. Apartment
2 BHK 639 Sq. Ft. Apartment
639 Sq. Ft

₹ 35.06 Lac

Vardhaman Elegance is a luxurious project located in Pune East,Pune. The project offers 36 units in 2 and 3BHK configurations, each with size of 0.35 acres. The project is strategically located close to The Lexicon International School and well connected to Mumbai Pune Expressway.
Sairung Samruddhi

Sairung Developers Developer Logo
Sairung Samruddhi
Hinjewadi, Pune See on Map

  • Starting From₹ 17.34 Lac
  • Project Status Ready to Move
  • No. of Units 120
  • Total area 20 acres
2100 Sq. Ft. Plot
2100 Sq. Ft

₹ 17.34 Lac

Sairung Samruddhi is a value for money Project developed by one of the Pune well known Developers Sairung Developers. It is spread across 20 acre. The Project is conveniently located in Hinjewadi, Pune West .
  • 6
Kesar Tree Town
Kesar Tree Town
Kesar Tree Town
Kesar Tree Town
Kesar Tree Town
Kesar Tree Town

Kesar Group Developer Logo
Kesar Tree Town
Moshi, Pune See on Map

  • Starting From₹ 24.37 Lac
  • Project Status Ready to Move
  • No. of Units 374
  • Total area 6.33 acres
1 BHK 358 Sq. Ft. Apartment
1 BHK 358 Sq. Ft. Apartment
358 Sq. Ft

₹ 24.37 Lac

1 BHK 435 Sq. Ft. Apartment
1 BHK 435 Sq. Ft. Apartment
435 Sq. Ft

₹ 29.61 Lac

2 BHK 450 Sq. Ft. Apartment
2 BHK 450 Sq. Ft. Apartment
450 Sq. Ft

₹ 40.97 Lac

2 BHK 648 Sq. Ft. Apartment
2 BHK 648 Sq. Ft. Apartment
648 Sq. Ft

₹ 49.87 Lac

Kesar Tree Town is an a beautiful Project by Kesar Group who are one of the renowned developers in Pune. It is located in Moshi, Pimpri Chinchwad PCMC and well connected by major road(s) like Pune Nashik Road, Alandi Road.
  • 5
Anandtara Olive Orchard
Anandtara Olive Orchard
Anandtara Olive Orchard
Anandtara Olive Orchard
Anandtara Olive Orchard

Eshwari Developers Developer Logo
Anandtara Olive Orchard
Wakad, Pune See on Map

  • Starting From₹ 41.44 Lac
  • ₹ 5,200/ Sq. Ft
  • Project Status Ready to Move
  • No. of Units 86
  • Total area 1.81 acres
2 BHK 797 Sq. Ft. Apartment
2 BHK 797 Sq. Ft. Apartment
797 Sq. Ft

₹ 41.44 Lac

Anandtara Olive Orchard is an a beautiful Project by Eshwari Developers who are one of the renowned developers in Pune. It is located in Wakad, Pimpri Chinchwad PCMC and well connected by major road(s) like Hinjewadi Road, Satara Road.
  • 7
Cozy Life
Cozy Life
Cozy Life
Cozy Life
Cozy Life
Cozy Life
Cozy Life

Cozy Developer Logo
Cozy Life
Wagholi, Pune See on Map

  • Starting From₹ 23.60 Lac
  • ₹ 5,342/ Sq. Ft
  • Project Status Ready to Move
  • No. of Units 392
  • Total area 2.38 acres
1 BHK 470 Sq. Ft. Apartment
1 BHK 470 Sq. Ft. Apartment
470 Sq. Ft

₹ 24.44 Lac

1 BHK 454 Sq. Ft. Apartment
454 Sq. Ft

₹ 23.60 Lac

2 BHK 644 Sq. Ft. Apartment
2 BHK 644 Sq. Ft. Apartment
644 Sq. Ft

₹ 33.48 Lac

2 BHK 619 Sq. Ft. Apartment
619 Sq. Ft

₹ 32.18 Lac

Cozy Life is an a beautiful Project by Cozy who are one of the renowned developers in Pune. It is located in Wagholi, Pune East and well connected by major road(s) like Pune Ahmednagar Highway.
  • 3
Bloom Residency
Bloom Residency
Bloom Residency

Bloom Infrastructure Developer Logo
Bloom Residency
Aundh, Pune See on Map

  • Starting From₹ 25.40 Lac
  • Project Status Ready to Move
  • No. of Units 247
  • Total area 2.19 acres
1 BHK 405 Sq. Ft. Apartment
1 BHK 405 Sq. Ft. Apartment
405 Sq. Ft

₹ 25.40 Lac

2 BHK 529 Sq. Ft. Apartment
2 BHK 529 Sq. Ft. Apartment
529 Sq. Ft

₹ 33.18 Lac

Bloom Residency is a 270 unit project strategically located in Pimpri Chinchwad PCMC,Pune. The project offers 2BHK units ranging from 528 sqft to 878 sqft. Units are well connected with all the major points of the city, making it a great choice for city-dwellers.
  • 3
Waterbliss Plots
Waterbliss Plots
Waterbliss Plots

Makwana Shah Realtors  Sacred Realty Developer Logo
Waterbliss Plots
Panshet, Pune See on Map

  • Starting From₹ 11.55 Lac
  • Project Status Ready to Move
  • No. of Units 41
  • Total area 5.5 acres
2100 Sq. Ft. Plot
2100 Sq. Ft

₹ 11.55 Lac

2599 Sq. Ft. Plot
2599 Sq. Ft

₹ 14.29 Lac

Waterbliss Plots is an affordable Project by Makwana Shah Realtors Sacred Realty who are one of the renowned developers in Pune. It is located in Panshet, Pune West and well connected by major road(s) like Hinjewadi Road.
  • 6
Shree Sankalp The Legend
Shree Sankalp The Legend
Shree Sankalp The Legend
Shree Sankalp The Legend
Shree Sankalp The Legend
Shree Sankalp The Legend

Shree Sankalp Associates Developer Logo
Shree Sankalp The Legend
Hinjewadi, Pune See on Map

  • Starting From₹ 40.00 Lac
  • Project Status Ready to Move
  • No. of Units 313
  • Total area 2.57 acres
1 BHK 399 Sq. Ft. Apartment
1 BHK 399 Sq. Ft. Apartment
399 Sq. Ft

₹ 40.00 Lac

1 BHK 481 Sq. Ft. Apartment
1 BHK 481 Sq. Ft. Apartment
481 Sq. Ft

₹ 48.22 Lac

Shree Sankalp The Legend is a luxurious Project developed by one of the Pune well known Developers Shree Sankalp Associates. It is spread across 2.57 acre. The various configurations in which the flat units are available on sale in this project are 1 BHK Flats at a minimum price of Rs 40.
  • 9
  • Video
Zenith Utsav Residency
Zenith Utsav Residency
Zenith Utsav Residency
Zenith Utsav Residency
Zenith Utsav Residency
Zenith Utsav Residency
Zenith Utsav Residency
Zenith Utsav Residency
Zenith Utsav Residency

Zenith Landmarks Developer Logo
Zenith Utsav Residency
Wagholi, Pune See on Map

  • Starting From₹ 23.00 Lac
  • Project Status Ready to Move
  • No. of Units 293
  • Total area 3.69 acres
1 BHK 349 Sq. Ft. Apartment
1 BHK 349 Sq. Ft. Apartment
349 Sq. Ft

₹ 23.00 Lac

1 BHK 447 Sq. Ft. Apartment
1 BHK 447 Sq. Ft. Apartment
447 Sq. Ft

₹ 29.46 Lac

2 BHK 541 Sq. Ft. Apartment
2 BHK 541 Sq. Ft. Apartment
541 Sq. Ft

₹ 35.65 Lac

2 BHK 634 Sq. Ft. Apartment
2 BHK 634 Sq. Ft. Apartment
634 Sq. Ft

₹ 41.78 Lac

Utsav Residency by Zenith Landmark Group in Wagholi, Pune, offers 1 and 2 BHK apartments, combining skilled craftsmanship with aesthetic design. The project intends to provide extravagant living spaces, enhanced by the knowledge of NB Designo Studio and Bhoomi Consultant.
  • 15
  • Video
Swapna Nagari
Swapna Nagari
Swapna Nagari
Swapna Nagari
Swapna Nagari
Swapna Nagari
Swapna Nagari
Swapna Nagari
Swapna Nagari
Swapna Nagari
Swapna Nagari
Swapna Nagari
Swapna Nagari
Swapna Nagari
Swapna Nagari

Shree Sai Associates Developer Logo
Swapna Nagari
Chakan, Pune See on Map

  • Starting From₹ 11.35 Lac
  • Project Status Ready to Move
  • No. of Units 612
  • Total area 15 acres
1 BHK 257 Sq. Ft. Apartment
1 BHK 257 Sq. Ft. Apartment
257 Sq. Ft

₹ 11.35 Lac

1 BHK 471 Sq. Ft. Apartment
1 BHK 471 Sq. Ft. Apartment
471 Sq. Ft

₹ 20.80 Lac

2 BHK 494 Sq. Ft. Apartment
2 BHK 494 Sq. Ft. Apartment
494 Sq. Ft

₹ 21.81 Lac

2 BHK 592 Sq. Ft. Apartment
2 BHK 592 Sq. Ft. Apartment
592 Sq. Ft

₹ 26.14 Lac

Swapna Nagari is a budget friendly Project located in Chakan, Pimpri Chinchwad PCMC and well connected by major road(s) like Pune Nashik Road, Chakan Shikrapur Road.
  • 8
Gada Anutham
Gada Anutham
Gada Anutham
Gada Anutham
Gada Anutham
Gada Anutham
Gada Anutham
Gada Anutham

Gada Developer Logo
Gada Anutham
Hadapsar, Pune See on Map

  • Starting From₹ 46.40 Lac
  • ₹ 11,480/ Sq. Ft
  • Project Status Ready to Move
  • No. of Units 267
  • Total area 2 acres
1 BHK 410 Sq. Ft. Apartment
1 BHK 410 Sq. Ft. Apartment
410 Sq. Ft

₹ 46.40 Lac

Gada Anutham, a pioneering residential project located in Hadapsar, Pune, offers a perfect blend of tranquility and convenience. Situated on Mundhwa Road and Solapur Road, this project provides easy accessibility to major commercial hubs and entertainment centers.
  • 3
  • Video
Konbil Konifer
Konbil Konifer
Konbil Konifer

Konbil Landmarks Llp Developer Logo
Konbil Konifer
Mundhwa, Pune See on Map

  • Starting From₹ 44.00 Lac
  • Project Status Ready to Move
  • No. of Units 70
  • Total area 0.5 acres
1 BHK 455 Sq. Ft. Apartment
1 BHK 455 Sq. Ft. Apartment
455 Sq. Ft

₹ 44.00 Lac

Konbil Konifer is a excellent Project developed by one of the Pune well known Developers Konbil Landmarks Llp. It is spread across 0.5 acre. The various configurations in which the flat units are available on sale in this project are 1 BHK flats at a price of Rs 44.
  • 4
  • Video
Vansh Viva
Vansh Viva
Vansh Viva
Vansh Viva

Rajvansh Group Developer Logo
Vansh Viva
Kiwale, Pune See on Map

  • Starting From₹ 38.14 Lac
  • Project Status Ready to Move
  • No. of Units 109
  • Total area 0.56 acres
1 BHK 446 Sq. Ft. Apartment
1 BHK 446 Sq. Ft. Apartment
446 Sq. Ft

₹ 38.14 Lac

1 BHK 468 Sq. Ft. Apartment
1 BHK 468 Sq. Ft. Apartment
468 Sq. Ft

₹ 40.00 Lac

Vansh Viva, located in the heart of Kiwale, offers a unique blend of luxury and convenience. With its strategic location, the project is easily accessible from the Mumbai-Pune Expressway and the Mumbai-Bangalore Highway, making it an ideal choice for those who value connectivity and proximity to major transportation routes.
FILTERS
Applied Filters
  • Affordable Housing
  • ₹ 10 Lakhs - ₹ 50 Lakhs
Budget
Building Type
  • Residential
  • Commercial
Property Type
  • Apartment
  • Retail Shop
  • Office Space
  • Studio
  • Plot
  • Villa
  • Row House
  • Penthouse
  • Ind Floor
  • Commercial Plots
Bedrooms
  • 1 BHK
  • 2 BHK
  • 3 BHK
  • 4 BHK
  • 5 BHK
Project Status
  • Ready to Move
  • Under Construction
  • New Launch
  • Partially Ready To Move
Posession Timeline
  • Posession in 2026
  • Posession in 2027
  • Posession in 2028
Additional Spaces
  • Servant Room
  • Study Room
  • Family Lounge
  • Private Garden/Lawn
  • Private Pool
More Filters
  • Rera Registered Projects
  • Virtual Tour Projects
  • Affordable Housing
  • Luxury Housing
Related to your search
Try saying any project or Locality name
voice search

Country/City