A total of 11 residential transactions has been registered so far for Shiv Divine Fortune, amounting to ₹ 6 Cr till November 2025.

100% Service, 0% Brokerage
Highly unlikely, but if you find a lower price anywhere, tell us and we will match it.
Our sales personnel are accountable for every step
Own this home with EMIs starting at ₹ 35.55 K/month - Check Cibil Linked Loan Estimate
A total of 11 residential transactions has been registered so far for Shiv Divine Fortune, amounting to ₹ 6 Cr till November 2025.
Structural Works reach 33% completion.
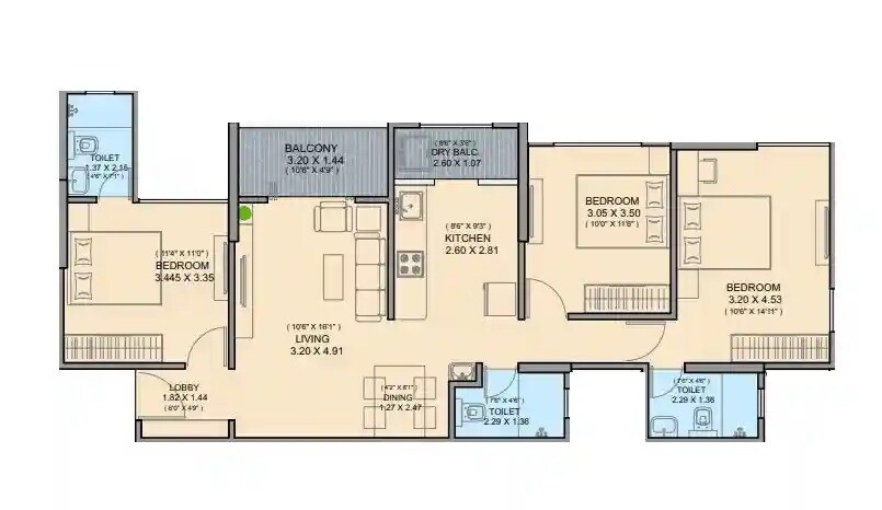
DIVINE FORTUNE, developed by SHIV ASSOCIATES, officially launched on 10-May-2024 and expected to complete by 15-Oct-2027. Registered under RERA No. P52100056080. The project comprises 2 towers and offers 44 residential units, including OFFICE SPACE, SHOP, SHOWROOM, 3 BHK, with unit sizes ranging from 334 to 5716 Square feet across a total area of 1.03 Acre.
| Master Bedroom-Walls | Oil Bound Distemper |
| Master Bedroom-Flooring | Vitrified Tiles |
| Other Bedrooms-Flooring | Vitrified Tiles |
| Walls | Oil Bound Distemper |
| Living Area-Flooring | Vitrified Tiles |
| Bathroom | Premium Bath Fittings |
| Structure | RCC Frame Structure |
| Schools Near by Shiv Divine Fortune | |
|---|---|
| Global Achievers School | 0.15 KM |
| Preeti English Medium School | 0.19 KM |
| New Indrayani English Medium School | 0.28 KM |
| Shri Nageshwar Secondary School | 0.47 KM |
| Brainobrain Moshi | 1.11 KM |
| Priyadarshani Primary School | 1.39 KM |
| Adwait Public School | 1.41 KM |
| Vh English Medium School | 1.49 KM |
| Wisdom International School | 1.55 KM |
| Snbp International School & College | 1.70 KM |
| Bus Stops Near by Shiv Divine Fortune | |
|---|---|
| Hud Company | 0.03 KM |
| Moshi Toll Plaza | 0.26 KM |
| Indrayani Hotel | 0.33 KM |
| Nageshwar Vidyalay | 0.38 KM |
| Moshi Phata | 0.62 KM |
| Anantnagar Moshi | 0.68 KM |
| Modern College Moshi | 0.77 KM |
| Moshi Gaon | 0.93 KM |
| P.m.a.y. Homes Borhadewadi | 0.97 KM |
| Mahatma Phule Mali Nagar | 1.05 KM |
| Hospitals Near by Shiv Divine Fortune | |
|---|---|
| Spandan Hospital Moshi ( Gynac | 0.50 KM |
| Bliss Hospital | 0.56 KM |
| Sable Hospital | 0.56 KM |
| Sarvadnya Hospital Medical | 0.58 KM |
| Tulip Hospital | 0.60 KM |
| Jijau Mother & Child Care Hospital | 0.63 KM |
| Anand Orthopedic Hospital | 0.93 KM |
| Harsh Hospital | 0.93 KM |
| Pcmc Hospital Moshi | 0.96 KM |
| Dr Lata's Nirmiti Hospital: Best Gynaecologist | 0.98 KM |
| Clinics Near by Shiv Divine Fortune | |
|---|---|
| Pratibha's Dental & Skin/hair Clinic | 0.11 KM |
| Avi Dental Clinic | Root Canal Dentist In Moshi | 0.19 KM |
| Vighnaharta Multispeciality Clinic | 0.21 KM |
| Samruddhi Clinic | 0.23 KM |
| Dhanashri Clinic | 0.23 KM |
| Dr. Dumbre Diagnostic Center | 0.60 KM |
| United Pathology Laboratory | 0.70 KM |
| Swasthya Clinic Moshi | 0.79 KM |
| Ekdant Dental Care & Implant Center ( Dr. Mhavarkar's) | 0.81 KM |
| Smaran Advance Dental Clinic | 0.81 KM |
| Gym Fitness Near by Shiv Divine Fortune | |
|---|---|
| Samrat Gym And Crossfit Studio Moshi | 0.41 KM |
| Titanium Fitness Branch 2 | 0.92 KM |
| Yc's Powerhouse Gym Moshi | 0.98 KM |
| Titanium Fitness | 1.12 KM |
| Samrat Gym | 1.13 KM |
| Kids Paradise Play School | 1.22 KM |
| Max Fit Club | 1.25 KM |
| Om Sai Gym | 1.33 KM |
| Ganesh Fitness Club | 1.50 KM |
| Golden's Gym | 1.56 KM |
| Temples Near by Shiv Divine Fortune | |
|---|---|
| Indrayani Park Mitra Mandal; Indrayani Park Moshi ;ganapati Temple. | 0.23 KM |
| Shree Ganesh Mandir Shivajiwadi Shivtej Colony | 0.47 KM |
| Sawtamali Mandir | 0.82 KM |
| Nageshwar Maharaj Devsthan | 0.90 KM |
| Mahalaxmi Temple | 1.08 KM |
| Shree Ram Mandir | 1.56 KM |
| River Residency Ganesh Mandir Moshi | 1.68 KM |
| Vaghjai Temple Pune | 2.61 KM |
| Kailas Mansarovar Mandir | 2.67 KM |
| Bhairavnath Temple Moi | 2.97 KM |
| College and Universities Near by Shiv Divine Fortune | |
|---|---|
| Pes Modern College Of Pharmacy (for Ladies) | 0.88 KM |
| Coep Technological University Pune (extended Campus) Chikhali Pcmc | 3.03 KM |
| Rjspm's College Of Pharmacy | 3.39 KM |
| Rajmata Jijau Shikshan Prasarak Mandal College Of Pharmacy | 3.54 KM |
| Dnyanvilas College Of Pharmacy | 4.26 KM |
| Siddhi College Of Pharmacy | 4.33 KM |
| Dr. D Y Patil Center For Management & Research | 4.36 KM |
| Csit Junior College | 4.62 KM |
| Conquest College Of Arts | 4.84 KM |
| Dnyanvardhini College Of Arts | 4.85 KM |
| Restaurants Near by Shiv Divine Fortune | |
|---|---|
| 360 Degree Multicuisine Family Restaurant | 3.86 KM |
| Reddy's Hyderabadi Biryani | 5.33 KM |
| Lotus Court Family Resto Bar | 7.05 KM |
| Little Italy | 7.34 KM |
| Tiranga Veg Non-veg | 7.69 KM |
| Hotel Silver Seven | 7.70 KM |
| Savali | 7.94 KM |
| Domino's Pizza | 7.98 KM |
| Mazzedar | 8.53 KM |
| Deli Belly | 8.55 KM |
| Supermarkets Near by Shiv Divine Fortune | |
|---|---|
| Hyperpure | 1.23 KM |
| M Marts | 1.25 KM |
| Hitesh Super Market | 1.80 KM |
| M-mart | 1.97 KM |
| Big City Mart | 2.73 KM |
| 99 Pune | 3.10 KM |
| Ashirwad Super Market | 3.76 KM |
| Mahesh Super Market | 4.66 KM |
| Balaji Super Market | 4.77 KM |
| M R Shopping Mall | 4.78 KM |
| Clothings Near by Shiv Divine Fortune | |
|---|---|
| Cottonking Moshi | 0.76 KM |
| Zudio - Pune | 1.51 KM |
| Brainbees Branch Firstcry | 2.57 KM |
| Rabit N Turtle Little Hearts World | 3.81 KM |
| Allen Solly Factory Outlet | 3.88 KM |
| Peter England Outlet | 3.90 KM |
| Abhivyakti Collection | 4.74 KM |
| C' Lai Word | 5.01 KM |
| Zudio - Pune | 5.23 KM |
| Linenking | 6.75 KM |
Check Travel Time
Connecting Roads - Shiv Divine Fortune
Moshi is a bustling locality in the city of Pune. It is one of the most well-planned localities in the city. Moshi has recently gained popularity as it hosts the International Convention and Exhibition Centre. The full name of the locality is Moshi Pradhikaran. The neighbourhood is great for people who enjoy taking long walks or going on small treks. The locality is also quite popular, with some of the best
Shiv Associates, a reputable and esteemed developer operating in Pune and Mumbai, offers an extensive range of real estate services. With a vast portfolio of 11 successful projects, they specialize in construction, sale, and purchase of properties. Catering to a diverse clientele, including individuals, buyers, and sellers, Shiv Associates prides itself in providing bespoke real estate solutions tailored to meet the unique requirements of each client.Driven by a commitment to
This website is only for the purpose of providing information regarding real estate projects in different geographies. Any information which is being provided on this website is not an advertisement or a solicitation. The company has not verified the information and the compliances of the projects. Further, the company has not checked the RERA* registration status of the real estate projects listed herein. The company does not make any representation in regards to the compliances done against these projects. Please note that you should make yourself aware about the RERA* registration status of the listed real estate projects.
*Real Estate (regulation & development) act 2016.