During Q3'2025, average property prices for Kausar AL Hamd 42 moved from ₹ 4,800/sqft to ₹ 5,000/sqft, reflecting a 4.17% rise.

100% Service, 0% Brokerage
Highly unlikely, but if you find a lower price anywhere, tell us and we will match it.
Our sales personnel are accountable for every step
During Q3'2025, average property prices for Kausar AL Hamd 42 moved from ₹ 4,800/sqft to ₹ 5,000/sqft, reflecting a 4.17% rise.
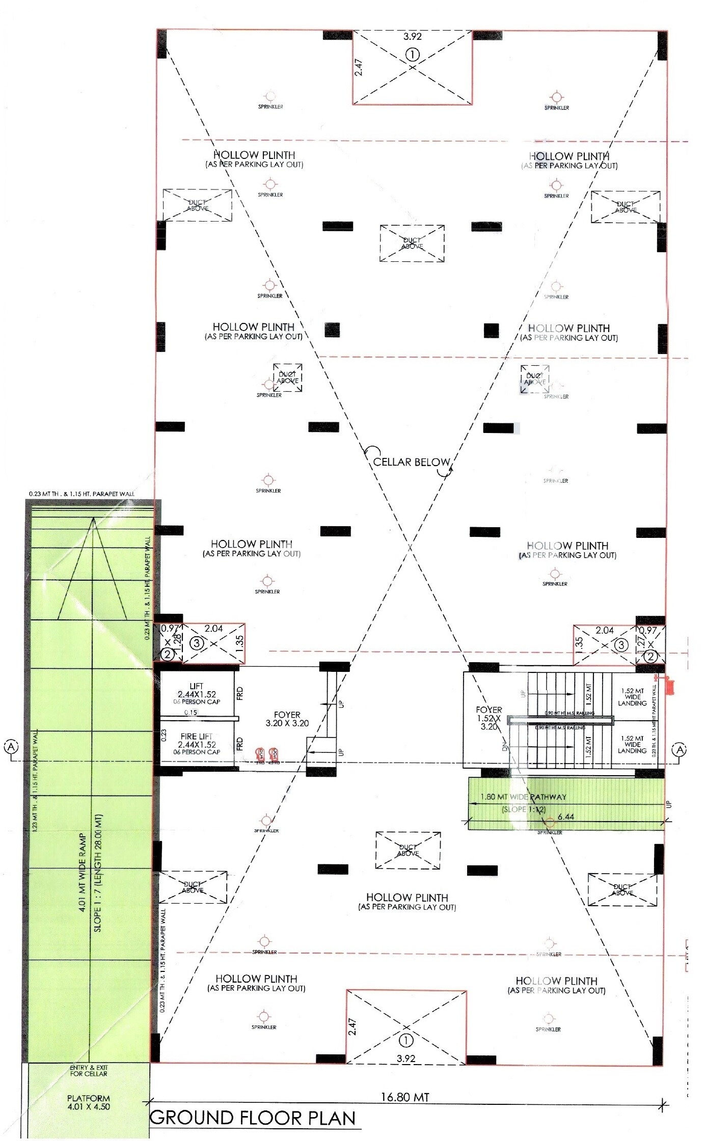
Kausar AL Hamd 42 is located in Juhapura. This master plan provides a detailed ground floor layout, including access to a cellar. Specific project launch or completion dates, total land area, or unit counts are not detailed on this plan.
The ground floor is primarily allocated for parking, indicated by 'HOLLOW PLINTH (AS PER PARKING LAY OUT)'. It also integrates essential building services like lift shafts, a fire lift, main staircases, and foyer areas. A dedicated ramp allows for cellar access.
| Master Bedroom-Walls | Oil Bound Distemper |
| Master Bedroom-Flooring | Vitrified Tiles |
| Other Bedrooms-Flooring | Vitrified Tiles |
| Walls | Oil Bound Distemper |
| Living Area-Flooring | Vitrified Tiles |
| Structure | RCC Frame Structure |
| Schools Near by Kausar AL Hamd 42 | |
|---|---|
| Adani Vidya Mandir | 2.05 KM |
| Dav International School | 2.15 KM |
| Zydus School | 3.31 KM |
| Cosmos Castle International School | 3.35 KM |
| A One School | 4.38 KM |
| The R H Kapadia New High School | 4.48 KM |
| Palak Vipul Shah Institute By Vipul Sir Palak Mam | 4.72 KM |
| Little Flower English Medium School | 4.94 KM |
| Shri Shri Ravishankar Vidya Mandir | 4.94 KM |
| Eklavya School | 5.41 KM |
| Hospitals Near by Kausar AL Hamd 42 | |
|---|---|
| Manubhai Hospital | 1.32 KM |
| Amena Khatun General Hospital | 1.36 KM |
| Hardvaidh Sg Tank | 1.45 KM |
| Zaid Ent Hospital | 1.64 KM |
| Sehat Hospital | 1.71 KM |
| Amin Hospital | 2.30 KM |
| Nanavati Hospital | 2.51 KM |
| Akshar Hospital | 2.52 KM |
| Mamta Nursing Home | 2.53 KM |
| Charak Health Centre Ahmedabadpaladi | 3.51 KM |
| Hotels Near by Kausar AL Hamd 42 | |
|---|---|
| Ramada Ahmedabad | 3.44 KM |
| Cambay Sapphire | 3.47 KM |
| Platinum Residency | 3.53 KM |
| Hotel Platinum Inn | 4.69 KM |
| Courtyard By Marriott | 5.21 KM |
| Hotel Krios | 5.97 KM |
| The Silver Leaf Hotel | 6.10 KM |
| The Pride | 6.33 KM |
| Radisson Blu Hotel Ahmedabad | 6.33 KM |
| The Grand Bhagwati | 6.35 KM |
| Banks Near by Kausar AL Hamd 42 | |
|---|---|
| Hdfc Bank Ltd | 2.68 KM |
| Hdfc Bank Ltd | 3.47 KM |
| Axis Bank Ltd | 3.53 KM |
| State Bank Of India | 3.54 KM |
| Icici Bank Ltd | 3.66 KM |
| Icici Bank Ltd | 4.13 KM |
| Idbi Bank | 4.55 KM |
| Icici Bank Ltd | 4.65 KM |
| State Bank Of India | 4.90 KM |
| Kotak Mahindra Bank | 5.06 KM |
| Shopping Malls Near by Kausar AL Hamd 42 | |
|---|---|
| Dev Arc Mall | 1.72 KM |
| Dev Arch Mall | 5.05 KM |
| Star Bazaar | 5.18 KM |
| Iscon Mega Mall | 5.54 KM |
| Drishti Polytech | 5.57 KM |
| Sobo Center | 5.75 KM |
| Ahmedabad Central Mall | 5.99 KM |
| Pyramid Mall | 6.13 KM |
| C G Square Mall | 6.41 KM |
| Amrapali Shopping Mall | 6.55 KM |
| Cinema Halls Near by Kausar AL Hamd 42 | |
|---|---|
| Wide Angle Multiplex | 1.83 KM |
| Mukta A2 Cinemas Gulmohar Park Mall | 5.09 KM |
| Time Cinemas C G Square Mall | 6.43 KM |
| Screen N Spice | 6.57 KM |
| 12d Bonzai Adventure Alpha One Mall Ahmedabad One Mall | 6.65 KM |
| Ridham Cinema House | 7.42 KM |
| Amazon 12d Cinema Himalaya Mall | 7.48 KM |
| Pvr 4dx Cinemas Acropolis Mall | 7.54 KM |
| Hanjar Cinema | 10.38 KM |
| Shital Cinema | 10.75 KM |
| Parks Near by Kausar AL Hamd 42 | |
|---|---|
| Auda Muskan Park | 0.37 KM |
| Pari Trikamlal Bhogilal Recreation Park | 6.04 KM |
| River Front Park | 6.96 KM |
| Sheth Motilal Hirabahi Municipal Park | 7.50 KM |
| Swaminarayan Park | 8.66 KM |
| Kamalanehru Zoological Garden | 9.48 KM |
| Sumel Business Park 2 | 9.57 KM |
| Gangotri Park Amts Stop | 13.20 KM |
| Sarvoday Park Society | 14.54 KM |
| Office Parks Near by Kausar AL Hamd 42 | |
|---|---|
| Gujarat Electronics And Software Industries | 3.64 KM |
| Parshwanath Business Park | 3.65 KM |
| Gallops Industrial Park | 5.23 KM |
| Kandla Sez | 5.81 KM |
| Chandan House | 7.25 KM |
| Regus Gcp Business Centre | 7.77 KM |
| Centre Of Excellencevatva Industries | 13.15 KM |
| Raghav Industrial Park | 15.00 KM |
| Railway Stations Near by Kausar AL Hamd 42 | |
|---|---|
| Maninagar Railway Station | 10.03 KM |
| Ahmedabad Junction Railway Station | 10.08 KM |
| Chandlodiya Railway Station | 10.87 KM |
| Sabarmati Railway Station | 12.46 KM |
| Bus Depots Near by Kausar AL Hamd 42 | |
|---|---|
| Paldi Bus Station | 6.23 KM |
| Navrangpura Bus Station | 7.82 KM |
| Ahmedabad Central Bus Station | 8.72 KM |
Check Travel Time
Connecting Roads - Kausar AL Hamd 42
Juhapura locality is located in the New West Zone of Ahmedabad in the state of Gujarat. This locality is located along National Highway 8A, connecting the locality with Saurashtra and Kutch. 401603 is the pin code of the locality. Juhapura is mostly a residential area but is also home to various hospitals, schools and daily facilities. Gujarati and Hindi are the most spoken languages in this area, which has over
This website is only for the purpose of providing information regarding real estate projects in different geographies. Any information which is being provided on this website is not an advertisement or a solicitation. The company has not verified the information and the compliances of the projects. Further, the company has not checked the RERA* registration status of the real estate projects listed herein. The company does not make any representation in regards to the compliances done against these projects. Please note that you should make yourself aware about the RERA* registration status of the listed real estate projects.
*Real Estate (regulation & development) act 2016.