During Q4'2025, average property prices for Prayasam Residency moved from ₹ 5,650/sqft to ₹ 6,650/sqft, reflecting a 17.70% rise.

100% Service, 0% Brokerage
Highly unlikely, but if you find a lower price anywhere, tell us and we will match it.
Our sales personnel are accountable for every step
During Q4'2025, average property prices for Prayasam Residency moved from ₹ 5,650/sqft to ₹ 6,650/sqft, reflecting a 17.70% rise.
During Q3'2025, average property prices for Prayasam Residency moved from ₹ 5,350/sqft to ₹ 5,650/sqft, reflecting a 5.61% rise.
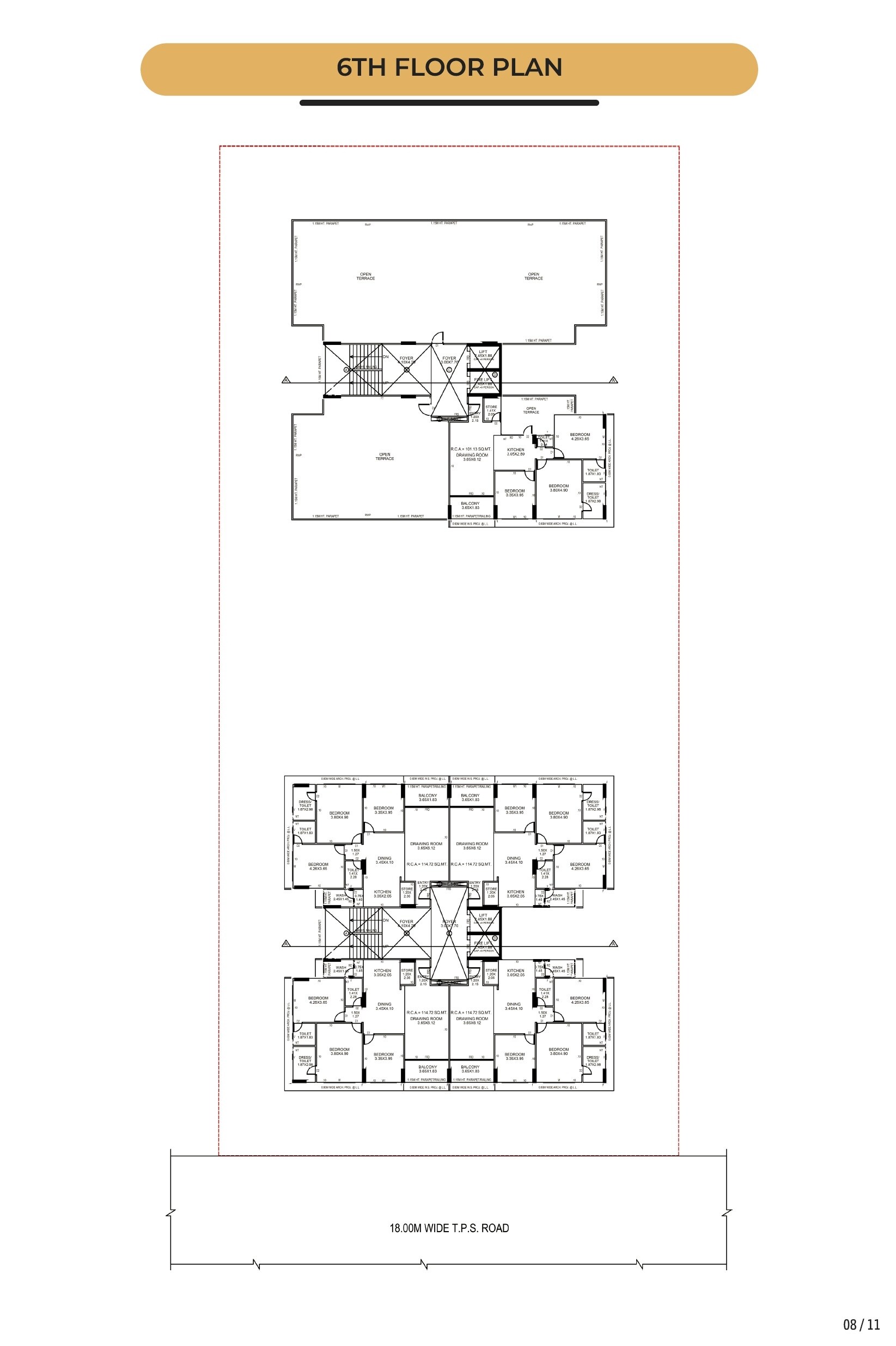
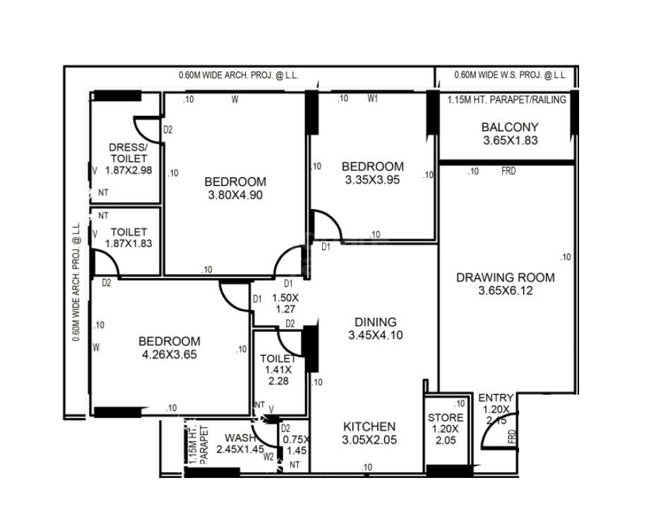
Prayasam Residency is a multi-block development located in Sola. This ground floor plan illustrates the common facilities and access points for what appears to be two distinct building structures within the project. The common plot area for one section is identified as 322.60 sq.mt.
The master plan allocates space primarily for common facilities, vehicular and pedestrian circulation, and essential utilities. Defined zones include driveways, pathways, and foyer areas. Utility provisions feature multiple electrical meter rooms, a dedicated D.G. Set space, and an electrical substation. Notably, specific areas, such as the pathway and parts of the meter rooms, are excluded from FSI computation as per CGDCR-2017 clauses 6.3.2-4(b) and 6.3.2-4(c).
| Master Bedroom-Walls | Oil Bound Distemper |
| Master Bedroom-Flooring | Vitrified Tiles |
| Walls | Oil Bound Distemper |
| Living Area-Flooring | Vitrified Tiles |
| Structure | RCC Frame Structure |
| Schools Near by Prayasam Residency | |
|---|---|
| Podar Jumbo Kids | 1.79 KM |
| St Marys Higher Secondary School | 1.84 KM |
| Shayona International School | 2.32 KM |
| Mother Teresa World School | 2.50 KM |
| Smt Kn Patel International School | 2.59 KM |
| Saraswati Vidhyalay And K T Patel English School | 3.03 KM |
| Nutan English School | 3.59 KM |
| Junior Genius Pre Primary School And Activity Centre | 3.95 KM |
| H B Kapadia New High School | 4.23 KM |
| Global Indian International School | 4.45 KM |
| Hospitals Near by Prayasam Residency | |
|---|---|
| Civil Hospital Sola | 1.34 KM |
| Empire Doctor House | 1.99 KM |
| Krishna Childcare | 2.37 KM |
| Jayyush Hospital | 2.51 KM |
| Eye Hospital In Ahmedabad Eye Surgeon In Naranpura Shubham Eye Hospital | 2.59 KM |
| Hcg Cancer Centre | 2.67 KM |
| Cims Hospital | 2.72 KM |
| Lifeline Multispeciality Hospital | 2.73 KM |
| Lifeline Multispeciality Hospital Gota Chandlodia Ahmedabad | 2.74 KM |
| Samata Multispeciality Hospital | 2.83 KM |
| Hotels Near by Prayasam Residency | |
|---|---|
| Aloft Ahmedabad Sg Road | 1.09 KM |
| The Fern Hotel | 3.30 KM |
| Drh Regency | 5.21 KM |
| Ginger Hotel | 5.30 KM |
| The Pride | 6.29 KM |
| The Grand Bhagwati | 6.38 KM |
| The Silver Leaf Hotel | 6.58 KM |
| Courtyard By Marriott | 7.43 KM |
| Comfort Inn President | 7.63 KM |
| Hotel Krios | 7.84 KM |
| Banks Near by Prayasam Residency | |
|---|---|
| Hdfc Bank Ltd | 4.76 KM |
| Kotak Mahindra Bank | 4.80 KM |
| Icici Bank Ltd | 5.02 KM |
| Icici Bank Ltd | 5.11 KM |
| Hdfc Bank Ltd | 5.41 KM |
| Icici Bank Ltd | 5.43 KM |
| Hdfc Bank Ltd | 5.89 KM |
| State Bank Of India | 6.34 KM |
| Hdfc Bank | 6.38 KM |
| Kotak Mahindra Bank | 6.41 KM |
| Shopping Malls Near by Prayasam Residency | |
|---|---|
| Shusa Psm Cnc Technology | 2.58 KM |
| Kalasagar Shopping Hub | 3.22 KM |
| Sarvopari Mall | 4.23 KM |
| Liberty Exclusive Showroom | 5.27 KM |
| Himalaya Mall | 5.34 KM |
| R3 Mall | 5.64 KM |
| Arved Transcube Plaza | 5.85 KM |
| Ahmedabad One Mall | 6.09 KM |
| Drishti Polytech | 7.14 KM |
| Iscon Mega Mall | 7.21 KM |
| Cinema Halls Near by Prayasam Residency | |
|---|---|
| P Square Movieplex | 2.68 KM |
| Imax Theatre | 2.98 KM |
| Pvr 4dx Cinemas Acropolis Mall | 5.06 KM |
| Amazon 12d Cinema Himalaya Mall | 5.34 KM |
| Screen N Spice | 6.16 KM |
| 12d Bonzai Adventure Alpha One Mall Ahmedabad One Mall | 6.17 KM |
| Pvr Cinemas | 6.23 KM |
| Wow Cine Pulse | 7.22 KM |
| Mukta A2 Cinemas Gulmohar Park Mall | 7.61 KM |
| Time Cinemas C G Square Mall | 8.49 KM |
| Parks Near by Prayasam Residency | |
|---|---|
| Gangotri Park Amts Stop | 3.83 KM |
| South Park Elementary | 4.37 KM |
| Sheth Motilal Hirabahi Municipal Park | 8.64 KM |
| Pari Trikamlal Bhogilal Recreation Park | 8.95 KM |
| Swaminarayan Park | 9.97 KM |
| River Front Park | 10.43 KM |
| Sumel Business Park 2 | 12.30 KM |
| Auda Muskan Park | 12.46 KM |
| Kamalanehru Zoological Garden | 12.59 KM |
| D P Karya Lake | 14.05 KM |
| Office Parks Near by Prayasam Residency | |
|---|---|
| Regus Gcp Business Centre | 6.28 KM |
| Gallops Industrial Park | 7.51 KM |
| Kandla Sez | 7.86 KM |
| Chandan House | 8.30 KM |
| Gujarat Electronics And Software Industries | 9.28 KM |
| Parshwanath Business Park | 9.29 KM |
| Naroda Road | 14.91 KM |
| Railway Stations Near by Prayasam Residency | |
|---|---|
| Chandlodiya Railway Station | 3.12 KM |
| Sabarmati Railway Station | 7.13 KM |
| Ahmedabad Junction Railway Station | 11.17 KM |
| Maninagar Railway Station | 14.02 KM |
| Colleges and Universities Near by Prayasam Residency | |
|---|---|
| Atharv Education | 6.61 KM |
| Victoria University India | 9.46 KM |
| Future Innoversity | 11.93 KM |
| Lakulish Yoga University | 13.68 KM |
Check Travel Time
Connecting Roads - Prayasam Residency
A posh neighbourhood called Sola is located in Ahmedabad's western region. This neighbourhood is close to Paras Nagar, Karmchari Nagar, and CP Nagar 2. This area offers more than a hundred homes for sale and more than ten homes for rent. Residents of Sola gave this area a connectivity rating of 4.1 out of 5 and a safety rating of 4 out of 5.What's Great about Sola, AhmedabadWhat Needs Improvement
This website is only for the purpose of providing information regarding real estate projects in different geographies. Any information which is being provided on this website is not an advertisement or a solicitation. The company has not verified the information and the compliances of the projects. Further, the company has not checked the RERA* registration status of the real estate projects listed herein. The company does not make any representation in regards to the compliances done against these projects. Please note that you should make yourself aware about the RERA* registration status of the listed real estate projects.
*Real Estate (regulation & development) act 2016.