A total of 43 residential transactions has been registered so far for Aramus The Domus 26 West, amounting to ₹ 8 Cr till December 2025.

100% Service, 0% Brokerage
Highly unlikely, but if you find a lower price anywhere, tell us and we will match it.
Our sales personnel are accountable for every step
A total of 43 residential transactions has been registered so far for Aramus The Domus 26 West, amounting to ₹ 8 Cr till December 2025.
During Q2'2025, average property prices for Aramus The Domus 26 West moved from ₹ 12,400/sqft to ₹ 12,700/sqft, reflecting a 2.42% rise.
During Q1'2025, average property prices for Aramus The Domus 26 West moved from ₹ 12,200/sqft to ₹ 12,400/sqft, reflecting a 1.64% rise.
Structural Works reach 65% completion, External Works has reached 10%, MEP Services including lift and staircases, are now 22% done.
External Works has reached 6%, MEP Services including lift and staircases, are now 16% done.
Structural Works reach 55% completion, External Works has reached 4%, MEP Services including lift and staircases, are now 14% done.
A total of 11 out of 65 launched units have been booked as of May 2024, including 32% of 1 BHK(7 out of 22 units), 14% of 2 BHK(4 out of 29 units).
Structural Works reach 40% completion.
A total of 10 out of 65 launched units have been booked as of February 2024, including 32% of 1 BHK(7 out of 22 units), 10% of 2 BHK(3 out of 29 units).
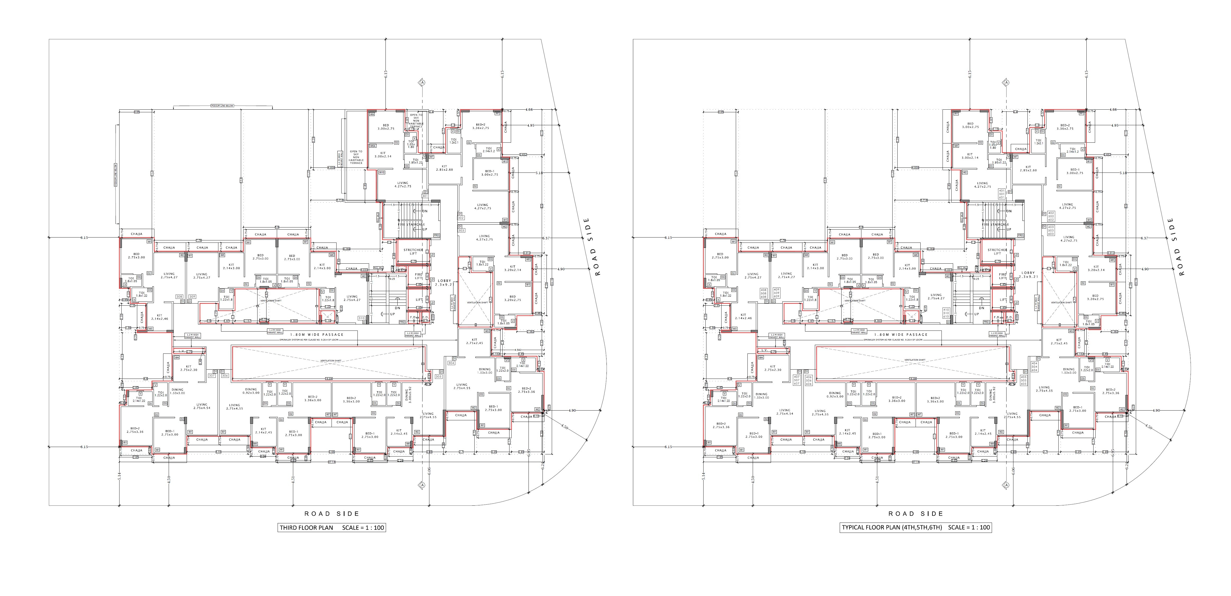
THE DOMUS 26 WEST, developed by Aramus ventures LLP, officially launched on 22-May-2023 and expected to complete by 31-Dec-2027. Registered under RERA No. P52000051019. The project comprises 1 towers and offers 65 residential units, including SHOP, 1 BHK, 2 BHK, with unit sizes ranging from 280 to 646 Square feet across a total area of 0.46 Acre.
Aramus The Domus 26 West is located in Ulwe. The project appears as a single building development within the provided master plan views.
The development features a single high-rise building. It is surrounded by substantial green spaces, including densely planted trees along the perimeter and adjacent to the roads. No specific land use zones or density figures are detailed.
| Master Bedroom-Walls | Oil Bound Distemper |
| Master Bedroom-Flooring | Vitrified Tiles |
| Other Bedrooms-Flooring | Vitrified Tiles |
| Walls | Oil Bound Distemper |
| Living Area-Flooring | Vitrified Tiles |
| Structure | RCC Frame Structure |
| Schools Near by Aramus The Domus 26 West | |
|---|---|
| Indian Model Junior College | 0.60 KM |
| Indian Model School Ulwe | 0.62 KM |
| Sau. Shakuntala Ramsheth Thakur School | 0.69 KM |
| Smb International School | 0.76 KM |
| Mit Vishwashanti Gurukul School | 0.85 KM |
| Radcliffe School Ulwe | 1.11 KM |
| Learning Tree Pre Primary And Primary School | 1.11 KM |
| Radcliffe Group Of Schools - Ulwe | Cbse School & Jr. College In Ulwe | 1.11 KM |
| Shri Chhatrapati Shivaji Vidyalaya Gavhan Kopar | 1.20 KM |
| Cp Goenka International School - Ulwe | 1.54 KM |
| Bus Stops Near by Aramus The Domus 26 West | |
|---|---|
| Bamandongri Railway Station | 0.68 KM |
| Om Sai | 0.79 KM |
| Late Balsheth Patil Chowk | 0.83 KM |
| Ulave Node | 0.88 KM |
| Sainagar Vahal | 0.92 KM |
| Unnati Sector 19a Bus Station | 0.95 KM |
| Vidyarthi Bus Station Ubley Node - Sector 23 | 1.00 KM |
| Late J.a Bhagat Chowk Shalgar | 1.02 KM |
| Kasturi Heritage | 1.03 KM |
| Gavhan Phata Bus Station | 1.15 KM |
| Hospitals Near by Aramus The Domus 26 West | |
|---|---|
| Pediatrician Om Sai Hospital | 0.47 KM |
| Shree Siddhivinayak Hospital | 0.50 KM |
| Ulwe Superspeciality Hospital | 0.68 KM |
| Suman Children's Hospital | 0.71 KM |
| Kmc Eye & Skin Hospital | 0.74 KM |
| Apex Hospital | 0.74 KM |
| Feenixx Hospital | 0.79 KM |
| Q Hospitals | 0.96 KM |
| Unity Hospital | 1.02 KM |
| Medilife Hospital | 1.11 KM |
| Clinics Near by Aramus The Domus 26 West | |
|---|---|
| Mumbai Dental | 0.32 KM |
| Dr. Chatterjee's Ulwe Eye Clinic | 0.43 KM |
| Dr Manoj | 0.47 KM |
| Ur Dentist | 0.53 KM |
| Hari Om Clinic | 0.55 KM |
| Ashirwad Clinic ( Dr.apurva & Dr. Kaushik Kulkarni ) | 0.57 KM |
| Ayucare Pathology Lab | 0.59 KM |
| Vedraj Clinic | 0.59 KM |
| Dr Priyanka's Aarogyam Clinic | 0.68 KM |
| Dr. Meenal Gajbhiye | 0.72 KM |
| Gym Fitness Near by Aramus The Domus 26 West | |
|---|---|
| Akos Art And Fitness Studio | 0.66 KM |
| Aei Fitness | 0.83 KM |
| Fitness And Lifestyle Coach - Anees Qureshi | 0.90 KM |
| Malang Dance Studio ( Dance | 1.01 KM |
| Dance And Fitness Trainer | 1.17 KM |
| Urban Gymnation | 1.18 KM |
| Mahesh Fitness Gym | 1.22 KM |
| Yoga Class (shakti Yog Sadhana) | 1.24 KM |
| B3 Dance + Fitness Hub | 1.24 KM |
| Harmony Yoga | 1.25 KM |
| College and Universities Near by Aramus The Domus 26 West | |
|---|---|
| Disha Computer Institute Ulwe | 0.93 KM |
| Moru Narayan Mhatre Vidyalaya & Tukaram Narayan Gharat Jr. College | 1.15 KM |
| Jio Institute | 1.45 KM |
| D Y Patil Deemed To Be University - Navi Mumbai | 4.54 KM |
| Ibsar | 4.65 KM |
| Asha International Institute Of Marine Technology | 4.74 KM |
| Hsna Maritime Education & Research | 4.92 KM |
| Sp Maritime Institute | 5.42 KM |
| Art Palette - The Premier Art Institute | 5.45 KM |
| B.p. Marine Hotel Management College | 5.49 KM |
| Restaurants Near by Aramus The Domus 26 West | |
|---|---|
| Bong Adda | 4.37 KM |
| Brew House Cafe | 4.71 KM |
| The Vintage Cafe | 4.78 KM |
| Sammy Sosa | 4.78 KM |
| Birista - Biryanis & Kebabs | 4.78 KM |
| China Bistro | 4.81 KM |
| Shaollin Temple | 4.82 KM |
| Hitchki | 4.83 KM |
| Ashwith Family Dining Bar | 4.92 KM |
| Olde Bailey's | 4.98 KM |
| Temples Near by Aramus The Domus 26 West | |
|---|---|
| Hanuman Mandir | 1.25 KM |
| Langeshwar Mandir | 1.80 KM |
| Sai Baba Mandir | 4.92 KM |
| Shaneshwar Shani Mandir Seawoods | 5.01 KM |
| Shivling Temple | 5.05 KM |
| Shri Amruteshwar Mandir | 5.15 KM |
| Gaon Devi Mandir (phanaspada) | 5.16 KM |
| Shri Vitthal Mandir | 5.23 KM |
| Gavdevi Mata Mandir (shahbaz) | 5.27 KM |
| Gaondevi Temple | 5.65 KM |
| Home Decors Near by Aramus The Domus 26 West | |
|---|---|
| Mr.diy | 0.33 KM |
| Sleepwell Gallery - Ulwe | 1.29 KM |
| Kurlon Mattress Store | 1.45 KM |
| Duroflex - Mattress | 1.49 KM |
| Arun Enterprises - Fenesta Building Systems | 4.31 KM |
| Arrivae Home Interior Design Centre - Cbd Belapur | 4.54 KM |
| Livspace - Interior Design Studio | 4.78 KM |
| Pepperfry Furniture Shop-store In Belapur | 4.92 KM |
| Bed & Bedding Co. - (the Mattress Store) Nerul | Mattress Shop In Navi Mumbai | 5.08 KM |
| Milan Furnishing | 5.59 KM |
| Food Others Near by Aramus The Domus 26 West | |
|---|---|
| Ribbons And Balloons - The Cake Shop In Ulwe | 0.78 KM |
| Havmor Ice Cream | 0.81 KM |
| Apsara Ice Creams | 1.42 KM |
| Baskin Robbins - Ice Cream Desserts | 1.54 KM |
| Suchali's Artisan Bakehouse - Belapur | 4.34 KM |
| Natural Ice Cream | 4.41 KM |
| Ribbons And Balloons - The Cake Shop In Seawoods | 5.13 KM |
| Frozen Bottle Seawoods | 5.23 KM |
| Merwans Cake Stop | 5.29 KM |
| Havmor Ice Cream Nerul Sector 21 | 6.40 KM |
Check Travel Time
Connecting Roads - Aramus The Domus 26 West
Properties in Aramus The Domus 26 West & Top Sellers
This website is only for the purpose of providing information regarding real estate projects in different geographies. Any information which is being provided on this website is not an advertisement or a solicitation. The company has not verified the information and the compliances of the projects. Further, the company has not checked the RERA* registration status of the real estate projects listed herein. The company does not make any representation in regards to the compliances done against these projects. Please note that you should make yourself aware about the RERA* registration status of the listed real estate projects.
*Real Estate (regulation & development) act 2016.