A total of 2 residential transactions has been registered so far for Shree Shankeshwar Crystal, amounting to ₹ 67 L till December 2025.

100% Service, 0% Brokerage
Highly unlikely, but if you find a lower price anywhere, tell us and we will match it.
Our sales personnel are accountable for every step
A total of 2 residential transactions has been registered so far for Shree Shankeshwar Crystal, amounting to ₹ 67 L till December 2025.
During Q2'2025, average property prices for Shree Shankeshwar Crystal moved from ₹ 6,150/sqft to ₹ 8,000/sqft, reflecting a 30.08% rise.
External Works has reached 100%, Internal finishing stands at 100%, MEP Services including lift and staircases, are now 93% done.
External Works has reached 90%, Internal finishing stands at 98%, MEP Services including lift and staircases, are now 50% done.
A total of 115 out of 155 launched units have been booked as of July 2024, including 13% of SHOP(1 out of 8 units), 87% of 1 BHK(39 out of 45 units), 82% of 2 BHK(75 out of 91 units).
Internal finishing stands at 15%.
A total of 86 out of 155 launched units have been booked as of January 2024, including 62% of 1 BHK(28 out of 45 units), 64% of 2 BHK(58 out of 91 units).
Structural Works reach 100% completion.
A total of 42 out of 155 launched units have been booked as of May 2023, including 27% of 1 BHK(12 out of 45 units), 33% of 2 BHK(30 out of 91 units).
Structural Works reach 80% completion.
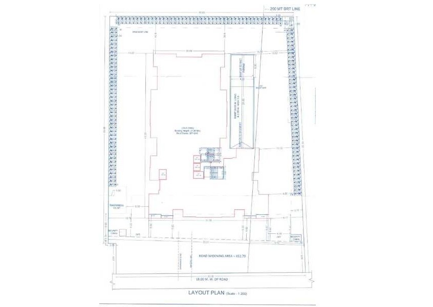
This master plan is for Shree Shankeshwar Crystal, located in Dudulgaon. Based on what's visible, the plan doesn't specify the total land area, the exact number of units, the number of towers, or the project's launch and completion dates.
The plan allocates a 'BORD WIDENING AREA' of 452.79 square meters. The property is situated alongside an 18.00-meter-wide road. The primary structure is a large building footprint, but the specific land use, such as residential or commercial zones, isn't explicitly labeled, nor are any density figures provided.
| Master Bedroom-Walls | Oil Bound Distemper |
| Master Bedroom-Flooring | Vitrified Tiles |
| Other Bedrooms-Flooring | Vitrified Tiles |
| Walls | Oil Bound Distemper |
| Living Area-Flooring | Vitrified Tiles |
| Structure | RCC Frame Structure |
| Schools Near by Shree Shankeshwar Crystal | |
|---|---|
| Aditya International School | 0.12 KM |
| Jayashree English Medium School And Junior College | 0.49 KM |
| Paradise International School | 0.58 KM |
| Dnyanbhakti International School | 0.70 KM |
| Oxford International School | 0.75 KM |
| Shree Sant Dnyaneshwar Vidyalya And Junior College | 1.34 KM |
| Radcliffe School Pune | 1.38 KM |
| Radcliffe Group Of Schools - Dighi | Best Cbse School In Dighi | 1.40 KM |
| Sahyadri International School Alandi Devachi | 1.53 KM |
| Smt.bhimabai Sopanrao Upadhye English Medium School | 1.72 KM |
| Bus Stops Near by Shree Shankeshwar Crystal | |
|---|---|
| Sharad Pawar College | 0.31 KM |
| Dudul Gaon | 0.39 KM |
| Tapkir Nagar Moshi Road | 0.50 KM |
| Dhayarkar Wasti (rajmata College) | 0.62 KM |
| Dehu Phata / Moshi Phata | 0.84 KM |
| Kalewadi Pump | 0.85 KM |
| Kate Vasti | 0.89 KM |
| S.t. Stand Alandi | 0.91 KM |
| Kate Colony | 0.97 KM |
| Savata Mala | 1.17 KM |
| Hospitals Near by Shree Shankeshwar Crystal | |
|---|---|
| Aai Mother & Child Care Hospital | 0.22 KM |
| Kamlesh Multispeciality Hospital | 0.24 KM |
| Dhaara Hospital And Nursing Home | 0.57 KM |
| Kachare Hospital | 0.60 KM |
| Anand Multispeciality Hospital | 0.62 KM |
| Pushpa Hospital | 0.80 KM |
| Siddhivinayak Maternity Hospital & Infertility Center | 0.82 KM |
| Shri Sai Hospital | 0.91 KM |
| Lokhande Hospital | 1.03 KM |
| Unity Hospital Moshi | 1.09 KM |
| Clinics Near by Shree Shankeshwar Crystal | |
|---|---|
| Venus Speciality Clinic And Bharati Diabetes Center | 0.21 KM |
| Saanvi Skin Care & Cosmetology Centre | 0.62 KM |
| Kavya Physiotherapy Clinic | 0.91 KM |
| Swarup Ayurveda Clinic | 0.92 KM |
| Dr. Devyani's Dental Clinic | 1.01 KM |
| Dr Nagrik's Child Clinic (mbbs Md) | 1.17 KM |
| Aadhar Clinic | 1.42 KM |
| Ap View Physio Care Advanced Physiotherapy Rehabilitation Clinic | 1.68 KM |
| Children & Dental Dnyanai Clinic(-dr. Balkrushna Garud & Dental Clinic Dr Aparna Garud ) | 1.68 KM |
| Dr. Jadhav's Kilbil Children's Clinic | 1.79 KM |
| Gym Fitness Near by Shree Shankeshwar Crystal | |
|---|---|
| Morya Fitness Club | 0.46 KM |
| Vriddhi Yoga Classes | 0.77 KM |
| Narendra Gym & Unisex Fitness Centre | 0.78 KM |
| Samrat Unisex Gym | 1.03 KM |
| The Wellness Club Gym Xpress Pune | 1.36 KM |
| Icon Fitness | 1.37 KM |
| Captain Fit Gym & Swimming Pool | 1.44 KM |
| Physique Elite Gym | 1.52 KM |
| Perform Yoga - The Best Yoga Classes | 1.66 KM |
| Rockfit Fitness Hub | 1.69 KM |
| Temples Near by Shree Shankeshwar Crystal | |
|---|---|
| Prati Yermala Shree Yedeshwari Sarvajanik Mandir | 0.41 KM |
| Shri Gajanan Maharaj Mandir | 0.52 KM |
| Gajanan Maharaj Hill Top Temple Alandi | 0.54 KM |
| Lingaleshwar Temple | 1.00 KM |
| Dnyaneshwari Mandir | 1.08 KM |
| Hanuman Temple Dudulgaon Moshi Alandi Rd | 1.23 KM |
| Adbangnath Temple | 1.29 KM |
| Shree Raghunath Maharaj Mandir | 1.33 KM |
| Shree Sant Dnyaneshwar Maharaj Samadhi Mandir | 1.46 KM |
| Khandoba Mandir Alandi | 1.56 KM |
| Restaurants Near by Shree Shankeshwar Crystal | |
|---|---|
| 360 Degree Multicuisine Family Restaurant | 5.25 KM |
| Reddy's Hyderabadi Biryani | 7.25 KM |
| Lotus Court Family Resto Bar | 8.79 KM |
| Zaika Caterers & Restaurants | 8.82 KM |
| Chulbul Dhaba | 8.88 KM |
| Tiranga Veg Non-veg | 9.77 KM |
| Little Italy | 10.26 KM |
| 3 Idiots - The Friendly Bar | 10.31 KM |
| Hotel Silver Seven | 11.06 KM |
| Savali | 11.40 KM |
| College and Universities Near by Shree Shankeshwar Crystal | |
|---|---|
| Dnyanvilas College Of Pharmacy | 0.20 KM |
| Rajmata Jijau Shikshan Prasarak Mandal College Of Pharmacy | 0.58 KM |
| Rjspm's College Of Pharmacy | 0.73 KM |
| Mit Academy Of Engineering | 1.00 KM |
| Pes Modern College Of Pharmacy (for Ladies) | 4.54 KM |
| Rani Putalabai Women's Law College | 5.86 KM |
| Coep Technological University Pune (extended Campus) Chikhali Pcmc | 6.01 KM |
| Vishwanath College Pune- I.t.i. I Fire Safety I Paramedical Nursing Diploma | 6.02 KM |
| Ajeenkya Dy Patil University | 6.25 KM |
| Dypdc Center For Automotive Research And Studies | 6.32 KM |
| Supermarkets Near by Shree Shankeshwar Crystal | |
|---|---|
| M R Shopping Mall | 0.69 KM |
| Nikhil Grocery World | 0.78 KM |
| 99 Pune | 1.04 KM |
| Morya Mart | 1.40 KM |
| Mall Mart Retails | 1.75 KM |
| Mahaveer Super Shopee | 1.78 KM |
| Super Bazar Alandi | 2.81 KM |
| M Marts | 3.08 KM |
| Hyperpure | 4.10 KM |
| Mahesh Super Market | 5.15 KM |
| Clothings Near by Shree Shankeshwar Crystal | |
|---|---|
| C' Lai Word | 1.58 KM |
| Rabit N Turtle Little Hearts World | 4.34 KM |
| Cottonking Moshi | 4.46 KM |
| Peter England Outlet | 5.26 KM |
| Allen Solly Factory Outlet | 5.26 KM |
| Zudio - Pune | 5.40 KM |
| Brainbees Branch Firstcry | 5.42 KM |
| Zudio - Pune | 5.50 KM |
| Cottonking Dsk Enterprises | 5.96 KM |
| Linenking | 6.15 KM |
Check Travel Time
Connecting Roads - Shree Shankeshwar Crystal
Yes, Shree Shankeshwar Crystal features well-planned layouts with optimal space utilization, good ventilation, and natural light across all unit types.
Shree Shankeshwar Crystal offers 1, 2 BHK apartments with multiple layout options to suit different family needs and budgets.
Yes, Shree Shankeshwar Crystal includes a fully equipped gym, swimming pool, and clubhouse designed for leisure and community activities.
Reputed schools like Aditya International School, Jayashree English Medium School And Junior College, Paradise International School, Dnyanbhakti International School, Oxford International School, Mauli Parking Parbhani are located within a short distance.
Parking allocation is 1/2 slots per unit, with additional parking available subject to availability and cost.
This website is only for the purpose of providing information regarding real estate projects in different geographies. Any information which is being provided on this website is not an advertisement or a solicitation. The company has not verified the information and the compliances of the projects. Further, the company has not checked the RERA* registration status of the real estate projects listed herein. The company does not make any representation in regards to the compliances done against these projects. Please note that you should make yourself aware about the RERA* registration status of the listed real estate projects.
*Real Estate (regulation & development) act 2016.