A total of 2 residential transactions has been registered so far for Tejasvi Heritage, amounting to ₹ 2 Cr till December 2025.

100% Service, 0% Brokerage
Highly unlikely, but if you find a lower price anywhere, tell us and we will match it.
Our sales personnel are accountable for every step
A total of 2 residential transactions has been registered so far for Tejasvi Heritage, amounting to ₹ 2 Cr till December 2025.
Internal finishing stands at 48%, MEP Services including lift and staircases, are now 80% done.
During Q2'2025, average property prices for Tejasvi Heritage moved from ₹ 9,000/sqft to ₹ 13,800/sqft, reflecting a 53.33% rise.
A total of 1 out of 21 launched units have been booked as of January 2025, including 5% of 3 BHK(1 out of 21 units).
Structural Works reach 80% completion, MEP Services including lift and staircases, are now 35% done.
Structural Works reach 74% completion, MEP Services including lift and staircases, are now 25% done.
Structural Works reach 40% completion.
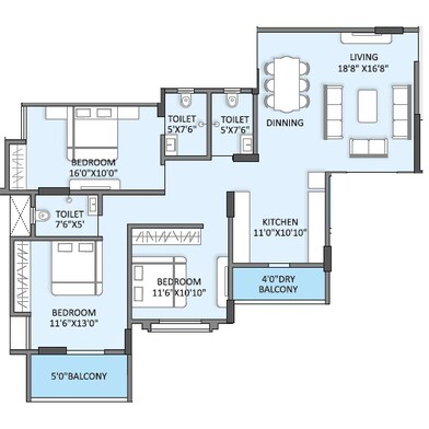
TEJASVI HERITAGE, developed by TEJASVI DEVELOPERS, officially launched on 17-Oct-2023 and expected to complete by 31-Dec-2025. Registered under RERA No. P52100053160. The project comprises 1 towers and offers 21 residential units, including 3 BHK, with unit sizes ranging from 1119 to 1335 Square feet across a total area of 0.28 Acre.
| Master Bedroom-Walls | Oil Bound Distemper |
| Master Bedroom-Flooring | Vitrified Tiles |
| Other Bedrooms-Flooring | Vitrified Tiles |
| Walls | Oil Bound Distemper |
| Living Area-Flooring | Vitrified Tiles |
| Structure | RCC Frame Structure |
| Schools Near by Tejasvi Heritage | |
|---|---|
| Regent School | 0.28 KM |
| Kline Memorial School Of Ubs | 0.48 KM |
| Jidnyasa Prabhodan Trusts Vidyaniketan | 0.51 KM |
| Aes Lotus English Medium School | 0.65 KM |
| Priyadarshani Shikshan Sansthas Marathi Secondary School | 0.94 KM |
| Dyanankur English Medium School Dhankawadi | 1.00 KM |
| Aranyeshwar Madhyamik Vidyalaya | 1.04 KM |
| Vishwakarma Vidyalaya | 1.08 KM |
| Priya Darshini English Medium | 1.25 KM |
| Priyadarshini English Medium School | 1.26 KM |
| Bus Stops Near by Tejasvi Heritage | |
|---|---|
| Bharat Jyoti Society | 0.15 KM |
| Bharat Jyoti | 0.17 KM |
| Lower Indira Nagar | 0.37 KM |
| Bibwewadi | 0.45 KM |
| Ahilyadevi Chowk | 0.56 KM |
| Shankar Maharaj Math | 0.60 KM |
| K.k. Market (vishweshwar Bank) | 0.61 KM |
| Chintamani Nagar | 0.70 KM |
| Anna Mungale Nagar (konark Vihar) | 0.75 KM |
| Kothari | 0.76 KM |
| Hospitals Near by Tejasvi Heritage | |
|---|---|
| Vighnaharata Multispeciality Hospital | 0.34 KM |
| Parasnis Hospital | 0.50 KM |
| Bhagali Hospital | 0.55 KM |
| Jivraj Hospital | 0.56 KM |
| Vimal Nursing Home Multispeciality Hospital And Criticare Center | 0.59 KM |
| Sangam Hospital - Bibwewadi Ivf & Maternity Centre | 0.65 KM |
| Pawar Multispeciality Hospital & Diagnostic Centre Pvt Ltd | 0.65 KM |
| Sahyadri Hospital | 0.75 KM |
| Premchand Oswal Hospital | 0.78 KM |
| Sai Samarth Eye Hospital | 0.83 KM |
| Clinics Near by Tejasvi Heritage | |
|---|---|
| Global Diagnostics | 0.15 KM |
| Lenskart.com At Satara Road | 0.96 KM |
| Sancheti Dental Clinic | 0.97 KM |
| Dr.jadhav's Shree Madhavamrut Ayurved & Panchkarm Clinic | 1.03 KM |
| Kajale Skin & Dental Clinic | 1.04 KM |
| Diagnopein Diagnostics Center (bibwewadi) | 1.10 KM |
| Metropolis Healthcare Ltd - Best Diagnostic Centre In Bibwewadi | 1.16 KM |
| Dr. C. P. Lingayat Foundation Pune. | 1.31 KM |
| Dr Aman Chaudhary | Cancer Specialist | Oncologist In Pune | 1.40 KM |
| Lenskart.com At Bibwewadi | 1.50 KM |
| Restaurants Near by Tejasvi Heritage | |
|---|---|
| Kolhapuri Katta | 1.69 KM |
| Nimantran Restaurant & Bar | 1.69 KM |
| Dev Uncle Kitchen | 1.70 KM |
| Meghdoot's | 1.78 KM |
| Tiranga | 1.89 KM |
| Crazy Cheesy | 1.90 KM |
| Hotel Neha | 1.96 KM |
| Itss Yummyy | 1.99 KM |
| Aangan Veg Restaurant | 2.00 KM |
| The Basil Deck | 2.04 KM |
| Gym Fitness Near by Tejasvi Heritage | |
|---|---|
| Sangeeta's Poweryoga | 0.17 KM |
| Nespro Fitness Club | 0.33 KM |
| Vinali Date | 0.35 KM |
| Aarogyavardhini Yoga & Zumba Classes | 0.77 KM |
| Regent Fitness Club | 0.86 KM |
| Nitrro Fitness - Pune Satara Road | 1.00 KM |
| Fitness Fort | 1.04 KM |
| S3 Fitness Gym & Crossfit | 1.16 KM |
| Gravity Fitness Club | 1.19 KM |
| Tranceform Fitness Best Gym In Dhankawadi | 1.71 KM |
| College and Universities Near by Tejasvi Heritage | |
|---|---|
| Ice College Of Hotel Management & Catering Technology | 0.77 KM |
| Rajgad Dnyanpeeth B Ed College | 1.00 KM |
| Swaraj College Of Arts | 1.06 KM |
| Bharati Vidyapeeth (deemed To Be University) College Of Nursing | 1.46 KM |
| Bharati Vidyapeeth College Of Fine Arts | 1.51 KM |
| Bharati Vidyapeeth Deemed University Institute Of Hotel Management & Catering Technology | 1.52 KM |
| Bharati Vidyapeeth Deemed University Pune | 1.56 KM |
| Bharti Vidyapeeth Polytechnic College(jniot) | 1.57 KM |
| Bharati Vidyapeeth's Jawaharlal Nehru Institute Of Technology (polytechnic / Diploma) | 1.59 KM |
| Bharati Vidyapeeth College Of Architecture | 1.60 KM |
| Temples Near by Tejasvi Heritage | |
|---|---|
| Padmavati Mata Temple | 1.00 KM |
| Aashapura Mata Mandir | 1.40 KM |
| Shree Aranyeshwar Temple | 1.86 KM |
| Amba Mata Mandir | 1.90 KM |
| Icchapurti Shri Ganesh - Datta.trimuri Chowk Mandir | 2.09 KM |
| Kheteshwar (mandir) Ashram Pune (rajpurohit) | 2.61 KM |
| Shri Siddhivinayak Temple | 2.73 KM |
| Shree Shatrunjay Bhaktamar Jain Temple | 2.77 KM |
| Katraj Jain Temple | 2.93 KM |
| Service Gate | 3.21 KM |
| Supermarkets Near by Tejasvi Heritage | |
|---|---|
| Bhosale Super Market | 0.82 KM |
| Naya Bazaar Jaikishan Enterprises | 1.95 KM |
| S S Enterprises Kakade Nagar Lane No 3 Katraj Kondwa Road Pune | 2.11 KM |
| Tawakkal Super Market | 2.24 KM |
| Hanuman Super Market | 2.43 KM |
| Patanjali Mega Store | 2.81 KM |
| D Mart Ambegaon | 2.87 KM |
| More Supermarket | 2.88 KM |
| Dmart Minimax | 2.96 KM |
| Dhan Moti Super Market | 3.34 KM |
| Clothings Near by Tejasvi Heritage | |
|---|---|
| Miga Fashion Institute | 0.55 KM |
| Half Ticket | 1.03 KM |
| Go Colors Store - Bibewadi | 1.48 KM |
| Firstcry.com Store Pune Bibwewadi | 1.88 KM |
| New Lifestyle Clothing | 2.25 KM |
| Cotton King | 2.73 KM |
| Fashion Factory | 2.78 KM |
| Bearberry Iskcon Kbk | 2.78 KM |
| Kapasi Cotton Complete Mens Wear | 3.08 KM |
| Tyzer Ambegaon | 3.14 KM |
Check Travel Time
Connecting Roads - Tejasvi Heritage
Bibwewadi is fast becoming one of the most preferred residential hubs in South Pune. Many young professionals and parents have turned their attention to this posh locality with well-designed infrastructure and high-end lifestyle amenities. Considering its rising popularity, many prominent builders have invested in projects here. Whether you’re looking for residential apartments or commercial spaces, Bibwewadi has it all. The clean and green environment further adds to its pleasant aura. What’s
Yes, residents have easy access to Bhosale Super Market, Naya Bazaar Jaikishan Enterprises, S S Enterprises Kakade Nagar Lane No 3 Katraj Kondwa Road Pune, Tawakkal Super Market, Hanuman Super Market for shopping, groceries, and daily essentials.
Yes, Tejasvi Heritage offers flexible payment plans including construction-linked / CLP / down payment / subvention if applicable.
Tejasvi Heritage features amenities such as Gymnasium, Kids' Play Areas / Sand Pits, Power Backup, 24*7 Water Supply, 24 x 7 Security, CCTV / Video Surveillance, Normal Park / Central Green, Amphitheater, Indoor Games.
Yes, Tejasvi Heritage includes a fully equipped gym, swimming pool, and clubhouse designed for leisure and community activities.
Security includes 24x7 CCTV, gated entry, access control, trained security personnel, intercom/video door phone.
This website is only for the purpose of providing information regarding real estate projects in different geographies. Any information which is being provided on this website is not an advertisement or a solicitation. The company has not verified the information and the compliances of the projects. Further, the company has not checked the RERA* registration status of the real estate projects listed herein. The company does not make any representation in regards to the compliances done against these projects. Please note that you should make yourself aware about the RERA* registration status of the listed real estate projects.
*Real Estate (regulation & development) act 2016.