A total of 2 residential transactions has been registered so far for Uma Mangal Shrushti, amounting to ₹ 61 L till January 2026.

100% Service, 0% Brokerage
Highly unlikely, but if you find a lower price anywhere, tell us and we will match it.
Our sales personnel are accountable for every step
A total of 2 residential transactions has been registered so far for Uma Mangal Shrushti, amounting to ₹ 61 L till January 2026.
During Q4'2025, average property prices for Uma Mangal Shrushti moved from ₹ 6,300/sqft to ₹ 6,400/sqft, reflecting a 1.59% rise.
During Q3'2025, average property prices for Uma Mangal Shrushti moved from ₹ 6,250/sqft to ₹ 6,300/sqft, reflecting a 0.80% rise.
Structural Works reach 11% completion. Internal finishing stands at 5%. MEP Services including lift and staircases, are now 13% done
A total of 19 out of 71 launched units have been booked as of October 2024, including 35% of 1 BHK(7 out of 20 units), 25% of 2 BHK(12 out of 48 units).
A total of 19 out of 71 launched units have been booked as of March 2024, including 35% of 1 BHK(7 out of 20 units), 25% of 2 BHK(12 out of 48 units).
A total of 18 out of 71 launched units have been booked as of September 2022, including 32% of 1 BHK(6 out of 19 units), 25% of 2 BHK(12 out of 48 units).
MANGAL SHRUSHTI, developed by UMA CONSTRUCTION, officially launched on 17-Jul-2018 and expected to complete by 30-Dec-2022. Registered under RERA No. P52100017183. with total area of 0.86 Acre.
| Master Bedroom-Walls | Oil Bound Distemper |
| Master Bedroom-Flooring | Vitrified Tiles |
| Other Bedrooms-Flooring | Vitrified Tiles |
| Walls | Oil Bound Distemper |
| Living Area-Flooring | Vitrified Tiles |
| Structure | RCC Frame Structure |
| Schools Near by Uma Mangal Shrushti | |
|---|---|
| Academic Heights Public School | 0.42 KM |
| Vishwakalyan English Medium School | 1.17 KM |
| Vishwakalyan School - Cbse Affiliated | 1.17 KM |
| Prajnanabodhini English Medium School | 1.44 KM |
| Dnyan Sagar English Medium School | 1.56 KM |
| Flying Birds School & Jr. College Morevasti Chikhali 62 | 2.03 KM |
| Snbp International School & College | 2.12 KM |
| Buds International School | 2.21 KM |
| Raja Shivchhatrapati Primary & Secondary School | 2.51 KM |
| Impact English Medium School & Junior College | 2.64 KM |
| Bus Stops Near by Uma Mangal Shrushti | |
|---|---|
| Chikhali Nageshwar Vidyalaya | 0.42 KM |
| Nageshwar Vidyalaya | 0.44 KM |
| Chikhali | 0.97 KM |
| Shelarvasti Talawade | 1.17 KM |
| Gitai Colony | 1.29 KM |
| Moi Phata | 1.37 KM |
| Jadhavwadi Phata Chikhali | 1.58 KM |
| Radhika Nagar Talawade | 1.61 KM |
| Jadhav Wadi Midc | 1.72 KM |
| Newale Vasti | 1.86 KM |
| Hospitals Near by Uma Mangal Shrushti | |
|---|---|
| Varad Hospital Chikhali | 0.73 KM |
| Child Care Hospital | 0.94 KM |
| Sant Tukaram Multi-speciality Shivkrupa Hospital | 1.00 KM |
| Mom And Me Maternity Hospital | 1.14 KM |
| Imperial Multi Speciality Hospital | 1.32 KM |
| Aarogyam Hospital | 1.51 KM |
| Dhanwantari General & Pediatric Hospital | 1.79 KM |
| Vindhya Grace Hospital | 2.05 KM |
| Care&cure Multi-speciality Hospital | 2.07 KM |
| Vision Multispeciality Hospital | 2.29 KM |
| Clinics Near by Uma Mangal Shrushti | |
|---|---|
| Confi-dental Hair N Skin Clinic | 0.50 KM |
| Shri Mauli Clinic | 0.71 KM |
| Little Steps Children Clinic And Vaccination Centre By Dr. Sumit Chutake | 0.88 KM |
| Dr Gauri's Varad Dental Care | 0.88 KM |
| Ekdant Dental Clinic (ekdmt Datamca Dvakhana) | 0.98 KM |
| Aadhar Homoeopathic Care And Cure Clinic. | 1.11 KM |
| Dr. Pingale's Dental Clinic | 1.33 KM |
| Dr. Shital Homeopathic Clinic | 1.35 KM |
| Dr. Vishwajeet Gaikwad Mbbs Md (medicine ) Sunshine Speciality Clinic | 2.26 KM |
| Ekdant Dental Clinic | 2.34 KM |
| Gym Fitness Near by Uma Mangal Shrushti | |
|---|---|
| Freedom Yoga And Zumba Center | 0.37 KM |
| Soul Fitness | 0.92 KM |
| Samarth Gym | 1.05 KM |
| Desirre Fitness | 1.26 KM |
| Lions Gym Branch 2 | 1.52 KM |
| The Art Of Living Follow Up Center | 1.80 KM |
| K Fitness - Best Gym In Chikhali | 2.08 KM |
| Anatomy Fitness Club | 2.16 KM |
| Silver Star Fitness | 2.18 KM |
| Swaraj Fitness | 2.30 KM |
| Temples Near by Uma Mangal Shrushti | |
|---|---|
| Shree Kanifnath Mandir Bagwasti | 0.08 KM |
| Bhairavnath Temple Moi | 0.82 KM |
| Tal Mandir | 1.03 KM |
| Mahalaxmi Or Kalubai Temple | 1.07 KM |
| Mohaneshwar Mahadev Mandir | 1.25 KM |
| Jotiba Mandir | 2.04 KM |
| River Residency Ganesh Mandir Moshi | 2.11 KM |
| Shree Bhairav Nath Mandir | 2.13 KM |
| Vitthal Rakhumai Mandir | 2.23 KM |
| Shree Ram Mandir | 2.23 KM |
| Restaurants Near by Uma Mangal Shrushti | |
|---|---|
| Savali | 5.31 KM |
| Hotel Silver Seven | 5.31 KM |
| Domino's Pizza | 5.34 KM |
| 360 Degree Multicuisine Family Restaurant | 5.55 KM |
| Baba Ramdev Dhaba | 5.60 KM |
| Reddy's Hyderabadi Biryani | 5.73 KM |
| Little Italy | 5.75 KM |
| Mazzedar | 5.83 KM |
| Delhi Swad | 5.90 KM |
| Deli Belly | 5.91 KM |
| College and Universities Near by Uma Mangal Shrushti | |
|---|---|
| Conquest College Of Arts | 1.05 KM |
| Siddhi College Of Pharmacy | 2.03 KM |
| Dr. D Y Patil Center For Management & Research | 2.21 KM |
| Dnyanvardhini College Of Arts | 3.22 KM |
| Pes Modern College Of Pharmacy (for Ladies) | 3.46 KM |
| Coep Technological University Pune (extended Campus) Chikhali Pcmc | 3.56 KM |
| Csit Junior College | 3.71 KM |
| Dr. D. Y. Patil College Of Computer & Business Studies | 3.93 KM |
| Mother's University By Priyanka Kalbhor | 3.99 KM |
| Modern College Of Commerce And Computer Studies | 4.44 KM |
| Supermarkets Near by Uma Mangal Shrushti | |
|---|---|
| Ashirwad Super Market | 0.57 KM |
| Bhairavnath Super Market | 1.22 KM |
| Hitesh Super Market | 2.19 KM |
| Sm Mart | 2.96 KM |
| Aaiji Supermarket | 2.96 KM |
| M-mart | 2.96 KM |
| Vaibhav Super Market | 2.97 KM |
| Gk Mart | 3.16 KM |
| Vishvaprit Super Shopee | 3.26 KM |
| Jay Vijay Super Market | 3.44 KM |
| Clothings Near by Uma Mangal Shrushti | |
|---|---|
| Zudio - Pune | 2.63 KM |
| Abhivyakti Collection | 3.29 KM |
| Cottonking Moshi | 3.51 KM |
| Brainbees Branch Firstcry | 4.14 KM |
| Me N Moms | 5.42 KM |
| Firstcry.com Store Pune Nigdi | 5.48 KM |
| Zudio - Star Bazaar | 5.50 KM |
| Pantaloons (gems Crystal Mall | 5.54 KM |
| Allen Solly Factory Outlet | 5.56 KM |
| Peter England Outlet | 5.59 KM |
Check Travel Time
Connecting Roads - Uma Mangal Shrushti
Chikhali is a suburban locality in Pune that comes under the municipality of Pimpri-Chinchwad Municipal Corporation (PCMC). Located on the city's northern outskirts, Chikhali is primarily an industrial area, drastically growing and developing. This district is famous for its temples and iconic landmarks. Chikhali is a locality with good amenities and facilities to foster an urban lifestyle. Not just this, but Chikhali's infrastructure and transport mediums are also well-developed. All
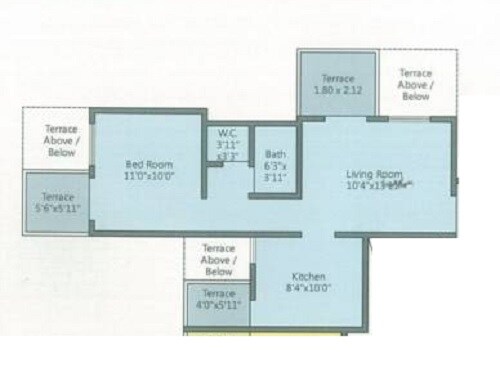
Yes, Uma Mangal Shrushti features well-planned layouts with optimal space utilization, good ventilation, and natural light across all unit types.
Uma Mangal Shrushti features amenities such as Kids' Play Areas / Sand Pits, Yoga Areas, Power Backup, Treated Water Supply, 24 x 7 Security, CCTV / Video Surveillance, Normal Park / Central Green, Indoor Games.
Yes, residents have easy access to Ashirwad Super Market, Bhairavnath Super Market, Hitesh Super Market, Sm Mart, Aaiji Supermarket for shopping, groceries, and daily essentials.
Unlike other projects in Chikhali, Uma Mangal Shrushti stands out for its Kids' Play Areas / Sand Pits, Yoga Areas, Power Backup, Treated Water Supply, 24 x 7 Security, CCTV / Video Surveillance, Normal Park / Central Green, Indoor Games.
Yes, Uma Mangal Shrushti is RERA-approved under registration number P52100017183. Buyers can verify details on the official RERA portal.
This website is only for the purpose of providing information regarding real estate projects in different geographies. Any information which is being provided on this website is not an advertisement or a solicitation. The company has not verified the information and the compliances of the projects. Further, the company has not checked the RERA* registration status of the real estate projects listed herein. The company does not make any representation in regards to the compliances done against these projects. Please note that you should make yourself aware about the RERA* registration status of the listed real estate projects.
*Real Estate (regulation & development) act 2016.