Squareyards Logo
DataIntelligence
New Advertise with us Sell or Rent Property
Login
  • Facebook
  • Linkedin
  • Twitter
  • Whatsapp
godrej the trees apartment 2bhk 925sqft 1
  • godrej the trees location image1
  • godrej the trees master plan image1
  • godrej the trees project large image2 thumb
  • godrej the trees amenities features7
  • godrej the trees amenities features8
  • godrej the trees amenities features9
  • godrej the trees amenities features10
  • 13 Photos

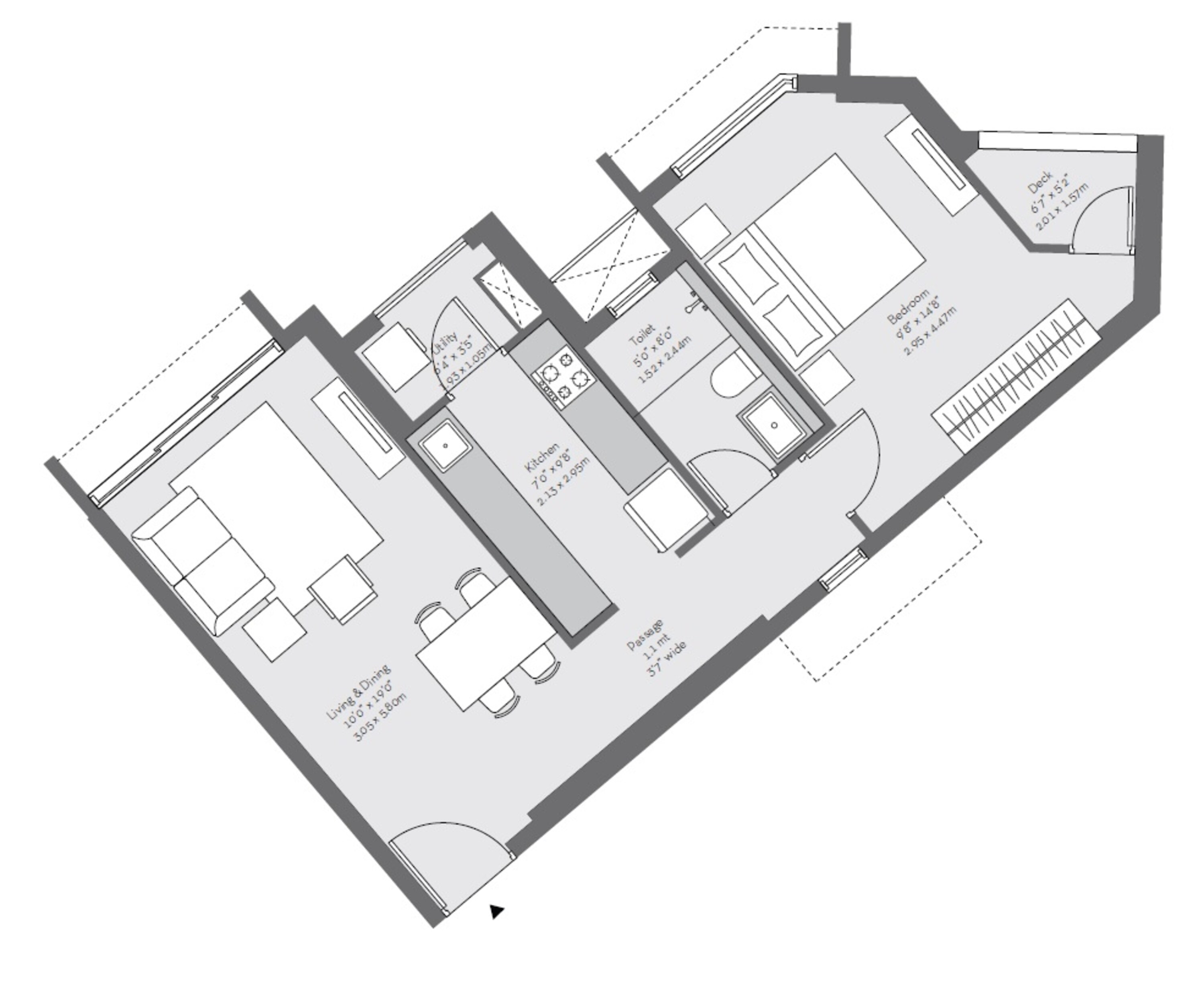
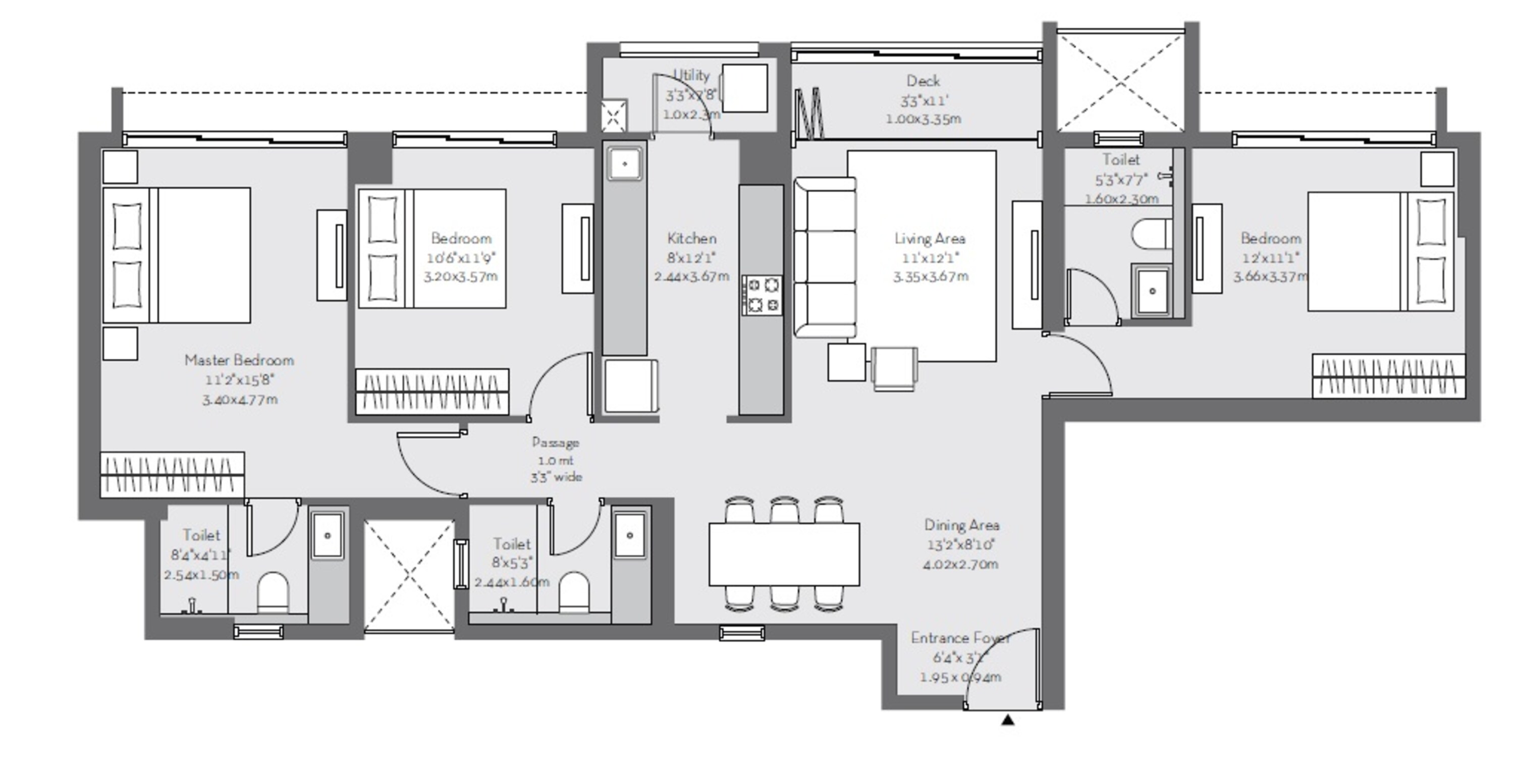
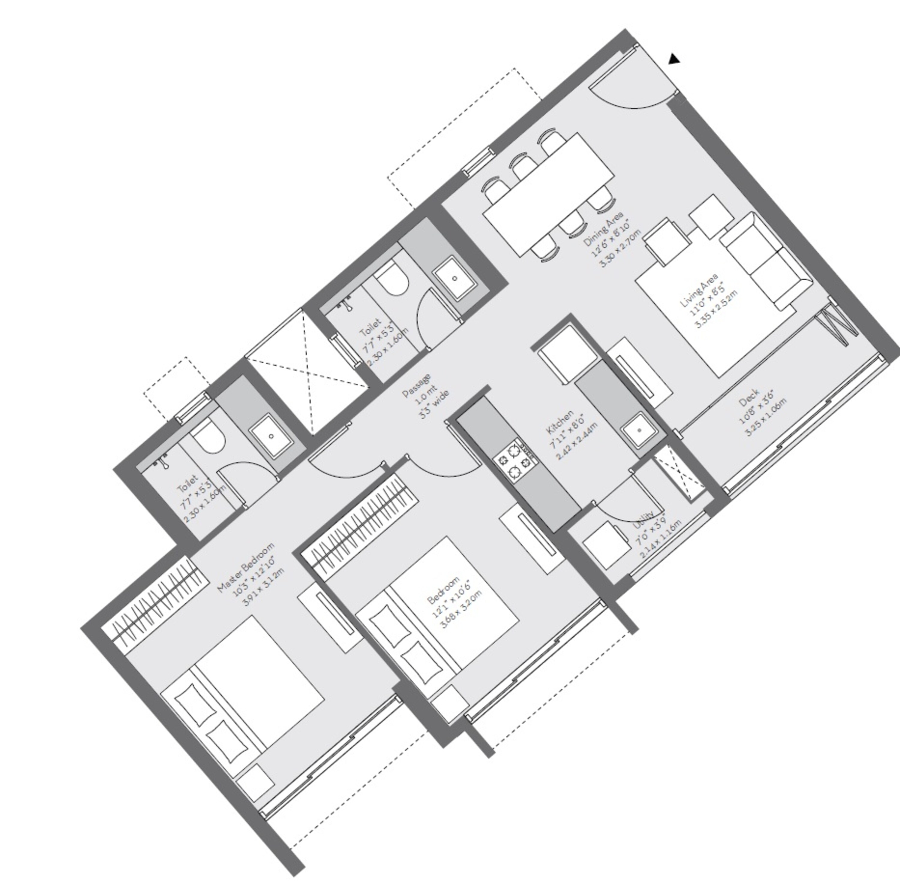
2 BHK 1545 Sq. Ft. Apartment in Godrej The Trees

₹ 7.02 Cr
Status: Near Possession
  •   496 Views
  •   3 Enquiries
  • 1 BHK-2 BHK-3 BHK Apartment (Carpet)
  • 1 Living Area(s) 1 Kitchen(s) 2 Bath Rooms(s)
  • 2 Balconies (66 Sq. Ft.)
*Disclaimer
The carpet area & built-up area shown above are based on approximate calculations performed on the floor plans obtained from publicly available sources. The accuracy and completeness of the information is not guaranteed. In providing this information, Square Yards does not assume any responsibility or liability.
  • Saleable Area - 1545 Sq. Ft.
  • SquareYards RERA Reg.A51800000454
  • Project RERA Reg. P51800000165 ,P51800000161
tn godrej the trees flagshipimg1

Mumbai Central Suburbs, Mumbai

Near Possession

About Godrej The Trees - 2 BHK 1545 Sq. Ft. Apartment

2 BHK 1545 Sq.Ft.Apartment in Godrej The Trees Vikhroli East of Mumbai. The unit has 2 bedrooms, 1 living areas, 2 bathrooms and 2 balconies. It also has 1 study room. Largest bedroom has a size of 11.00 Sq Ft X 15.00 Sq Ft while the next largest is 10.50 Sq Ft X 10.83 Sq Ft .

Inside Area Analysis of 2 BHK 1545 Sq. Ft. Apartment in Godrej The Trees

Inside Area

Room/Private Areas

Length (Ft.) Breadth (Ft.) Area (Sq. Ft.)
Master Bedroom 11.00 15.00 165
Bedroom 10.50 10.83 113.75

Living/Common Areas

Length (Ft.) Breadth (Ft.) Area (Sq. Ft.)
Living+Dining 11.17 19.92 222.4
Passage - - 60

Room/Private Areas

Length (Ft.) Breadth (Ft.) Area (Sq. Ft.)
Study Room 6.58 10.83 71.32

Others

Length (Ft.) Breadth (Ft.) Area (Sq. Ft.)
Kitchen 10.50 8.00 84

Open Areas

Length (Ft.) Breadth (Ft.) Area (Sq. Ft.)
Attached Balcony 3.25 10.83 35.21
Utility Balcony 8.00 3.92 31.33

Godrej The Trees - Floor Plans

1 BHK
2 BHK
3 BHK
i *Disclaimer

This website is only for the purpose of providing information regarding real estate projects in different geographies. Any information which is being provided on this website is not an advertisement or a solicitation. The company has not verified the information and the compliances of the projects. Further, the company has not checked the RERA* registration status of the real estate projects listed herein. The company does not make any representation in regards to the compliances done against these projects. Please note that you should make yourself aware about the RERA* registration status of the listed real estate projects.

*Real Estate (regulation & development) act 2016.
Contact our Real Estate Experts
Enable updates through WhatsApp
Enter Your Mobile Number
Verify your Number

We have sent you message with 4 digit
verification code (OTP) on

Change
Did not receive the code?
  • Zero Brokerage

    100% Service, 0% Brokerage. We charge our customers nothing. Not today, not ever.

  • Lowest Price Guaranteed

    Highly unlikely, but if you find a lower price (from the developer) for the same home you want to buy, tell us and we will match it.

  • Full Service Support

    Our sales personnel are customer advocates and are accountable for every step in the process – from search & discovery to site visits, transactions, home loans and post-sales service.

Country/City