Squareyards Logo
DataIntelligence
New Advertise with us Sell or Rent Property
Login
  • Facebook
  • Linkedin
  • Twitter
  • Whatsapp
rohan hari har apartment 1bhk 700sqft1
  • rohan lifescapes hari har project tower view1
  • rohan lifescapes hari har project location image1
  • 3 Photos

1 BHK 341 Sq. Ft. Apartment in Rohan Lifescapes Hari Har

1.88 Cr
Status: Ready to Move
  •   3908 Views
  •   10 Enquiries
  • 1 BHK-2 BHK-3 BHK Apartment from 341 Sq. Ft. to 980 Sq. Ft. (Carpet)
  • 1 Living Area(s) 1 Kitchen(s) 2 Bath Rooms(s)
*Disclaimer
The carpet area & built-up area shown above are based on approximate calculations performed on the floor plans obtained from publicly available sources. The accuracy and completeness of the information is not guaranteed. In providing this information, Square Yards does not assume any responsibility or liability.
  • Carpet Area - 341 Sq. Ft. (100%)
  • SquareYards RERA Reg.A51800000454
  • Project RERA Reg. P51900014987
tn rohan hari har project flagship1

Mumbai South, Mumbai

1.88 Cr to 5.40 Cr
Ready to Move

About Rohan Lifescapes Hari Har - 1 BHK 341 Sq. Ft. Apartment

1 BHK 795 Sq.Ft.Apartment in Rohan Hari Har Girgaon of Mumbai has an approximate price of Rs. 26500.0 per sq ft. The unit has 1 bedrooms, 1 living areas, 2 bathrooms. Largest bedroom has a size of 11.50 Sq Ft X 10.00 Sq Ft .

Inside Area Analysis of 1 BHK 341 Sq. Ft. Apartment in Rohan Lifescapes Hari Har

Inside Area

Room/Private Areas

Length (Ft.) Breadth (Ft.) Area (Sq. Ft.)
Bedroom 11.50 10.00 115

Others

Length (Ft.) Breadth (Ft.) Area (Sq. Ft.)
Kitchen 9.58 9.58 91.84

Living/Common Areas

Length (Ft.) Breadth (Ft.) Area (Sq. Ft.)
Passage - - 20
Living+Dining 19.75 11.00 217.25

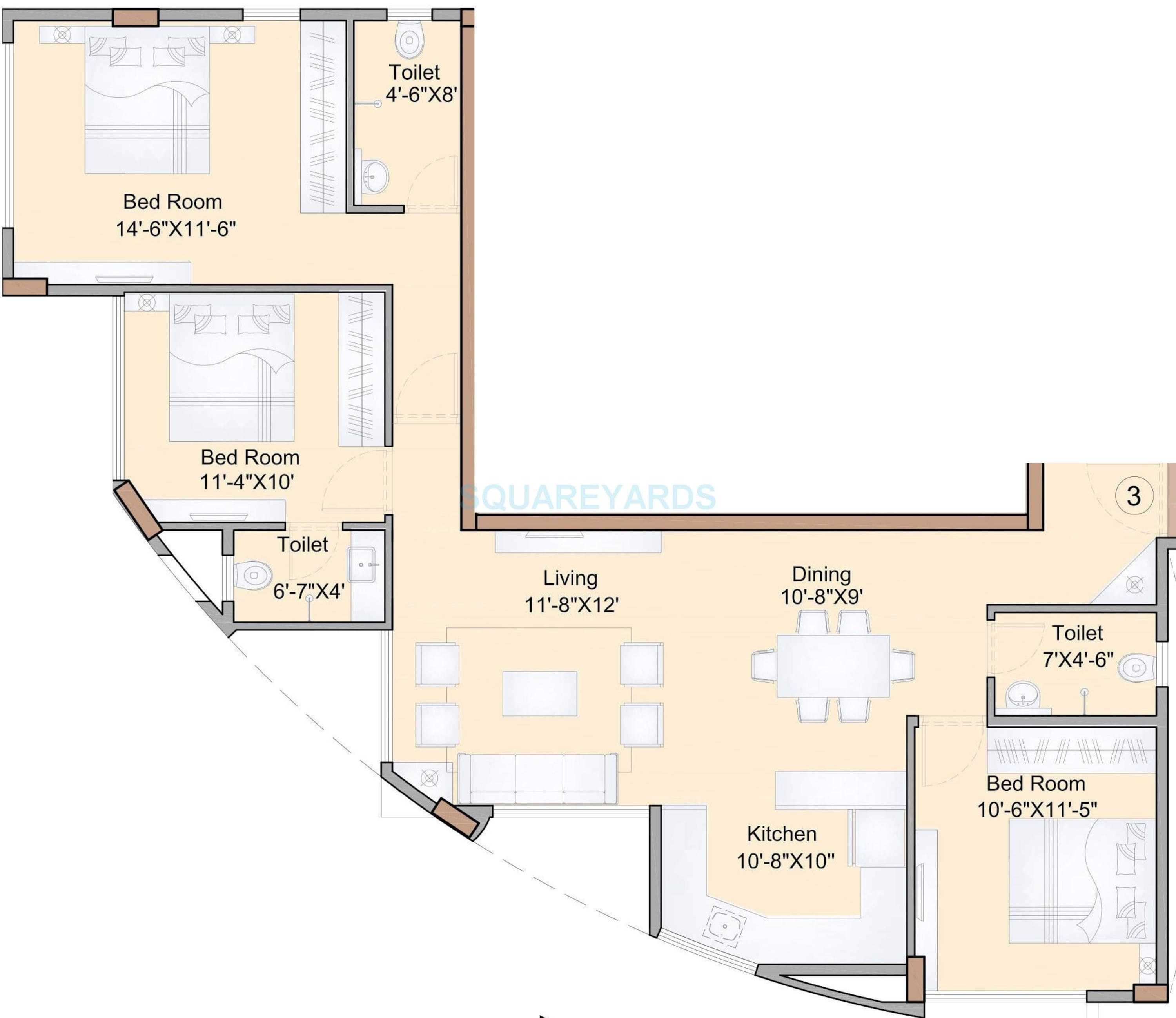
Rohan Lifescapes Hari Har - Floor Plans

1 BHK
2 BHK
3 BHK
i *Disclaimer

This website is only for the purpose of providing information regarding real estate projects in different geographies. Any information which is being provided on this website is not an advertisement or a solicitation. The company has not verified the information and the compliances of the projects. Further, the company has not checked the RERA* registration status of the real estate projects listed herein. The company does not make any representation in regards to the compliances done against these projects. Please note that you should make yourself aware about the RERA* registration status of the listed real estate projects.

*Real Estate (regulation & development) act 2016.
Contact our Real Estate Experts
Enable updates through WhatsApp
Enter Your Mobile Number
Verify your Number

We have sent you message with 4 digit
verification code (OTP) on

Change
Did not receive the code?
  • Zero Brokerage

    100% Service, 0% Brokerage. We charge our customers nothing. Not today, not ever.

  • Lowest Price Guaranteed

    Highly unlikely, but if you find a lower price (from the developer) for the same home you want to buy, tell us and we will match it.

  • Full Service Support

    Our sales personnel are customer advocates and are accountable for every step in the process – from search & discovery to site visits, transactions, home loans and post-sales service.

Country/City