Squareyards Logo
DataIntelligence
New Advertise with us Sell or Rent Property
Login
  • Facebook
  • Linkedin
  • Twitter
  • Whatsapp
paras tierea apartment 4 bhk 2950sqft 20210010120041
  • paras tierea duplex master plan image1
  • paras tierea tower view7
  • paras tierea tower view8
  • paras tierea amenities features10
  • paras tierea apartment interiors11
  • paras tierea project location image1
  • paras tierea project tower view6
  • 12 Photos

4 BHK 2950 Sq. Ft. Apartment in Paras Tierea

2.21 Cr
₹ 7500 Per Sq. Ft Onwards
Status: Ready to Move
  •   28237 Views
  •   2 Enquiries
  • 1 BHK-2 BHK-3 BHK-4 BHK Apartment from 450 Sq. Ft. to 2950 Sq. Ft. (Saleable)
  • 5 Living Area(s) 1 Kitchen(s) 4 Bath Rooms(s)
  • 4 Balconies (113 Sq. Ft.)
*Disclaimer
The carpet area & built-up area shown above are based on approximate calculations performed on the floor plans obtained from publicly available sources. The accuracy and completeness of the information is not guaranteed. In providing this information, Square Yards does not assume any responsibility or liability.
  • Saleable Area - 2950 Sq. Ft.
tn paras tierea project flagship1

Noida Expressway, Noida

33.75 Lac to 2.21 Cr ₹ 7500.0 Per Sq. Ft Onwards
Ready to Move

About Paras Tierea - 4 BHK 2950 Sq. Ft. Apartment

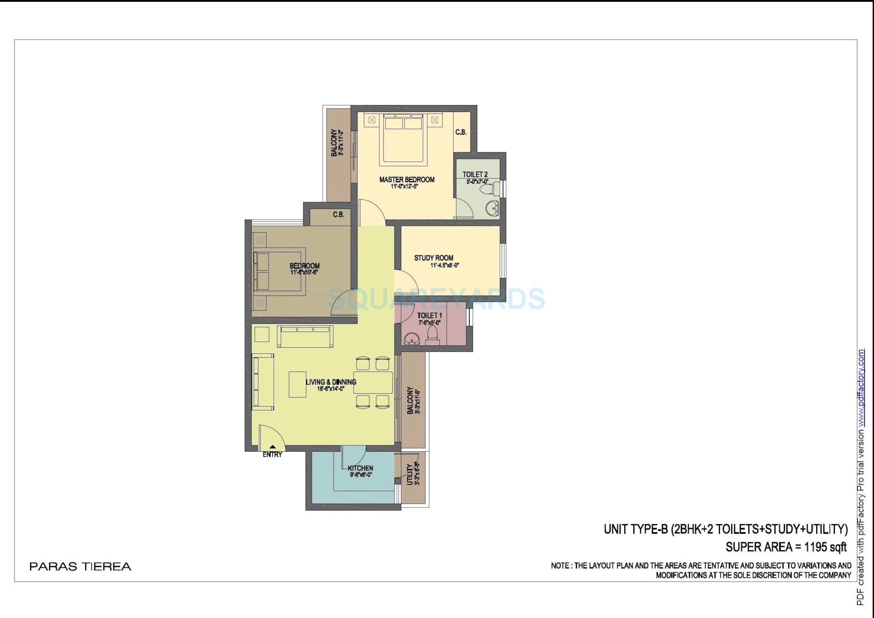
4 BHK 2950 Sq.Ft.Apartment in Paras Tierea Sector 137 of Noida has an approximate price of Rs. 5017.8 per sq ft. Builtup area including balconies and internal walls is approximately 4% of total area. The unit has 4 bedrooms, 5 living areas, 4 bathrooms and 4 balconies. It also has 1 servant room. Largest bedroom has a size of 12.00 Sq Ft X 13.50 Sq Ft while the next largest is 12.00 Sq Ft X 13.50 Sq Ft .

Inside Area Analysis of 4 BHK 2950 Sq. Ft. Apartment in Paras Tierea

Inside Area

Room/Private Areas

Length (Ft.) Breadth (Ft.) Area (Sq. Ft.)
Bedroom 12.00 13.50 162
Master Bedroom 12.00 13.50 162
Bedroom 10.75 12.50 134.38

Living/Common Areas

Length (Ft.) Breadth (Ft.) Area (Sq. Ft.)
Lobby 6.33 3.25 20.58
Family Lounge 9.58 12.58 120.59
Lobby 7.58 9.17 69.51
Living 11.00 15.25 167.75
Dining 14.75 11.67 172.08
Passage - - 25

Others

Length (Ft.) Breadth (Ft.) Area (Sq. Ft.)
Servant Room 6.00 5.00 30

Room/Private Areas

Length (Ft.) Breadth (Ft.) Area (Sq. Ft.)
Bedroom 10.00 11.25 112.5

Others

Length (Ft.) Breadth (Ft.) Area (Sq. Ft.)
Kitchen 7.00 11.50 80.5
Servant Bath 6.00 3.67 22.02

Open Areas

Length (Ft.) Breadth (Ft.) Area (Sq. Ft.)
Private Garden/Lawn - - -
Utility Balcony 7.25 3.25 23.56
Attached Balcony 12.50 3.25 40.62
Attached Balcony 10.50 3.25 34.12
Attached Balcony 5.00 3.25 16.25

Paras Tierea - Floor Plans

1 BHK
2 BHK
3 BHK
4 BHK
i *Disclaimer

This website is only for the purpose of providing information regarding real estate projects in different geographies. Any information which is being provided on this website is not an advertisement or a solicitation. The company has not verified the information and the compliances of the projects. Further, the company has not checked the RERA* registration status of the real estate projects listed herein. The company does not make any representation in regards to the compliances done against these projects. Please note that you should make yourself aware about the RERA* registration status of the listed real estate projects.

*Real Estate (regulation & development) act 2016.
Contact our Real Estate Experts
Enable updates through WhatsApp
Enter Your Mobile Number
Verify your Number

We have sent you message with 4 digit
verification code (OTP) on

Change
Did not receive the code?
  • Zero Brokerage

    100% Service, 0% Brokerage. We charge our customers nothing. Not today, not ever.

  • Lowest Price Guaranteed

    Highly unlikely, but if you find a lower price (from the developer) for the same home you want to buy, tell us and we will match it.

  • Full Service Support

    Our sales personnel are customer advocates and are accountable for every step in the process – from search & discovery to site visits, transactions, home loans and post-sales service.

Country/City